查看完整案例

收藏

下载
在医疗美学品牌
LANLANLI
2022 年时,DEVOLUTION 退化建筑曾为 LANLANLI 设计了其厦门机构的 2F 空间,这是一个融合了新媒体艺术装置的现代空间。以此为契机,在之后几年中,DEVOLUTION 退化建筑深度介入了这个年轻但观念开放的医美品牌的基因塑造。
© Elias
© Elias
此次设计基于两栋不同时期的闽南建筑(传统古厝与 1980 年代红砖楼)进行改造。
© Elias
© Elias
© Elias
© Elias
在保留和整理传统建筑语言的基础上,DEVOLUTION 退化建筑通过克制的元素处理和介入——混凝土体块和温润的野生柚木及泉州白石的拼贴。
© Elias
© Elias
© Elias
© Elias
© Elias
© Elias
© Elias
此外还有南洋桌椅和 1970-80 年代的现代主义家具与灯饰的交互等,让这个空间既传统质朴又不乏摩登,闪现一些碰撞的趣味。
© Elias
© Elias
© Elias
同时,在这个 LANLANLI,我们希望艺术是被用来解析这个独特的空间,不是仅将空间作为容器,而是和空间发生关系。因此它区别于一般展览,DEVOLUTION 退化建筑此次邀请了 envy envy、File Studio 和 PAPAPAPARTNER 三个小而有创造性的创作团队,在闽南大厝中创作了一件名叫“枢核”的作品,它是一个空间装置,破坏和重构了传统木结构建筑的制式感受,是这个闽南古建筑的一种新的情境生成
© Elias
© Elias
© Elias
「SITUASIAN」 也在这个项目中融入了在地色彩,在整套视觉设计中上汲取了泉州建筑中剪瓷材料的高饱和度对撞色,在“俗而有力”中生成当代的语汇。
© Elias
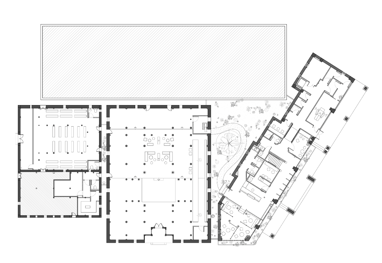
总平面图 © 退化建筑
剖面图 © 退化建筑
剖面图 © 退化建筑
立面图 © 退化建筑
立面图 © 退化建筑
建筑事务所:
退化建筑
项目地址:泉州市,福建省,中国
项目年份:2025年
项目面积:约1000㎡
主创设计师:汤建松、王琦
设计团队: 林程辉 黄龙涛 王娜
景观设计: 四两山人
家具定制:集野木工
艺术装置:envy envy / File Studio / PAPAPAPARTNER
施工方: EMCC 结庐
委托方: LANLANLI 兰兰里
摄影师:Elias
编辑 Yulin
Yulin
客服
消息
收藏
下载
最近



























