查看完整案例

收藏

下载
这是一座坐落于阳澄湖北岸的民宿建筑,四周广袤的土地被大闸蟹养殖池环绕,而作为中心的消经村,则是一座历史悠久的老街,至今保留着江南渔村的传统风貌。本项目作为阳澄湖国际手作村观光再开发计划的首期工程,不仅旨在建设一座住宿设施,更被寄予厚望,成为推动整个地区再活化的旗帜性存在。
This is a lodging building located on the north shore of Yangcheng Lake, surrounded by a vast area of land with hairy crab breeding ponds, while the centerpiece, the Xijing Village, is a historic old street that still retains the traditional look of a fishing village in the south of the Yangtze River. As the first phase of the Yangcheng Lake International Handicraft Village Tourism Redevelopment Plan, this project is not only intended to be a lodging facility, but is also expected to be a flagship presence to promote the revitalization of the entire area.
▼项目概览,Overview © BES BRANDING
▼阳澄湖消经村,Yangcheng Lake Xiaojing Village © BES BRANDING
▼建筑外观北立面,Architecture Exterior North Elevation © BES BRANDING
▼南侧靠近小河,北侧毗邻大公园,Creek On South Side, Park On North Side © BES BRANDING
建筑整体为两层地上结构,无地下部分。场地南侧靠近一条小河,北侧毗邻一座大型公园。来自阳澄湖的清风不受障碍物阻挡,全年畅通无阻:吹过水面的风夏季送来凉爽,冬季带来暖意。为将这股自然风转化为环境装置,建筑沿河平行布局,屋顶坡度设计平缓,深檐尽量延展,从而有效引导河风穿入室内,形成自然的通风环境。此外,由于水面反射的光线在深檐设计下再次折射进入室内,营造出室内波光粼粼的美妙效果,使空间充满生动而柔和的光影之美。
The building is an overall two-story above-ground structure with no underground portion. The site is close to a small river on the south side and adjacent to a large park on the north side. The breeze from Yangcheng Lake is not blocked by obstacles and flows freely throughout the year: the wind blowing across the water brings coolness in summer and warmth in winter. In order to transform this natural wind into an environmental device, the building is laid out parallel to the river, with a gently sloping roof and deep eaves that extend as far as possible, thus effectively guiding the river wind into the interior and creating a natural ventilation environment. In addition, the light reflected from the water surface is refracted into the interior by the deep eaves design, creating a wonderful effect of shimmering light in the interior, and filling the space with the beauty of vivid and soft light and shadow.
▼与风共生的建筑,Architecture With The Wind © BES BRANDING
▼室内波光效果,Indoor Wave Effect © BES BRANDING
建筑外墙采用硅藻泥工艺,材料选用了以当地土壤为原料制成的自然硅藻土。对于位于湖岸的建筑而言,湿度管理是不可或缺的环节。硅藻泥具备极高的吸湿性,能够自然调节湿度,从而营造更加舒适的室内环境。此外,硅藻泥作为一种天然材料,随着时间的推移,其颜色会逐渐沉稳内敛,这种经年累月的变化将进一步增强建筑与这片土地的融合感。通过屋顶形状和材料选择等一系列设计巧思,该建筑充分利用自然环境对温度和湿度的调节作用,大幅降低了对空调设备的依赖与能源的消耗,实现了节能环保与自然的高度和谐共生。
The exterior of the building is made of diatomite, a natural diatomaceous earth made from local soil. Moisture management is essential for a building located on the shore of a lake. Diatomaceous earth is highly hygroscopic and can naturally regulate humidity to create a more comfortable indoor environment. In addition, as a natural material, the color of diatomite will gradually become more subdued over time, and this change over the years will further enhance the building’s sense of integration with the land. Through a series of design ingenuity, such as the shape of the roof and the choice of materials, the building makes full use of the natural environment to regulate temperature and humidity, significantly reducing the dependence on air-conditioning equipment and energy consumption, and realizing energy conservation, environmental protection and a high degree of harmony and symbiosis with nature.
▼建筑高度的独特设计,Architecture Highly Unique Design © BES BRANDING
▼硅藻泥工艺自然材料,Diatomite Process Natural Materials © BES BRANDING
该建筑的平面布局规划源自对苏州园林的精细研究。通过对苏州市内现存的众多苏州园林进行实地调研及图纸资料的分析,我们提炼出了如“雁行式布局”、“粗密分布”等12种共通的设计语言。这些特征并非简单借鉴《园冶》等先行研究,而是从现代设计的视角对苏州园林造型特点进行重新诠释与再编辑。在此基础上,这些设计语言被多样化地应用于本项目的布局规划中,使之成为现代园林精神的延续与发展。通过这种手法,该建筑在传承苏州园林精髓的同时,也呈现出与当代环境相呼应的全新空间表达。
The layout of the building is based on a detailed study of Suzhou gardens. Through field research and analysis of drawings of many existing Suzhou gardens in Suzhou, we have refined 12 common design languages such as “wild goose row layout” and “thick and dense distribution”. These features are not simply borrowed from the “Garden Metallurgy” and other previous studies, but are reinterpreted and re-edited from the perspective of modern design to reflect the stylistic characteristics of Suzhou gardens. On this basis, these design languages are diversely applied to the layout planning of this project, making it a continuation and development of the spirit of modern gardens. Through this approach, the building inherits the essence of Suzhou gardens while presenting a new spatial expression that echoes the contemporary environment.
▼苏州园林和日式园林研究,Research of Suzhou and Japanese Gardens © BES BRANDING
▼12种设计语言,12 Design Languages © BES BRANDING
具体而言,建筑通过雁行式的回廊,将18间客房、大堂、餐厅、书院、茶室等大小不一的体量有机连接起来。这些回廊环绕两座设有水池的庭院布局,并设计成游览动线,使得行走路径上的每一个位置都能呈现出”一步一景”的多样化视觉体验。为了让每间客房独立存在,犹如一座独立的宅院,它们在布局上采取了微妙的错位方式,这种错位又进一步赋予了雁行式回廊丰富的视觉层次感。景观设计同样遵循这一布局原则,通过借景、框景和尺度变化等手法,精心打造出细腻而丰富的视线戏剧效果。更为重要的是,这样的设计主动将周围的自然景观纳入建筑的整体空间之中。场地南侧流动的小河及其自然风貌,正是这座建筑设计中最为引人瞩目的“白眉”。
Specifically, the building organically connects the 18 guest rooms, lobby, restaurant, library, tea room and other volumes of different sizes through the wild goose-style corridors. These corridors surround two courtyards with pools, and are designed as a touring line, so that each location on the walking path can present a diverse visual experience of “one step, one view”. In order to make each guest room exist independently, as if it were an independent mansion, they have adopted a subtle misalignment in the layout, which further gives the geese-style corridor a rich sense of visual hierarchy. Landscape design also follows this layout principle, through the borrowed scenery, framing scenery and scale changes and other techniques, to carefully create a delicate and rich visual theater effect. More importantly, the design actively incorporates the surrounding natural landscape into the overall space of the building. The flowing creek on the south side of the site and its natural landscape is the most eye-catching “white eyebrow” of the building design.
▼建筑布置鸟瞰图,Architecture Layout Aerial View © BES BRANDING
关于建筑的高度问题,该建筑位于阳澄湖湖畔的低湿地带,地势平坦或被养殖池覆盖。如果这里出现如断裂木刺般突兀而立的建筑,无疑会严重破坏自然景观。因此,建筑的高度需控制在一定限度以下。我们将这一”限度”定义为周边树木的平均高度。通过对场地周围约300米范围内的树木进行调查与测量,得出了平均高度为7.9米的数值,并以此为基准,制定了建筑不得超过这一高度的独特设计规则。
Regarding the height of the building, the building is located in the low-wetland zone along the shore of Yangcheng Lake, where the terrain is flat or covered by breeding ponds. If there is a building that stands out like a broken wooden thorn here, it will undoubtedly seriously damage the natural landscape. Therefore, the height of the buildings should be kept below a certain limit. We define this “limit” as the average height of the surrounding trees. By surveying and measuring the trees around the site at a distance of about 300 meters, we came up with an average height of 7.9 meters, which was used as a benchmark to establish a unique design rule that the building should not exceed this height.
▼建筑外观和庭院,Architecture Exterior and Courtyard © BES BRANDING
▼阳澄湖水乡风景,Yangcheng Lake Water Country Scenery © BES BRANDING
这一限制虽然使客房的层高显得略显局促,但通过参考日式低座起居模式,我们有效缓解了低天花板带来的压迫感。此外,通过一系列细腻的设计手法,如使用经过”勺形刨削”加工的木板和柔软的榻榻米作为地板材料;引入”雪见障子”上下分割窗,让室内活动区域更贴近地面,同时将视线引向低处的远景,创造出”因低而富”的独特室内环境。
Although the height of the guest rooms is a little tight, the oppressive feeling of low ceilings is effectively alleviated by referring to the Japanese low-seat living pattern. In addition, a series of subtle design techniques, such as the use of “spoon-shaved” wood panels and soft tatami mats for the flooring, and the introduction of “Yukimi-Barrier” upper and lower parting windows to bring the indoor activity areas closer to the ground while drawing the eye to the lower vista, create a unique interior environment that is “rich because of its low height”.
▼室内空间,Interior View © BES BRANDING
建筑的施工于新冠疫情肆虐的酷暑期间进行,高达40摄氏度的高温让新抹的硅藻泥迅速干燥,甚至出现开裂现象,工地一度无法正常作业。然而,就在这般艰难的条件下,偶尔从河面吹来的凉风却成为现场工人难得的慰藉,带来片刻的轻松与微笑。这一瞬间,我们更加确信打造一座“与风共生”的建筑这一理念,是多么正确的选择。
The construction of the building was carried out during the scorching summer when the Xin Guan epidemic was raging, and the high temperature of up to 40 degrees Celsius made the freshly plastered diatomite dry out quickly, and even cracks appeared, making it impossible for the construction site to operate normally for a while. However, under such difficult conditions, the cool breeze blowing from the river occasionally became a rare solace for the workers on site, bringing a moment of relaxation and smiles. At this moment, we were even more convinced that the concept of creating a building that “lives with the wind” was the right choice.
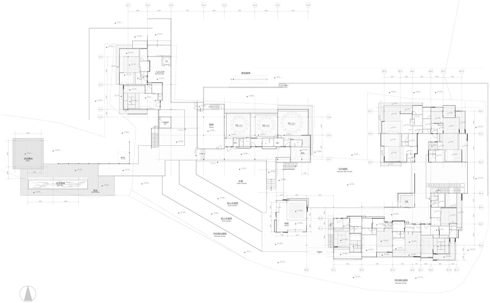
▼1层平面图,1F Plan © BES BRANDING
▼剖面图A,Section A © BES BRANDING
▼剖面图B,Section B © BES BRANDING
▼建筑剖面图,Architecture Section © BES BRANDING
业主:苏州市相城生态文旅发展集团
项目地:苏州
建筑、室内、景观设计:BES BRANDING / 贝思勤创意设计有限公司
主创建筑师:松原独步
设计团队:新岡百惠、季晶晶、姜雅、谭筱、颜华菁、符婕、翁晨晰
建筑深化:苏州东吴建筑设计院有限责任公司
建筑摄影:BES BRANDING
Project Name: Suzhou Xiangcheng Ecological Culture and Tourism Development Group
Project Location: Suzhou
Architecture, Interior, Landscape Design:BES BRANDING / Suzhou BES Branding Co., Ltd
Leader Architect: Doppo Matsubara
Design Team: Momoe Niioka、Ji Jingjing、Jiang Ya、Tan Xiao、Yan Huajing、Fu Jie、Weng Chenxi
Architectural Deepening Design:Suzhou Dongwu Architectural Design Institute Co., Ltd
Photo Credits: BES BRADING
客服
消息
收藏
下载
最近





















