查看完整案例

收藏

下载

翻译
J’ai choisi un nom de restaurant sous forme de jeu de mot :Deer (anglais) = cerf (français)Dear (anglais) = cher (comme mon cher, lorsque l’on écrit une lettre à quelqu’un d’apprécié)Ce jeu de mot a pour but d’annoncer l’ambiance chic («mon cher») et donne l’identité du restaurant, à savoir, le cerf qui est présent à la fois dans le logo mais aussi dans la décoration du lieu.Les surfaces en briques, tantôt peintes en blanc, tantôt en noir forment l’essentiel de la décoration. Seul les luminaires et les têtes de cerfs s’ajoutent à cet environnement.
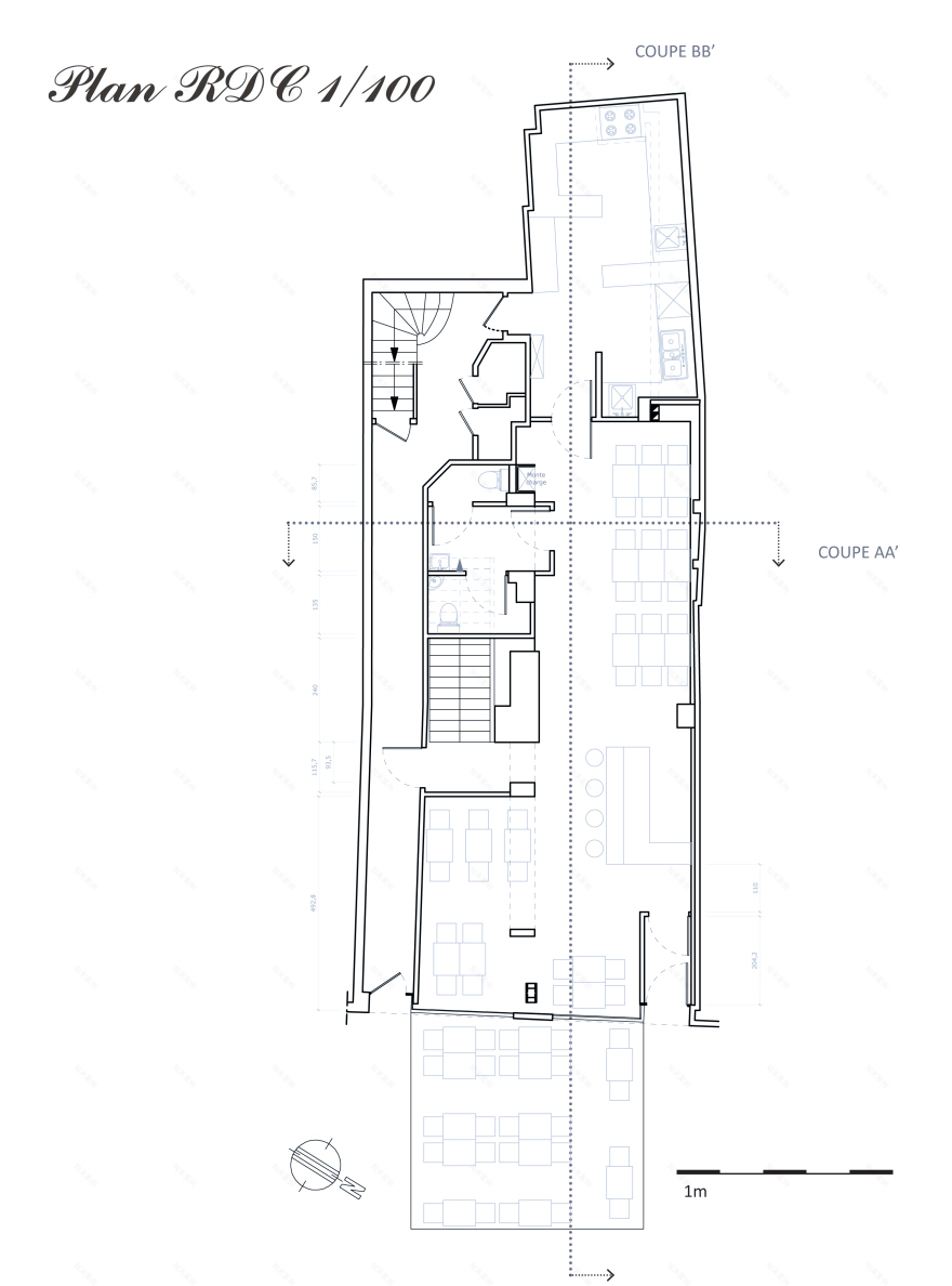
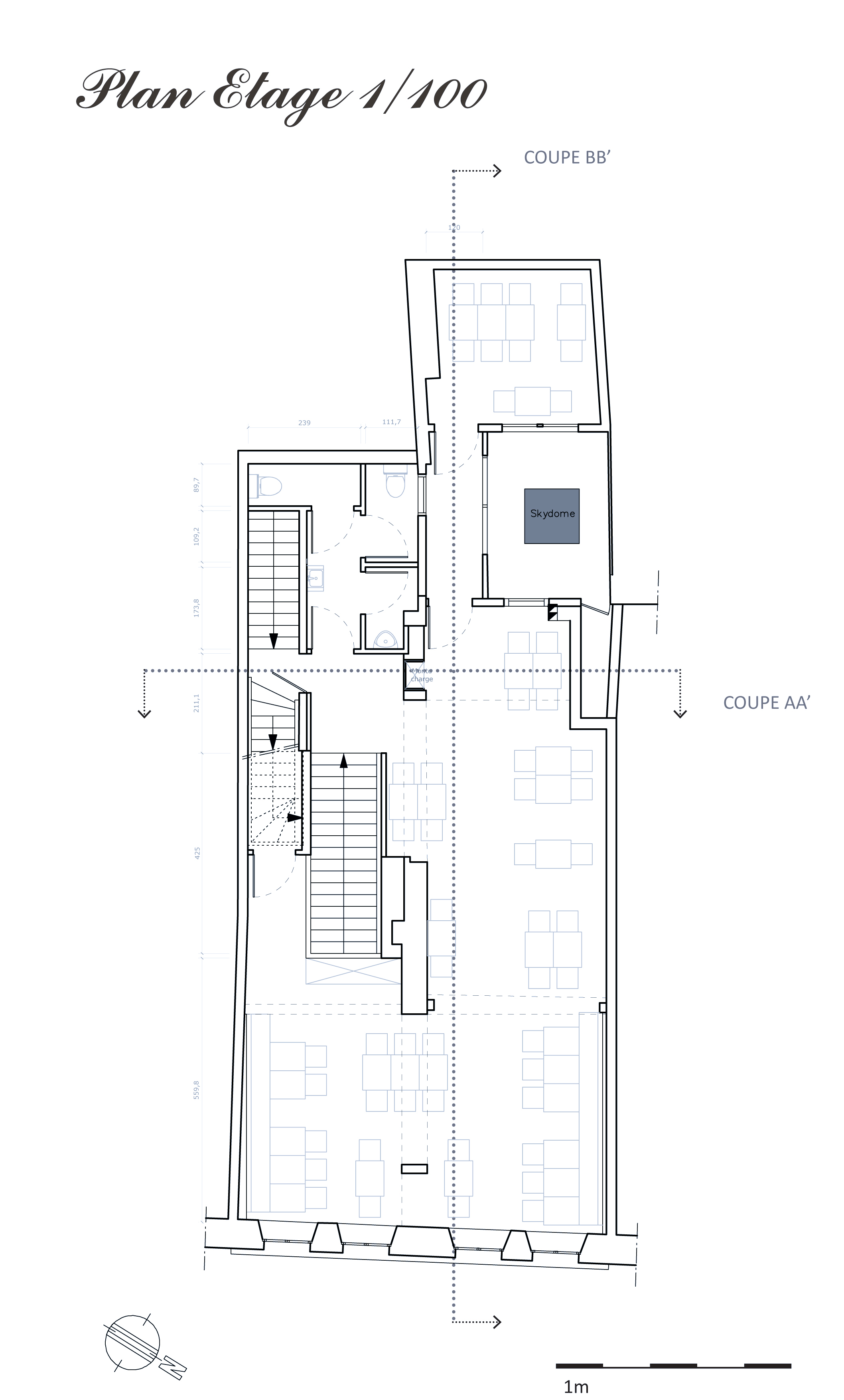
Pour cet aménagement j’ai voulu jouer avec le noir et le blanc qui vient être relevé par des touches de cuivre . L’objectif étant de contraster les espaces, le rez-de-chaussée a une dominance de blanc dans ses surfaces, à l’inverse de l’étage qui a une dominance de noir.
Vues du RDC
Vues de l'Etage
客服
消息
收藏
下载
最近















