查看完整案例


收藏

下载

翻译
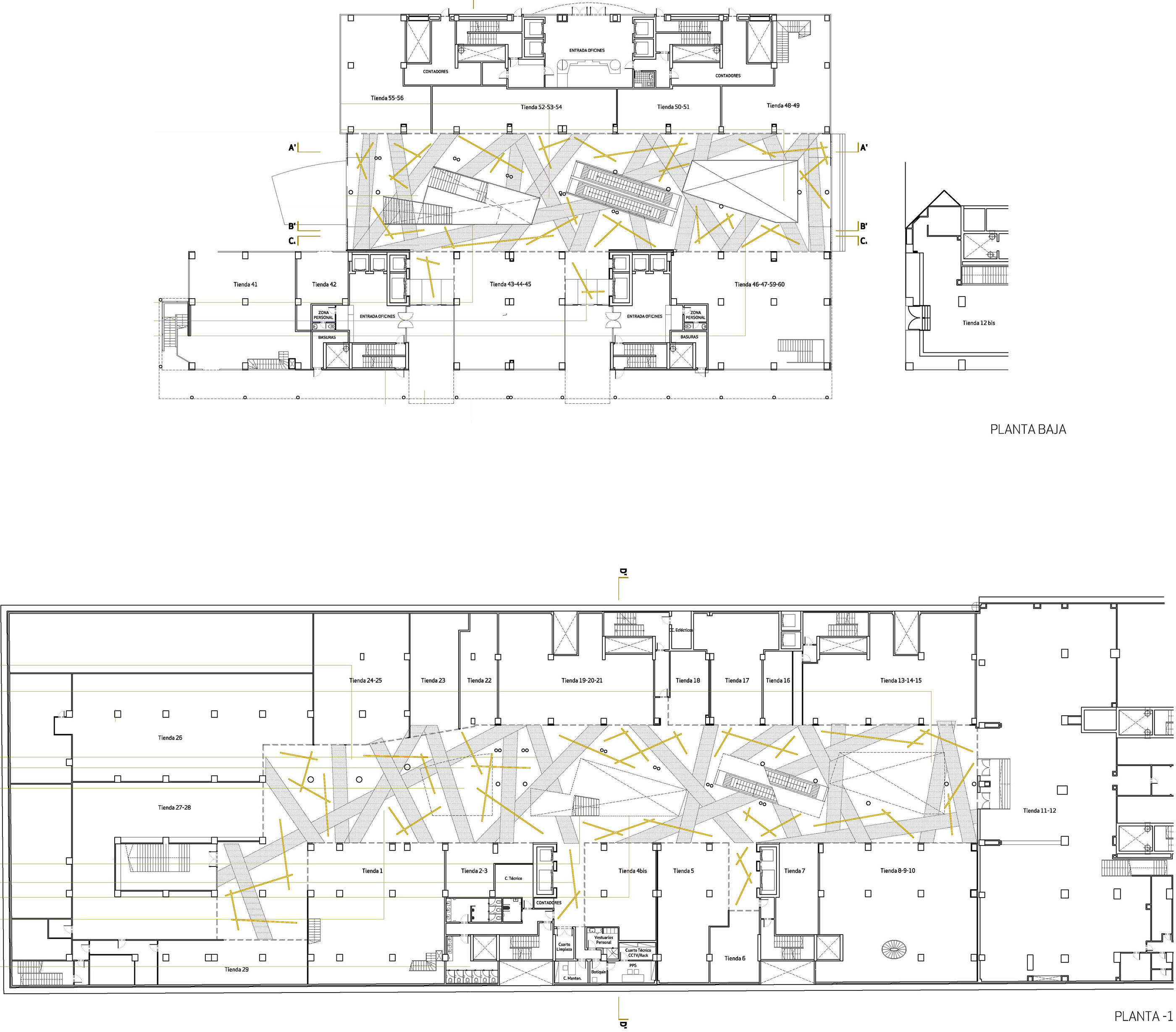
Reforma de Centro Comercial Paddock, Sabadell
Localización: Sabadell, EspañaArq. Octavio Mestre / Albert LluchAño: 2017-2018M2: 2.500
El proyecto pretende y propone una reorganización completa del centro, así, se modernizan las instalaciones (se instalan cortinas de aire en las puertas y se establecen nuevas medida contra incendios, se cambia el sistema de climatización y se eliminan las instalaciones obsoletas), se eliminan los actuales falsos techos, pasando a pintar los forjados de negro, bajo los que suspenderemos unas telas tensadas que harán las veces de difusores de luz, estirando el espacio en todas las direcciones. El proyecto prevé, también, cambiar el acristalamiento, diseñar logos, integrar la señalética, de manera natural y tratar los espacios exteriores de acceso al centro, como parte del propio centro.
客服
消息
收藏
下载
最近









