查看完整案例

收藏

下载

翻译
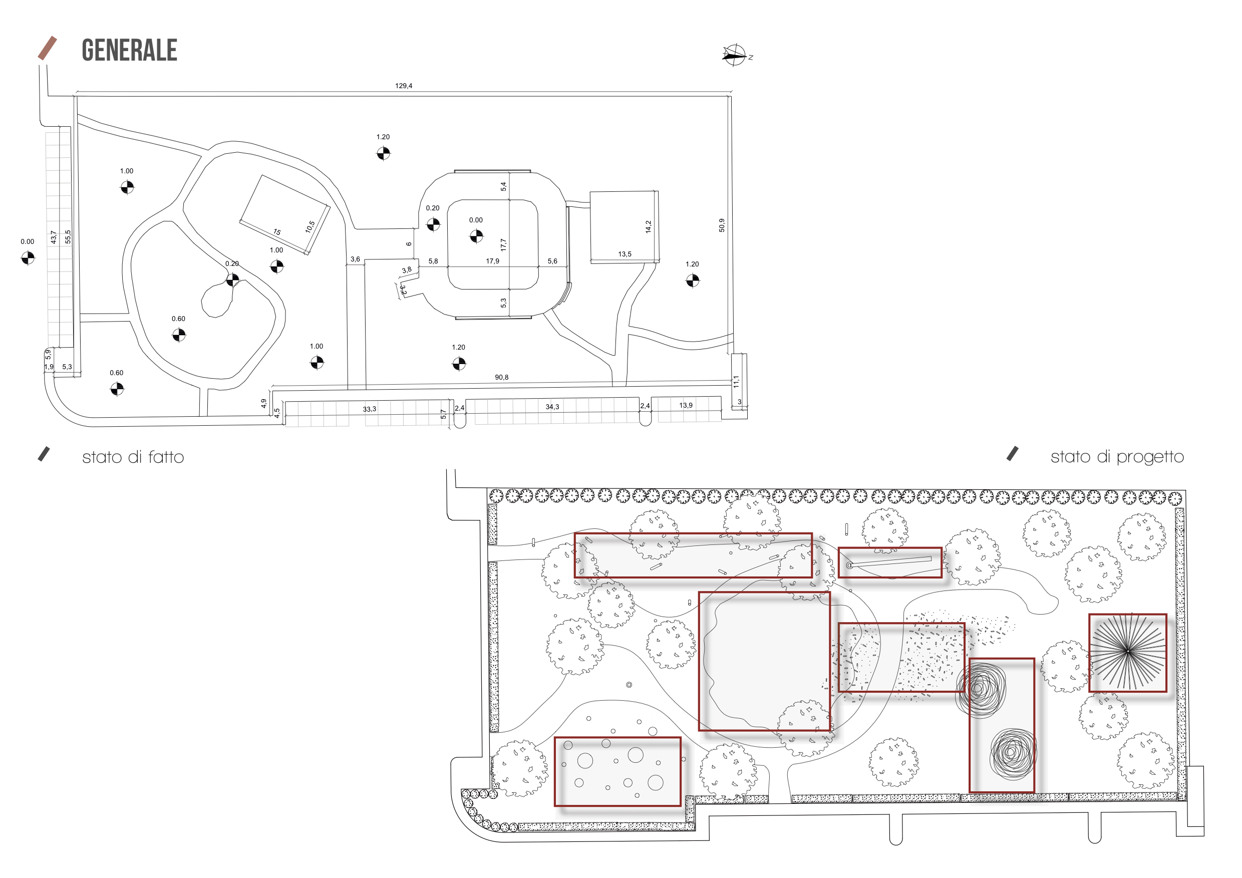
The Memory of Places - La Memoria dei LuoghiFirst bachelor's degree thesis project – Interior Design at Politecnico di Milano.IntroductionThis project aim to redesign open spaces in the city of Lissone and support a better knowledge of the Brianza’s traditions and re-unite his city community.The main focus of the project is to “live slowly”, so in these cases will be incentivized “slow re-discover” behavior. There will be break points in which actively interact and gain new informations, exchange areas where will be possible to taste foods and drinks. The two spaces considered are part of the “urban interior” category, for that reason the nature of the ideas and projects are contained in micro-ambient of the city. “Live is to be everywhere at home” said Ugo La Pietra in his documentary of 1977. Starting from that the project have followed needs and desires of the citizen of Lissone. The two main areas of interest were the park in Don Minzoni street and the little Garibaldi square nearby the center of the city. Both places were considered anonymous, non-functional and aesthetically not appealing, so they were redesigned considering the original spirit of this locations in order to bring out their specific signs and enhancing their characteristics. Piazza GaribaldiThe first place analyzed is a square that in ancient times were just outside of the village wall and for that assigned to agricolture. Thanks to different researches has been discovered that vine was so largely farmed in the Brianza land to represent 90% of the plantations.For that reason has been decided to bring to the present that trace, revisiting the square and turning it into a pedestrian area in which the user can discover and experience within 5 different terrace levels, that refer directly to the Italian typical terracing. So here, starting from the study of a natural ambient is turned into an artificial representation of it.Parco via Don MinzoniDeeply different from the previous space this area is characterized by green areas, contiguous to the historical OEB factory where has been invented and produced the famous hex key. So for that, the aim was to strengthen the bond between this two ambients. In order to do that, have been studied the different properties of different metal, to translating an artificial material into natural shapes to recreate a dreamlike-alien space that would be mostly used by children
客服
消息
收藏
下载
最近































