查看完整案例

收藏

下载

翻译
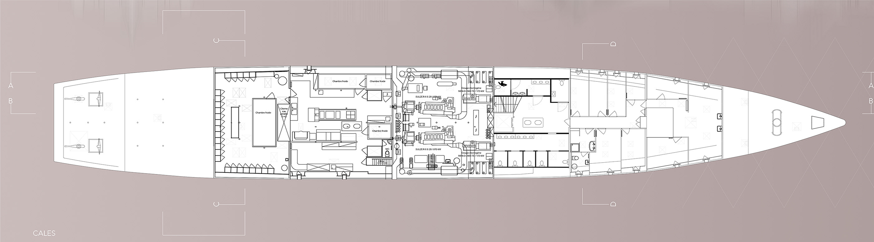
PROJET DE DIPLÔME JUIN 2016Transformation & Réaménagement du Bateau "Le Lausanne"I. CONTEXTE, DÉMARCHE ET SITE Transformation et réaménagement du bateau datant de 1993 "Le Lausanne", en complex hôtelier de luxe, en annexe de l'hôtel Beau-Rivage Palace de Lausanne. Le programme doit contenir une dizaine de chambres de luxe plus une suite royale. II. TRANSFORMATIONLa structure ayant été étudiée et analysée grâce à la visite du bateau avec le responsable de la CGN, il a été constaté que la structure du bateau est un système de "poteaux-poutres". Il est donc important de la conserver au maximum.
Bar Exterieur
Salle de Bain
Accueil
Suite
Suite Exterieur
Bar Interieur
Bar Exterieur
Restaurant Interieur
Restaurant Interieur
Couloir
Chambre
客服
消息
收藏
下载
最近





























