查看完整案例


收藏

下载

翻译
Hospitality Design Project - Folding & Unfolding
/ˌɒrɪˈɡɑːmi/The Japanese art of folding paper into decorative shapes and figures.
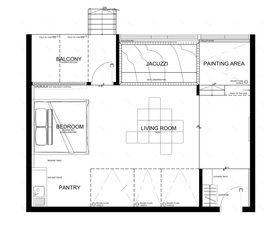
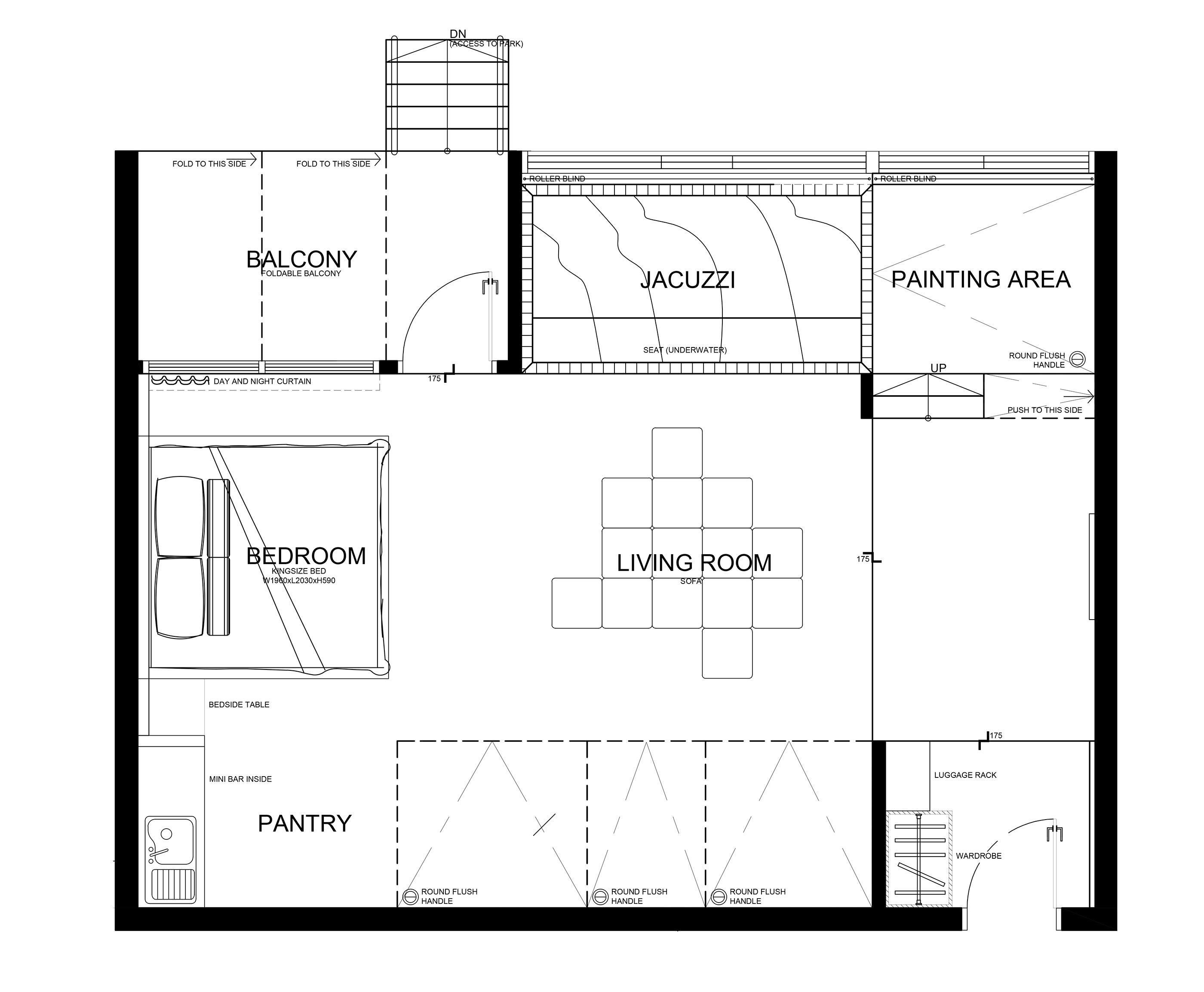
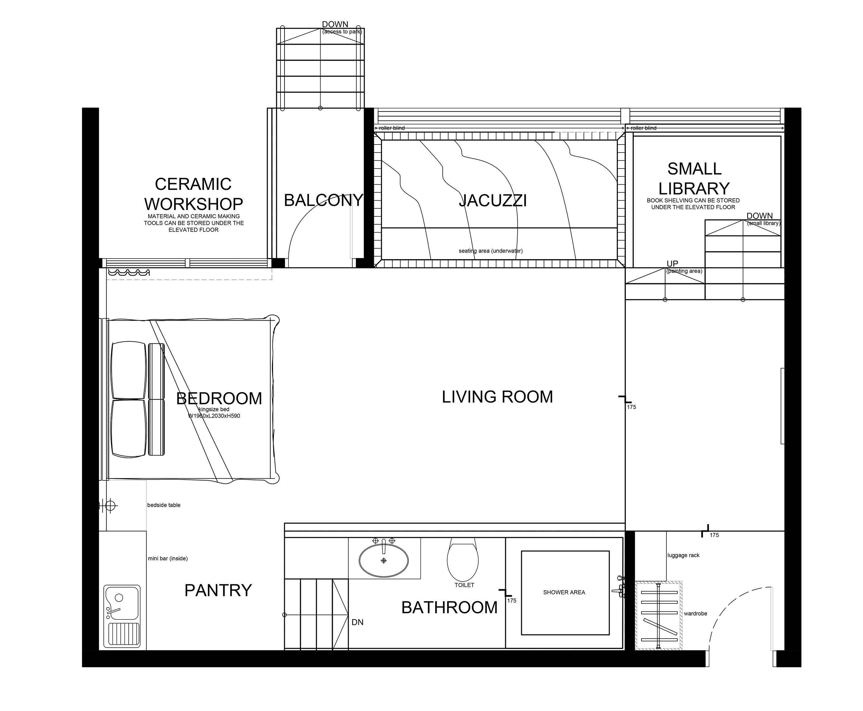
'Paper World'Imagine if our world, the space that we are living is a big paper. The paper that has been sculpted in a way to accommodate our needs. Every fold reveals new space, every crease make a new texture, and every edge defines a new form. This is the first initial step when this project is started.The reception area was designed by the idea of geometric shape that formed when the paper is fold, which can be seen on how the reception counter and the overhead structure was designed. Different material was used in the attempt to create a playful combination between shadow and light, creating contract between each layer.
While the guest room is more daring, exploring the possibilities of the space created by folding and unfolding the plane to create new usable space. This was done to add on playfulness in the space. Encouraging the guest to explore and unfolding the possibilities within the space itself. White and wood color that was used is inspired by the Japanese minimalism design.
客服
消息
收藏
下载
最近










