查看完整案例

收藏

下载
项目概览
Project Overview
LIKE BAR是一个所有四川人都懂的方言——“赖格宝”。之所以起这么一个名字是源于早期与甲方对接时业主提出的蛤蟆的概念,蛤蟆、酒吧,设计团队由此联想到了使用LIKE BAR这一谐音来契合这一概念。成都是一个充满着烟火气的网红城市,既不同于北上广这样的一线城市,又区别于广大西部地区。而二仙桥因为众所周知的原因,“去二仙桥要走成华大道”已是人尽皆知,这本身也是一个十分接地气的地方。JO STUDIO的设计理念将丰富而现代的材料与市井烟火气息融合在一起,最终把传统的“土”的本质与当代表达的“潮”融合在了一起。
“LIKE BAR” derives its name from a Sichuan dialect term “赖格宝” (lài gé bǎo, meaning “toad”), inspired by the client’s initial concept of integrating a “toad” motif with bar culture. The design team cleverly adopted the homophonic wordplay “LIKE BAR” to echo this narrative. Chengdu, a vibrant internet-famous city blending metropolitan energy with grassroots authenticity, stands distinct from first-tier cities like Beijing/Shanghai/Guangzhou while retaining its unique regional identity. Erxianqiao, widely recognized for the viral phrase “To reach Erxianqiao, take Chenghua Avenue,” embodies unpretentious local charm. JO STUDIO’s design philosophy fuses modern materials with neighborhood vitality, merging the earthy essence of tradition with contemporary “trendy” expressions.
设计叙事:赛博废墟中的重生
Design Narrative: Rebirth in Cyber Ruins
该项目位于成都市成华区二仙桥,是一个标准老小区社群商铺的翻修改造,将原有的三家店面合并改造为二仙桥首家威士忌收藏级酒吧,酒吧主入口面向城市次干道地勘路。由于项目处于老旧小区的街区,道路的步行尺度是十分舒适与亲切的,为了契合这样的特点,我们将整个酒吧的临街面都做成了可以旋转打开的落地玻璃门,夏季冬季时关上,春秋时节则可以全部打开,人们可以直接从任意位置自由的进出酒吧,也可以直接坐在窗下的台阶上,看着过往的行人与车辆,在快速的都市生活中小憩。这样我们通过打破原有场地固有的边界感,营造出更为亲切的社群氛围。
Located in Erxianqiao, Chenghua District, Chengdu, this project transforms three outdated storefronts in an old residential complex into the area’s first premium whisky collection bar. The main entrance faces Dikan Road, a secondary urban artery. Embracing the district’s pedestrian-friendly scale, the street-facing façade features fully rotatable floor-to-ceiling glass doors. These doors remain closed in extreme weather but open completely during mild seasons, allowing free-flowing access and inviting patrons to sit on stepped window ledges, observing passersby while savoring moments of respite in the fast-paced city. This approach dissolves spatial boundaries, fostering an inclusive community atmosphere.
▼一楼街景,Street view© 陈灏舟、冼科吉
设计团队以“后人类时代的废墟再生”为一楼及入口门头的母题,对应着“土潮”二字中的“潮”。我们将传统酒吧空间解构为一场未来考古实验:混凝土门头结合脚手架似的金属杆件以粗粝肌理模拟末世建筑残骸,刻意保留的浇筑痕迹与金属构件碰撞出时间侵蚀的氛围感;混凝土柱上的半透明阳光板拼接成光幕装置,仿若数据洪流穿透残垣断壁,形成虚实交错的数字幻境。
The design team anchored the ground floor and entrance with the theme of “Post-Human Ruin Regeneration,” interpreting the “trendy” aspect of “earthy-meets-avant-garde.” The space is deconstructed as a futuristic archaeological experiment: a raw concrete portal interlaced with scaffold-like metal beams mimics post-apocalyptic ruins, where intentional casting marks and metallic components evoke temporal erosion. Translucent polycarbonate panels embedded in concrete columns form light curtains, simulating data streams piercing through debris to create a digital phantasmagoria of虚实交织 (virtual-physical interplay).
▼一楼卡座区,First floor booth area © 陈灏舟、冼科吉
酒吧的焦点永远是吧台,平面上L型的吧台布局功能上兼顾了外送和内部的调酒吧台。同时调酒吧台的酒墙使用了简单的几何体块穿插,再搭配冷暖相交的灯光,一横一纵的体块构成并提升了酒墙的层次感和格调。
The bar’s focal point remains its L-shaped counter, functionally accommodating both takeout services and an internal mixology station. The backlit liquor wall employs minimalist geometric interplays, enhanced by warm-cool lighting contrasts that elevate spatial layering and sophistication.
▼一楼吧台,First floor bar © 陈灏舟、冼科吉
一楼吧台吧台近景,Close-up of the first bar bar © 陈灏舟、冼科吉
如果顾客既想享受舞台歌手带来的喧嚣,又想与相对嘈杂的人群保持一定距离,那么角落里的卡座在红色软膜灯光的照射下便分外的独具一格,顾客在这里既可以欣赏舞台的演出,又相对不受打扰,同时软膜散射下的红光将整个区域笼罩,无形中既增加了一定的边界感私密感,又增添了些许暧昧、迷幻的气息。
For patrons seeking proximity to live performances without immersion in crowds, crimson soft-glow booths in corners offer secluded vantage points. Diffused red light envelops these zones, crafting intimate boundaries while infusing an air of psychedelic ambiguity.
▼一楼舞台,First floor stage © 陈灏舟、冼科吉
这些矛盾美学既通过以上材料之间的冲突来表达,也通过室内空间冷暖色调的冲突来形成独特的视觉张力。亲切的暖色调呼应着烟火与市井气,契合着二仙桥的社群特点,冷色调的清冷则与潮流、科技、时尚相匹配。橙红色的暖色光源充盈在吧台、壁龛、酒桌与混凝土柱上,蓝色的冷光穿插在角落,冷暖相交的地方恰好是一楼舞台处,我们巧妙使用了红色和蓝色混合而成的紫色作为舞台的灯光,既彰显个性,又不失优雅。而这样的冲突贯穿于我们的项目之始终。
These contradictions manifest through material clashes and chromatic tensions: warm tones echo neighborhood vitality, aligning with Erxianqiao’s communal character, while cool hues resonate with tech-driven futurism. Amber-orange light suffuses the bar, niches, tables, and concrete columns, while cerulean accents pierce shadowed corners. At their intersection—the ground-floor stage—a blend of red and blue conjures regal purple lighting, balancing boldness with elegance. Such dialectics define the project’s core identity.
▼一楼灯具和音响细节,First floor lighting and sound details © 陈灏舟、冼科吉
有意义的生活,也需要无意义的调剂
Meaningful Living Demands Meaningless Diversions
设计团队从业主的角度去考虑经济问题,我们在策划阶段在一楼临街面设置了外摆区和外送区,并且建议业主在一楼的定价应该与二楼区分开来,一楼主要以聚人气和性价比消费为主。在通过角落里的楼梯来到二楼之后,绝对纯粹的酒吧场景才在顾客的眼前真正的展开——当夜幕降临,只有灯光可以照亮和重塑空间,二楼是LIKE BAR的高消费场所,拉丝铝板装置上赫然亮着橙红色的LIKE CLUB的灯箱,旁边装满威士忌的酒柜也凸显着这里的不同。
Addressing operational economics, JO STUDIO integrated a street-side patio and takeout zone on the ground floor, advising differentiated pricing between floors. The first level prioritizes accessibility and foot traffic, whereas ascending the stairway reveals the true essence of LIKE BAR’s nocturnal realm. At nightfall, light alone defines and reshapes space. The second floor, marked by an orange-red “LIKE CLUB” neon sign on brushed aluminum and whisky-laden cabinets, caters to premium experiences.
▼二楼吧台,Second floor bar © 陈灏舟、冼科吉
▼二楼酒柜,Second floor wine cabinet © 陈灏舟、冼科吉
▼二楼打卡区,Check-in area on the second floor © 陈灏舟、冼科吉
▼二楼打卡区细节,Details of the check-in area on the second floor © 陈灏舟、冼科吉
这里以U型的吧台作为平面的中心,包房等房间以及众多卡座都围绕它一一展开,每个地方都处在环形吧台的辐射范围内,这里相对安静,是朋友聚会畅谈抑或是享受酒精带来的麻醉的好去处。灯光膜让光成为一种弥散介质,金属表面的拉丝质感模糊了反射的光线,也模糊了真实空间,类似酒精的致幻作用,带来感官放松和快感。此时,空间仿佛失去了物理深度,去往纯粹且抽象的精神世界,这即是抽离的空间。
A central U-shaped bar anchors the layout, surrounded by private rooms and booths within its radiating influence. Here, muted conversations and alcohol-induced reverie coexist under diffused light membranes. Brushed metal surfaces scatter reflections, dissolving spatial clarity into an abstract, hallucinatory dimension—a “detached space” where physical depth yields to pure sensory abstraction.
▼二楼沙发,Second floor sofa © 陈灏舟、冼科吉
▼楼梯,Stairs© 陈灏舟、冼科吉
▼二楼灯具和窗户细节,Second floor light fixture and window details © 陈灏舟、冼科吉
▼卫生间,Toliet© 陈灏舟、冼科吉
▼户外雨景,Outdoor rain scene © 陈灏舟、冼科吉
像绝大多数建筑师一样,JO STUDIO一直在探索空间的更多可能,从场所、边界、叙事语言等去解构商业空间。没有了时代就褪去锋芒,没有了语言就掐灭萤光。像回到误解照相术的年代,你截取我身上光的切片,我坍缩成空间的残稿,而重逢便是一场暗房里的显影。有人总在追逐经世济民的大义,倘不寻些无用的乐子,倒显得这人生太过正经了。
Like most architects, JO STUDIO perpetually explores spatial possibilities through deconstructing commercial environments via site, boundaries, and narrative language. Without eras, edges dull; without language, luminance fades. As if returning to an age misapprehending photography—you capture slices of my luminescence, I collapse into spatial fragments, and reunion becomes a darkroom revelation. While some chase grand societal ideals, seeking frivolous delights reminds us that life need not always be so solemn.
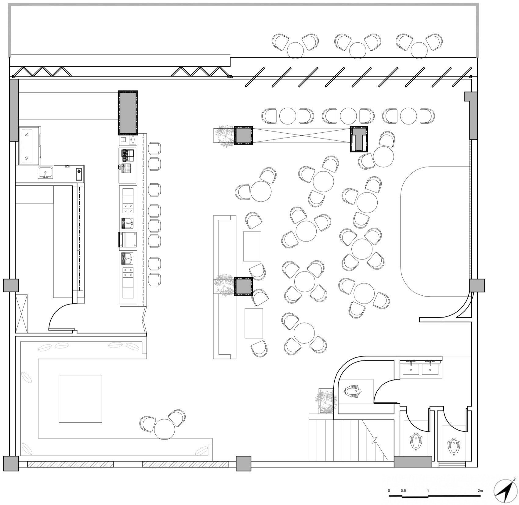
▼一层平面图,firstfloor plan© 奇偶创艺事务所
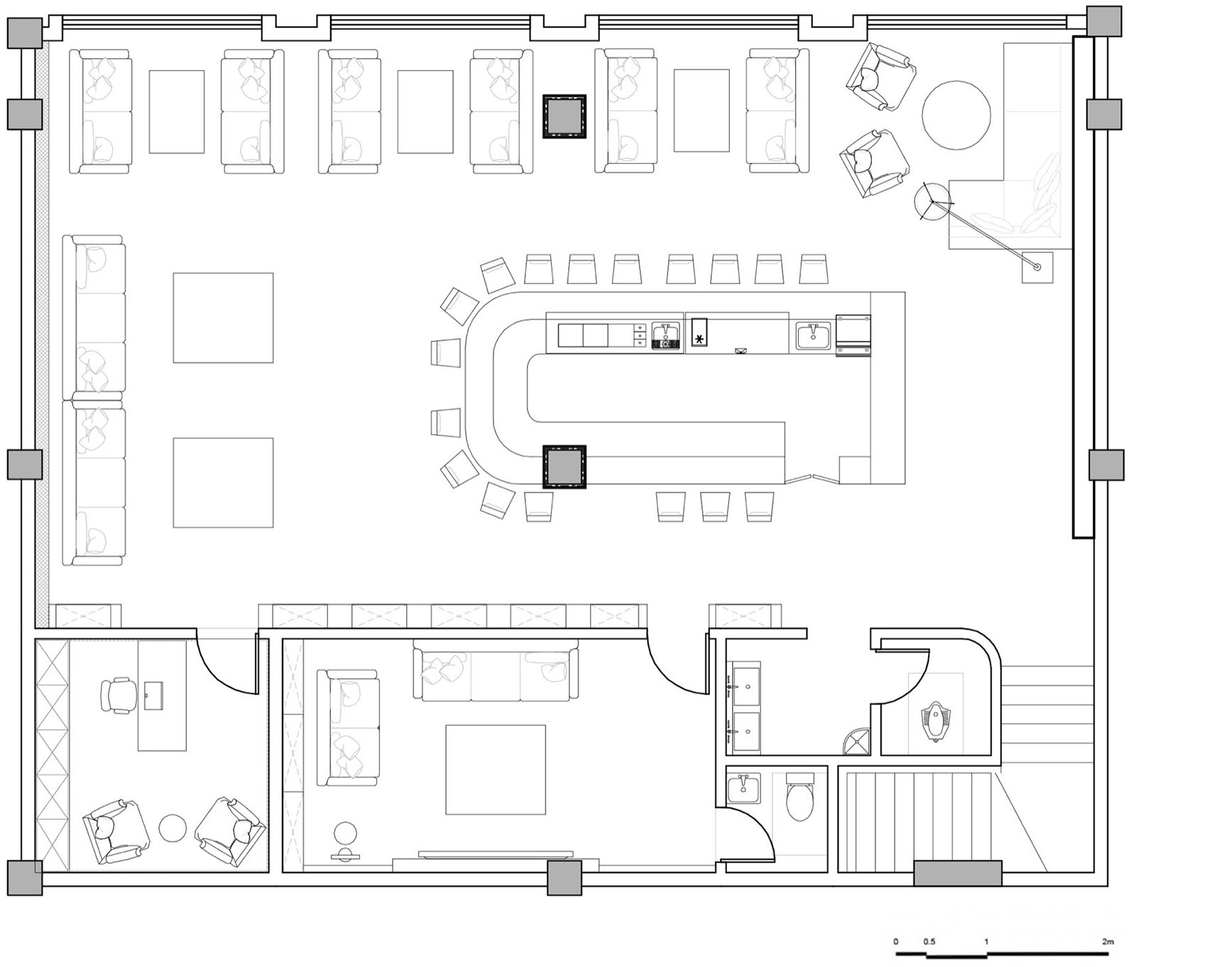
▼二层平面图,second floor plan© 奇偶创艺事务所
▼吧台构造,Bar structure © 奇偶创艺事务所
▼形象墙构造,Image wall structure © 奇偶创艺事务所
项目名称:LIKE BAR酒吧
项目类型:商业空间
设计方:奇偶创艺事务所(JO STUDIO)
商务经理:唐精
设计主创:冼科吉、陈灏舟
设计年份:2024年9月
完工年份:2024年12月
项目地址:成都市成华区地勘路1号附20
建筑面积:388㎡
摄影版权:陈灏舟、冼科吉
合作方:四川奇偶偶建筑装饰有限公司(施工方)、成都极象空间装饰设计有限公司(效果图)
客户:成华区蛤蟆洞穴酒吧
材料:混凝土、阳光板、304不锈钢、无框玻璃、矿棉板
品牌:大吉无框门(玻璃门窗)、富安建材集团(阳光板)、吉祥建材集团(铝板)
客服
消息
收藏
下载
最近




































