知末
知末
创作上传
VIP
收藏下载
登录 | 注册有礼

现代简约老房改善设计

2025/03/18 17:17:47
查看完整案例
微信扫一扫
收藏
下载
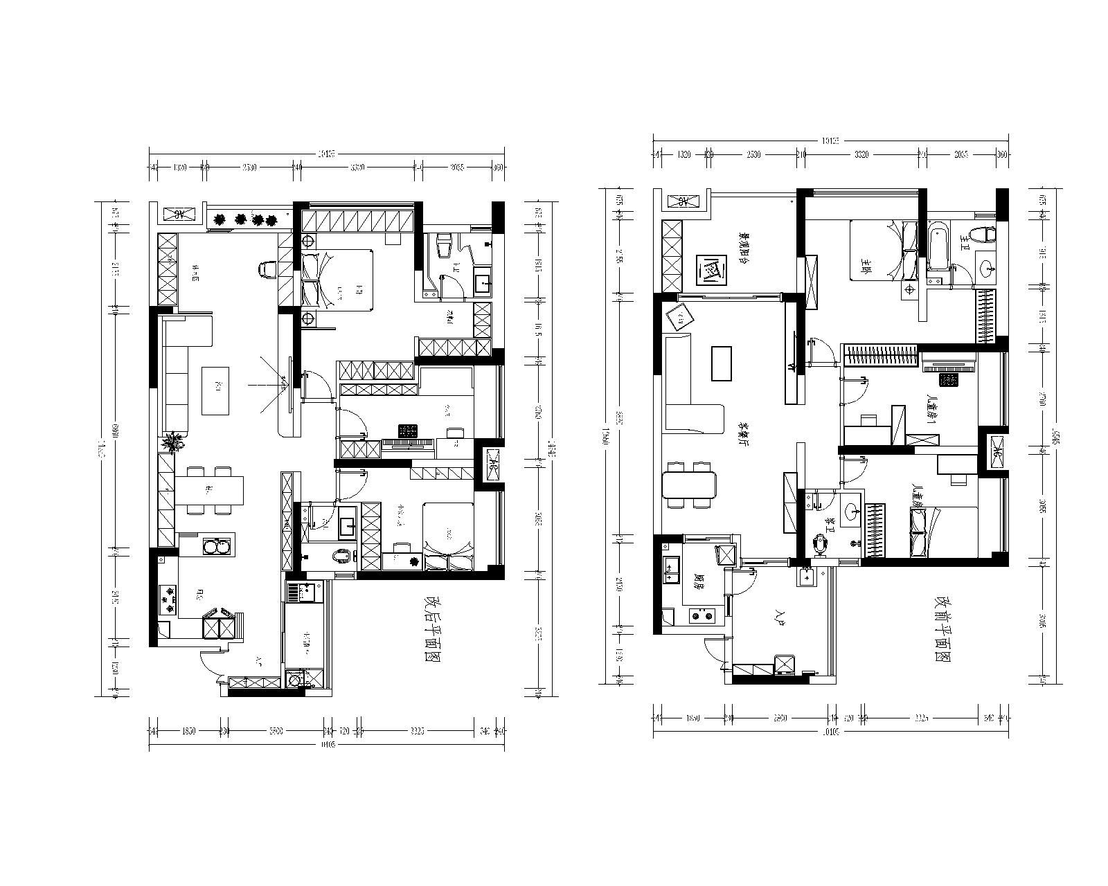
重庆改善型老房设计施工
现代简约老房改善设计-1
现代简约老房改善设计-2
现代简约老房改善设计-3
现代简约老房改善设计-4
现代简约老房改善设计-5
现代简约老房改善设计-6
现代简约老房改善设计-7
现代简约老房改善设计-8
现代简约老房改善设计-9
现代简约老房改善设计-10
现代简约老房改善设计-11
现代简约老房改善设计-12
现代简约老房改善设计-13
现代简约老房改善设计-14
现代简约老房改善设计-15
现代简约老房改善设计-16
南京喵熊网络科技有限公司 苏ICP备18050492号-4知末 © 2018—2020 . All photos and trademark graphics are copyrighted by their owners.增值电信业务经营许可证(ICP)苏B2-20201444苏公网安备 32011302321234号
客服
消息
收藏
下载
最近