查看完整案例

收藏

下载
F L Y ¢ D E S I G N
⊙
# 知时 #
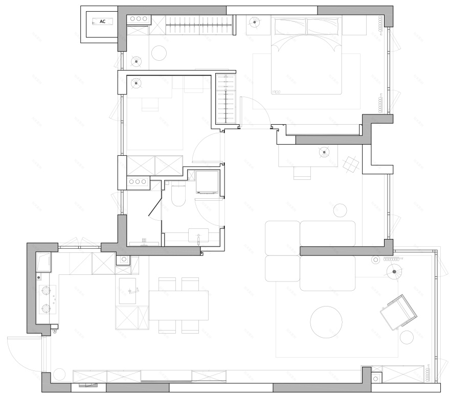
对生活节奏的精准把控,在喧嚣世界中寻得内心宁静的智慧,恰似午夜迷雾中挺立的灯塔,为生活指引方向探寻美好真谛。91m2的两室两厅足以承载着居者的四季三餐、内心的喜乐忧愁。与家人享天伦之乐、于自我小天地中书写自己的篇章,面面俱到的生活需求落地之后却不曾丢失空间感,刚需户型下的知时之居,邂逅理想小窝。
客厅 / Living Room
客厅 / Living Room
客厅 / Living Room
精简的落笔下呈现出的空间井然有序,奶茶色通刷席卷而来的温润与清冷的结构布局叙写着刚柔相济的空间故事。去除矫饰释放公共空间体量,阳台收入室内扩容空间感与客餐厨光感,闲坐沙发便可观都市风情与山峦绵延,霓虹霞光自然人文揽入眼眸,居家生活里乐得份闲散开阔的心境。
客厅 / Living Room
餐厨区 / Dinner & Kitchen
餐厨区 / Dinner & Kitchen
改封闭小厨房为开放式餐厨一体,在小体量空间下强化功能间的互助共生,思量家居生态塑造空间生命力,明亮通透的厨房愉悦使用者的日常,餐厅亦承担起厨房的备菜功能补足空间的紧凑,发掘小空间中的大能量。
餐厨区 / Dinner & Kitchen
餐厨区 / Dinner & Kitchen
餐厨区 / Dinner & Kitchen
餐厨区 / Dinner & Kitchen
入户区右侧靠墙排柜作为玄关收纳及客餐厅的公区收纳,物品得以妥善安放维护日常生活环境的整洁。底部黑色地柜延伸至客厅优化收纳性,开放收纳结合隐形收纳并以吊柜的形式展开,抹去大面积柜体带来的压迫感,有效兼顾有限空间下的功能与体感。柜体的上下黑白撞色为空间层次加码更具优雅与灵动之感。
餐厨区 / Dinner & Kitchen
餐厨区 / Dinner & Kitchen
餐厨区 / Dinner & Kitchen
书房 / Study
书房 / Study
沙发背后增设开放性书房,与客厅串联优化空间感,打破刚需户型狭小晦暗的刻板印象,开阔明亮的公区一改入户印象,此时家的形容词是明媚而爽朗的,自由灵动囊括着未来的种种可能。
书房 / Study
书房 / Study
书房 / Study
书房 / Study
主卧 / Master Bedroom
精于细节、简于形式,在细微之处雕琢彰显纯粹之美,在平静中唤起强烈的情感。主卧纯粹精简的构设完成居者对于家的期许,少即是多包罗万物,宁静安神心有所居。
主卧 / Master Bedroom
主卧 / Master Bedroom
主卧 / Master Bedroom
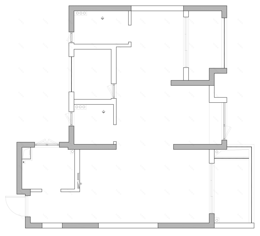
原始图
平面图
地址/杭州市江干区高德置地中心2号楼2单元1101室
谢谢分享
客服
消息
收藏
下载
最近



























