查看完整案例


收藏

下载

翻译
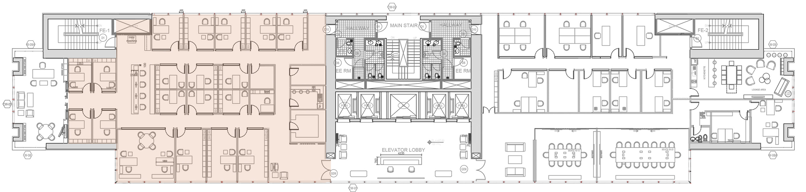
LAW FIRMAl Akeel Law Firm in Affiliation with Hourani & Associates EMPLOYEES OFFICESIN BRIEF:Client: Al AKEELLocation: 11th Floor, Alnaklah Tower, As Sahafah, Riyadh, Saudi ArabiaProject Area: 660 m2Completion: 2018Services: Design - Supervision - Furniture Supply
SAMPLE OF SHOP DRAWINGS & 3DS
客服
消息
收藏
下载
最近


















