查看完整案例

收藏

下载

翻译
The concept for this museum was to create interactive, experiential exhibits where visitors can understand the feelings of depression, anxiety, body dysmorphia, and bullying. The museum’s goal is to offer hope and an understanding of mental health issues.
Presentation Boards
Mood Board-Process Work
Research Poster-Process Work
Exhibit Conceptual Images and Initial Layout-Process Work (final floor plans and some exhibits slightly altered)
Site Plan
First Floor Plan
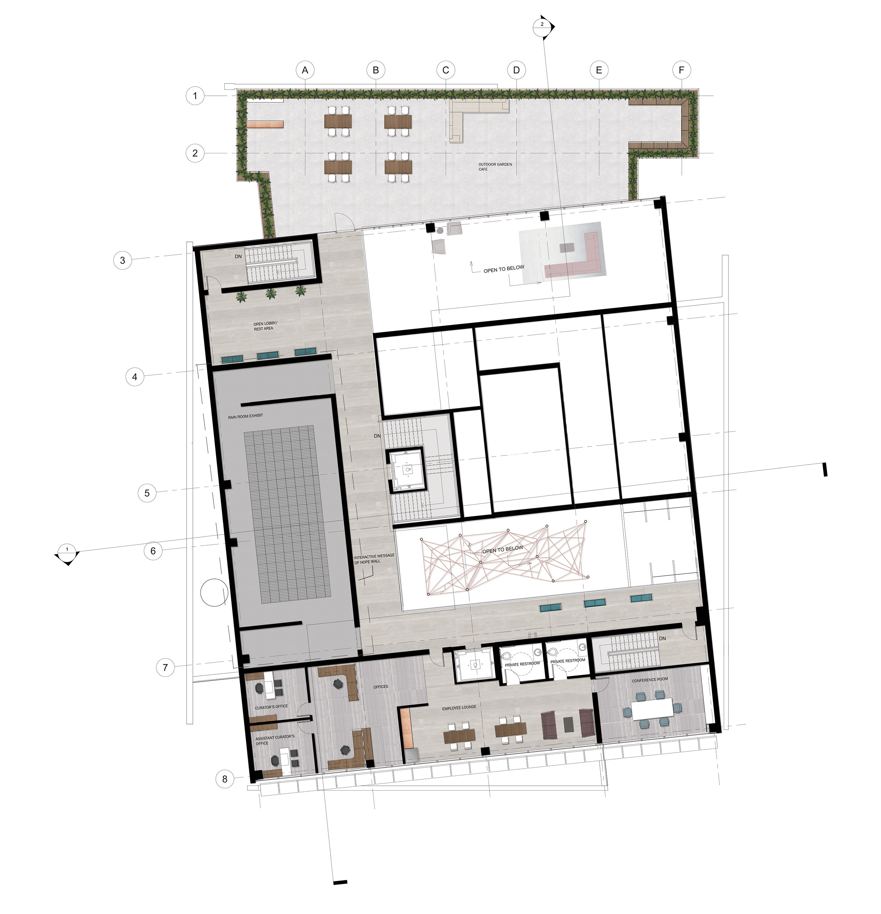
Second Floor Plan
First Floor Reflected Ceiling Plan
Second Floor Reflected Ceiling Plan
Lobby Perspective (Modeled in Revit, Rendered in 3DS Max, Post Processing in Photoshop)
Mirror Room Exhibit Perspective (Modeled in Revit, Rendered in 3DS Max, Post Processing in Photoshop)This exhibit is meant to show the effects of body dysmorphia. The mirrors along the walls are distorted so people's perception of themselves are altered- just as how people with body dysmorphia see something that doesn't look like them in the mirror. Mirrors on the floor and ceiling along with the lights are meant to be overwhelming and slightly uncomfortable for visitors..
Section 1
Section 2
Mirror Room Exhibit Elevation
Lobby Elevation
Rain Room Exhibit (by Random International) Section-ElevationIn this exhibit, originally by Random International, water is filtered from a cistern and cycles through the wall into the ceiling grid system. The ceiling has 3D kinetic sensors installed to track movement which prevents water from falling directly on the person below, but still allows it to fall all around them.
Rain Room Exhibit Detail
Rain Room Exhibit Enlarged Plan Detail
Rain Room Exhibit Enlarged Reflected Ceiling Plan Detail
Conceptual Image of Bullying and Abuse ExhibitEdited to represent the transition space in the main gallery which is the bullying and abuse exhibit- In this space, bullying and hurtful words are being projected along the floor and casting a silhouette of the person's body on the wall so that they see themselves made up of only these words. The headphones people wear throughout the exhibits will play audio in their ears of people whispering these hurtful words so they fully experience what it's like to be bullied.
Wood Model
Materials
客服
消息
收藏
下载
最近





























