查看完整案例

收藏

下载
Taste Seoul位于合肥新粮仓文化商业合集,粮仓曾经承担着粮食的收购、储存、加工和贸易等多种功能。2024年在城市更新大背景下,新粮仓斑驳的墙体仍铭刻着收购、储粮的工业记忆拙朴印迹,将粗粝粮仓转化为承载跨文化餐饮的精妙容器,希望在全新的文化氛围中诞生出差异感、价值感、跨文化融合出的餐饮样貌,重新洞察食物本身价值。
Taste Seoul Situated within Hefei’s Xin Liang Cang cultural-commercial complex—a repurposed granary preserving its industrial legacy of grain procurement, storage, and trade—the 2024 revitalization retains the structure’s weathered walls etched with raw, utilitarian imprints. This adaptive reuse transforms the gritty industrial relic into a refined vessel for cross-cultural gastronomy, where spatial authenticity redefines food’s intrinsic value through deliberate contrasts: textured concrete coexists with fluid timber accents, and heritage patina dialogues with minimalist interventions. The design orchestrates a culinary narrative that balances cultural hybridity and sensory resonance, embodying Seoul’s dual spirit of tradition and modernity.
▼项目实景,Project reality © 穆彪
在室外的上下两层,通过材质与色彩区分,以木质元素和松绿色做为点缀,形成视觉反差感,一些自然的原始材料(绿树、石块、粗粝、原始清水)置于空间各个角落,皆在创造一种反差感和融合感。▼门头轴测图,Storefront Axonometric Drawing © 向生设计事务所
The two-level exterior space employs material and chromatic contrasts, featuring wood elements accented with pine green. Natural raw materials – greenery, stone blocks, rough textures, and untreated water features – are strategically placed throughout to create dynamic tension between opposition and harmony.
▼门头,Storefront © 穆彪
带有历史文化特性的门檐设计,将常用的木材为主要的结构材料,搭配黑灰色的色调,呈现出沉稳质朴的感觉,线条流畅且简洁,绿色横梁使人眼前一亮,在离石传统建筑中也能感受到与自然和谐共生的设计理念,弯曲的钢面与木架的交错,结合现代、自然与传统,在视觉上更显碰撞与层次,且保持了一定的通透性、让自然光线能够部分透入、增强了空间的明亮与开放感。
▼空间拆解图,Spatial disassembly diagram © 向生设计事务所
The historically-informed eave design employs conventional timber as primary structural material, harmonized with charcoal-gray tones for grounded simplicity. Clean linearity gets punctuated by vibrant green beams, echoing traditional Lishi architecture’s nature-coexisting philosophy. Interwoven curved steel surfaces and timber frameworks blend modernity, tradition and natural elements, creating visual tension through layered transparency that filters natural light to enhance spatial luminosity and openness.
▼外立面夜景,Facade night view © 穆彪
外摆分布在室外侧方,从室外楼梯上至二层。用餐区与厨房、办公区上下划分。
Outdoor seating cascades along the building’s flank, ascending via exterior stairs to the upper level. Functional zones vertically separate dining areas from kitchen and office spaces.
▼吧台,Bar © 穆彪
悬挂的Taste招牌,在重工的场景中寻找到一丝轻盈感,吧台的台身粗糙且不规则的表面,如火山石般,增强触感与视觉立体感。
The suspended Taste sign introduces ethereal lightness within industrial context. The bar counter’s volcanic stone-like surface, with its rugged irregularity, enhances tactile and visual depth.
▼吧台侧面用餐区,Bar side dining area © 穆彪
▼中心用餐区,Central dining area © 穆彪
▼植物花卉,Plants and flowers © 穆彪
▼空间氛围,Space atmosphere © 穆彪
植物花卉在Taste Seoul中随处可见,现代都市生活节奏快、压力大、自然元素的引入能够创造出一种回归自然的氛围,高低错落的植物布置与空间品牌元素相互呼应,形成和谐统一的整体。
Ubiquitous botanical installations counteract urban haste and stress through nature-immersive environments. Terraced plant arrangements dialog with spatial branding elements, coalescing into unified organic compositions.
▼空间细部,Space details© 穆彪
▼项目区位,Project location © 向生设计事务所
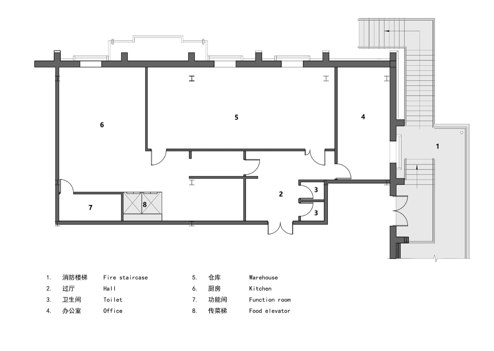
▼一层平面图,Ground Floor Plan © 向生设计事务所
▼二层平面图,Upper Floor Plan © 向生设计事务所
项目名称:Taste Seoul·创意韩国料理
项目类型:餐饮空间
设计公司:向生设计事务所
主创设计:王华丽
设计团队:徐佩、刘诗颖
灯光设计:光河照明设计
完成年份:2023.12
项目地址:中国 · 安徽省合肥市蜀山区江西路338号新粮仓文化商业合集项目17号仓
建筑面积:406㎡
主要材料:艺术涂料、老船木、石材、瓷砖、花艺植物、金属不锈钢
项目摄影:穆彪
摄影版权所有:©穆彪
设计图纸版权所有:©向生设计事务所
Project Name:Taste Seoul·Creative Korean cuisine
Project Type:Catering Space
Design Company:Reborn Design
Leader Design:Wang Huali
Design Team:Xu Pei、Liu shiying
Lighting Design:Glowho
Year Finished:2023.12
Project Address:No. 17 Warehouse, New Granary Cultural and Commercial Collection Project, No. 338 Jiangxi Road, Shushan District, Hefei City, Anhui Province, China
Project Area:406㎡
Main Material:Artistic paint, old ship wood, stone, tile, floral plants, metal stainless steel
Photography:Mu Biao
Photo Copyright:©Mu Biao
Design Drawings Copyright:©Reborn Design
Company Website:
客服
消息
收藏
下载
最近



























