知末
知末
创作上传
VIP
收藏下载
登录 | 注册有礼

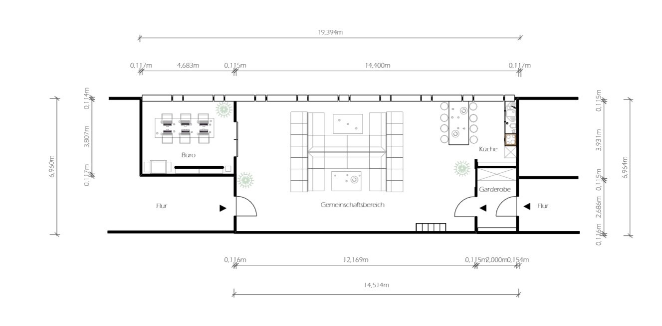
《新教育-- 新空间》教师休息室设计

2016/12/19 03:25:17
查看完整案例
微信扫一扫
收藏
下载
翻译
Innenarchitektur"NEUE LEHRE-NEUE RÄUME"MARION-DÖNHOFF-SCHULEENTWURF: LEHRERZIMMER (Umgestaltung)Hanan Al-Akram
《新教育-- 新空间》教师休息室设计-1
《新教育-- 新空间》教师休息室设计-2
《新教育-- 新空间》教师休息室设计-3
《新教育-- 新空间》教师休息室设计-4
《新教育-- 新空间》教师休息室设计-5
《新教育-- 新空间》教师休息室设计-6
 ©Hanan Al-Akram
南京喵熊网络科技有限公司 苏ICP备18050492号-4知末 © 2018—2020 . All photos and trademark graphics are copyrighted by their owners.增值电信业务经营许可证(ICP)苏B2-20201444苏公网安备 32011302321234号
客服
消息
收藏
下载
最近