查看完整案例

收藏

下载

翻译
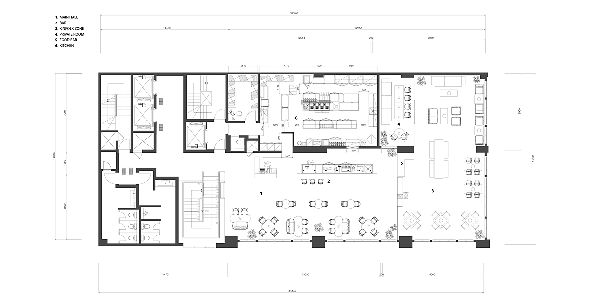
FAYE AND SUMMER / 2017Creative Director : Joongho ChoiDesign Team : Miran Jeong, Dasom OhIndoor Gardening : Style JieumConstruction : WycoffCategory : Interior , Branding IdentityPhotogrphy by NodlabLocation : 35, Hyowon-ro 235beon-gil, Paldal-gu, Suwon-si, Gyeonggi-do, Republic of KoreaClient : Alex 72 Hotel-FAYE AND SUMMER is a restaurant located on the 2nd floor of ALEX 72HOTEL inIngye-dong, Suwon, Korea. JOONGHO CHOI STUDIO participated ininterior, furniture, and branding design projects of the space of the restaurant.The space is divided into three main areas.The first area is a dining hall where the natural lighting pours through tall glass windows.The dining hall is located next to the entrance so that it can maximize the first impression and atmosphere of the space with bright sunlight. Materials, colorsand finishes have been chosen precisely to express a modern, but comfortable, environment where people can relax and enjoy their brunch and drinks.The next area is a second dining hall locatedone level higher, providing a warm environment. A comfortable and natural atmosphere can be found by placing wooden furniture, flowers, and plants in various ways around the area.The contrast between these two dining halls is the main interior concept of FAYE AND SUMMER.The third area is a private space for group guests.
-The first dining area of FAYE AND SUMMER which has a lot of natural lighting through tall glass windows.GISELE CHAIRS by JOONGHO CHOI STUDIO are displayed in the space.
-The second dining area is decorated with flowers and plants by STYLEJIEUM. The wooden furniture matches with the wooden floor so that it makes the space much more comfortable and cozy.
-The third dining area is a wide-open space where up to twelve-people can enjoy meals together.
-FAYE AND SUMMER is located on 2nd floor of ALEX 72 hotel in Suwon, Korea.
客服
消息
收藏
下载
最近



















