查看完整案例

收藏

下载
一、项目源起
Project background
在湖北省大冶市保安镇沼山村,丘陵环绕的沼山水库的大坝脚下,坐落着一座废弃的高岭土炼土厂。它建于2000 年前后,巧妙地利用场地的高差,倚坡而建,红砖为墙、樟子松为屋架,支撑起了一个大跨度的高空间。时过境迁,产业迭代,土厂废弃,屋架与外墙都部分损毁处于危房状态。2020年,在保安镇打造自然景区的过程中,中规院村镇所的规划团队建议当地政府将其改造为服务村民和游客的公共建筑,土厂迎来了重生的契机。
▼沿山俯瞰建筑南侧,Overlooking the south side of the building along the mountain© 褚英男
▼沿山俯瞰建筑南侧,Overlooking the south side of the building along the mountain © 褚英男
▼北侧水坝俯瞰日景,Aerial view of the north side dam during the day © 高唯芷
▼北侧水坝俯瞰夜景,Aerial view of the north side dam at night © 高唯芷
“桃里”西临沼山水库的堤坝草坡,南侧是湖北丘陵常见的山丘林地,北侧隔着农田能看到对面的村庄。因为是土厂,一方面考虑到曾经的工业生产,远离村落,孤零零坐落在水坝脚下。另一方面厂房改造前是可以想见的封闭的姿态。改造设计的出发点是将原本和村落格格不入的厂房,打破原有的孤僻状态,将自然环境引入室内,将建筑融入自然,为村民和游客提供既可享受田园的自然野趣,又能体验耕读研学的人文乐趣。
▼改造前北侧俯瞰外景,Aerial view of the north side before renovation © 高唯芷
▼改造前外景,Exterior view of the southeast side before renovation © 高唯芷
The project is located at the foot of the Zhaoshan Village reservoir dam, focusing on the sustainable revitalization of an abandoned clay refining factory. The design emphasizes local materials and craftsmanship, utilizing natural conditions and regional resources to develop sustainable design strategies and appropriate vernacular technologies. By adaptively reusing on-site recycled materials, it seamlessly integrates into the rural context while fostering a high-quality, multifunctional public space for villagers and visitors.
▼建筑北侧桃里农场外景,North side of the building – Taoli farm exterior view© 褚英男
▼建筑北侧桃里农场外景,North side of the building – Taoli farm exterior view© 褚英男
▼雨后桃里,Taoli after the rain © 鄢小龙
▼沼山厅日景,Zhaoshan Hall during the day
从多次乡村实践的经验总结来看,乡村营建 “怎么做” 远比 “长啥样” 更为关键。在着手设计之前,团队首先做了充分的调研功课,详细记录老房子的空间形态和尺寸,解读和探究原始的材料、结构和建造逻辑。老土厂主要建造材料是红砖和樟子松原木,虽然废弃多年屋顶结构和外墙都处于危房状态,但结构和建造秩序感极强,木屋架单元虽然简陋,却通过重复阵列,气势很足,视觉效果震撼,充分体现了乡村建筑的传统智慧,用最省的料,造最大的屋。▼北侧外景,North side exterior view © 褚英男
▼北侧梯田,North side terraces © 褚英男
▼活动中的桃里,Taoli during an event © 鄢小龙
此外,设计团队走访周边村落,见识了当地泥瓦匠在田埂池塘边砌砖垒石的精湛手艺。名列湖北省非遗目录的大冶石雕,带动了当地的石材加工产业,而工厂中丢弃了大量山体开采的废弃石料、石板加工后的剩余边角料,以及用作包装的废弃木料。在拜访刺绣大师刘小红时,设计团队看到了她收藏的“百家布”绣品,边角碎料在巧手拼织下变成了别具审美格调的新衣裳。这些看似与建筑无关的质朴传统生活中精细对待资源的理念,恰恰是设计落笔前的启发和酝酿。▼废弃石料调研,Research on abandoned stone materials © SUP Atelier
▼周边废弃材料调研,Research on surrounding abandoned materials © SUP Atelier
This project demonstrates a sustainable local construction framework in rural areas through resource circularity. Materials such as rubble retaining walls, red brick walls, timber frames, industrial equipment, and quarry waste were repurposed under design guidance. This reuse was crucial in shaping the primary interior spaces and significantly reduced environmental impact during the construction process. The renovated steel and wood structure forms a terraced roof, with numerous operable clerestory windows and north-facing skylights that create a prototype for natural lighting and integrated ventilation, bringing fresh air into the spaces. The “room within a room” concept optimizes interior space organization, reducing reliance on HVAC systems in rural settings while meeting the diverse needs.
▼北侧梯田与建筑外景,North side terraces and exterior view of the building © 褚英男
▼南侧广场,South plaza © 孙菁芬
▼南侧外景,South side exterior view © 褚英男
▼首层商业单元及冷巷空间,Ground floor commercial unit and cold alley space © 褚英男
二、促进自然通风采光的屋架结构升级
Structure upgraded to promote natural ventilation and lighting
土厂原结构屋架,是由12m跨等腰三角屋架和7.5m跨的直角三角屋架组成的连续木构单元,南北两侧落在砖墙头,中间由梁拖砖砌短柱支撑。桁架材料为樟子松原木,裂缝较多,靠钢丝绑扎加固,已经无法稳定承重,必须替换。本次更新设计,基本沿用了原来的柱网和三角屋架形态,在分析受力后对其升级,拉杆用钢螺杆,压杆用木构,同时增加了纵向的连接,形成了受力合理、建构逻辑清晰又延续了场地记忆的屋架结构。
▼改造前室内空间,Interior space before renovation © 高唯芷
原有屋顶几乎完全封闭,为了优化大跨进深空间的采光通风,在三角木屋架顶部增设了台阶状钢龙骨,形成层层迭落的坡屋顶和侧高窗,使建筑第五立面具有了更人性化的尺度;屋檐下的侧高窗不仅为室内引入漫射光,同时最高处的侧高窗可以电控开启,既有利于过渡季室内大空间的热压通风,又能用于室内的自然排烟。小跨度的直角三角屋架区域,因北坡屋面阳光直射少,故采用了构造更简洁的亮瓦采光屋面。用更少的二次构造和屋顶高度代价,换取更简洁均匀的室内光环境。
▼自然采光,Natural Daylighting © SUP Atelier
▼自然通风,Natural Ventilation © SUP Atelier
The architectural form and environmental performance are harmoniously unified. The renovated steel and wood structure forms a terraced roof, with numerous operable clerestory windows and north-facing skylights that create a prototype for natural lighting and integrated ventilation, bringing fresh air into the spaces. The “room within a room” concept optimizes interior space organization, reducing reliance on mechanical systems in rural settings. This approach achieves a comfortable environment with varying levels of comfort, reducing energy consumption for building operations while meeting the diverse needs of public halls and various independent rooms.
▼西侧山墙与缓坡地形,West side gable and gentle slope terrain © 褚英男
▼西侧山墙外景,West side gable exterior view © 褚英男
▼西侧砖台阶,West side brick steps © 褚英男
▼沼山厅日景,Zhaoshan Hall during the day
▼东南角局部,Southeast corner detail © 褚英男
三、多层级空间缓冲的可持续建筑原型
Sustainable building prototype with multi-level space buffer
老土厂内部原本是适应生产需求的整体大空间。为满足面向村民和游客的多样化需求以及未来运营使用的灵活性,改造后需要设置可举办各类活动的多功能高大空间,也需要配套服务的小空间,比如餐厅、研学教室、特产商店、咖啡厅、服务办公等。▼场地剖透视,Site Section Perspective © SUP Atelier
The architectural space is designed to accommodate diverse uses, with interior spaces supporting functions such as academic conferences, theater performances, farm education, specialty trading, and dining services, while the outdoor plaza can host various village gatherings, community banquets, and other public events. Solar photovoltaic panels, donated by the community, are installed on the roof to meet the basic electricity needs of all types of activities.
▼北侧屋檐及户外平台,North side eaves and outdoor platform© 褚英男
▼北侧屋檐及户外平台,North side eaves and outdoor platform© 褚英男
▼北侧屋檐下,Under the north side eaves © 褚英男
▼北侧研学平台,North side study platform
▼二层看连桥及研学单元房中房,Second floor view of the bridge and study unit house-in-house © 褚英男
▼二层票务大厅,Second-floor ticket hall© 褚英男
▼特色展厅日景自然采光,Feature exhibition hall natural daylight© 褚英男
▼二层票务大厅,Second-floor ticket hall © 褚英男
▼二层票务大厅南望,Second-floor ticket hall looking south © 褚英男
▼二层票务大厅南望,Second-floor ticket hall looking south© 褚英男
▼首层南侧冷巷空间,Ground floor south cold alley space © 褚英男
设计通过“房中房”的模式,将小空间嵌入大空间缓冲层中,避免常规的隔墙到顶的空间划分方式对既有木屋架结构和空间感受的干扰。“房中房”模式也有利于实现室内环境的分区、分级舒适度控制,减少供热制冷时间和空间需求。小空间设置独立控制的空调,保证极端天气下的内部热舒适要求;缓冲层则优先依靠自然通风进行调节,在冬夏季通过壁扇和局部近人区域空调提供针对性的采暖制冷,实现舒适与能源效率的平衡。“房中房”的内部围护界面与外围护结构的性能不能相比,于是小空间在一定程度上成为了缓冲层的冷热源:夏天是“冷库”,冬天是“暖炉”。缓冲层同时又是房中房的屏障,让它们不用在冬夏两季直面户外极端的气候。这就形成了多层级空间缓冲的空间原型。
▼材料回用策略,Material Reuse Strategy © SUP Atelier
这一策略也让建筑的不同空间特质与不同热环境设计模式对应起来——开敞的“沼山厅”,首层南侧特色商店与毛石挡墙之间的“采光冷巷”,二层平台上的接待室,开放的票务大厅,以及连桥下的玻璃屋“耕读课堂”。从空间原型发展出差异化的空间模式,在满足环境和能源效率的同时,形成了生动的空间节奏和体验。
Overall, this project employs appropriate rural technologies to transform abandoned industrial facilities into a community, creating a building that serves as a low-carbon model throughout its lifecycle in a rural setting.
▼特色展厅夜景-通风幕墙,Feature exhibition hall at night – ventilated curtain wall © 褚英男
▼首层研学单元房中房,Ground floor study unit house-in-house © 褚英男
▼首层研学单元房中房,Ground floor study unit house-in-house © 褚英男
▼首层走道空间,Ground floor corridor space © 褚英男
▼二层票务大厅夜景,Second-floor ticket hall at night © 褚英男
▼北侧特色展廊夜景,North side feature gallery at night © 褚英男
▼特色展厅夜景,Feature exhibition hall at night © 褚英男
▼特色展厅夜景,Feature exhibition hall at night© 褚英男
▼特色展厅夜景,Feature exhibition hall at night© 褚英男
▼沼山厅首层夜景,Ground floor of Zhaoshan Hall at night © 褚英男
▼沼山厅夜景,Zhaoshan Hall night view© 褚英男
▼沼山厅内景夜景,Interior night view of Zhaoshan Hall© 褚英男
▼沼山厅日景,Zhaoshan Hall during the day © 褚英男
▼沼山厅内景夜景,Interior night view of Zhaoshan Hall© 褚英男
▼沼山厅内景南侧,Interior view of Zhaoshan Hall south side © 褚英男
四、全生命周期内的环境效益
Environmental benefits throughout the life cycle
建筑空间原型整合了各项自然资源使用的策略。从运行模拟来看,60.4%的室内空间用自然通风结合电扇实现舒适度。而屋面结构的改造极大地提升了室内自然采光质量,75%的区域在日间能够完全依靠自然采光满足功能需求。为降低乡村公建的运营成本和能耗,调节乡村末端电网末端稳定性,建筑在南侧屋面上设置了适量光伏,结合深浅灰金属屋面设置了100㎡深灰色碲化镉光伏板,装机容量15.8kWp,年发电量15万度,可满足无特殊活动时日常的能耗需求。
▼房中房模式-局部空调+自然通风,Room-in-Room Model – Localized Air Conditioning + Natural Ventilation © SUP Atelier
▼过渡季自然通风,Natural Ventilation in Transitional Seasons © SUP Atelier
The holistic design approach is the key principle of this project to achieve sustainability, with thoroughly unpacking existing conditions. We invested significant effort in understanding current resources, the lifestyle patterns of the surrounding residents, recyclable materials nearby, and the local climate. This analysis helped us formulate feasible renovation strategies tailored to the rural context.
▼沼山厅使用状态下日景,Zhaoshan Hall in use during the day © 高唯芷
▼沼山厅使用状态下日景2,Zhaoshan Hall in use during the day 2 © 高唯芷
▼沼山厅二层东望日景,Second floor of Zhaoshan Hall looking east during the day © 褚英男
▼特色展厅日景自然采光1,Feature exhibition hall natural daylight 1 © 褚英男
▼沼山厅内部,Zhaoshan Hall interior view during the day
▼南侧采光通风冷巷日景,South side daylighting and ventilation alley during the day © 褚英男
▼二层景观阳台,Second-floor landscape balcony © 褚英男
五、材料循环的乡土实践
Local practice of material recycling
由于废弃多年,原建筑外墙砂浆品质低、空鼓率高。但拆除过程中,设计团队发现这些红砖外表虽显陈旧,但质量上乘,甚至优于新砖,于是设计团队建议施工方将回收老砖与新砖搭配砌筑。为了解决新老砖的尺寸微差和部分新砖有黑疤瑕疵的问题,建筑师与工匠一同在现场试验砌筑方式,研究出两眠一斗的红砖空斗加气块填充的复合墙体做法,通过红砖立面肌理的条件,消化了新砖老砖差异问,又让新砖中的次品砖物尽其用。
▼砖结构细节,Brick Construction Detail © SUP Atelier
▼清水砖墙砌筑详图,Exposed Brick Wall Construction Detail © SUP Atelier
土厂首层南侧原有一片毛石挡土墙,改造时考虑到其结构性能不足,且时常出现的渗水问题,设计团队决定从周边回收石材开采过程产生的碎石,请当地石匠在旧毛石墙上手工砌筑新墙,与原有毛石墙植钢筋固定。加固后的毛石墙厚度增加,结构性能和防水防潮性能显著提升。
▼活动中的北侧夜景,North side night view during an event © 鄢小龙
▼特色展厅与房中房日景,Feature exhibition hall and house-in-house during the day © 高唯芷
▼北侧耕读平台使用状态下日景,North side farm reading platform under the sun view © 高唯芷
▼二层票务厅使用状态下日景,Second-floor ticket hall in use during the day © 高唯芷
▼二层票务厅使用状态下日景2,Second-floor ticket hall in use during the day 2 © 高唯芷
▼耕读平台上公共活动,Public activities on the farm platform © SUP Atelier
南侧广场是老土厂开阔的装卸场地,当地政府和运营团队希望它可以作为承载多种活动的乡村广场,解决人流聚集的活动需求。设计团队将边石材厂的边角废料用作了南广场的地面铺装。整个广场铺装的过程,既有建筑师的控制,又有匠人的即兴发挥。为营造近人尺度的细节,设计团队用自由曲线将广场划分为 2 – 4m 宽的条带,并根据石材废料材性,采用两种纹样间隔铺装:条状边角料水平拼贴,工匠根据条带宽窄能够徒手掰断长料铺砌;多边形片状碎料则裂纹式拼贴,形成独特的地面肌理。此外,石刻厂打洞产生的小圆柱废料用于勾勒绿地中步行砾石道边界,使景观更具趣味性。
▼材料运输路径-1(结构+表皮),Material Transport Route 1 (Structure + Envelope) © SUP Atelier
▼材料运输路径-2(内装设备+景观场地),Material Transport Route 2 (Interior Equipment + Landscape Site) © SUP Atelier
The environmental sustainable design strategies improve indoor comfort and adapt to new functions, including existing rubble retaining wall, brick walls, site level difference, and structural layout and introducing new layered steel-timber roof structure. The use of a “layered” comfort strategy with zoned heating significantly reduces construction and operational costs and energy consumption under acceptable comfort conditions.
▼使用后水坝俯瞰,Aerial view of the dam after use © SUP Atelier
▼使用后桃里农场,Taoli Farm after use © SUP Atelier
▼平台使用后北侧夕阳,Sunset on the north side after platform use © SUP Atelier
▼通风幕墙外耕读平台上休闲活动,Leisure activities on the farm platform outside the ventilated curtain wall © SUP Atelier
▼桃里咖啡,Taoli Coffee © SUP Atelier
老土厂原有的樟子松木桁架现状情况较差,无法继续作为主体结构构件,拆除后用作景观构件降级循环利用。此外,建筑室内保留了一台老土厂的加工设备,成为具有工业气息的雕塑景观。户外的黏土筛滤设备经改造后用作室外消防水箱,它的金属外壳经过创意涂鸦,成为“桃里”全新的对外标识。
有效的材料回用,需要通过充分的在地调研掌握周边有哪些物质材料是可尽、值得用,也需要设计创新,探索如何把它们用得有趣又恰如其分。为了实现更得体的“物尽其用”,对现场和周边环境的深入了解,以及对材料特性,加工方法,匠作过程需要有全面的认知,才能让整个物质材料回收和再利用的过程,在有限的造价、人工和施工周期等限制因素下,真正的发挥积极作用,同时带来综合性环境效益。
▼废弃石料的景观利用,Landscape Utilization of Abandoned Stone Materials © SUP Atelier
作为乡村“存量工业危房”改造更新为“公共服务建筑”的一次尝试,我们的每一个设计出发点和决策因素都离不开对社会、经济和环境的反思。沼山水库堤坝下的“桃里”村民中心将山林、农田和村庄间的阳光、微风和景色融入建筑,通过可持续建筑设计理念为村民和游客营造高品质的乡村多功能公共空间。
The material sustainable strategies makes extensive use of various types of local recycled materials and artisanal construction techniques. This approach preserves the environmental characteristics of the rural community, enhances local craftsmen’s sense of participation, and continually strengthens the villagers’ collective sense of identity with the building.
▼北侧农场人视夜景,North side farm human view at night © 褚英男
▼南侧水坝俯瞰夜景,Aerial view of the south side dam at night © 褚英男
▼南侧室外人视夜景,South side outdoor human view at night © 褚英男
▼南侧夜景-1,South side night view 1 © 褚英男
▼南侧夜景-2,South side night view 2 © 褚英男
▼南侧夜景-3,South side night view 3 © 褚英男
▼东侧主入口前工业设备雕塑,Industrial equipment sculpture at the east main entrance © 褚英男
▼东侧主入口夜景,East main entrance at night © 褚英男
▼卫星图合成总图,Satellite Image Composite © SUP Atelier
▼彩色总平面图,Master Plan © SUP Atelier
▼立面,Facades © SUP Atelier
▼总平面图,Site Plan © SUP Atelier
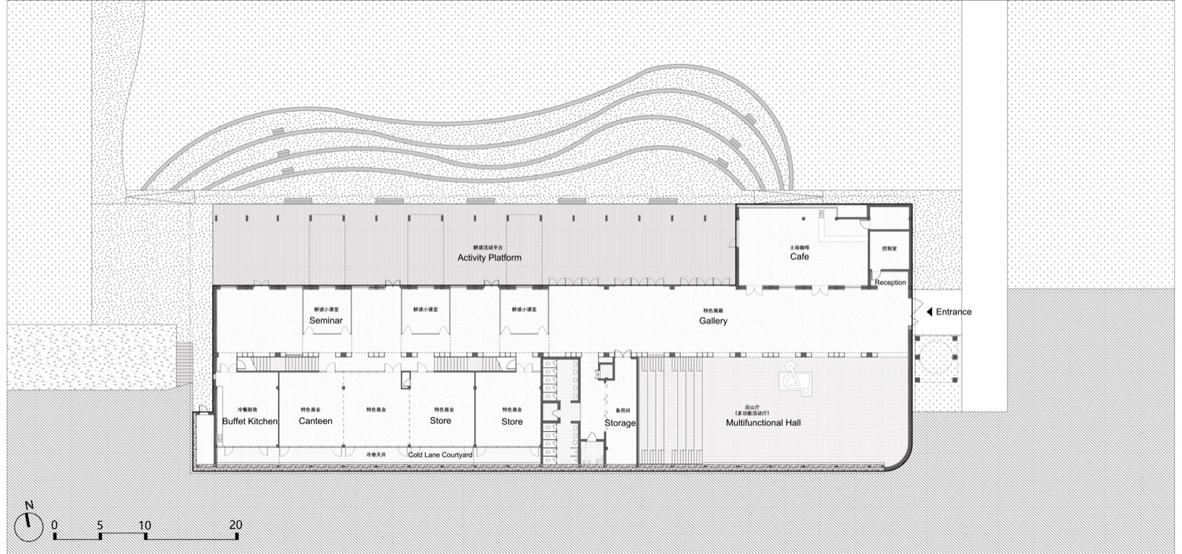
▼平面图-01,Floor Plan 01 © SUP Atelier
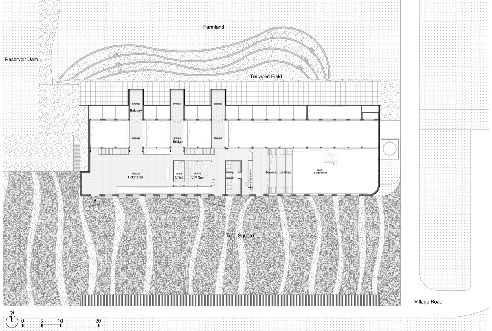
▼平面图-02,Floor Plan 02 © SUP Atelier
▼剖面1-01,Section 1-01 © SUP Atelier
项目名称:桃里-沼山村村民中心
项目地点:湖北省,黄石市,大冶市,保安镇,沼山村
业主单位:湖北省保安镇沼山村村委会
设计单位:清华大学建筑设计研究院有限公司素朴工作室
主创建筑师:宋晔皓、孙菁芬
建筑设计团队:高唯芷,解丹,刘昆朋,官晓晴,张卓然,褚英男,罗悦慈,俞海跃,彭力夫,Giulia Montanaro
项目策划及规划设计团队:中国城市规划设计研究院
结构设计:刘召军 北京清华同衡规划设计研究院有限公司建筑分院结构工程所
机电设计:北京清华同衡规划设计研究院有限公司建筑分院机电工程所
照明设计:清华大学建筑设计研究院有限公司同原照明工作室
景观设计:清华大学建筑设计研究院有限公司素朴工作室
室内设计:清华大学建筑设计研究院有限公司素朴工作室
土建及景观施工方:当地村民施工队
设计时间:2023.07-2023.11
竣工时间:2024.07
基地面积:10482㎡
建筑面积:2993㎡
结构形式:钢筋混凝土排架+钢木屋架
摄影:褚英男,高唯芷
Project Name: Taoli- Zhaoshan Village Center
Project Location: ZhaoshanVillage,Bao’antownship, Daye County, Huangshi City, Hubei Province, China
Client: Zhaoshan village government
Architect office: SUPAtelier of THAD
LeadArchitect: Yehao Song, Jingfen Sun
Architects Team:WeizhiGao, DanXie,Kunpeng Liu, Xiaoqin Guan, Zhuoran Zhang, YingnanChu,Haiyue Yu,Lifu Peng,Giulia Montanaro
Urban planning team: China Academy of Urban Planning &Design
Lighting design:One Lighting Studio of THAD
Structure Design:ZhaojunLiu from THUPDI Structural Design Institute
Engineering Design:THUPDI Mechanical and Electrical Design Institute
Landscape Design: SUPAtelier of THAD
Interior Design:SUPAtelier of THAD
Construction Contractor:Local Villagers
Design Year: 2023.07-2023.11
CompletionYear:2024.07
Site Area: 10482㎡
Gross Built Area:2993㎡
Structural system :Reinforced concrete frame+Wood-And-Steel Composite Truss
Photography: Yingnan Chu, Weizhi Gao
客服
消息
收藏
下载
最近






































































































