查看完整案例

收藏

下载
“城市之丘THE HILLS”位于广州海珠区新港西路,原为全国最大纺织面辅料交易基地“红棉中大门园区”的一部分。项目通过拆除封闭厂房墙体及停车场,将工业场地转型为半开放式建筑与围合式广场,旨在缝合纺织产业基因与当代青年文化需求,打造“非标”商业与潮流生活共生实验场;
THE HILLS, located on Xingang West Road in Haizhu District, Guangzhou, was originally part of the Hongmian Zhongdamen Complex, the largest textile accessories trading hub in China. This project has transformed an industrial site into a semi-open architectural space and an enclosed plaza by removing factory walls and parking lots. The goal is to integrate the site’s textile industry heritage with contemporary youth culture, creating an experimental hub where unconventional commerce and trendy urban lifestyles coexist.
▼建筑概览,overview of the building©Hunk
▼建筑街景,street view of the building©Hunk
工业场地的空间转译
Spatial Transformation of an Industrial Site
从封闭到开放的形态裂变|From Closed to Open: A Structural Evolution
拆除原纺织厂房冗余墙体,保留混凝土框架作为空间骨骼,通过“切削-抬升”手法形成山丘地形式大阶梯及采光中庭,释放空间场地,以空中悬浮连廊和大台阶重构工业空间的流动性与渗透性;
▼改造前建筑,building before the renovation©竖梁社
By dismantling unnecessary factory walls while retaining the original concrete framework, the transformation process has reshaped the space through a “cut-and-lift” approach. This design introduced a terraced, hill-like grand staircase and a central atrium to optimize spatial openness. Sky bridges and the grand staircase has further enhanced the fluidity and connectivity of the industrial space.
▼山丘地形式大阶梯,a terraced, hill-like grand staircase©Hunk
▼山丘地形式大阶梯,a terraced, hill-like grand staircase©Hunk
莫比乌斯环多维动线:商业与行为的交互实验
Interweaving Commercial and Social Interactions: The Möbius Loop Circulation
内外流动的社交引擎|A Social Engine for Seamless Indoor-Outdoor Flow
建筑动线采用“莫比乌斯环”逻辑,外挂楼梯与环形内通道串联首层商铺、空中连廊与大台阶,通过空间引导刺激青年群体的探索欲与偶发性消费;
▼分析图“切削-抬升”,analysis of ” cutting-lift”©竖梁社
To foster engagement and spontaneous experiences, the project adopted a Möbius loop-style circulation system. External staircases and a continuous internal passage connected ground-level shops, sky bridges, and the grand staircase. Curiosity and impulse spending among young people has been greatly encouraged through this spatial design.
▼外挂楼梯与环形内通道串联首层商铺,External staircases and a continuous internal passage connected ground-level shops©Hunk
▼空中连廊与大台阶,sky bridges, and the grand staircase©Hunk
空间游戏性与行为触发|Playful Spatial Design & Interactive Movement
利用高差设计“攀爬-俯瞰-滑行”行为序列(如攀爬大阶梯、观景平台、滑板广场),将场地高差处理转化为身体运动的游戏场域;
▼多维动线,multi-dimensional circulation©竖梁社
The design incorporated climbing, overlooking, and sliding elements —such as the grand staircase, observation platforms, and skate park— transforming the site’s vertical differences into a dynamic and playful arena for physical movement.
▼大台阶,the grand staircase©Hunk
▼空中连廊,sky bridges©Hunk
大台阶采用“退台式”绿化结构,每级台阶嵌入种植槽,分层配置耐阴蕨类、攀援常春藤及岭南本土灌木,形成垂直绿廊;
The grand staircase featured “tiered greenery”, with each step incorporating planting slots. Layered with shade-tolerant ferns, climbing ivy, and native Lingnan shrubs, this design has created a lush vertical green corridor.
▼“退台式”绿化结构,staircase featured “tiered greenery”©Hunk
▼形成垂直绿廊,created a lush vertical green corridor©Hunk
首层架空的设计,释放通透空间,让自然风自由穿梭于建筑框架与绿植之间,形成穿堂风的“立体巷弄”;▼气候适应性分析,Climate adaptation analysis©竖梁社
The elevated ground floor allowed for natural ventilation, enabling fresh air to flow freely through the structure and greenery. It also created a “three-dimensional alley” effect that has enhanced the microclimate.
▼形成穿堂风的“立体巷弄”,created a “three-dimensional alley”©Hunk
▼屋顶细部,roof detail©Hunk
工业美学的当代叙事|Industrial Aesthetics with a Contemporary Narrative
裸露的钢桁架与管道被转化为空间装置,结合混凝土预制板、金属拉网幕墙等新材料,形成粗粝与精致的视觉张力,延续纺织工业的历史记忆;
Exposed steel trusses and pipes were transformed into spatial elements, combined with new materials such as precast concrete panels, metal mesh facades, etc. This design has created a visual tension between rawness and refinement, preserving the historical memory of the textile industry.
▼裸露的钢桁架,exposed steel trusses©Hunk
▼裸露的钢桁架与管道被转化为空间装置,exposed steel trusses and pipes were transformed into spatial elements©Hunk
▼夜景,night view©Hunk
▼夜景鸟瞰,aerial view at night©Hunk
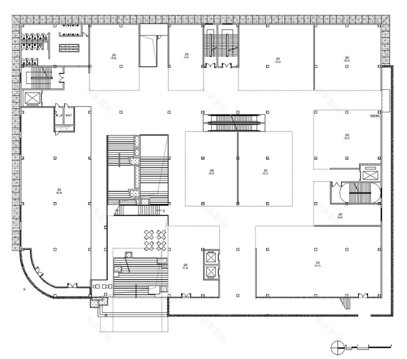
▼一层平面图,ground floor plan©竖梁社
▼二层平面图,first floor plan©竖梁社
▼三层平面图,third floor plan©竖梁社
▼屋顶平面图,roof floor plan©竖梁社
▼西立面,west elevation©竖梁社
项目名称:广州中大门「城市之丘THE HILLS」:纺织产业与潮流生活的共生实验场
项目类型:建筑
设计方:竖梁社悬亮子工作室
完成年份:2024.12
设计团队:主持建筑师:宋刚、罗子安 项目负责人:钟展宁 建筑设计:岑永就、叶琦、曾巧茹 室内设计:张一璇、黄振诚
项目地址:广州市海珠区新港西路82号
建筑面积:13500㎡
摄影版权:Hunk
Project name: THE HILLS at Zhongdamen Complex, Guangzhou: A Symbiotic Experiment in Textile Industry and Trendy Urban Living
Project type:Architecture
Design: Atelier cnS-CICADA ART
Completion Year:2024.12
Leader designer & Team: Design Director :Gang Song,Zian Luo Project Leader: Zhanning Zhong Architectural Design: Yongjiu Cen, Qi Ye, Qiaoru Zeng Interior Design: Yixuan Zhang, Zhencheng Huang
Project location:82 Xin Gang West Road, Haizhu District, Guangzhou
Scale of Construction :Floor Area: 13,500 square meters
Photo credit:Hunk
客服
消息
收藏
下载
最近














































