查看完整案例

收藏

下载

翻译
Architects:Kode Architects
Area:620m²
Year:2018
Photographs:Won-Jun Jang
Lead Architects:Min Ho Kim
Utility:Museum
Gross Built Area:2,758 m²
Scale:2 floor underground, 4 floors overground
Structure:Reinforced concrete
Exterior:Exposed concrete
Interior:water-based paint, concrete.
Country:South Korea
Text description provided by the architects. The core value of Christianity and the nature of God's Presence are the relationships of the Trinity, and the core value of this project is to present space that includes the Christian spirit based on the relationship.
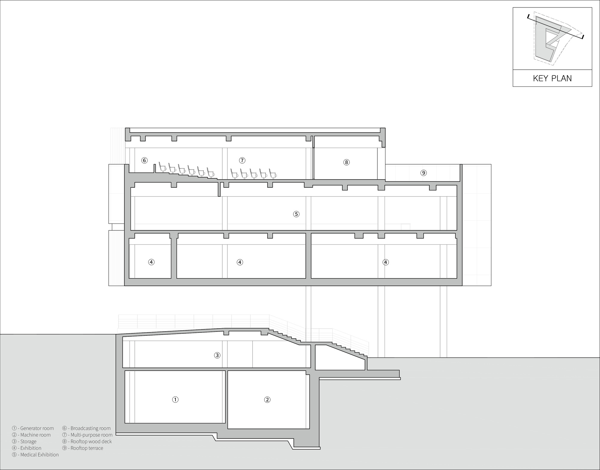
The triangular courtyard is a closed space open to the sky, a space hoping for heaven and open to the sky, a Christian value differentiated from the place on the first floor that communicates with people, which includes the value of looking to God. Through the simple, abstract courtyard space, we would operate the history museum as a symbolic space.
Planning the corridor-type hallway communicating with the courtyard-type mass, we created unidirectional directivity and completed the efficient traffic optimized for exhibitions of experiences by going around the spaces on each floor. In the lower floor parts, a multipurpose space was created, which communicates with the area and includes various contents, and the surrounding areas were visually displayed by extending the eye to the outside through the wall penetrating inside and outside (a device that includes architectural space in the frame).
Project gallery
客服
消息
收藏
下载
最近




























