查看完整案例

收藏

下载
由gmp·冯·格康,玛格及合伙人建筑师事务所设计的中建四局科创大厦在中国商贸大都市广州落成,成为可持续建筑的典范。该项目的首要目标是建造一座能源效率极高和技术上领先的建筑,展示中建集团的工程技术特长,并成为可持续高层建筑的范例。早期规划阶段对气候和当地条件(如日照和风力效应)的全面分析为设计方案奠定了基础。
With the new headquarters of the China State Construction Engineering Corporation (CSCEC), the architects von Gerkan, Marg and Partners (gmp) have realized a model project for sustainable building in the Chinese business metropolis of Guangzhou. The overarching goal of this project was to create an exceptionally energy-efficient and technologically pioneering building that showcases CSCEC’s engineering expertise and serves as a case study for sustainable high-rise construction. A comprehensive analysis of the climatic and local conditions, such as sun exposure and wind impact, conducted during the early planning phase provided the foundation for the design.
▼项目概览,overview of the project ©CreatAR Images
该高层建筑位于天河区的国际金融城,毗邻珠江。其体量设计遵循了城市规划条件的要求。建筑底层周围有骑楼及架空层环绕,为公共活动区域提供了遮阳避雨的功能。多个楼层内设有零售设施、政务服务中心、员工餐厅、多功能厅以及一个建造博物馆。
The high-rise is located in the Tianhe District of the International Financial City, near the Pearl River. Its volume was developed in accordance with the specifications of the urban master plan. At the ground level, the building is lined with a colonnade that provides public spaces with shelter from the sun and rain. Several floors accommodate publicly accessible functions, including retail stores, service centers, a staff restaurant, multifunctional spaces, and a small CSCEC corporate museum.
▼建筑入口,entrance of the building ©CreatAR Images
▼建筑立面,facade of the building ©CreatAR Images
在亚热带气候条件下,该建筑成功实现了大范围自然通风。裙楼与塔楼之间设有一座跨越八层楼的中庭。该中庭借鉴传统岭南建筑“冷巷”原理,作为垂直通风空间发挥作用。得益于阴凉的底层室外区域,形成了凉爽的气流,通过中庭进入建筑内部,并从中庭顶部可开启天窗排出,充分增加裙楼部分过渡季节自然通风。此外,塔楼部分还配备了太阳能烟囱 – 基于热压拔风效应的自然通风系统。太阳热能使幕墙后侧玻璃竖井空气上升实现自然排风,结合幕墙层间通风格栅引进新鲜空气,达到办公区域自然通风的目的。与此同时,太阳能烟囱及幕墙通风格栅可用于夜间通风降温,进一步支持热度控制。
▼垂直通风空间,a vertically ventilated space ©gmp
Taking into account the conditions of the subtropical climate, the building was largely designed for natural ventilation. Between the base and the tower, an atrium spanning more than eight floors functions as a vertically ventilated space, following the principle of a traditional “cold lane.” Shaded outdoor areas at ground level help keep the air cooler, allowing it to flow through the atrium and circulate throughout the building, ensuring a pleasant indoor climate and natural ventilation of the podium. In addition, the high-rise features a natural ventilation system based on the solar chimney principle. Solar heat causes the air in a glass shaft behind the façade to rise, creating a pressure difference that draws in fresh, cooler air to ventilate the building. Furthermore, a night cooling system supports thermal regulation by using the building’s thermal mass to help control temperatures.
▼作为垂直通风空间发挥作用,a vertically ventilated space ©CreatAR Images
建筑外立面设有光伏一体化遮阳板,既达到遮阳效果,又为大楼贡献可再生能源。幕墙和屋顶共安装7800平方米的光伏模块,每年可产生约65万千瓦时电能。与常规相关现代建筑相比,上述措施大大降低了能耗。此外,所有运行流程均通过新式碳排放控制平台进行实时监控,该平台是中国首个能按时间、区域和类别实时预测二氧化碳排放的系统。
▼光伏一体化遮阳板,a facade with integrated photovoltaic louvers ©gmp
A facade with integrated photovoltaic louvers provides shade while contributing to sustainable energy generation. With 7,800 square meters of photovoltaic modules integrated into the façade and roof, the system produces approximately 650,000 kilowatt-hours annually, covering the building’s entire energy needs. These measures significantly reduce energy consumption compared to modern benchmark buildings. Additionally, all operational processes are continuously monitored through an innovative carbon management platform, the first in China to enable real-time forecasting of CO₂ emissions by time, zone, and category.
▼外部平台,external platforms ©CreatAR Images
建筑结构采用了十二根外置式巨型立柱,实现了模块化设计和快速施工——该项目的装配率达93.5%,因此不仅优化了材料使用,还大幅缩短了施工周期。施工过程使用了八种不同的智能机器人,在主体结构施工阶段节约人工20%。
The structure, supported by twelve external mega-columns, enabled a modular and rapid construction process, achieving a prefabrication rate of nearly 93.5 percent. This optimization reduced material usage and significantly shortened the construction timeline. Eight different manufacturing robots were used, particularly during the shell construction phase, reducing the required labor input by 20 percent.
▼室内空间,indoor space ©CreatAR Images
本项目荣获了中国“近零能耗建筑”和“金级碳中和建筑”认证,同时还获得了“绿色建筑三星评价标识”。它达到了工程效率和可持续性方面的最高标准,并获得了LEED能源与环境设计先锋金级认证,35层获得WELL健康建筑标准铂金级预认证。
The building has been awarded China’s “Technical Standard for Nearly Zero Energy Buildings” and “Gold Carbon Neutral Building” certifications, as well as the “3-Star Green Building Label.” It meets the highest standards of construction efficiency and sustainability, having earned LEED Gold and pursuing WELL Platinum.
▼场地平面,site plan ©gmp
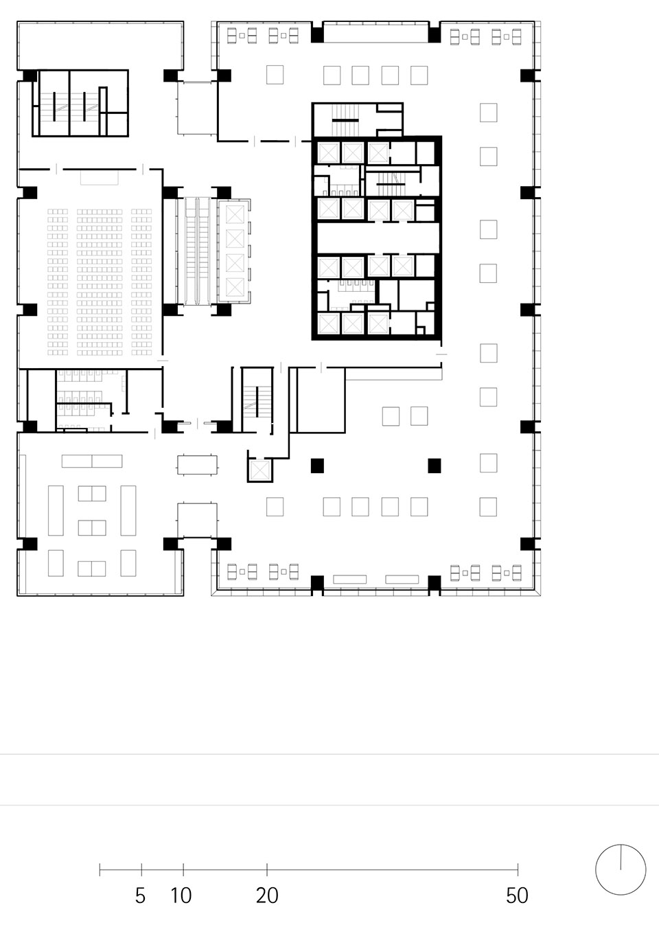
▼一层平面,ground floor plan ©gmp
▼三层平面,third floor plan ©gmp
▼四层平面,fourth floor plan ©gmp
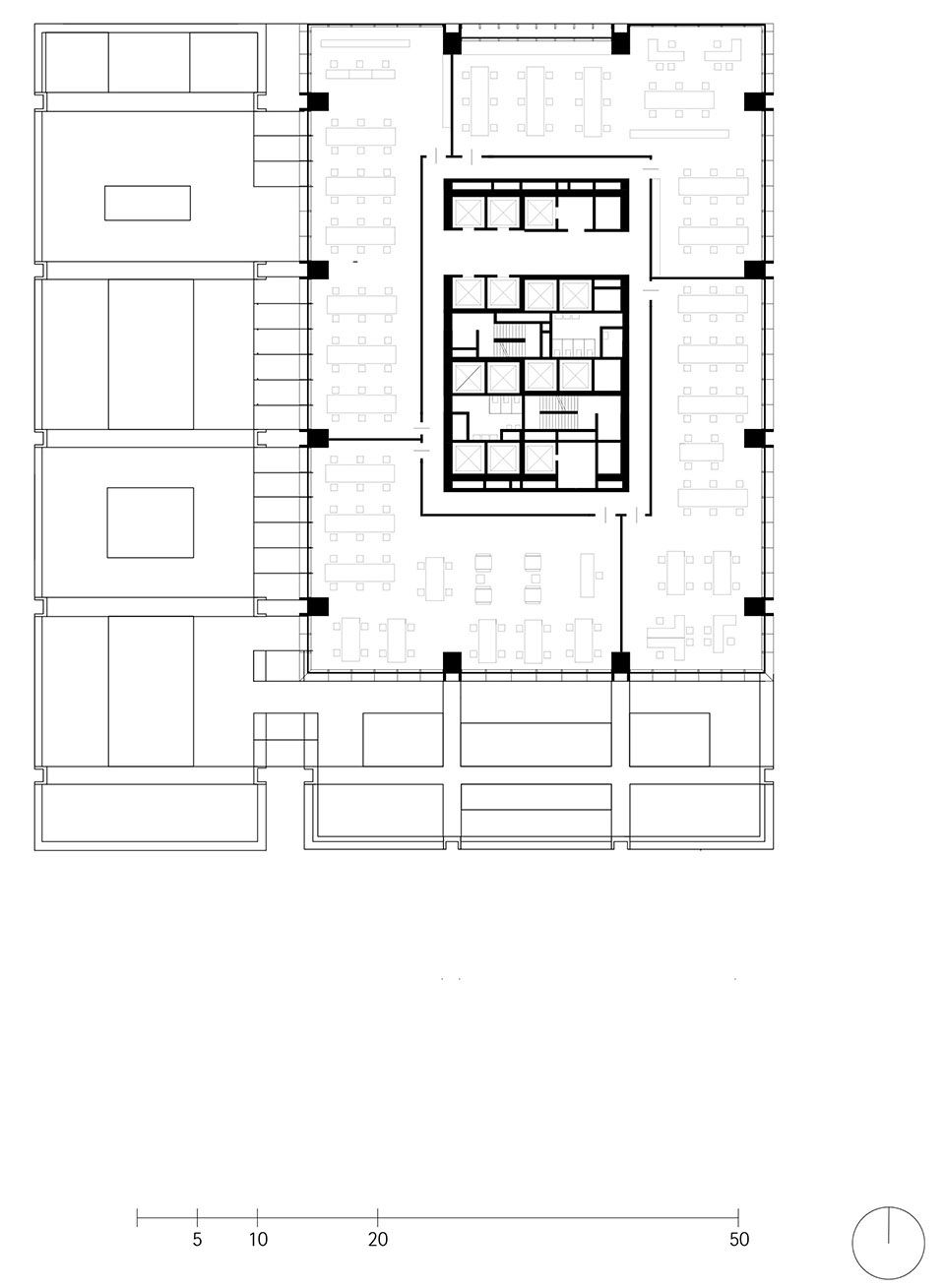
▼十层平面,tenth floor plan ©gmp
▼三十六层平面,36th floor plan ©gmp
▼立面,elevation ©gmp
▼剖面,section ©gmp
设计竞赛:2022年,一等奖
设计:曼哈德·冯·格康,施特凡·胥茨与托比亚斯·凯尔
项目负责人:张旭
竞赛阶段设计团队:拉斐尔·巴蒂斯塔,扬-皮特·德姆尔,杜渐,菲利波·拉古萨,施特凡诺·罗吉亚,吴予婷,蒂洛·策默,周元,朱世游,芮凡,赵璐
实施阶段设计团队:拉斐尔·巴蒂斯塔,迪娜·博尔扬斯,扬-皮特·德姆尔,杜渐,李光耀,钱进,菲利波·拉古萨,瓦利德·雷泽克,蒂洛·策默,朱世游
中国项目管理:徐吉,李方翔
竞赛阶段能源咨询:Transsolar能源技术有限公司
竞赛阶段结构设计:德国sbp施莱希工程设计咨询有限公司
业主:中建四局城市发展投资有限公司
建筑面积 104402 平方米
Competition 2022 – 1st prize
Design Meinhard von Gerkan and Stephan Schütz with Tobias Keyl
Project Lead Zhang Xu
Competition Design Team Rafael Batista, Jan Peter Deml, Du Jian, Filippo Ragusa, Stefano Roggia, Wu Yuting, Thilo Zehme, Zhou Yuan, Zhu Shiyou, Rui Fan, Zhao Lu
Detailed Design Team Rafael Batista, Dinah Borjans, Jan-Peter Deml, Du Jian, Li Guangyao, Qian Jin, Filippo Ragusa, Waleed Rezeq, Thilo Zehme, Zhu Shiyou
Project Management, China Xu Ji, Li Fangxiang
Energy Consultants, Competition Transsolar Energietechnik GmbH
Structural Engineering, Competition schlaich bergermann partner sbp
Client CSCEC Fourth Engineering Bureau
GFA 104,402 m2
客服
消息
收藏
下载
最近






















