查看完整案例

收藏

下载
▲2045P海报©未见筑 2045P Post ©We Live
九街位于重庆市江北区核心地段,每当夜幕降临,霓虹闪烁间人流如织,酒吧的欢声笑语与音乐律动交织,这里是重庆夜生活的代表,也和所有商圈一样面临着停车难的常见问题。
Jiujie, located in the core area of Jiangbei District, Chongqing, transforms into a vibrant hub of nightlife as dusk falls. Neon lights illuminate bustling crowds while laughter from bars intertwines with pulsating music rhythms, embodying the essence of Chongqing”s nocturnal culture. Like all commercial districts, it faces the universal challenge of parking scarcity.
▲车库区位地理图©未见筑 Location Geographic Map©We Live
停车空间,作为现代城市的隐秘脉动,是城市运行效率与生活品质的重要支撑,更是连接城市生活与个体出行的桥梁。然而,随着城市化的加速推进,车库的稀缺性日益凸显,由于停车难,能停就行的心态已经成为了常态,人们似乎对于停车体验感这种事情毫不在意。
As the hidden pulse of modern cities, parking spaces serve as crucial infrastructure supporting urban efficiency and quality of life, bridging urban living with individual mobility. However, accelerated urbanization has intensified parking space shortages. The scarcity has normalized a “any spot will do” mentality, making people seemingly indifferent to parking experience quality.
因此,我们不禁思考停车空间这一看似平凡的城市元素,是否蕴含着更多的可能性与价值,九街的车库,也许应该和九街一样,象征着这座城市的炫目与时尚。
This reality prompts us to reconsider the potential value of parking spaces – these seemingly mundane urban elements. Perhaps Jiujie”s parking garages should mirror the district itself, embodying the city”s glamour and fashion.
▲车库中轴©Archtric Image Garage Central Axis©Archtric Image
1.机械车库的视觉升级
随着科技的进步,停车难度降低、等待时间缩短、新能源可停放,技术问题悉数解决,但还不足以改变人们对于机械停车的偏见。这个时候,用艺术设计让车库变得时尚,自然成为了停车行业发展的下一步。
1.Visual Transformation of Mechanical Parking Systems
While technological advancements have addressed functional challenges – simplified parking processes, reduced waiting times, and EV compatibility – they haven”t dispelled public prejudice against mechanical parking. Introducing artistic designs to create fashionable parking spaces emerges as the next evolutionary step for the industry.
▲车库一角©Archtric Image Garage corner perspective©Archtric Image
2.地下空间的业态丰富
与普通车库不同,机械车库的入库层会有大量的空间预留,无需用来排满车位,也就预留了更多的可能性。当车库内拥有酒吧、便利店,成为舞会空间、上演音乐会或是吸引时尚人群前来拍照,车库不再是单一的服务空间,也成为城市新的能量场。
2.Diversified Underground Space Utilization
Unlike conventional garages, mechanical parking structures feature abundant available space on entry levels, avoiding cramped parking rows. This spatial advantage enables multifunctional transformations – integrating bars, convenience stores, event venues for parties or concerts, and Instagram-worthy installations. Thus, parking areas evolve from single-purpose facilities into dynamic urban energy hubs.
▲圆洞深渊©Archtric Image Circular Abyss©Architric Image
3.停车行为的创新体验
从驱车进入地下来到一个发着彩色灯光的空间开始,到进入停车、取车不同于常规的用户体验,结合白天夜晚灯光模式的变化,让人在地下也可以感受到时间流逝,为停车行为创造仪式感,这是来自城市的温暖与关怀。
3.Innovative Parking Experience Design
From entering a chromatically-lit underground space to experiencing novel parking/retrieval processes, the integration of daylight/nightlight modes creates temporal awareness in subterranean environments. This ritualization of parking behavior embodies urban warmth and thoughtful design, transforming routine actions into memorable experiences.
▲取车处©Archtric Image Vehicle Retrieval Zone©Archtric Image
▲圆洞深渊©Archtric Image Circular Abyss©Archtric Image
瞬移传送站Teleport Station
人们从一个地方去到另一个地方,往往就是从一个车库到另一个车库,再从车库走出来到不同的场所,中间过程往往没那么重要。这里就如同一个位于城市地下的空间传送站,充满能量的水晶串联了人们所有的空间位移。
Urban commuters often transition from one garage to another, moving through these spaces to reach various destinations, with the intermediate journey frequently overlooked. This garage functions as an underground urban teleportation hub, where energy-charged crystals metaphorically connect all spatial transitions.
▲车库一角©Archtric Image Garage Corner Perspective©Architric Image
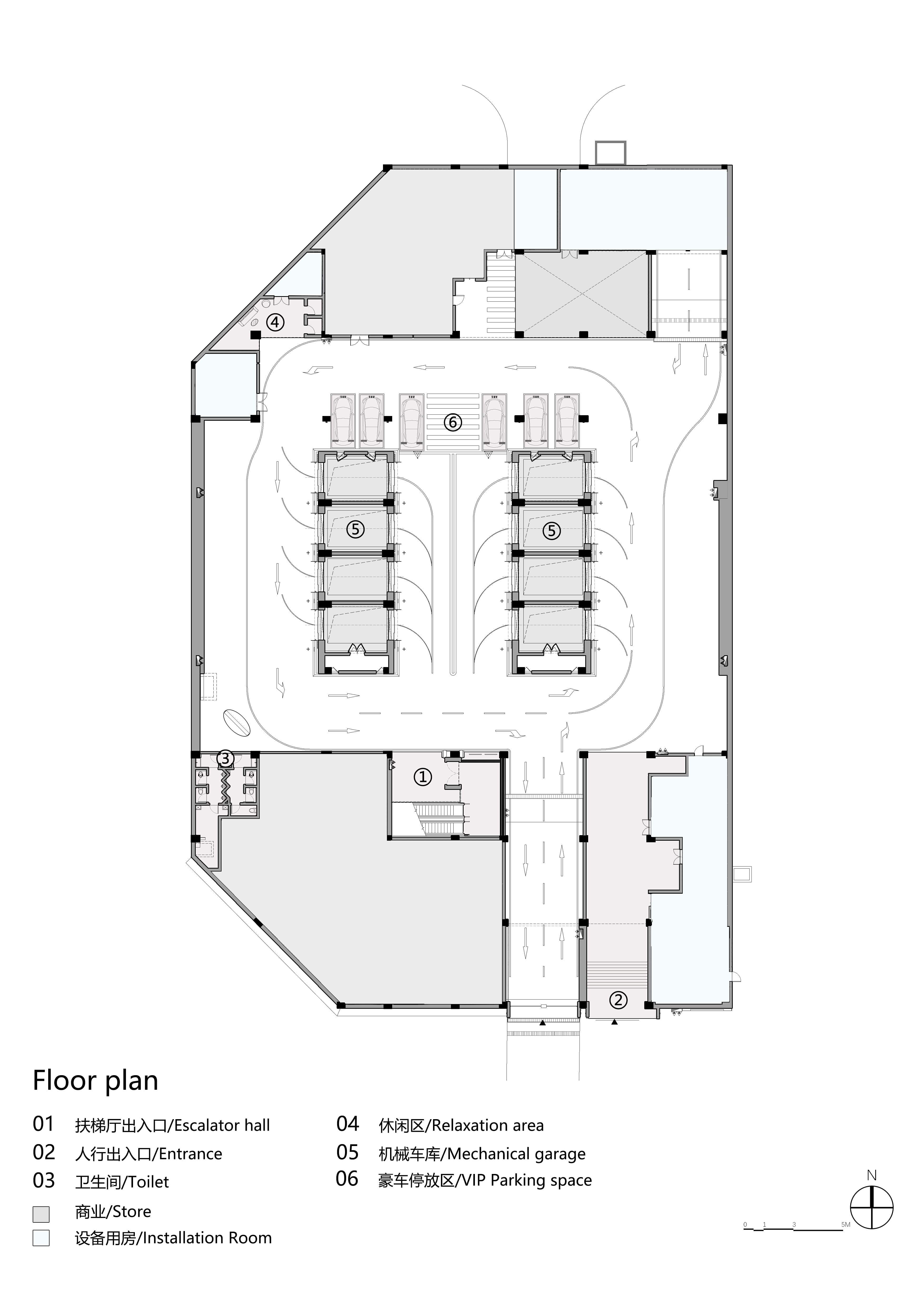
车库拥有一南一北两个车行出入口,一层是人行入口,预留商业空间及配套用房。入库层位于B1层,两个汽车入库水晶位于空间的中心,向外展开,外侧是车辆入库动线,空间面积比车道需求更大,配备投影仪为后续在车库承接活动预留可行性;内侧为车辆出库动线,南北分别预留商业空间,南侧连接通向九街的主要人行动线并且在西南角设置有公共卫生间。
The garage features dual vehicle entrances at southern and northern ends, with a pedestrian entrance on the ground floor incorporating commercial spaces and support facilities. The B1 level serves as the parking intake layer, where two crystalline vehicle reception cores form the spatial center. These cores radiate outward: Exterior Zones: Vehicle intake channels with expanded spatial capacity beyond mere traffic needs, equipped with projectors for future event hosting Interior Zones: Vehicle exit routes flanking commercial spaces at both ends The southern section connects to Jiujie’s main pedestrian flow, featuring public restrooms at the southwest corner.
▲动线分析图©未见筑 Circulation Analysis Diagram©We Live
▲车库一角©Archtric Image Garage Corner Perspective©Architric Image
场所营造Place Making
神秘的未来Mysterious Futurism
关于未来人们有着许多的认知和思考,作为人们口中的8D魔幻城市,重庆具有极为独特的气质。在这座城市地下营造充满科技感未来感的空间,我们不希望它有过于明确的风格,不去填充大量昂贵的科幻造型或刻意营造直白的赛博朋克颓废感,而是在科技感中融入一种神秘的气息,一种属于未来的未知属性。
As China’s renowned “8D Magic City,” Chongqing possesses unique urban DNA. Our underground future-tech space deliberately avoids overt stylistic definitions – no expensive sci-fi props nor forced cyberpunk aesthetics. Instead, we inject technological spaces with a mysterious aura and undefined futurism, preserving the uncertainty inherent to future visions.
▲人行主入口 Main Pedestrian Entrance
▲人行入口通道 Pedestrian Access Corridor
▲扶梯通道 Escalator Passage
▲车行主入口 Primary Vehicle Entrance
▲能量石晶体汽车入库口 Energy Crystal Vehicle Intake Port
▲能量石晶体汽车出库口 Energy Crystal Vehicle Egress Port
▲三棱锥立柱Triangular Prism Column
圆洞深渊Circular Abyss
至此,车库不再是城市里被动的服务空间,而是生活品质提升的发起者。曾经不起眼的地下空间,化身充满未来感的机械艺术馆。艺术设计与智能系统取代了昏暗的水泥墙,这座车库正重新定义城市基础设施的价值:生活,原本就不应仅仅是满足基本功能这么简单。
Thus transformed, parking garages evolve from passive urban service spaces into active lifestyle enhancers. What was once neglected underground space becomes a futuristic mecha-gallery, where artistic design and intelligent systems replace gloomy concrete walls. This garage redefines urban infrastructure value – proving urban life should transcend mere functional fulfillment.
▲车库一角©Archtric Image Garage Corner Perspective©Architric Image
▲平面图©未见筑 Negative floor plan©We live
▲剖面图©未见筑Sectional Elevation©We Live
▲轴测图©未见筑Axonometric Diagram©We live
项目信息——
投资运营单位:重庆星网施克赛斯自动化有限公司
室内方案设计:未见筑设计事务所
主创设计师: 李未韬、李博
设计团队: 张照鑫、张智睿、邓林、刘婷
室内施工图设计:重庆索引几何装饰工程设计有限公司
VI设计:香蕉黑洞
灯光设计:袁有无
摄影:筑技摄影
模特:羊皮子
设计时间:2024年
竣工时间:2024年
室内面积:3270平方米
客服
消息
收藏
下载
最近


























