查看完整案例

收藏

下载
PAGEONE北辰荟,位于北京市朝阳区奥林匹克森林公园内。不同于以往以实体书籍阅读为主要体验的模式,新店空间尝试融合新的感观,以黑胶唱片概念为环境及内容主题,并希望打造出一种不同于以往的空间理解及相处方法,将音乐的沉淀故事提炼成书店的新意识形象。
At POLPAS in the Olympic Forest Park, Beijing, PAGEONE is set to unveil its inaugural Vinyl Concept Store. This new venture aspires to craft a fresh perspective that diverges from its predecessors and to encapsulate a novel chapter in the annals of PAGEONE’s history.
▼书店外观,exterior of the bookstore©存在建筑
书本与黑胶,同为记录,回忆,保留,堆叠与分享,而因读取和理解的方式不同,又能带来共鸣却又特别的记忆感受与氛围。纸张与黑胶,视觉与听觉,想象与思考,贯穿于其中,将材质的感受与理解的抽象结合,将故事叙述于空间当中。
▼空间概念草图,concept sketch©llLab. 叙向建筑
In the space, books and vinyl records are celebrated as parallel mediums of documentation, remembrance, preservation, accumulation, and sharing. Their distinct methods of engagement and interpretation yield a harmonious yet unique blend of sensory experiences and atmospheric memories. The interplay of paper and vinyl, sight and sound, fantasy and contemplation, weaves a narrative that transcends the physical, embedding stories within the very fabric of the space.
▼室内空间,indoor space©存在建筑
▼室内空间,indoor space©Wen Studio
于是,我们希望这是一个可以让人能够自然而专心去读与取,去思考与想象的属于自己的空间。四百平米的实用面积空间里,所有的空间材料都采用亲人的木质自然材质,在通透充满自然光的空间里,希望让人感受到书本纸张与黑胶年轮的经历记忆。空间,材料,界面,书本,文字,音乐,声音,阳光,所有的元素都尽可能仅仅单纯追求自然感受。
▼结构分析,structural analysis©llLab. 叙向建筑
The intention is to create a haven where individuals can naturally and attentively read, absorb, ponder, and dream. The choice of materials, predominantly natural wood, is designed to evoke a sense of warmth and memory. The space is curated to ensure that every book and record is within reach, transforming the act of browsing into an immersive experience. These reading and music areas are crafted as sanctuaries where one can retreat, relax, and immerse oneself in the natural ambiance.
▼空间材料都采用亲人的木质自然材质,the choice of materials, predominantly natural wood©Wen Studio
书店主入口临近街道,向建筑室外主空间开敞,连接首层书店的主要活动聚会场所,让开敞的通高阅读空间充分迎接自然氛围。堆积的书本,黑胶唱片,人们围坐阅读感受。当有活动时,唱片架书柜都可收起移动,变换布局,读书分享会,黑胶音乐会,让街道社区生活延伸至书店室内。空间内的主展示墙体将不规则的通高空间切换成为“主黑胶音乐厅”及阅读,咖啡,活动,孩童等几个人性化尺度的专注空间,使店内充满着黑胶的氛围,同时又能够帮助不同类别内容的融入结合。绕过主墙体走向书店的二楼,发现一条细长的阅读露台长廊,视觉专注于书本和天空,长凳排布,是躲着安静看书的空间。书店三楼,阅读的体验延续,同时结合建筑室内的多功能性,咖啡,主题阅读,随阅读长凳交错分布。让黑胶唱片的气氛,让书本,将建筑在不同的空间层拉紧。
▼空间布局轴测图,space layout axonometric©llLab. 叙向建筑
The main display wall within the store artfully reimagines the double-height space, converting it into a “vinyl concert hall” alongside cozy, human-scale zones for reading, coffee breaks, events, and children’s activities. This design not only infuses the store with a rich vinyl atmosphere but also seamlessly blends diverse content categories.
▼开敞的通高阅读空间,the spacious double-height space©Wen Studio
▼主黑胶音乐厅,”vinyl concert hall”©Wen Studio
▼主黑胶音乐厅,”vinyl concert hall”©存在建筑
▼主黑胶音乐厅,”vinyl concert hall”©Wen Studio
▼阅读空间,reading space©Wen Studio
▼不同类别内容的融入结合,seamlessly blends diverse content categories©Wen Studio
▼不同类别内容的融入结合,seamlessly blends diverse content categories©存在建筑
▼空间草图,space sketch©llLab. 叙向建筑
▼主墙体和楼梯相结合,combination of main wall and staircase©Wen Studio
▼通向二层楼梯,the staircase towards the upper level©Wen Studio
▼通向二层楼梯,the staircase towards the upper level©存在建筑
▼细长的阅读露台长廊,longreading terrace promenade©Wen Studio
空间里,没有触摸不到的书本与唱碟。展示不是空间的主意,所有阅读与音乐的空间都如可以自己将自己藏起来的久留休憩空间,舒适,有自然的痕迹,而可以专注于阅读与音乐。
There is no book or record out of reach. Display is not the focus of the space; instead, every area dedicated to reading and music is like a secluded retreat that can conceal itself, offering comfort, the touch of nature, and the ability to concentrate fully on reading and music.
▼咖啡吧台,coffee counter©Wen Studio
▼舒适,有自然的痕迹的休憩空间,resting area offering comfort, the touch of nature©存在建筑
PAGEONE北辰荟黑胶概念店位于北京城北侧的奥林匹克森林公园内,与北京坊店沿着城市中轴线,南北呼应。北京坊的PAGEONE作为城市中的街巷,给予市民不同的建筑空间关系,北辰荟的PAGEONE则希望成为公园里的长椅,送给市民专注与感受自己的记忆。
PAGEONE POLPAS, situated in the northern reaches of Beijing’s Olympic Forest Park, stands in dialogue with the BeijingFun store along the city’s central axis, creating a north-south axis of cultural significance.While PAGEONE BeijingFun mimics the vibrant street life of the city, offering a range of architectural spatial relationships, PAGEONE POLPAS aims to serve as a bench and an oasis within the park, providing a serene spot for citizens to concentrate and reconnect with their personal memories.
▼舒适,有自然的痕迹的休憩空间,resting area offering comfort, the touch of nature©存在建筑
▼让市民专注与感受自己的记忆,for citizens to concentrate and reconnect with their personal memories©存在建筑
▼夜景,night view©Wen Studio
▼夜景,night view©Wen Studio
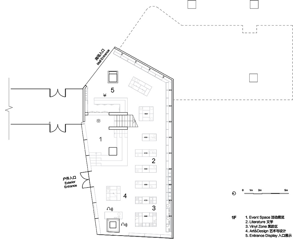
▼一层平面图,ground floor plan©llLab. 叙向建筑
▼二层平面图,first floor plan©llLab. 叙向建筑
▼整体架构布局,overall planning©llLab. 叙向建筑
▼道具变形,fixture diagram©llLab. 叙向建筑
地点:北京市朝阳区大屯路与北辰西路交叉路口 北辰荟 L136+ L230
项目完成时间:2023年12月
设计周期:2023年09月 – 2023年11月
建造周期:2023年11月 – 2023年12月
建筑面积:400 平方米
项目建筑及室内设计:llLab. 叙向建筑设计
项目建筑师:陈霏
项目成员:Luis Ricardo, 刘涵晓,魏子煜,严予隽,尹凌空,刘凌灵,胡乐贤,左超
结构顾问:栾栌构造设计事务所
项目摄影:Wen Studio,存在建筑
Project Location: L136+ L230, POLPAS, Olympic Park, Chaoyang District, Beijing
Design Period: 2023 September – 2023 November
Construction Period: 2023 November – 2023 December
Construction Area: 400m2
Project Phase: Built
Architectural Design: llLab.
Project Lead: Fei Chen
Project Team: Luis Ricardo, Hanxiao Liu, Ziyu Wei, Yujun Yan, Lingkng Yin, Lingling Liu, Lexian Hu, Chao Zuo
Structural Engineering: LuAnLu Partners Structure Consulting
Photo credits: Wen Studio, Arch-Exist Photography
客服
消息
收藏
下载
最近































































