查看完整案例

收藏

下载

翻译
Architects:Raumus
Area:188m²
Year:2024
Photographs:Norihito Yamauchi
Lead Architects:Masashi Takeda
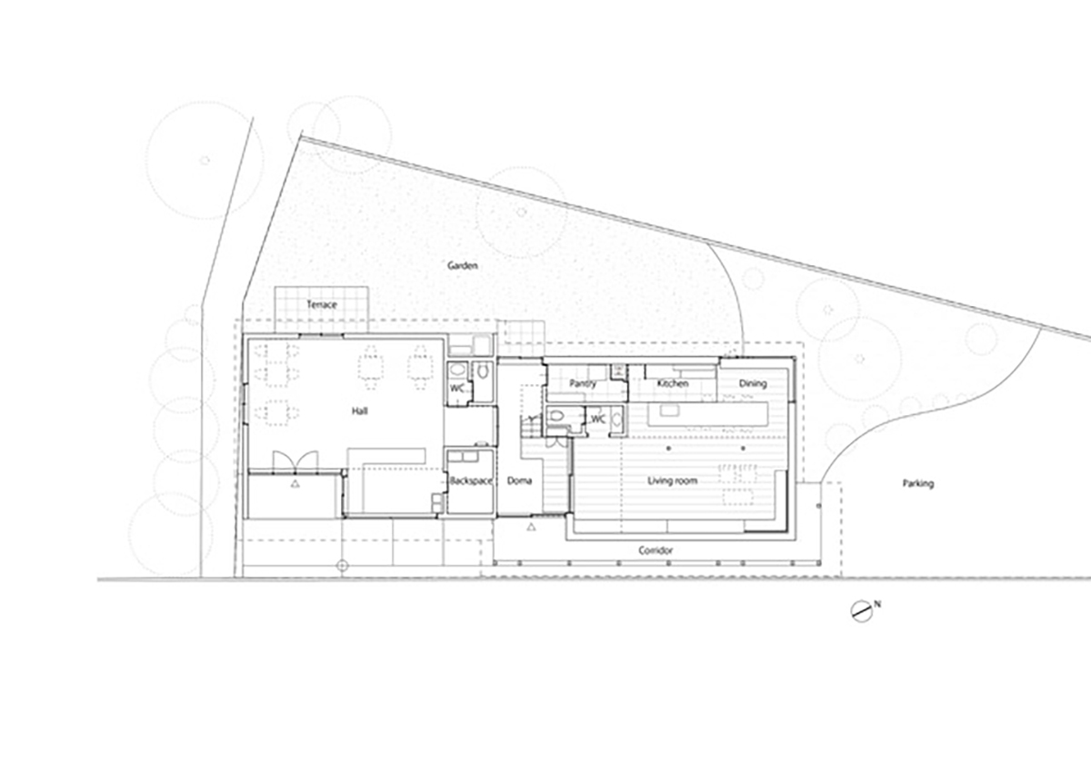
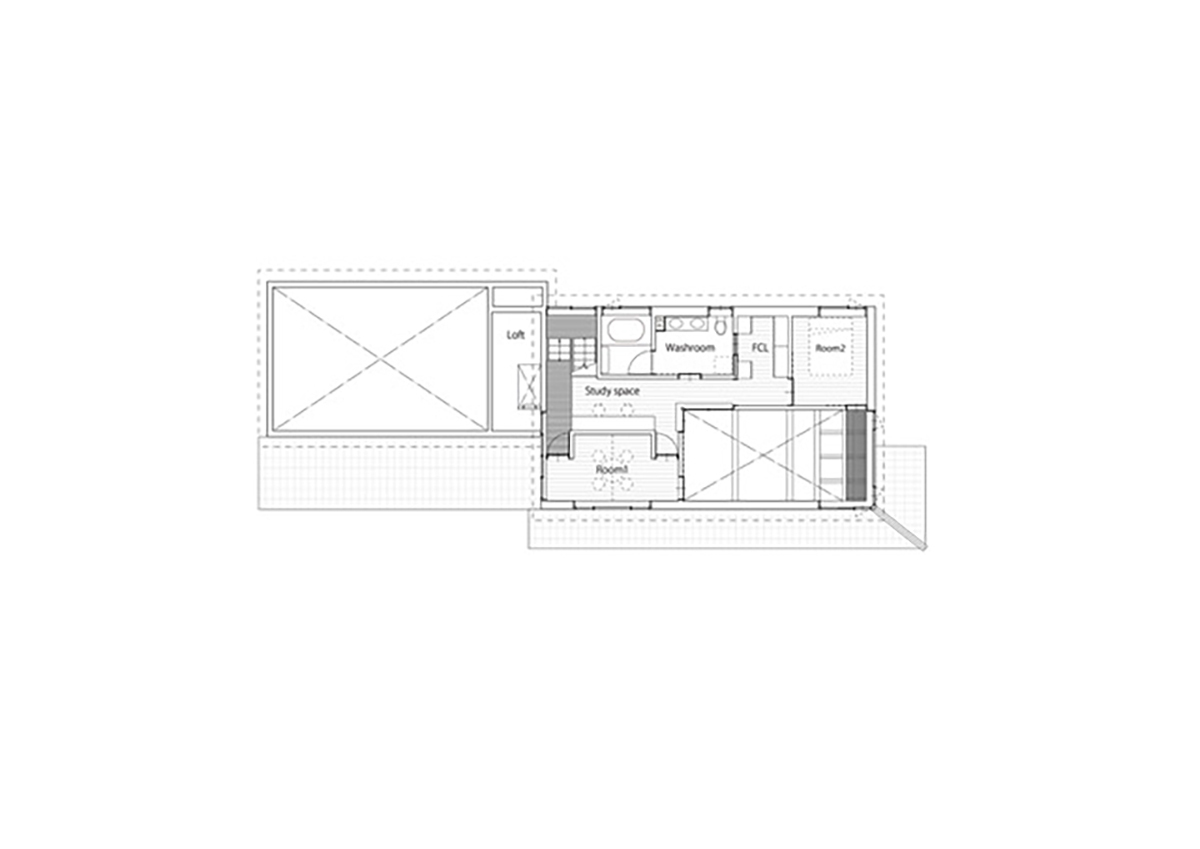
Text description provided by the architects. RENKA is a model house for renovating a 70-year-old rice mill in the center of the former Asakura Town in Fukuoka Prefecture. It was renovated to suit modern lifestyles and built to convey the appeal and possibilities of renovation.
A rice mill that has long been loved and supported by the local people was renovated into a modern residence that makes the most of the building's history and charm while preserving it.
Originally a rice mill, the building consisted of a one-story building used for rice milling and a two-story building used mainly as a warehouse. Because of its large scale as a stand-alone residence, the two-story portion was renovated as a house, and the one-story portion was designed as a retail space, open to the community.
Currently, many model houses are being built all over Japan, but many of them are rebuilt after about five years because the design is consumed and they become old. In response to this situation, we sought to create a sustainable model house that would be loved by the local community and interchangeably related to the model house 'plus alpha.'
Project gallery
客服
消息
收藏
下载
最近
























