查看完整案例

收藏

下载
该项目由一对育有三名子女的夫妇委托建筑师设计,核心理念是让社交空间成为住宅的主角,以促进流畅的社交生活。
The project was commissioned by a couple with three children, with the premise that the social spaces should be the protagonists, allowing a fluid social life.
▼项目概览,overall of the project© Arq. Gonzalo Viramonte
▼入口一侧外观,exterior views of the entrance side© Arq. Gonzalo Viramonte
住宅位于一块面积为1500平方米的平坦地块上,正面朝南,背面朝北。建筑主体占据了前部,并沿着西侧延伸,使社交区域朝北,以优化自然通风并增强穿堂风效果。除了一间位于上层的工作室利用了大露台外,所有主要功能均安排在地面层。
It is located on a flat 1,500m² plot with a South-facing front and a North-facing rear. The house occupies the front, blocking it off, and extends along the West side in order to provide the social area with Northern exposure and encourage cross-ventilation. The general program is located on the ground floor, except for the studio, which is on the upper floor, taking advantage of a large terrace.
▼户外泳池,outdoor pool© Arq. Gonzalo Viramonte
设计的核心之一是在外立面上营造私密性和简约感,使室内及其活动不被街道窥见,而社交空间则完全开放,与花园无缝衔接,形成流动而通透的空间体验。
One of the design premises was to achieve intimacy and austerity from the exterior facade, without allowing the interior or its activities to be visible from the street, but transforming into something completely open and fluid from the social areas to the garden.
▼外立面上营造私密性和简约感,intimacy and austerity from the exterior facade © Arq. Gonzalo Viramonte
▼庭院,courtyard© Arq. Gonzalo Viramonte
▼建筑细部,details of the structure© Arq. Gonzalo Viramonte
入口设计由两面墙体围合,一面隐藏了室内光庭,另一面遮挡了车库。行人入口位于一侧,沿着两面带有肌理的混凝土墙之间的对角路径进入,并通向第二道墙。而车辆及服务入口则位于另一侧,其下方形成一个开放空间,使建筑最厚重的部分悬浮于上方。设计通过偏移支撑结构与流线布局,创造出一种轻盈与视觉上的无重感,同时暴露出所有的结构元素。这种动态关系也体现在覆盖餐厅区域的楼板上,其中三根倒置梁沿一个方向布置,另一根横梁悬挂以支撑廊道,试图在前后庭院之间建立最流畅的空间联系。
For the entrance, two walls were arranged: one hides an interior light courtyard, and the other hides the garage. On one side, there is the pedestrian entrance, which is diagonal and guided by one of the two textured concrete walls leading to the second wall. On the other side, there is the vehicular and service entrance, which creates an open space under the heaviest part of the volume. It plays with lightness and visual weightlessness by offsetting supports and circulation paths, while at the same time exposing every structural element. This dynamic is seen again in the slab that covers the dining area, with three inverted beams in one direction and a perpendicular beam hanging to support the gallery, attempting to create the most fluid connection between the front and rear patios.
▼模糊的室内外界限,blurred interior and exterior boundaries© Arq. Gonzalo Viramonte
▼可滑动玻璃墙,sliding glass wall© Arq. Gonzalo Viramonte
▼纱帘,gauze curtain,© Arq. Gonzalo Viramonte
社交空间包括位于地面层的客厅、餐厅和厨房,并通过双层挑空空间与上层的工作室相连。这些区域采用可移动的木作隔断,使空间界限模糊,整体转变为一个开放式长廊,与前后庭院无缝衔接。
The social area consists of a living room, dining room, and kitchen on the ground floor, connected by double height to the studio on the upper floor. These spaces blur their boundaries through movable carpentry, transforming into a large gallery that opens to the front and rear patios.
▼地面层客厅,ground floor living room© Arq. Gonzalo Viramonte
▼餐厅,dining hall© Arq. Gonzalo Viramonte
▼开放式厨房,open kitchen© Arq. Gonzalo Viramonte
▼通高空间与光影,atrium and light and shadow© Arq. Gonzalo Viramonte
结构设计方面,建筑呈现出一种坚固且真实的表达方式,每个支撑屋顶或体量的构件都直接显露出来,没有“装饰性”的元素。所有体量、隔断、梁柱均清晰地展现其相互关系。上层体量为10米见方的正方形,其支撑柱以逆时针方向从每个角落向内偏移2米,并将荷载传递至四根屋顶主梁。这些主梁相互作用,以“互助”方式形成自支撑结构。
Regarding its structural design, it is worth highlighting the robustness and honest exposure of the elements that support the various roofs or parts. There are no “illusory” elements; rather, each volume, partition, beam, and column exposes its relationship. The upper volume is a square base of 10 meters per side, supported by columns offset in a counter-clockwise direction 2 meters from each corner. This support is transferred to four beams that form the roof, which are self-supporting and work together in a “reciprocal” way.
▼二层居家办公空间,upper floor office area© Arq. Gonzalo Viramonte
▼空间外设有甲板露台,terrace area outside the space© Arq. Gonzalo Viramonte
▼卧室,bedroom© Arq. Gonzalo Viramonte
▼浴室,bathroom© Arq. Gonzalo Viramonte
▼走廊,hallway© Arq. Gonzalo Viramonte
生物气候设计是该项目的关键特征之一。所有房间均配备了促进穿堂风的装置,确保良好的自然通风。私人区域的每间卧室内均设有天窗式换气系统,即使房门关闭,空气仍可流通。此外,分布走廊中的高侧窗(clerestory windows)不仅标示了各房间入口,还设有可对开的窗扇,并配备自动控制系统,以提升自然通风和采光效果。
The bioclimatic design became a key feature through the inclusion of devices that allow cross-ventilation in every room. The private area has, within each bedroom, an air renewal system created by skylights that allow air circulation even when the door is closed. Additionally, in the distribution hallway, the clerestory windows that mark the entrances to the various rooms have opposing windows, which are automated and promote natural ventilation and lighting.
▼光影,light and shadow© Arq. Gonzalo Viramonte
▼天窗,skylight© Arq. Gonzalo Viramonte
▼细部,details© Arq. Gonzalo Viramonte
▼室内夜景,night views of interior© Arq. Gonzalo Viramonte
▼外观夜景,night views of exterior© Arq. Gonzalo Viramonte
▼模型,model© nnarquitectos
▼分析图,analysis diagram© nnarquitectos
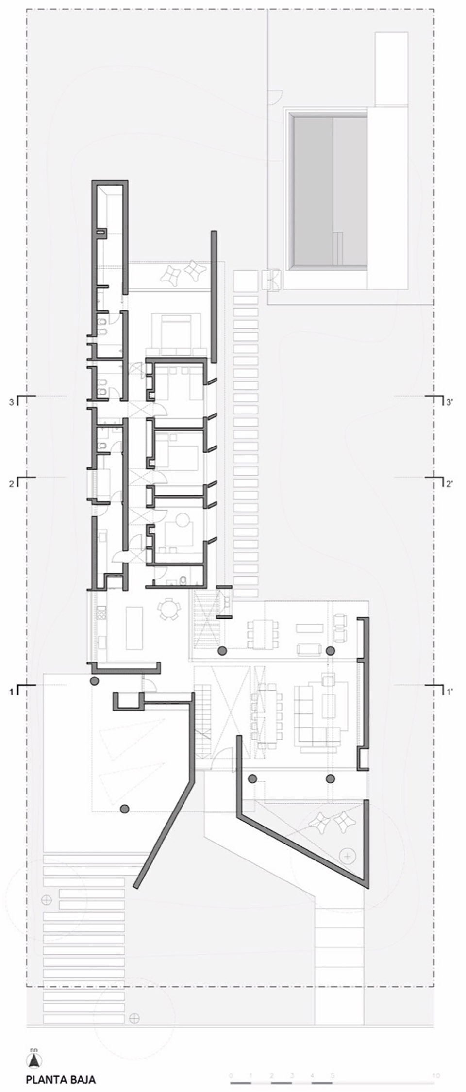
▼一层平面图,ground floor plan© nnarquitectos
▼二层平面图,upper floor plan© nnarquitectos
▼屋顶平面图,roof plan© nnarquitectos
▼立面图,elevations© nnarquitectos
▼剖面图,sections© nnarquitectos
▼剖面图细部,detailed section© nnarquitectos
General Information
Project Name: nnCLP House
Architecture Office: nnarquitectos
Instagram: @nnarquitectos
Office Country: Argentina
Completion Year: 2024
Built Area: 460.00m2
Location: La Cascada Country Golf, Córdoba, Argentina.
Media Provider
Photography Credits: Arq. Gonzalo Viramonte
Photographer Email:
Additional Credits
Design Team: Mgtr. Arq. Luz Roda, Mgtr. Arq. Matias Dinardi / NN Arquitectos
Execution: Arq. Bruno Giovannoni
Engineering: Mgtr. Arq. Eduardo Rodriguez
Landscaping: Mgtr. Arq. Lucas Ruarte
Interior: Arq. Agustina Allende Posse / interiores B.AP
客服
消息
收藏
下载
最近








































































