查看完整案例

收藏

下载
沉寂中孕育宁静 克致中造就永恒
在喧嚣尘世的一隅,隐匿于层峦叠嶂、云雾缭绕的深山之中,有一处不为人知的秘境——山中艺术家,这不仅是自然与艺术的完美邂逅,更是心灵得以栖息的世外桃源。整个宅邸多个露台及阳台,错落有致地分布在各个角落,为居住者提供了多个欣赏自然美景的绝佳视角。
项目图纸
▲左右滑动查看1F-5F原始平面图
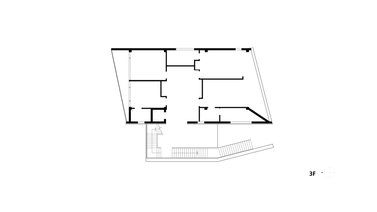
▲左右滑动查看1F-5F改造后平面图
当夜幕降临,建筑又展现出另一番迷人的景致。万籁俱寂之中,星空如洗,银河低垂,仿佛触手可及。此时,在宅邸的星空露台上,一场关于宇宙、人生与艺术的深刻对话悄然展开,让人在仰望星空的同时,也重新审视内心的世界。
在这里,让心灵得以栖息,让灵魂得以自由飞翔,共同体验一场关于自然、艺术与生活的美妙旅程。
▲1F-4F空间轴测图
房子主体建筑,以混凝土为主材,不加过多雕饰,却自有一股质朴而高雅的气息。外部结构,仿佛是自然与建筑的一场浪漫对话,既尊重了山林的原始风貌,又展现出设计师对空间布局的独到见解。
宅邸依山而建,巧妙融合于葱郁的林木与潺潺溪流之间,既保留了自然的原始风貌,又注入了艺术家对美的独特见解,踏入门厅,迎面而来的红色引人注目。
▲设计师与艺术家合影
设计师以理性的思维勾勒生活的实用之美,与艺术家感性的笔触交融碰撞,迸发出璀璨的火花。
照明设计同样别具匠心,设计师巧妙地利用自然光与人工光源的结合,营造出温馨而不失层次的光影效果。壁灯、台灯以及隐藏式间接灯光等多种照明方式互为补充,既满足了日常照明的需求,又增添了空间的艺术氛围。特别是在夜色中,柔和的灯光洒在空间的每一个角落,让整个室内空间显得温馨而神秘。
室内的设计风格,是自然与艺术的和谐共生,既体现了对自然之美的深刻领悟,又融入了设计师对居住空间的独特创意与情感表达。踏入室内,便有一股温馨而雅致的氛围便扑面而来。
大面积的落地窗设计,让室内空间与室外景致无缝对接,无论是晨光初照,还是夕阳西下,都能将山间的美景尽收眼底。
家具的选择上,设计师与业主都偏爱简约而不失设计感的款式。沙发上覆盖着柔软舒适的棉麻布料,色彩柔和,与整体风格相得益彰,木质家具占据了主导地位,它们线条流畅,质感温润,不仅耐用而且充满自然韵味。
引入的天光在墙面作画形成移动的画布,赋予空间动态美感。洞洞墙与光线结合的多样性和创造性,虚实明暗的光影效果与镜面的设计,为空间带来独特的视觉体验和情感表达。
空间整体色调以原木色、及暖灰色为主,营造出一种宁静而舒适的居住环境。墙面及顶面均为艺术漆,保留了材质的原始质感,与室外的自然环境相呼应,让人仿佛置身于大自然的怀抱之中。
在这里,时间似乎变得缓慢而悠长。你可以漫步于空间之内,聆听山涧溪流的低吟浅唱,手捧一杯香茗,远眺连绵群山。
大面积的留白营造安静的氛围,恰当的跳色点缀成为视觉焦点为空间添加活力与层次感。
在装饰品的摆放上,墙上挂着的是业主及友人的书画作品,它们不仅是艺术的展现,更是情感的寄托。书架上摆满了各类书籍、艺术品及手工艺品,每一件都承载着家的故事与记忆。此外,还有一些从世界各地搜集而来的小物件,如陶瓷花瓶、石雕摆件、民族风情的织物等,它们为空间增添了几分异域风情与文化底蕴。
静坐于露台之上,近观云雾缭绕,让心灵在自然的怀抱中彻底放松。更可深入艺术家的工作室,亲眼见证那些令人惊叹的艺术品是如何在艺术家的巧手下诞生的,感受那份对艺术的执着与热爱。
白天,拉开窗帘,尽享自然光与外部美景;夜晚,则通过层次丰富的照明营造温馨舒适的氛围。灯光的变化不仅塑造出独特的空间层次,也带来别样的视觉景致。
整个内部的空间布局既开放又私密,既满足了日常生活的便利性,又保证了每个空间都能独立成景,形成独特的视觉焦点。无论是宽敞明亮的客厅、静谧舒适的卧室,还是充满艺术气息的工作室,都让人在享受居住的同时,也能感受到艺术的熏陶与启迪。
让自然光线成为主卧室的一部分,通过落地窗将景观引入室内,带来自然的气息,在房间里洒下斑驳的光影,如同岁月的笔触,勾勒出生活的美好画卷,营造和谐而宁静的氛围。在这里,你可以静静地阅读一本好书,或者只是闭上眼睛,享受片刻的宁静与沉思,放下所有的疲惫与烦恼。
“山中艺术家”是一种对自然与艺术的深刻理解与融合,它不仅仅是一个居住的空间,更是一个充满情感与故事的艺术殿堂。设计师巧妙地将自然元素融入建筑与空间设计之中,创造出了一个既符合居住需求,又充满艺术气息的生活空间。在这里,人们可以尽情地享受大自然的恩赐,感受艺术与生活的完美融合。
“山中艺术家”也是一个艺术交流与文化传承的平台,定期举办的艺术沙龙、工作坊及展览,吸引了众多国内外艺术家、文化学者及艺术爱好者前来交流学习,共同探索艺术的无限可能。在这里,每一次的相遇都是灵感的碰撞,每一次的对话都能激发新的思考。
群山之中梦开始的地方——“山中艺术家”探秘。室内装饰简洁而不失格调,墙上挂满了艺术家本人的书画作品,每一幅都是对自然、生命与情感的深刻诠释,让人在欣赏之余,也能感受到艺术所蕴含的力量与温度。
(以上所有画作均为该艺术家王之琛作品)
王之琛,又名王琛、王治龙,号塔珠岭人。浙江省宁海人,出生1965年,1988年毕业于宁波师范学院。结业于姜宝林中国画工作室高研班和国家画院胡伟综合材料绘画高研班。现为宁波市玖玖美术馆馆长,宁波市美术家协会副主席,浙江省美术家协会理事,中国美术家协会会员,宁海美术家协会名誉主席。浙江师范大学综合材料艺术研究所副所长,浙江师范大学硕士生专业实践导师,东华大学服装与艺术设计学院硕士生导师。
《红岩》
150x150cm,石粉丙烯
《阳光明媚》
2200*150cm,麻布,丙烯
《天明山2024.4号》50x40cm,综合材料绘画
《天明山2024.1号》50x40cm,综合材料绘画
《春波》
120*120cm,麻布,丙烯
《郁金香》
60*60麻布、丙烯
《清华》
80*60cm麻布、丙烯
《芳华》
136*136cm、宣纸,丙烯,墨
项目信息
项目名称:“山中艺术家”
项目地点:中国,宁海
项目性质:私人住宅
项目面积:800平方米
设计时间:2021年
交付时间:2023年
项目设计:秦侃/KAD STUDIO
项目摄影:阿刁
秦侃 Kanye KAD STUDIO创始人 注册建筑师/室内设计师
秦侃先生,KAD STUDIO创始人,毕业于同济大学,注册建筑师,40 UNDER 40当代设计杰出青年。其凭借着对设计的直觉与热情,在建筑、室内、景观、家具等领域都保持着深入的研究。以自然和场地为切入,融合传统与现代,通过言简意赅的设计语言塑造空间形态。基于建筑学理论,借鉴艺术、哲学和社会文化,致力于构建引人入胜的空间体验,以回应空间需求中的独特个性和情感层次。其作品旨在让生活成为超越功能性的文化体验,引导人们步入一个富有故事性的建筑世界。
KAD STUDIO于2017年创建于上海。我们是由国内外建筑师、室内设计师组成的优秀团队,提供跨越建筑、景观、室内及陈设艺术为一体的设计服务,拥有丰富的设计管控与项目实践经验。作为城市发展的见证者和践行者,拥有前瞻性理念的KAD不仅为客户创造更多的价值,同时也对行业进行不懈探索,积极面对严苛的时代,怀抱永往直前的热情,致力于行业的启迪与更新,为当下社会、经济和环境可持续发展贡献责任与力量。
客服
消息
收藏
下载
最近









































































