查看完整案例

收藏

下载
位于拉丁美洲最大金融轴心的Praça Henrique Monteiro,不仅是一座多功能综合体,更是设计、文化、艺术、美食与酒店体验的交汇之地。这座建筑群是圣保罗城市肌理的重要组成部分,通过精心策划的统一建筑结构,将多种功能融合于一体,为城市带来全新的活力与互动体验。
A mixed-use complex located in the largest financial axis of Latin America, also serving as a destination for design,culture, art, gastronomy, and hospitality in São Paulo. This is the essence and main goal of Praça Henrique Monteiro—a significant contribution to São Paulo’s urban fabric, integrating various functions within a carefully designed andunified architectural structure.
▼项目概览,overview of the project ©Fran Parente
▼项目外观,exterior of the project ©Fran Parente
Praça Henrique Monteiro 坐落于法里亚·利马大道(Faria Lima Avenue)附近的一条支路上,占地3,000多平方米,面向三条不同的街道。项目包括一座住宅塔楼和Pulso 酒店的首个分店,两者由一个包含林荫步道、餐厅、酒吧及法式面包店的底层空间连接,并在上方设有一座绿意盎然的空中花园,俯瞰命名该建筑的亨里克·蒙特罗街(Henrique Monteiro Street)。
▼轴测图,axonometric©Arthur Casas
Located on a side street off Faria Lima Avenue, on a plot spanning over 3,000 square meters and facing three different streets, the project features a residential tower and the first unit of the Pulso Hotel. These are connected by a ground floor with a boulevard, restaurant, bar, and boulangerie, and above them, an elevated, green square with views of the street that names the building.
▼项目鸟瞰,aerial view of the project ©Fran Parente
其显著特点之一是统一的视觉识别系统。作为圣保罗少有的由同一家设计事务所打造的建筑群,项目确保了建筑与室内空间的整体性,并在安全性、隐私性及功能效率之间取得了高度优化的平衡。
One of its strengths is the unified visual identity. It is one of the few destinations in São Paulo with architecture and interiors entirely conceived by a single firm, ensuring a cohesive design and significant space optimization, intelligently articulated to guarantee security, privacy, and program efficiency.
▼项目鸟瞰,aerial view of the project ©Fran Parente
立面设计
Facade
该综合体的建筑轮廓由多个体量组成:40 层住宅塔楼相邻的Pulso 酒店;承载两者的底层基座,包含活跃的商业界面共享的空中休闲区,提供绿化与社交空间。
The complex’s striking silhouette is defined by a combination of volumes: the 40- story residential tower; the adjacentPulso Hotel; the base that supports both, featuring an active facade with retail and access areas; and the elevatedleisure area shared between them.
▼建筑立面,building facade©Fran Parente
在这一设计中,没有单一建筑体量被过分突出,各部分在功能上独立但相互补充,并通过绿植空间填充交界区域。建筑师 Arthur Casas 形容其立面为“低调却庄重、永恒而不过度”,确保建筑能够融入城市景观,而非破坏其原有秩序。
No single volume is more valuable than another; each stands independently yet complements the others infunction, with green spaces filling the gaps. In Arthur Casas’s words, the facade is designed to be “discreet but imposing, timeless and without excess,” ensuring it does not disrupt the urban landscape.
建筑的美学策略融合了深色自然材料与轻盈精致元素,创造出视觉上的平衡:住宅部分:采用金属遮阳板和香槟色质感饰面,并搭配玻璃护栏及天然木质天花板,使阳台空间更具通透感。Pulso 酒店立面:配备可折叠木质开窗,与建筑整体调性相呼应。可移动遮阳板不仅增强了建筑美感,同时提供隐私保护,并允许自然光线和空气流通,使立面呈现动态变化的活力。
The aesthetic solution combines dark, natural materials with lighter, more delicate ones, achieving a visual balance.Residential units feature metal brises and champagne-toned textured finishes, complemented by glass guard rails and natural wood ceilings on the terraces. The Pulso Hotel’s facade includes folding openings in a wood tone matching the ceilings. The movable brises are crucial to the building’s aesthetics, offering privacy while allowing natural light and ventilation. Their user-controlled movement adds dynamism and vibrancy to the ever-changing facade.
▼低调却庄重的立面,discreet but imposing facade©Fernando Guerra
▼采用金属遮阳板和香槟色质感饰面,feature metal brises and champagne-toned textured finishes©Fran Parente
在建筑基座部分,预制混凝土元素构成水平线条,与人行道自然衔接,而香槟色金属板和玻璃幕墙赋予其现代感。夜晚时,来自底层支柱的照明营造出自下而上的光影效果,突出建筑的整体形态。
At the base, concrete precast elements create a horizontal line to distinguish it from the other volumes and extends seamlessly to the sidewalk. Below, champagne- toned metal panels and glass predominate. At night, lighting from the base’s pillars creates a dramatic effect, highlighting the structure from bottom to top.
▼突出建筑的整体形态,highlighting the structure©Fernando Guerra
▼香槟色金属板和玻璃幕墙赋予其现代感,champagne- toned metal panels and glass predominate©Fran Parente
建筑功能规划
Architectural Program
在这一多功能项目的设计过程中,建筑与自然的共生是核心原则。建筑不仅需要紧密融入城市环境,还需在使用体验与运营需求之间创造和谐且流畅的空间动线,以应对多种功能同时发生的挑战。
▼功能轴测图,function axonometric©Arthur Casas
The symbiosis between architecture and nature was key in designing such a multifunctional project. It was essential to create a building connected to the city while also providing harmony and fluidity of flows, both for users and operations, which sometimes occur simultaneously.
▼建筑与自然的共生,the symbiosis between architecture and nature©Fran Parente
▼建筑与自然的共生,the symbiosis between architecture and nature©Fran Parente
为解决这一挑战,建筑师通过设计更大的共享空间来应对这一挑战。例如,大堂通过底层林荫大道与外墙商业设施无缝衔接,二层设有公共休闲区,在住宅区和酒店区共用的悬空夹层中设有游泳池和水疗中心。同样,高架广场也简化了操作。该解决方案还体现在大楼的地下室,服务、支持、装载和卸载区域在这里融为一体。Henrique Monteiro 街立面集中商业功能,形成活跃的街道界面。Fernandes Coelho 街立面提供住宅专属出入口,确保隐私和安静的居住环境。Bianchi Bertoldi 街规划为服务与装卸通道,优化后勤管理。
This challenge was addressed by designing larger, shared spaces. For instance, the lobby seamlessly merges with the façade commercial facilities through the ground- floor boulevard, and the second level features common leisure areas with a pool and spa in a suspended mezzanine shared between the residential and hotel volumes. Similarly, the elevated square simplifies operations. The solution is also evident in the building’s basement, where service, support, loading, and unloading areas are integrated. While the façade facing Henrique Monteiro Street concentrates commercial functions, the face of the building facing Fernandes Coelho Street, more secluded, houses the exclusive residential access. Bianchi Bertoldi Street accommodates service and loading access.
▼底层林荫大道,the ground- floor boulevard©Fran Parente
▼抬高的花园,elevated garden©Fran Parente
▼林荫大道与外墙商业设施无缝衔接,the lobby seamlessly merges with the façade commercial facilities©Fran Parente
▼底层林荫大道,the ground- floor boulevard©Fran Parente
此外,轻质坡道的使用确保了不同体量之间的无缝衔接,同时优化了高层建筑的紧急通道配置。整个过程中,建筑团队与各领域专家及客户紧密合作,以实现最流畅且几乎不可察觉的空间过渡。在如此大型的项目中,建筑需要适应多种不同类型的空间需求。
Additionally, the use of lightweight ramps levels access to the different building volumes, organizing exclusive entrances for each function and accommodating emergency infrastructure for a high-rise building. Throughout the process, the architectural team consulted with a range of experts and clients to achieve transitions that are as smooth and imperceptible as possible.
▼不同体量之间的无缝衔接,the combination of different building volumes©Fran Parente
因此,设计团队选择住宅单元与酒店房间强调紧凑与温馨,优化居住体验;而户外与共享休闲空间则采用更高的层高,营造开放氛围,鼓励住户与游客在此停留、交流与体验都市自然的融合。
Working with contrasting typologies in such a large project, the choice was to focus on more compact and cozy residential units and hotel rooms, while allocating more generous ceiling heights to outdoor and shared leisure spaces, encouraging the presence and stay of guests, residents, and visitors in these areas.
▼营造开放氛围,created open atmosphere©Fran Parente
公寓楼
The apartments
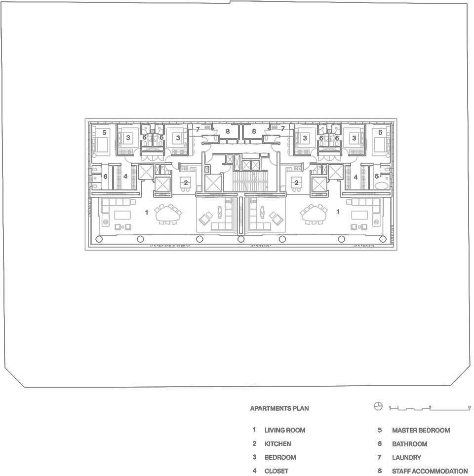
Casas设计的公寓采用高效的232平方米建筑布局,取消了传统走廊,使18 平方米的宽敞起居空间围绕全景视野展开。社交空间拥有24 米通透外立面,通过阳台上的可调节遮阳板(brise-soleil)引入充足的自然光线与空气流通。考虑到该公寓位于城市核心区域,周边配套服务完善,厨房、服务区、盥洗室及次卫均经过优化,采用紧凑设计以提升空间利用率。
建筑师表示:“我的设计始于人的需求,旨在促进人与景观之间的最佳互动。”
With an efficient architectural layout of 232 sqm, the apartments designed by Casas eliminate corridors, offering generously sized living areas of 18 sqm surrounded by panoramic views. The social space features a 24 - meter perimeter of transparency, with abundant natural light and ventilation provided by movable brise - soleil on the terrace area. The kitchen, service areas, powder room, and secondary bathrooms have been optimized with reduced dimensions, considering this is an urban apartment situated in a city already rich in services.
“My projects start with people and their needs, fostering interaction and the best relationship with the landscape,” emphasizes the architect.
▼走廊,corridor©Fernando Guerra
▼公寓内部,inside of the apartment©Fernando Guerra
▼浴室,bathroom©Fernando Guerra
与城市产生连接
Connected with the city
Praça Henrique Monteiro作为同名街道城市更新的重要催化剂,其 57 米长的公共步道不仅是通行空间,更通过增设城市家具、拓宽人行道及打造前庭绿化区,促进社交互动。
Praça Henrique Monteiro acts as a catalyst for significant transformation on its namesake street. Spanning 57 meters, the public promenade extends beyond mere passage, fostering social interaction with the addition of urban furniture, widened sidewalks, and a green front area.
▼从街道仰视建筑,look up to the building from the street©Fernando Guerra
建筑整体向街道后退 9 米,形成绿树成荫的步行大道,吸引行人探索空间,其中包括酒店开放式大堂、Bistrô Charlô餐厅、Cha Cha Boulangerie面包坊及Bar Sarau酒吧,每个场所都承载着丰富的文化与艺术活动。郁郁葱葱的植被,如大叶植物与ipê树,不仅加强了人与自然的联系,也为游客、住户及宾客提供隐私保护。
Set back 9 meters from the street, the tree-lined boulevard invites pedestrians to explore the space, featuring the hotel’s open lobby, Bistrô Charlô, Cha Cha Boulangerie, and Bar Sarau – each offering a vibrant cultural and artistic program. Lush vegetation, including large-leaf plants and ipê trees, enhances the connection with nature, providing privacy for visitors, residents, and guests.
▼开放式大堂及面包坊,open lobby and bakery©Fran Parente
▼开放式大堂及面包坊,open lobby and bakery©Fran Parente
▼开放式大堂,open lobby©Fran Parente
▼开放式大堂,open lobby©Fran Parente
▼郁郁葱葱的植被,lush plants©Fran Parente
位于建筑上方的私享空中花园,为住户和宾客提供静谧的沉思空间,并可俯瞰街景。而9米高的玻璃围合体量悬浮于空中,内部设有住宅与酒店共享的休闲设施,包括泳池、健身房、水疗中心、休憩区、更衣室及桑拿房,在空中广场的绿荫树冠之上营造独特的景观体验。
Just above, a private elevated garden exclusive to the development offers a contemplative space with panoramic views of the street. A glass-enclosed volume, suspended 9 meters above ground, houses the residential and hotel leisure areas, including a pool, gym, spa, relaxation zone, changing rooms, and sauna, all overlooking the treetops of the elevated square.
▼悬浮于空中的私享空中花园,a private elevated garden overlooking the treetops©Fernando Guerra
Pulso酒店
Pulso Hotel
Pulso 酒店致力于通过融入圣保罗的文化生活,重新定义现代酒店体验,将国际都市的活力与高水平的艺术创作相结合。建筑拥抱城市脉动,以无障碍的开放式空间和充满活力的商业立面促进与城市的互动。
The Pulso Hotel aims to redefine hospitality by integrating with São Paulo’s cultural life, blending cosmopolitandynamics with high-level artistic production. The building embraces urban life, fostering vibrant interactions with thecity through its barrier-free access and dynamic commercial active façade.
▼开放式大堂,open lobby©Fran Parente
▼开放式大堂,open lobby©Fran Parente
酒店共设有57间套房,面积介于32至64平方米之间,每间都经过精心策划,陈设包括精美的家具、珍稀古董以及受圣保罗景观启发的艺术品。这些藏品由Studio Arthur Casas团队从艺术博览会和古董店精挑细选,其中包括巴西知名设计师Sergio Rodrigues、Percival Lafer和Geraldo de Barros的作品。
Each of the 57 suites, ranging from 32 to 64 sqm, offers a unique experience with meticulously curatedfurniture and objects, including rare antiques and artworks inspired by São Paulo ’s landscape. The StudioArthur Casas team selected these items from fairs and antique stores, featuring pieces by renownedBrazilian designers such as Sergio Rodrigues, Percival Lafer, and Geraldo de Barros.
▼酒吧,bar©Fran Parente
▼酒吧,bar©Fran Parente
在酒店的内庭花园,户外艺术装置《Mácula》(1994),由艺术家 Nuno Ramos 创作,这块长达 30 米的浮雕板上刻有盲文,与周围的建筑与绿化环境和谐融合。宾客可通过大堂进入多家精选餐饮空间:Bistrô Charlô 提供融合法式、意大利、西班牙、葡萄牙及巴西风味的精致菜单;Cha Cha Boulangerie 集咖啡馆、面包坊、熟食店与精品商店于一体;Sarau Bar 则是一个私密而富有艺术氛围的空间,每周举办小型现场演出,并由屡获殊荣的调酒师 Gabriel Santana 精心调制特色鸡尾酒。
In the hotel’s internal garden, the outdoor “Mácula” (1994) by Nuno Ramos—a 30- meter-long panel withBraille inscriptions—is harmoniously integrated with the surrounding architecture and greenery. Guests can access various dining options through the lobby: Bistrô Charlô, offering a French menu with Italian,Spanish, Portuguese, and Brazilian influences; Cha Cha Boulangerie, combining café, boulangerie, rotisserie, and gourmet store; and Sarau Bar, an intimate space with weekly pocket shows and signature cocktails crafted by award-winning bartender Gabriel Santana.
▼花园夜景,garden night view©Fernando Guerra
▼地面层夜景,ground level night view©Fran Parente
▼夜景,night view©Fran Parente
▼一层平面,ground floor plan©Arthur Casas
▼公寓平面,apartments plan©Arthur Casas
▼剖面,section©Arthur Casas
客服
消息
收藏
下载
最近

























































































































































