查看完整案例

收藏

下载
项目位于城市新旧文化交织的街区转角,周边阵列式绿植、线性街道网格与历史建筑肌理共同构成独特的场所语境。
框架是建筑结构的支撑,赋予其强度、刚性和形态,但往往隐藏于视线之外, 设计上回应环境中的几何秩序与自然生长性,将建筑与环境的互动作为核心思考。
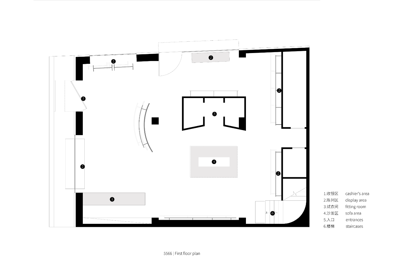
框架作为空间骨骼
将“框架”作为设计核心,使其成为空间的可见结构,以几何模块重复、错位、叠加,形成错层、挑空与悬浮体块,外立面框架延伸至室内,成为贯穿空间的视觉轴线。这种逐步而富有创意的改造过程,造就了丰富的高低落差、错层结构和多样化的开窗布局, 使整个建筑呈现出独特而迷人的空间叙事。
垂直动线与功能叠合
内部以中央挑空区为核心,上升的楼梯串联空间:首层为开放社交区,主打生活方式品牌,聚焦独立设计师时装。
二层设置VIP沙龙与办公。通过错层平台形成“悬浮盒子”,在垂直向度上构建多重视觉交互。形成视觉开放却相对私密的空间,也营造出渐进式的体验。
可调节的框架单元既是货架也是空间隔断,钢架嵌入磁吸模块,线性金属框架的硬朗线条,镜面与曲面石膏造型、织物软装形成张力,内置本地陶土、织物纤维等材料样本,传递可持续设计理念。
该项目不仅是一个品牌容器,更试图构建一种新的商业空间范式:框架结构成为连接城市、品牌与个体的媒介,材质温度消解消费空间的疏离感,最终实现“人-物-场”的情感共鸣。当顾客触摸石砖墙面的凹凸肌理,或透过钢格栅凝视街角梧桐树影时,空间便完成了从物理场所到记忆载体的转化——这正是“编织视角”的深层意图:让设计成为持续生长的生活剧本。
项目名称:5566 品牌集合店
项目类型:商铺
设计公司:unknown design
完成时间:2025.1月
项目地址:金华
建筑面积:264m²
施工单位:上善装饰工程有限公司
空间摄影:ACT.Lihao
我们相信好的设计能对人们的生活产生积极影响
组织内分为三大中心:工作环境中心(活化商业机能),生活风格中心(增进生活乐趣),社区营造中心(创造区域凝聚力)
我们以原创设计为核心,以策划设计与顶尖顾问作为公司赢得市场的根本,通过创建高效率和可持续发展的空间来帮助我们的客户推动创新,让人们在其中能自由生活、学习、工作和娱乐。我们能把抽象的理念,理想的愿景,付诸于实践,改善人在建筑环境的体验。
客服
消息
收藏
下载
最近





















