查看完整案例

收藏

下载

翻译
Sesc Galeria | São Paulo
As galerias comerciais surgiram entre os séculos XVIII e século XIX na Europa, especialmente pela necessidade de criar espaços de comércio protegidos do clima, utilizando as inovações arquitetônicas promovidas pelo uso de aço e vidro.
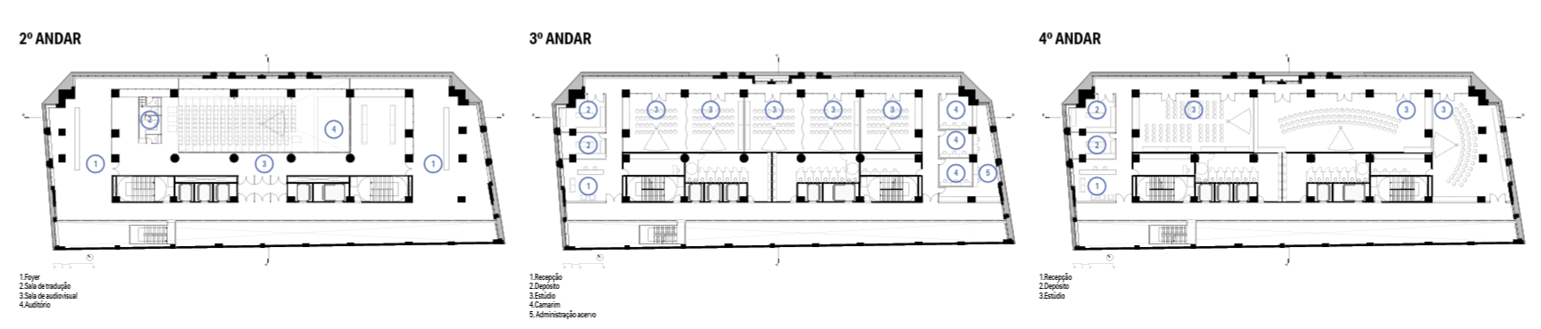
As galerias comerciais de São Paulo surgiram no início do século XX, influenciadas pelos modelos europeus. Foram criadas como uma solução arquitetônica para conectar ruas importantes do centro da cidade, oferecendo espaços cobertos para o comércio e tornando-se pontos de encontro da sociedade paulistana. Ainda hoje, as galerias comerciais continuam desempenhando um papel essencial na ambiência urbana do centro de São Paulo, servindo como pontos de resistência do comércio tradicional e espaços de cultura urbana. O edifício João Brícola está implantado em um topo de quadra circundado por três logradouros de alta importância e grande fluxo de pedestres. Também compartilha espaço com o Teatro Municipal, um pólo de cultura que atrai grande público, criando assim um ponto de convergência bastante intenso e que, portanto, tem alta demanda por espaços peatonais. Estratégia de intervenção Sendo a tipologia de galerias tão adequada para criação de vida urbana, além de ser um elemento já consolidado e pertencente ao centro da cidade, e o entorno tão pedestrianizado, a presente proposta para esse SESC busca recuperar o modelo das galerias, ressignificando, para não só trazer para si a rica urbanidade circundante, como também para se servir dela como organizadora e articuladora dos espaços internos, entrada de luz natural e espaço de consumo, conectando solidamente o edifício ao tecido urbano.
A solução encontrada foi criar novos eixos que se desenvolvem internamente, constituindo assim uma quarta rua, conectando linearmente a rua Xavier de Toledo à rua Conselheiro Crispiniano, e uma forte relação com o Theatro Municipal e os edifícios do entorno. Assim, gesto fundamental do projeto foi abrir as lajes dos primeiros andares na região em que tocam o prédio adjacente, destacando-o e criando condições para recebimento de iluminação zenital. Dessa forma, criam um novo eixo urbano. Desta forma, o edifício ganha agora uma “quarta via” interna, conectando a Rua Conselheiro Crispiniano à Rua Xavier de Toledo. Um espaço banhado por luz natural, que dá origem à Galeria João Brícola, um novo epicentro social do edifício – arejado, iluminado e monumental.
EQUIPE - arquitetos conceituais: Marcella Spinelli, Robson Canuto, André Pepato e Bruno Tinoco | CGI: Gustavo Gorgen.
客服
消息
收藏
下载
最近






















