查看完整案例

收藏

下载
在当今日益城市化的世界中,为城市住宅注入个性,并与外部环境建立联结,其重要性前所未有地凸显。一个能作为避风港、体现居住者个性并在都市喧嚣中提供片刻宁静的家,才是真正意义上的奢华居所。
In today’s increasingly urbanised world, the significance of imbuing urban homes with character and fostering a connection with the outside environment has never been more pronounced. Homes that serve as sanctuaries, reflect individuality and provide respite from urban chaos, embody the true essence of luxury.
▼公寓外观,Exterior view© Jeetin Sharma
位于新德里的“A45”,坐落于一片繁茂绿意之间,两侧环绕着凤凰木、印度楝树、阿育王树、果紫树与榕树。这套单身公寓的主人是Sandeep Barasia——一位物流管理领域的资深人士,曾为咨询巨头贝恩公司在印度建立本地运营基地,并担任Delhivery首席财务官长达九年,带领公司实现飞跃式发展。打造这一住宅的初衷,是营造一个舒适、适合私密聚会的空间,同时也作为他庞大艺术收藏的宝盒。这套顶层公寓总面积约为5900平方英尺,通过室内楼梯可直通温室、露台与泳池区。
Located in New Delhi, A45 is nestled amidst a lush vegetation of Gulmohar, Neem, Ashoka, Jamun, and Banyan trees on two sides. This bachelor pad belongs to Sandeep Barasia, a logistics management veteran who established the base operations for the consultancy giant Bain and Company in India and propelled the growth of Delhivery as its CFO for over nine years. The home was born with the intent to create a comfortable home that could lend itself to intimate gatherings while also functioning as a jewel box for his extensive collection of art. The penthouse is spread over an area of 5900 sq.ft and provides access to a conservatory, terrace, and pool area through an internal staircase.
▼公寓周围环境,Surrounding context© Jeetin Sharma
住宅按照线性动线布局,强调地块的纵深。中央设有一座蜿蜒的螺旋楼梯,将客厅、餐厅、半开放书房与钢琴角等共享空间,与主人的私密卧室区域分隔开来,实现从开放空间向私密空间的自然过渡。整个住宅被置于一座玻璃盒子之中,光线得以引入,并捕捉周边环境景致,实现了与室外的无缝连接——这是现代多层住宅中常被忽视的特质。
The home is organised in a linear program, exaggerating the length of the plot. A central, sinuous spiral staircase separates the shared spaces of the living area, dining space, semi-private study, and piano nook from the owner’s private quarters, facilitating a seamless transition from the open living space to the bedrooms. The entire space is housed within a glass box that is modulated to bring in light and capture views of the building context, creating a seamless connection with the outdoors, an element often missed in modern multi-storey homes.
▼起居空间,Living space© Jeetin Sharma
在室内空间的线性格局中,这座曲线楼梯打破了规则,成为视觉焦点。它以雕塑般的简洁感立于中央,通往上层露台。白色大理石楼梯柔和地盘旋在Lee Broom设计的Crescent Pendant吊灯周围,而吊灯又聚焦于G. Ravinder Reddy创作的标志性“头部”雕塑。来自楼上的自然光洒落楼梯,与白色调融合,突显楼梯的建筑张力。
Breaking away from the interior’s rectilinearity, the curved staircase forms a focal point, standing out with its sculptural simplicity and leading up to the terrace. The white marble staircase appears to gently curve around a suspended Crescent Pendant light by Lee Broom that, in turn, brings focus to an iconic ‘Head’ sculpture by G. Ravinder Reddy. Light filtering in from the upper floor cascades along the steps, joining forces with the staircase’s white tones to spotlight the structure.
▼曲线楼梯,The curved staircase © Jeetin Sharma
整体室内配色以单色调为主,配合木质地板的温润,使空间成为艺术收藏的理想背景。每个起居空间皆围绕艺术作品展开设计——低座沙发搭配延展平台,衬托一盏由Beyond Design打造的大型现代铜灯,同时柔和过渡正式与非正式客厅区域。
A largely monochromatic interior scheme with warmth brought in through wooden flooring creates a subtle, well-crafted backdrop for the owner’s collection of art to take centre stage. Each portion of the living space is further designed around statement pieces of art — a low-seater sofa with an extended ledge celebrates a large contemporary brass lamp by Beyond Design while also forming a gentle transition between the formal and informal living spaces.
▼阳台,Belcony© Jeetin Sharma
餐厅空间延续“柔和”主题:一张无缝圆形整体大理石餐桌,搭配圆润的座椅及Jasper Morrison设计的Smithfield吊灯,柔化背景中现代绘画与条纹木墙板的线性元素。石材与座椅的色彩与温润木地板协调统一,通风管道则保持裸露,呼应住宅的当代风格。
The dining area is treated with the reigning theme of softness; a circular, seamless, monolithic marble table, rounded chairs and a Smithfield pendant light by Jasper Morrison balance the linear profiles of a contemporary painting and fluted timber wall panelling in the backdrop. The colours of the stone and chairs harmonise with the warm timber flooring. The ducting is exposed in line with the modern theme of the dwelling.
▼餐厅,Dining room © Jeetin Sharma
▼餐厅近景,Dining room close view© Jeetin Sharma
钢琴角陈设了由设计师Arun Kumar创作的红色猴子雕塑,配以Lonna Vautrin设计的Binic灯,与钢琴的黑色亮面形成鲜明对比,为角落注入独特个性。钢琴角后的书房沐浴在湾窗洒入的自然光中,融合木质元素,营造出专注且舒适的工作环境。书桌与椅子嵌入窗台之中,可眺望绿意盎然的景观。起居室使用的天然橡木地板延伸至此,带来空间连续感。如同住宅中其他区域,这里也是主人的宝藏之地——珍贵的家族照片与古董件构成空间焦点,其余家具与材料围绕它们展开。
The piano nook features a sculpture of monkeys in striking red, a work of designer Arun Kumar. The sculpture and the Binic lamp by Lonna Vautrin contrast the glossy black of the piano, yielding a distinctive aesthetic to this corner. Basked in natural light filtering through a bay window, the timber-infused study area beyond the piano nook creates a comfortable, focused environment. The study desk and chair are tucked within the bay window, offering views of the verdant landscape. The natural oak flooring of the adjacent living room seamlessly flows over into the study area, establishing a sense of continuity. This area, too, like all the other spaces of the home, is a container for the owner’s treasures—photographs depicting his family heritage and antique pieces hold prominence, with the furniture and materials unfolding around them.
▼钢琴房,Piano Room © Jeetin Sharma
▼钢琴房近景,Piano Room close view© Jeetin Sharma
一组错落有致、锯齿状的玻璃隔断环绕住宅的共享空间,仿佛窗帘拉动时形成的律动。通透与磨砂玻璃相结合,使自然光线呈现丰富变化,并让室内视野延伸至树梢,强化住宅与环境的联系。长形阳台种满盆栽植物,进一步加深室内外的融合。
A unique junction of glass partitions in a zig-zag profile envelops the shared space of the home, mimicking the rhythm obtained when curtains are drawn across windows. A combination of clear and fluted glass creates a dynamic modulation of natural light entering the space with views that connect the internal space to the surrounding treetops. The residence’s harmony with its environment is further enhanced by long balconies generously populated with potted plants.
▼二层起居空间,Second floor living space © Jeetin Sharma
一条大理石走廊通向私人区域,包括主卧、两间客房及一间员工房,每间皆配有阳台。地面铺设三种大理石——卡拉拉、瑞士白与塔索斯石,以菱形图案拼接而成。石材色调的差异营造出织物般的纹理感,使地面既具地毯的细腻,又保有大理石的优雅与耐久。
A marble corridor leads to the home’s private quarters, which comprise a master bedroom, two guest bedrooms, and a staff quarter, each furnished with a balcony. The flooring, composed of three types of stone—Carrara, Swiss white, and Thassos—is laid out in an argyle pattern. The tonal difference in the shade of the stones creates the impression of a weave, lending the floor the intricacy of a carpet with the sophistication and durability of marble.
▼书房,Study© Jeetin Sharma
卧室以人字形木地板和白墙为主调,风格克制,细节上则通过线脚等元素为洁白墙面增添层次。床具为古董床的现代演绎,呼应主人来自加尔各答的背景,成为空间核心。主卧通过滑动玻璃隔断连接至一株榕树,展现出居者对自然的热爱。
Characterised by a restrained palette of chevron-patterned wooden flooring and white walls, the bedrooms feature details such as cornices that add a layer of depth to the pristine white walls. A contemporary reinterpretation of an antique bed, reminiscent of the owner’s Calcutta roots, serves as the room’s focal point. The master bedroom, with its sliding glass partition, opens out to a banyan tree, reflecting the owner’s affinity for nature.
▼卧室,Bedroom© Jeetin Sharma
住宅的露台作为休闲空间打造,设有英式温室——一个透明玻璃盒子构成的放松聚会区。设计细节丰富,层次在细观中缓缓展开。玻璃立面划分为多个垂直分段,呼应乔治亚时期的窗格设计。南立面使用玻璃砖,引入自然光,在休息区营造灵动氛围。温室在材料上延续主屋风格——休闲区铺设隔热处理的灰白木地板,以人字拼方式铺陈。与下层新旧混搭家具不同,上层则采用重装与再利用的家具组合,风格多元。
The home’s terrace, developed as a space for recreation, houses a British-style conservatory– a glass box with a relaxed gathering area. Various details have been incorporated into the design, and the layers unfold upon closer inspection. The glass facade is separated into vertical elements similar to that of a Georgian bar window. Glass bricks utilised on the Southern facade allow a playful flow of natural light into the lounge area. The home’s material palette extends into the conservatory as well—thermally insulated ash timber flooring is laid in a herringbone pattern in the lounge area. While the lower floor of the residence comprises a mix of new and old furniture, the upper floor utilises an eclectic mix of re-upholstered and reused furniture.
▼书房看向窗外,Study room looking out the window © Jeetin Sharma
这座透明空间专为应对新德里酷暑设计,同时最大限度利用四周景观。内嵌黄麻衬层的中空玻璃有效隔热,调节高温天气下的室温。金属波纹屋顶同样做了隔热处理,并嵌有天窗与排气口,实现良好通风。露台未设实体女儿墙,而是以层层绿植与香草园围合边界,唤起对地面的亲近感。立面采用层次分明的语言进行表达——质感棕色涂料、茶色玻璃与仿古铜栏杆构成朴素的自然色调,使建筑与环境和谐相融。
The transparent box is designed to withstand the scorching summer heat and capitalise on its surrounding views. Insulating glass with jute liners prevents heat ingress and regulates temperatures during peak summers. The insulated corrugated metal roof is also punctured with a skylight and fitted with exhausts for further cross-ventilation. As opposed to the physical boundary of a parapet, the terrace builds its boundary through a stepped plantation and herb garden, fostering a sense of being connected to the ground. The facade emulates a layering of elements— the earthy palette consists of brown-textured paint, brown-tinted glass, and antique brass railing and harmonises the structure with its context.
▼卫生间,Bathroom© Jeetin Sharma
A45超越了传统奢华住宅的定义,成为一个真正反映居者身份与艺术品味的个性化庇护所。标志性灯具、白色大理石与木地板等元素相互交织,构成和谐统一的整体。整个住宅如同一只折射光线的棱镜盒,模糊了室内与自然的界限,在设计、艺术与环境之间建立深刻联结,真正诠释了当代奢华生活的本质。
A45 transcends the conventional notion of a luxury home, evolving into a personalised sanctuary that authentically reflects its owner’s identity and his penchant for art. The motley of elements, such as the iconic light fixtures and the white marble and wooden flooring, set up a harmonious composition. The residence’s scheme produces a prismatic box that blurs the boundary between the indoors and the outdoors, seamlessly integrating design, art, and environment to embody the true essence of luxury contemporary living.
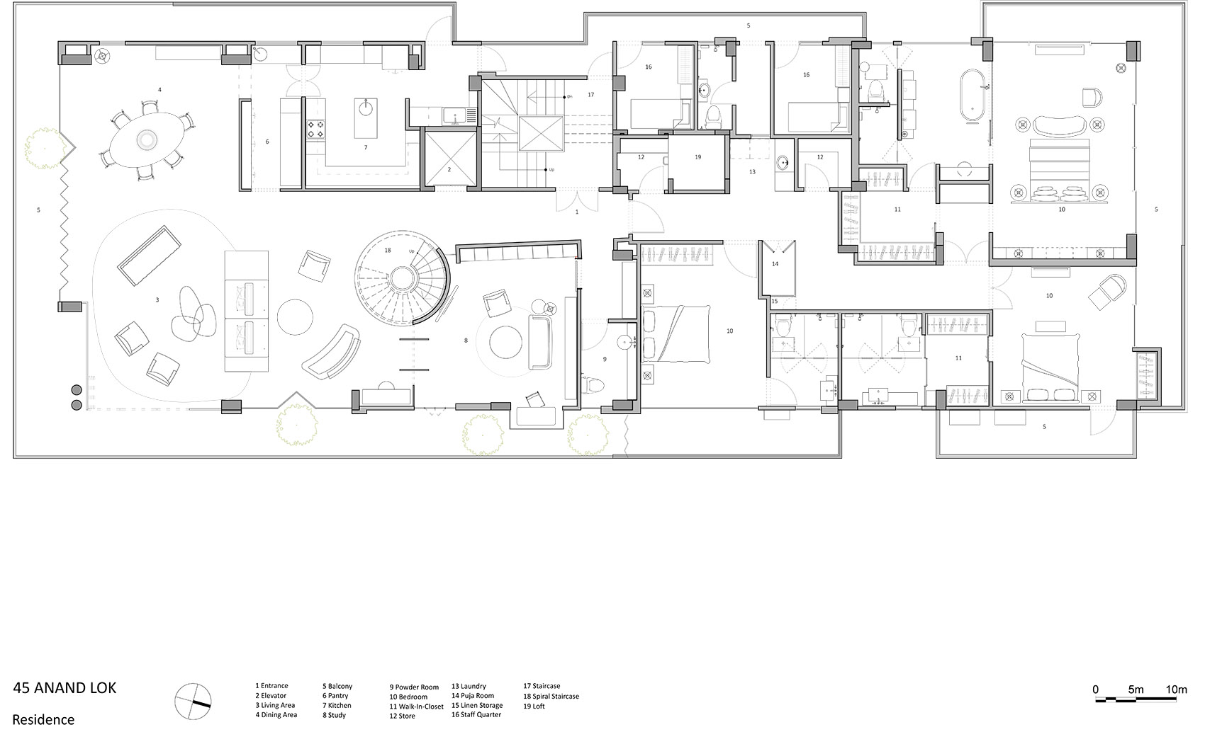
▼平面图,floor plan© Architecture Discipline
Project Fact File – A45
Location: New Delhi, India
Team: Akshat Bhatt, Heena Bhargava
Area: 5900 sq. ft.
Completion: Dec 2022
PRODUCTS / VENDORS
ACP / Glass / Concrete: Glass Systems: VR Glass, External glazing systems – GreenFuture, Builder – LFW
Sanitary ware / Fittings: Gessi – FCML, Kohler
Flooring: Marbles – Dee Pearls, Wooden Floor – CCIL
Furnishing: Seasons, Sarita Handa, Obettee, Carpet Cellar
Furniture: Krea, Nitin Ahuja, Bo concept, West-elm
Air Conditioning: Hitachi
Lighting: Beyond Design, Binic lamp by Lonna Vautrin, Crescent Pendant by Lee Broom, Smithfield pendant light by Jasper Morrison, Vis-a-Vis, BDCL
Paint: Asian Paints, Micro-concrete from Greenheart, Synthotech Textures
Arts / Artefacts: Sculpture of monkeys by Arun Kumar, Head’ sculpture by G. Ravinder Reddy
Elevator: Schindler
CONSULTANTS
Lighting: Lirio Lopez
Structural, Mechanical: Builder – LFW
Electrical, HVAC, Plumbing, PMC, Engineering, Civil
Landscape: Infringe Design , Architecture Discipline
Façade: Architecture Discipline
客服
消息
收藏
下载
最近





























