查看完整案例

收藏

下载
当我考虑功能的时候,并不是根据舒适度或实用性来看的。相反,我认为人们能够分享生活是最重要的功能。——TADAO ANDO
When I consider functionality, It’s not based on comfort or practicality. On the contrary, I believe that people’s ability to share their lives is the most importantfunction.
#1
设计构思
家,是人们心灵与身体最好的归处,应大尺度地满足业主的“自我”诉求。
Home is the best place for people’s mind and body to return, and should meet the owners’ self-demands on a large scale.
如果说,空间设计的展示,是设计师对于文化表达、空间架构和艺术重组能力的展现,那么家的搭配与创造,大概是设计师对于自我内心最本真的剖析与展露。在这个不带杂念、不受他人理念影响的纯粹空间里,倾听、感受、对话,都是基于自己开始——只考虑房间与主人的关系,不过而已。
If the display of space design is the designer’s ability to show the space structure of cultural expression and artistic reorganization, then the collocation and creation of home is probably the most authentic analysis and disclosure of the designer’s own heart in this pure space without distractions and not affected by other people’s ideas, listening and feeling dialogue, are based on their own Just the relationship between the room and the owner, that’s all.
#2 氛围示意
风格定位&材质表现
自然主义风格出现于19世纪末英国工艺美术运动时期,以赖特建筑为代表的草原风格别墅成为当时主流风格,他们选用自然材质并强调室内外结合设计,对自然主义进行重新诠释。人文主义的精神内涵以人的“自我实现”为最终目的,推崇人的个性和谐发展,着重强调培养人的整体性、全面性和创造性。
Naturalism appeared in the British arts and Crafts movement at the end of the 19th century. The prairie style villa represented by Wright architecture became the mainstream style at that time. They chose natural materials and emphasized the combination of indoor and outdoor design, reinterpreting the spiritual connotation of humanism to realize people’s self-realization For the ultimate goal, the harmonious development of human personality is promoted, and the emphasis is placed on the cultivation of human integrity, comprehensiveness and creativity.
#3
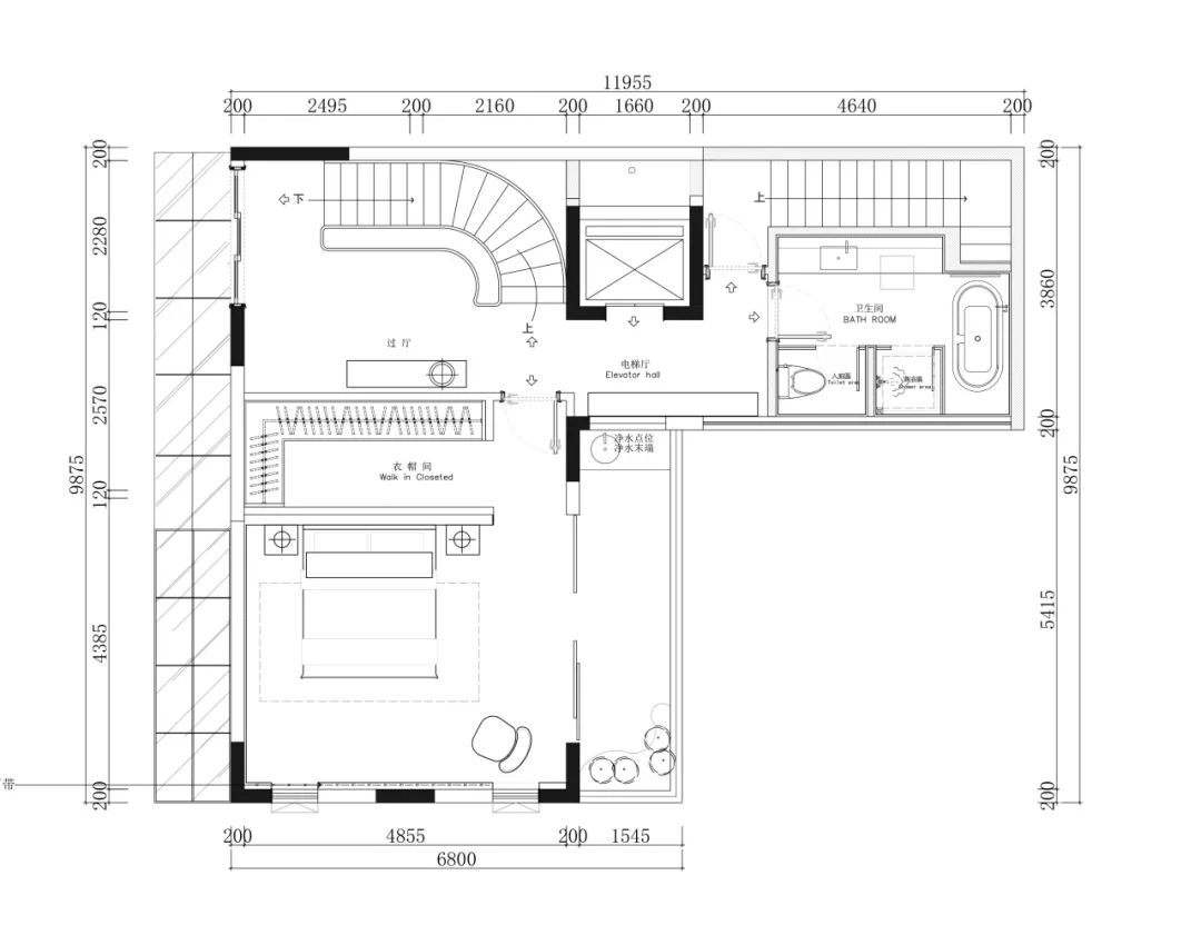
户型结构梳理
针对原始户型重新梳理人与空间的关系,精准划分空间功能及生活动线。让所有功能错落合理与美学合为一体,让最后的呈现浑然天成,成就又一个家!
Reorganize the relationship between people and space based on the original layout, accurately divide spatial functions and life flow lines. Let all functions be arranged in a logical and aesthetic way, and let the final presentation be seamless, achieving another home!
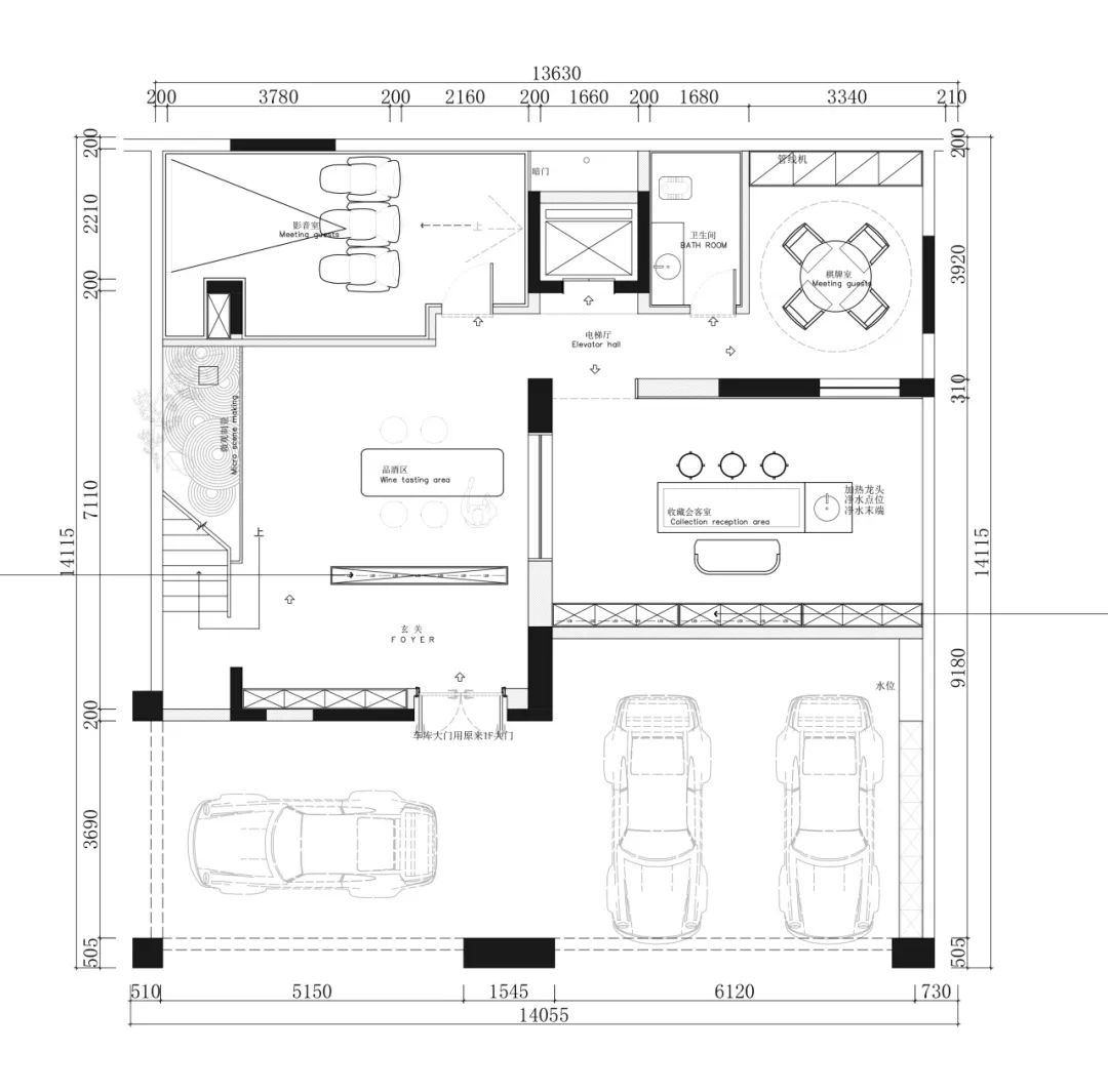
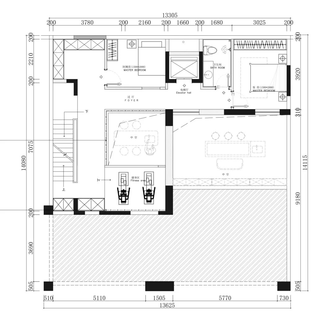
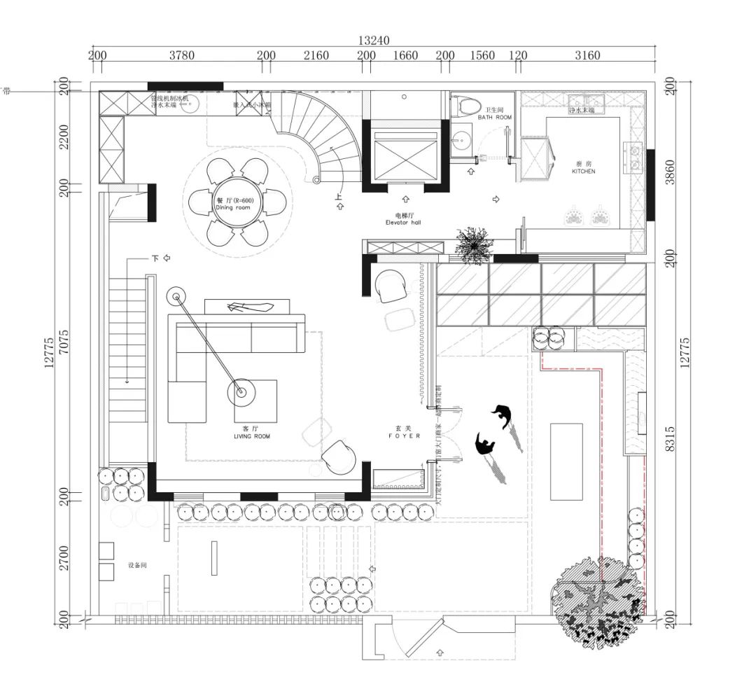
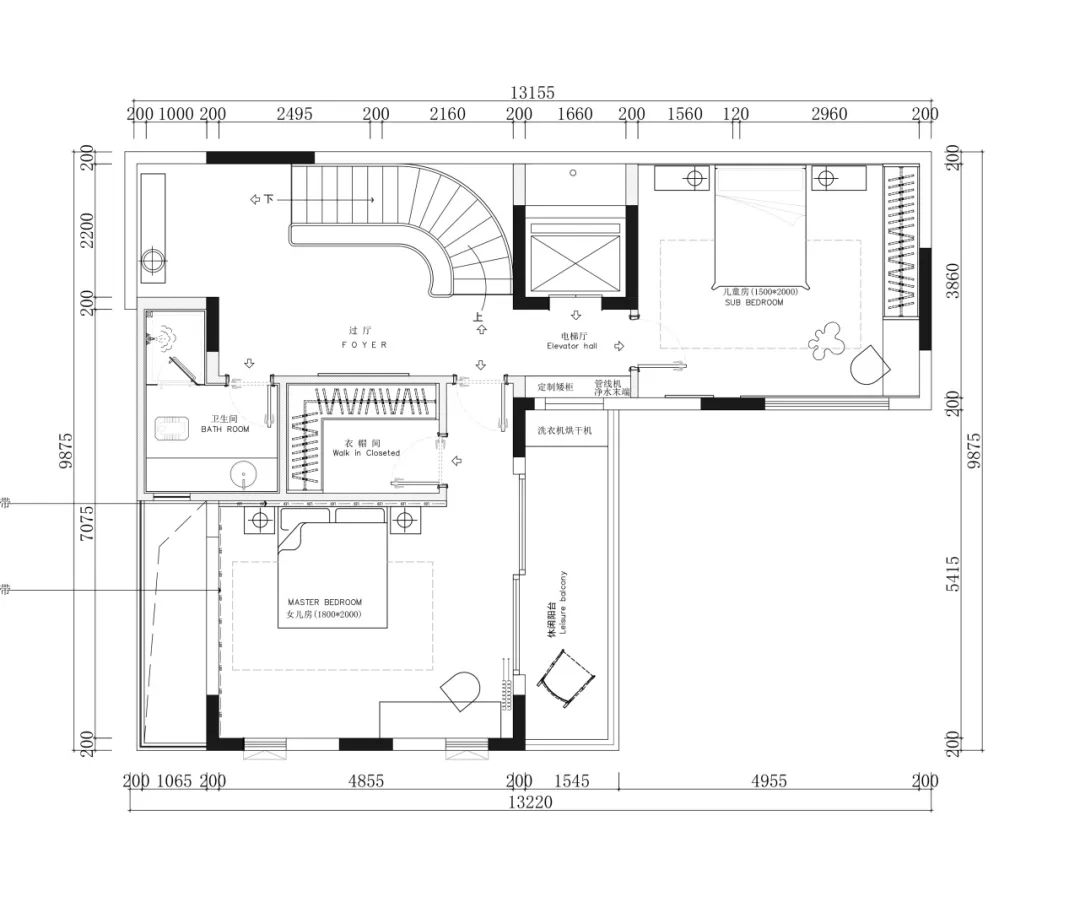
-上下滑动浏览平面布置图-
调整负二到一楼楼梯到沐光而行的侧天井下,改善了负楼层的光和行走尺度;动静合理的分离出大尺度挑空玄关、静谧沐光茶室,独立收纳间、客房、功能影院等。
Adjusting the stairs from the second to the first floor to the side courtyard where Mu Guang travels has improved the lighting and walking scale of the negative floor; Reasonably separate the dynamic and static elements to create a large-scale elevated foyer, a tranquil light filled tea room, independent storage rooms, guest rooms, functional cinemas…
一楼客厅向花园扩大到门廊下形成窗与入户联动,侧面扩开天井楼梯间过渡视野,调整一到三楼楼梯间于厅后背景静态雕塑感,整个厅相较之前豁然开朗;厨房整体调节扩大与花园相望,让烹饪成为享受。
The living room on the first floor expands towards the garden to the porch, forming a linkage between the window and the entrance. On the side, the transition view of the courtyard staircase is expanded, and the static sculptural feeling behind the background of the staircase on the first to third floors is adjusted. The entire hall suddenly becomes clear compared to before; The overall adjustment of the kitchen expands and faces the garden, making cooking a pleasure.
二楼得益于楼梯间调节,让过道有光通透,独立取水区方便生活,女儿套房尺度有余,还拥有了独立的备用未来家庭成员的卧室。
The second floor benefits from the adjustment of the staircase, which allows light to pass through the hallway and a separate water intake area for convenient living. The daughter’s suite is spacious and also has an independent spare bedroom for future family members.
三楼巧借露台、动线合理规划出独立上楼顶花园天台的楼梯间;让整个主卧拥有尺度衣帽间、阳光主卫、主卧休息区两面采光的套房以及可俯瞰花园的阳台。
Cleverly borrowing a terrace on the third floor and planning a reasonable flow to create an independent staircase leading to the rooftop garden; Provide the entire master bedroom with a spacious dressing room, a sunny master bathroom, a suite with dual sided natural lighting in the master bedroom lounge area, and a balcony overlooking the garden.
因为有第一步清晰的室内动线、功能理性规划,才能最大化优化出尺度有余生活美好的空间,设计的价值就在于专业有度!
Because there is a clear indoor flow and rational planning of functions in the first step, it is possible to maximize the optimization of spaces with scale and a better life. The value of design lies in professionalism!
岭众联合-田艾灵设计
创意就是创造空间与人的记忆
用泛艺术化的设计理念构造自然、艺术、优雅的平衡空间美学
︾
01. ART ELEGANCE
Elegant, harmonious, refined, balanced and comfortable
以「自然为诗,雅致为境」,秉持着回归自然的平和期许与可持续的设计理念,一切品位和质感,皆在此基础上诞生。在空间界面的交错中,巧妙利用光影与几何比例形成曲直交错的秩序之美,在纯粹里融入了温柔与放松的慵懒。
With the philosophy of "nature as poetry and elegance as environment," we uphold the peaceful expectation of returning to nature and the sustainable design concept. All tastes and textures are born on this basis. In the interweaving of spatial interfaces, cleverly utilizing light, shadow, and geometric proportions to form a beauty of curved and straight interweaving order, integrating a gentle and relaxed laziness in purity.
客厅去除多余隔墙的开放式形态贯穿在公共区域,释放大宅风度,空间的流畅性豁然开朗。
落地窗将自然引入室内,晨昏的光线在家具与器物上流淌,肌理的界面在浸溢的阳光下通透生辉,感受随性的慵懒和治愈的活力。
The open layout of the living room, which removes the redundant partition walls, runs through the public areas, releasing the grandeur of the large house and making the spatial fluidity suddenly clear. The floor-to-ceiling windows bring nature into the interior, and the light of dawn and dusk flows over the furniture and objects. The textured surfaces shine through in the overflowing sunlight, allowing one to feel the casual laziness and healing vitality.
︾
02. NATURE
The natural internal and external interaction of light captures the qualitative temperature
楼梯的设计也被重新考虑,流畅的曲线让整个空间聚焦,诗意的动态感和艺术感同时保持了与空间和谐的视觉关系,在有限的空间内谱写一段优雅的过渡。
The design of the stairs has also been reconsidered, with smooth curves that focus the entire space, while maintaining a harmonious visual relationship with the space through poetic dynamism and artistic sense, composing an elegant transition within the limited space.
宽大的餐厨,动线流畅,圆桌聚合,石材点缀,灰中含暖,天然材质的触感不可替代,功能与美学兼具。
Large kitchen, smooth moving line, round table polymerization, stone embellished, grey containing warm, natural material touch can not be replaced, function and aesthetics.
根据光、视野和需求进行功能空间的重现规划,厨房整体调节扩大与花园相望,让烹饪成为一种享受。
Based on the light, field of view, and requirements, the functional space is reconstructed and planned, and the overall adjustment of the kitchen is expanded to face the garden, making cooking a pleasure.
清谈半窗月,澹坐一杯茶。静谧的沐光茶室既可以是公共空间也可以作为私密空间,一人静坐或是以茶会友,随着时间生发的故事,可以由倾洒的光来讲述。
Half a window of moonlight, a cup of tea in serene contemplation. The quiet Mu Guang Tea Room can serve as both a public and private space, for solitary meditation or tea gatherings with friends. The stories that unfold with time can be told by the light that spills in.
︾
03. ART
Artistic innovation explores aesthetic value and cultural attributes
主卧套房以宽敞格局的空间功能在起承转合间逐渐铺陈,秩序井然。既有利落的结构简化生活,又有考究的细节关照审美,松弛与便捷的生活空间,亦是回归日常本色与安闲。
The master bedroom suite gradually unfolds its spacious layout and functions in the transition zone, creating a well-organized and orderly atmosphere. The streamlined structure simplifies life, while the attention to detail pays attention to aesthetics, creating a relaxed and convenient living space that returns to the essence of daily life and leisure.
庭院的景与自然光影的变化成为了生活的背景,亦与室内的烟火气融为一处。由心舒适的尺度,以润物细无声的形式悄然融入日常记忆。
The scenery of the courtyard and the changes in natural light and shadow become the background of life, and also blend in with the indoor fireworks atmosphere. The comfortable scale of the heart quietly integrates into daily memories in a subtle and silent form.
项目地址 | 重庆 · 曲水风和
项目模式 | 全案高定
项目面积 | 500㎡
项目设计机构 | 岭众联合-田艾灵设计
艺术总监 | 田艾灵
主案设计师 | 田艾灵
软陈 | 桓墅空间艺术设计机构
施工单位 | 十二分装饰
田艾灵(Erin Tian)
岭众联合-田艾灵设计
设计主理人|艺术总监
十二分空间设计&桓墅软装艺术创始人 | 艺术总监
发现中国好设计「发现100」年度设计师
泛艺术化设计理念,由田艾灵提炼而出:不以具体风格论来构思设计思路起点的空间设计理念。它主要表现为把中西、古今的艺术经典,借用设计技术语言,运用进入实用空间设计里;消融艺术与人们实际生活影响的绝对界限,保留艺术不用很多语言就能触动情绪的基本精神气质,追求不随潮流迭代的审美持久性,构建当代人与空间环境更直接的感官关联触达。做真正为人所能顺畅使用,引起艺术、情绪共鸣的设计!
客服
消息
收藏
下载
最近












































