查看完整案例

收藏

下载
空间是生活的背景。绝非简单的物理容器,而是承载情感、彰显品味、提升机能的多元载体,深刻影响着人们的生活质量与精神体验 。
紫苹果全案设计
Comprehensive Design Solution
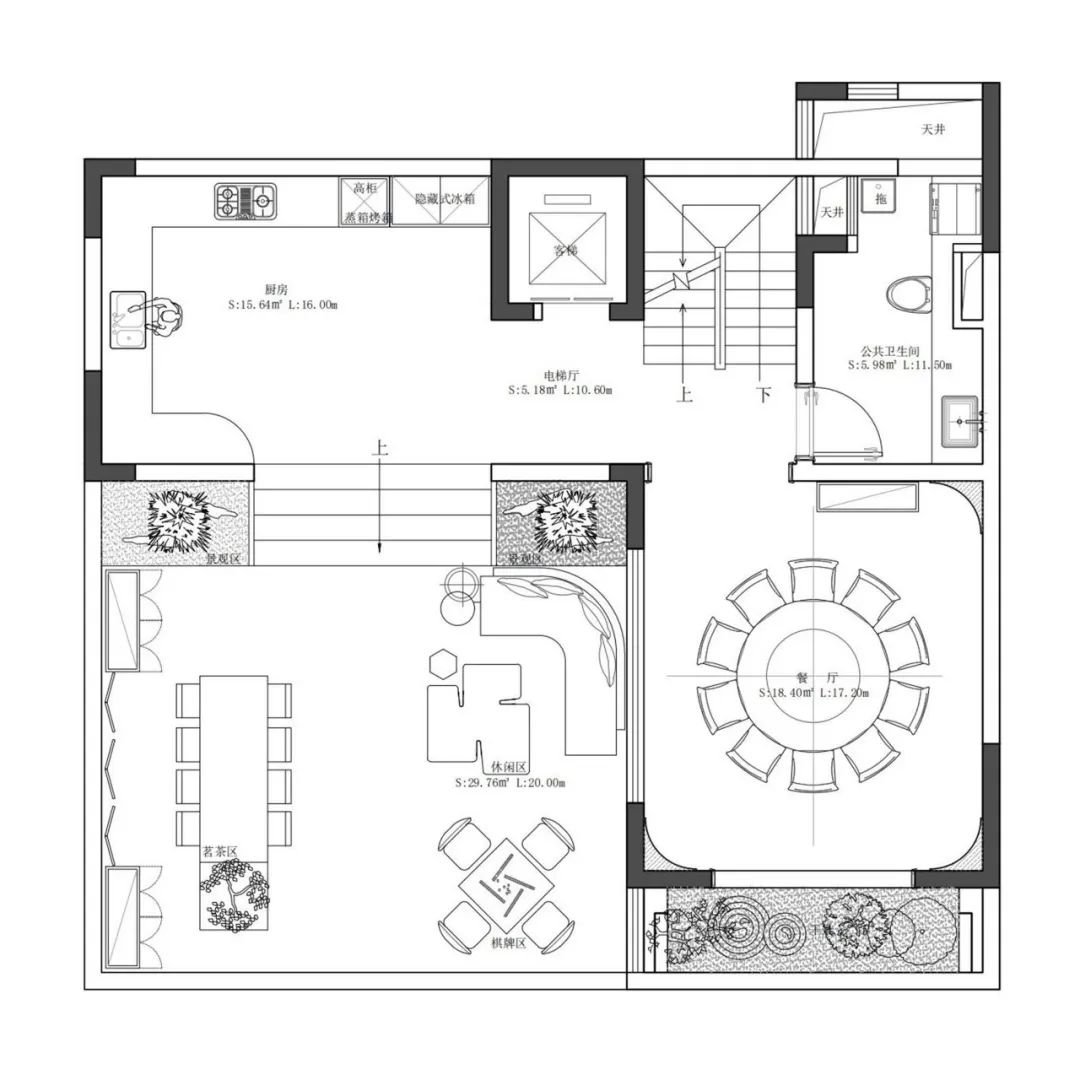
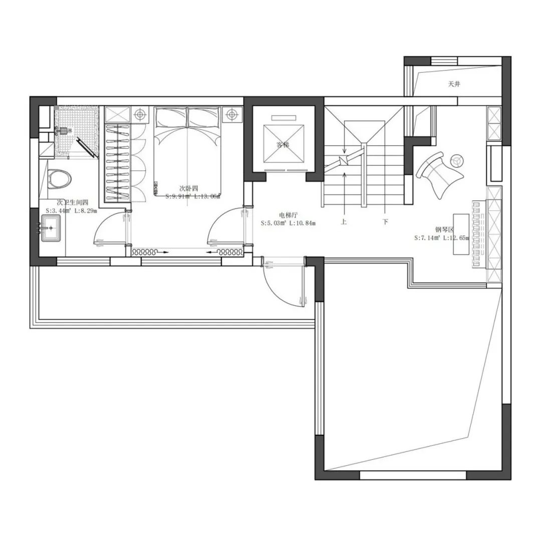
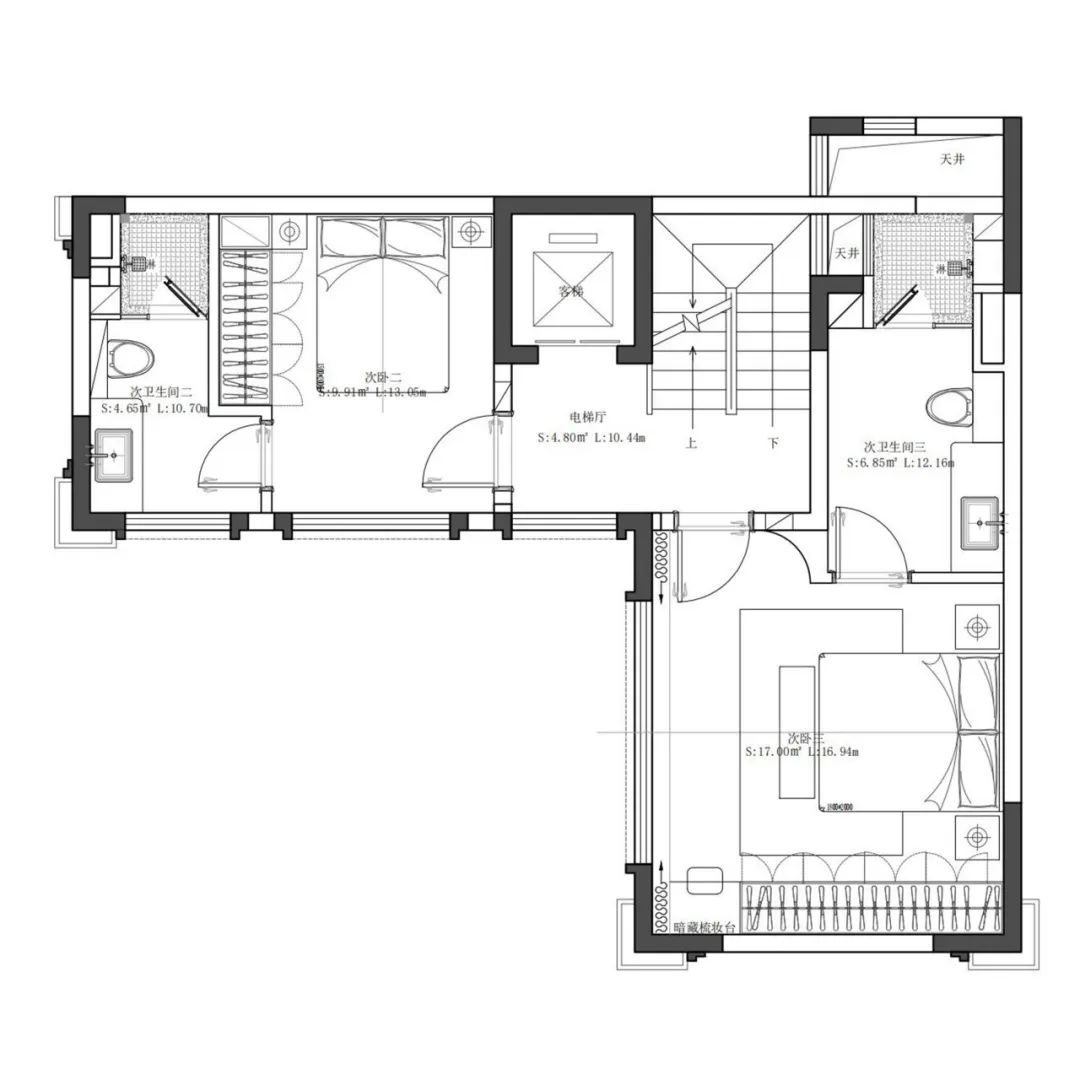
/平面布局图/
左右滑动查看更多
项目地址 | 玺珑湾
项目面积 | 300㎡
项目风格 | 现代轻奢
主案设计 | 涂武军
# 客厅
01 The Living room
客厅挑空设计,能够提升空间的美感层次。木质装饰+天然石材的经典搭配法则,打造现代主义风格的高颜值高品位。这不仅仅是装修,是生活的艺术,是对美好的追求。
电视背景墙以流畅的弧形木质造型呈现,打破了直线的生硬,为空间注入灵动与优雅。一侧采用竖条纹木饰面,自然温暖,另一侧是纹理独特的天然石材,与木质元素相互映衬。二者材质碰撞,一种温暖与冷冽交融、质朴与华丽共生的奇妙效果,构筑出极具格调与品质的居住氛围。
拐角处柜体嵌入的大型鱼缸,与整体风格相协调。阳光洒落,光影交错,让整个空间更具层次感与温馨感。
# 餐厅
02 The Dining room
木色会随着时间的递增,愈发有暖意,给家人的生活带来温暖感。
餐厅和休闲区相连,让日常活动流畅自然,营造出开放互动的生活氛围。
背景墙延续客厅装修元素,木质与天然石材相结合,置物架与酒柜既具收纳功能又富有装饰性,圆形大理石餐桌搭配简约餐椅,黑色与金色的椅腿设计增添精致感。
# 休闲区
03The Leisure Area
大面积落地窗引入充足自然光线,窗外景致与室内相融,拓宽空间视野。深色茶桌陈列着精致茶具,开放式置物架,有序摆放着各式茶壶、茶罐与摆件,彰显着主人对茶文化的热爱,营造出雅致且富有艺术氛围的品茶空间。
设计师将业主的爱好巧妙融入空间设计,与采光井相连,确保空间舒适宽敞,打造出独一无二的专属天地。
# 卧室
04 The Bedroom
卧室整体选用柔和的色调,让人在视觉上感到放松,在心理上带来平静与安逸,帮助快速驱散一天的疲惫。叠级造型+黑色壁灯,柔和的光线洒下,更添温馨之感。
床头背景天然石材纹理的墙面装饰自然独特,浅米色的墙面与衣柜相互呼应,丰富空间视觉层次。衣柜部分开放式置物架陈列摆件,兼具实用与美观。
儿童房以白色为基调,搭配蓝色洞洞板床头背景,色彩明快活泼。洞洞板与木质搁板组合,灵活放置玩偶、小摆件等,增添趣味性与收纳功能。
学习区域营造干净明亮的环境氛围,吊柜提供足够的收纳空间,避免桌面杂乱。写字桌桌面优选天然材质,安全环保。
衣帽间根据业主的使用习惯进行调整, 大面积的衣柜提供充足收纳,中间开放式区域设有挂杆和抽屉,方便分类存放衣物。以中性色为主,搭配局部深色与亮色元素,让衣帽间不仅是收纳空间,更是彰显品味的时尚角落。
/主案设计师/
I AM DESIGNER 涂武军
紫苹果装饰首席设计师
灵动的空间是对生活的追寻
22年专注居家生活品质
30000+别墅大宅设计施工作品
90%+的客户把紫苹果推荐给自己亲友
紫苹果官网:purapple.com
咨询电话:400-800-0787
客服
消息
收藏
下载
最近







































