查看完整案例

收藏

下载
【山观】
藏一室山水于留白,容三千喧嚣于静默
坐落于蜀山脚下的现代风格建筑住宅,业主是一对高知夫妇,经过多年的寻找,把这套房子定义为终极住宅,经过多次沟通交流主案设计师了解主业真正的需求,将室内设计方向定为现代简约,简约不等于简单,而是通过精心的设计与细节的处理,让每一寸空间都充满生活的气息与艺术的美感。
01EXTEEND
视觉的语言
“减法设计”
以「功能」为轴心,以「留白」写诗意。摒弃冗余雕饰,用几何线条分割空间秩序,光影与材质对话,打造治愈系人居美学--简约的空间,是生活的容器,更是精神的留白
“视觉语言”
科技感超强的景观车库设计,成为一道入户的风景线,高纯度低饱和配色疗愈视觉,空间如一曲克制的莫兰迪协奏曲。嵌入式线性灯带编织隐形光网,赋予空间随时间流动生命力。别墅车库已从“附属空间”进化为彰显生活态度的精神场域。通过系统性设计,我们让每一寸空间承载实用价值、科技温度与艺术表达。
02SHADOW
精神栖息地
“以书为媒”重构空间的精神引力场,垂直美学与功能哲学的共生演绎,纵向仪式感。利用4-5米挑高优势,打造通天落地的书墙矩阵,通过黄金分割比例分割层板,形成视觉韵律感。我们让每一本书都成为空间的主角,让每一次抬头仰望都触发对知识与美的敬畏之心。拆除非承重墙,让客厅、书房自由对话;模糊功能边界,打造家庭社交核心场域。
“空间布局”
连接主入口与上层空间的螺旋楼梯是通行的主要路径,更是空间中沉静而优雅的雕塑作品。它轻盈的旋转姿态赋予了空间渐进的节奏感,让归家成为一场舒缓情绪的旅程。
红色曲面的铁表面板环绕而上,石材踏板的浅色调柔化气氛,构成一场关于材质与形态的对话。
当访客踏上阶梯时,光影流转于金属的弧线上,仿佛正在进行着某种仪式,它引导人们进入更为私密的影音室、客卧区,缓缓地了解家的另一种面貌。
03FORMS
跨空间联动
“光的雕刻”
极窄框全景窗引自然入室,垂直百叶调控光的韵律;不仅能让自然光充分进入室内,减少人工照明的使用,还能让居住者享受到自然景观,增强室内外空间的联系。嵌入式线性灯带编织隐形光网,赋予空间随时间流动的生命力。
“空间流动性”
空间的流动性至关重要。通过开放式的布局设计,如客厅、餐厅与厨房的无缝连接,增强了家庭成员之间的互动,同时也让空间显得更加通透和宽敞。设计中避免过多的装饰元素,强调功能性,每一件家具和装饰品都有其存在的理由。通过简洁的线条和几何形状,创造出干净利落的空间感。
以人性化重构生活逻辑,拆除非承重墙,让客厅、餐厨自由对话;中岛台+无主灯设计,模糊功能边界,打造家庭社交核心场域。简洁流畅的线条是核心,家具与空间结构以几何形态为主,避免复杂雕饰,突出空间的通透感与秩序感。
04SLEEP
隐秘界面
“光影效果”
主卧延续了整座住宅的设计理念,大面积的玻璃窗使卧室与自然相连,仿佛漂浮于苍穹,将日出与日落引入室内,白天使其变得明亮而通透,夜晚则流露出温润而静谧的氛围。如此这一切室无不在光影的雕刻下,成为一片流动的风景。开放式设计,强调功能区的划分与融合,最大化利用空间,让居室显得宽敞明亮。每一处设计都以实用为先,同时保持视觉上的统一性。
以简约的家具为主,配以少量装饰品,如绿植、抽象画或艺术摆件,既点睛空间,又不过度喧宾夺主。艺术与生活的融合,在简约的基础上,通过艺术品和绿植的点缀,为空间增添生机与个性。每一件艺术品的摆放都经过精心设计,既符合整体风格,又展现了主人的品味。
“结语”
当你剥去所有装饰,空间会自己说话。用最简单的形式,承载最丰富的情感与功能,让“家”成为心灵的归属与放松的港湾。让生活回归本质,回归自然。
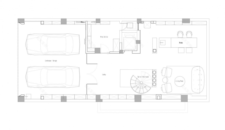
平面及设计理念
-2F平面图
-1F平面图
1F平面图
2F平面图
3F平面图
项目地址 ︳安徽合肥
项目面积 ︳550㎡
主创团队 ︳润泽万物空间设计
项目类型 ︳全案设计
施工团队 ︳合肥尚墅别墅装饰
主要材料 ︳普拉达绿大理石、爵士白大理石、艺术涂料、瓷砖、黑色不锈钢、意式橡木、烟熏橡木
王强 合肥润泽万物建筑装饰设计创始人及设计总监
润泽万物空间设计
坚持以设计为核心驱动,立足国际化视野,融合东方人文精神,开创诗意化生活场景。
专注于住宅设计及其衍生领域,提供全方位的设计咨询及施工管理服务,范围涵盖建筑改造、庭院规划、室内设计、照明设计、软装设计等领域。基于对用户需求的深刻洞察,定制完整且具有前瞻性的解决方案,给产品赋能,为社会创造价值。
M:15209823379
合肥市政务区蔚蓝商务港D-1011室
期待你的︳关注︳点赞︳分享
空间氛围营造很棒,功能与美学很好的兼顾到了
谢谢分享
谢谢分享
设计美学与现代功能完美结合的典范。通过定制化设计、精挑细选的家具与软装陈设,打造成一处永恒的美学空间。设计美学与现代功能完美结合的典范。通过定制化设计、精挑细选的家具与软装陈设,打造成一处永恒的美学空间。设计美学与现代功能完美结合的典范。通过定制化设计、精挑细选的家具与软装陈设,打造成一处永恒的美学空间。设计美学与现代功能完美结合的典范。通过定制化设计、精挑细选的家具与软装陈设,打造成一处永恒的美学空间。6
相当有艺术氛围
空间氛围营造很棒,功能与美学很好的兼顾到了
客服
消息
收藏
下载
最近


















































