查看完整案例

收藏

下载
本案是一个位于西安曲江池畔的旧房翻新项目,空间设计以探讨现代住宅文化中的自然与人文关系为出发点,将感知体验与禅理佛道的意境相结合,洞悉空间感知之道。
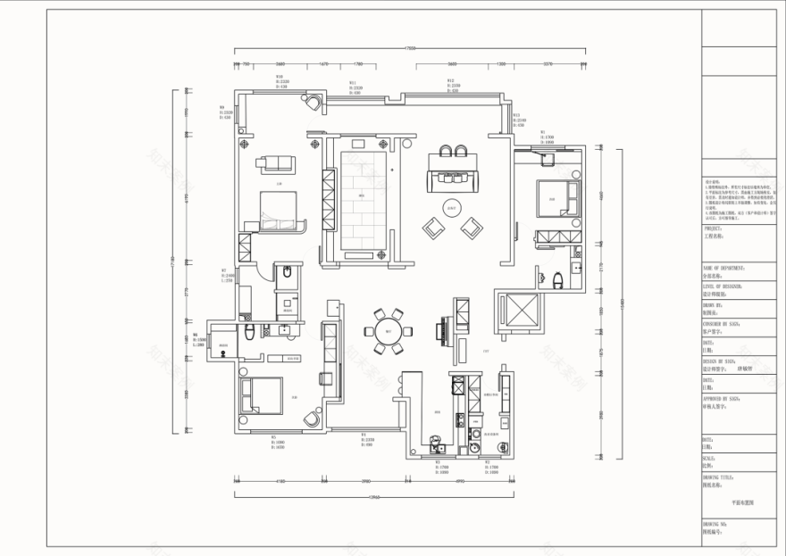
住宅的原始空间划分较为琐碎,且位于一层,采光条件不佳,因此,我们在结构上进行多处拆改和优化,显著提升了空间的通透性和流动性。平面规划的重点在于平衡不同功能区域融合性与独立性,营造出一个既开放又具层次感的生活场域。
入口玄关是内外空间的过渡区域,我们取消了原始结构中紧邻入口的客卫,并将其改造为一个独特的过道体验区,使归家的过程仿佛在石洞中穿行,用空间尺度的克制表达给人带来独特的通过体验,在行进中完成由外至内的情绪转换,最终抵达豁然开朗的起居区域。
进入客厅,对称的布局模式使背靠阳台的沙发休闲区成为空间的核心,将空间自然分解为自由环绕的流动格局。传统的电视墙被取消,取而代之的是一排实木书架,赋予空间更多的文化氛围与功能性。
竹影
解构光线,越过边界去探索未知。木与石的肌理重组阴影,温柔的抵抗着平庸与光滑。剥离脆弱的装饰性外壳,露出自然的纯粹感悟时间。
原始结构中的书房被改造成禅修室,为信佛的业主提供了一个在家修行的静谧空间。禅修室的南侧通过一个借景的窗洞将阳台簌簌作响的翠竹引入室内,营造出一种宁静而深远的氛围。
餐厅区域混凝土浇筑的洗手池与禅室空间可移动的和纸窗扇均在现场完成,厨房空间的部分实木橱柜与阳台区域的木地板均为关中地区的老榆木再加工完成,搭配扎染的布帘与木门上的铜板,重现那份记忆中的温暖与熟悉。烹饪区前侧的铜板更是“时间的记录者”,每一次烹饪,蒸汽与油脂都会在铜板上留下痕迹,时间将会把它变得斑驳和富有质感。
作为空间中的线性雕塑,做旧钢管以锈蚀的痕迹在混凝土水池表面书写时间。
卧室是我们栖居时间最久的空间,我们的策略是保持适度的退让,床头区域未做过多的造型处理,希望通过留白来保持空间的包容性和宁静感,同时确保足够的舒适度。
本案整体设计侧重对人与空间对自然的感知,并理性的融入禅意,以现代生活方式的语言呈现出素雅并富有生机的东方美学。
平面布置
天花布局
新建墙体
原始结构
左右滑动查看更多图片
项目名称丨光之禅居
项目地址丨曲江公馆和园
项目类型丨平层住宅
项目面积280
完工时间2025.01
设计机构丨纳悦营造
空间设计唐敏智
灯光顾问丨胡刚
项目摄影丨杨磊、唐敏智
相关品牌丨基里木作SIILI、莫识研习所艺术涂料、班兰
2019年诞生的纳悦营造,是空间的诗意译者。以艺术为核,融自然、空间、陈设于一体。致力于传统美学与现代审美的融合。对于探索和改善人与空间环境的关系充满热情,专注于空间可能性的创造。在设计之路上一直坚持:思考、实践、和创新。以创新思维重塑空间体验,致力于为客户提供独特的情感价值。
唐敏智 纳悦营造创始人
客服
消息
收藏
下载
最近








































