查看完整案例

收藏

下载
在当今日益城市化的世界中,为城市住宅注入个性,并与外部环境建立联结,其重要性前所未有地凸显。一个能作为避风港、体现居住者个性并在都市喧嚣中提供片刻宁静的家,才是真正意义上的奢华居所。
▼公寓外观
位于新德里的“A45”,坐落于一片繁茂绿意之间,两侧环绕着凤凰木、印度楝树、阿育王树、果紫树与榕树。这套单身公寓的主人是Sandeep Barasia——一位物流管理领域的资深人士,曾为咨询巨头贝恩公司在印度建立本地运营基地,并担任Delhivery首席财务官长达九年,带领公司实现飞跃式发展。打造这一住宅的初衷,是营造一个舒适、适合私密聚会的空间,同时也作为他庞大艺术收藏的宝盒。这套顶层公寓总面积约为5900平方英尺,通过室内楼梯可直通温室、露台与泳池区。
▼公寓周围环境
住宅按照线性动线布局,强调地块的纵深。中央设有一座蜿蜒的螺旋楼梯,将客厅、餐厅、半开放书房与钢琴角等共享空间,与主人的私密卧室区域分隔开来,实现从开放空间向私密空间的自然过渡。整个住宅被置于一座玻璃盒子之中,光线得以引入,并捕捉周边环境景致,实现了与室外的无缝连接——这是现代多层住宅中常被忽视的特质。
▼起居空间
在室内空间的线性格局中,这座曲线楼梯打破了规则,成为视觉焦点。它以雕塑般的简洁感立于中央,通往上层露台。白色大理石楼梯柔和地盘旋在Lee Broom设计的Crescent Pendant吊灯周围,而吊灯又聚焦于G. Ravinder Reddy创作的标志性“头部”雕塑。来自楼上的自然光洒落楼梯,与白色调融合,突显楼梯的建筑张力。
▼曲线楼梯
整体室内配色以单色调为主,配合木质地板的温润,使空间成为艺术收藏的理想背景。每个起居空间皆围绕艺术作品展开设计——低座沙发搭配延展平台,衬托一盏由Beyond Design打造的大型现代铜灯,同时柔和过渡正式与非正式客厅区域。
▼阳台
餐厅空间延续“柔和”主题:一张无缝圆形整体大理石餐桌,搭配圆润的座椅及Jasper Morrison设计的Smithfield吊灯,柔化背景中现代绘画与条纹木墙板的线性元素。石材与座椅的色彩与温润木地板协调统一,通风管道则保持裸露,呼应住宅的当代风格。▼餐厅
▼餐厅近景
钢琴角陈设了由设计师Arun Kumar创作的红色猴子雕塑,配以Lonna Vautrin设计的Binic灯,与钢琴的黑色亮面形成鲜明对比,为角落注入独特个性。钢琴角后的书房沐浴在湾窗洒入的自然光中,融合木质元素,营造出专注且舒适的工作环境。书桌与椅子嵌入窗台之中,可眺望绿意盎然的景观。起居室使用的天然橡木地板延伸至此,带来空间连续感。如同住宅中其他区域,这里也是主人的宝藏之地——珍贵的家族照片与古董件构成空间焦点,其余家具与材料围绕它们展开。
▼钢琴房
▼钢琴房近景
一组错落有致、锯齿状的玻璃隔断环绕住宅的共享空间,仿佛窗帘拉动时形成的律动。通透与磨砂玻璃相结合,使自然光线呈现丰富变化,并让室内视野延伸至树梢,强化住宅与环境的联系。长形阳台种满盆栽植物,进一步加深室内外的融合。
▼二层起居空间
一条大理石走廊通向私人区域,包括主卧、两间客房及一间员工房,每间皆配有阳台。地面铺设三种大理石——卡拉拉、瑞士白与塔索斯石,以菱形图案拼接而成。石材色调的差异营造出织物般的纹理感,使地面既具地毯的细腻,又保有大理石的优雅与耐久。
▼书房
卧室以人字形木地板和白墙为主调,风格克制,细节上则通过线脚等元素为洁白墙面增添层次。床具为古董床的现代演绎,呼应主人来自加尔各答的背景,成为空间核心。主卧通过滑动玻璃隔断连接至一株榕树,展现出居者对自然的热爱。
▼卧室
住宅的露台作为休闲空间打造,设有英式温室——一个透明玻璃盒子构成的放松聚会区。设计细节丰富,层次在细观中缓缓展开。玻璃立面划分为多个垂直分段,呼应乔治亚时期的窗格设计。南立面使用玻璃砖,引入自然光,在休息区营造灵动氛围。温室在材料上延续主屋风格——休闲区铺设隔热处理的灰白木地板,以人字拼方式铺陈。与下层新旧混搭家具不同,上层则采用重装与再利用的家具组合,风格多元。
▼书房看向窗外
这座透明空间专为应对新德里酷暑设计,同时最大限度利用四周景观。内嵌黄麻衬层的中空玻璃有效隔热,调节高温天气下的室温。金属波纹屋顶同样做了隔热处理,并嵌有天窗与排气口,实现良好通风。露台未设实体女儿墙,而是以层层绿植与香草园围合边界,唤起对地面的亲近感。立面采用层次分明的语言进行表达——质感棕色涂料、茶色玻璃与仿古铜栏杆构成朴素的自然色调,使建筑与环境和谐相融。
▼卫生间
A45超越了传统奢华住宅的定义,成为一个真正反映居者身份与艺术品味的个性化庇护所。标志性灯具、白色大理石与木地板等元素相互交织,构成和谐统一的整体。整个住宅如同一只折射光线的棱镜盒,模糊了室内与自然的界限,在设计、艺术与环境之间建立深刻联结,真正诠释了当代奢华生活的本质。
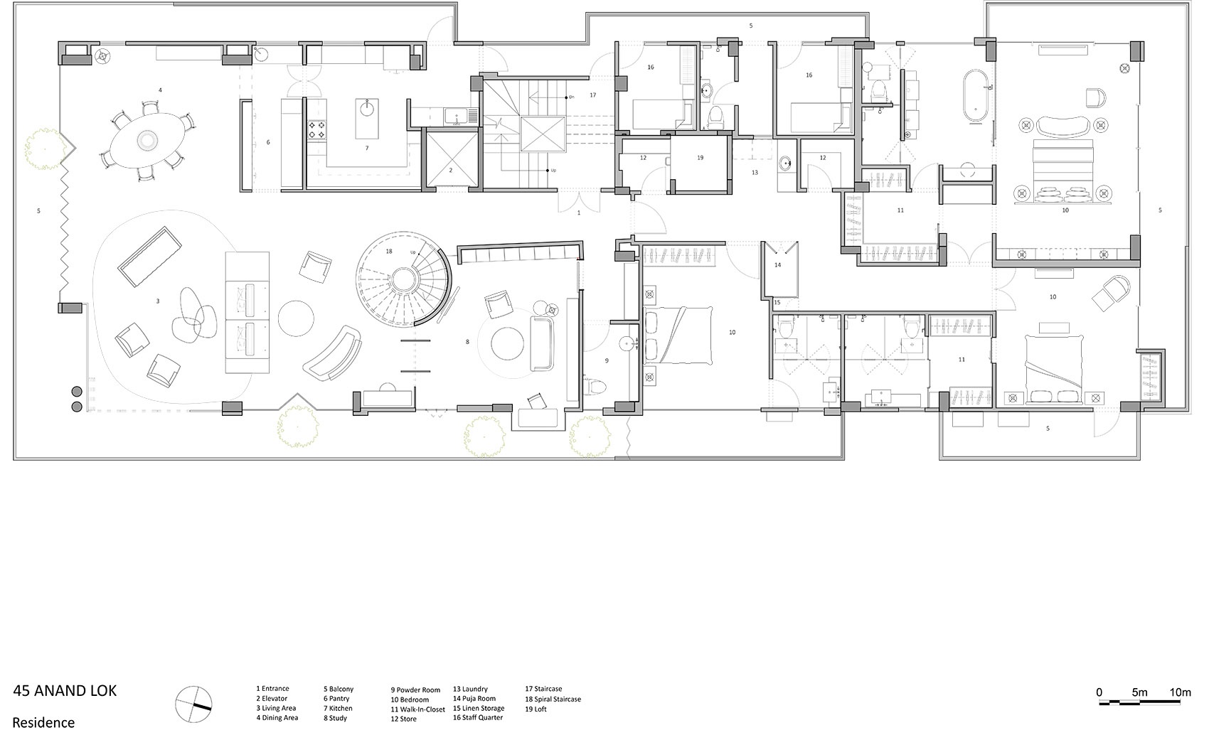
▼平面图
Project Fact File – A45
Location: New Delhi, India
Team: Akshat Bhatt, Heena Bhargava
Area: 5900 sq. ft.
PRODUCTS / VENDORS
ACP / Glass / Concrete: Glass Systems: VR Glass, External glazing systems – GreenFuture, Builder – LFW
Sanitary ware / Fittings: Gessi – FCML, Kohler
Flooring: Marbles – Dee Pearls, Wooden Floor – CCIL
Furnishing: Seasons, Sarita Handa, Obettee, Carpet Cellar
Furniture: Krea, Nitin Ahuja, Bo concept, West-elm
Air Conditioning: Hitachi
Lighting: Beyond Design, Binic lamp by Lonna Vautrin, Crescent Pendant by Lee Broom, Smithfield pendant light by Jasper Morrison, Vis-a-Vis, BDCL
Paint: Asian Paints, Micro-concrete from Greenheart, Synthotech Textures
Arts / Artefacts: Sculpture of monkeys by Arun Kumar, Head’ sculpture by G. Ravinder Reddy
Elevator: Schindler
CONSULTANTS
Lighting: Lirio Lopez
Structural, Mechanical: Builder – LFW
Electrical, HVAC, Plumbing, PMC, Engineering, Civil
Landscape: Infringe Design , Architecture Discipline
Façade: Architecture Discipline
设计美学与现代功能完美结合的典范。通过定制化设计、精挑细选的家具与软装陈设,打造成一处永恒的美学空间。设计美学与现代功能完美结合的典范。通过定制化设计、精挑细选的家具与软装陈设,打造成一处永恒的美学空间。6[color=#设计美学与现代功能完美结合的典范。通过定制化设计、精挑细选的家具与软装陈设,打造成一处永恒的美学空间。设计美学与现代功能完美结合的典范。通过定制化设计、精挑细选的家具与软装陈设,打造成一处永恒的美学空间。]设计美学与现代功能完美结合的典范。通过定制化设计、精挑细选的家具与软装陈设,打造成一处永恒的美学空间。
客服
消息
收藏
下载
最近





























