查看完整案例

收藏

下载
25年0321studio完成了潮汕冰麒麟Ice Kirin Gelato位于广东汕头的品牌店设计,刚接到委托便对其品牌名的巧妙吸引:冰麒麟(冰淇淋),品牌名不仅传递其着力与传统记忆保持关联的愿景,同时让外界轻易的感受其笃定,多元与有趣。
潮汕冰麒麟善于探索本地食材同冰淇凌的融合研发,不急迫于商业扩张,他们相信美好的事物需要时间去酝酿,这意味着对自我的极度真诚,我们共识新的空间不应被简化为商品交换的场所,而是一个更多提供灵感,启发,善意,以及美好轻松的场域。
项目位于广东汕头老城景区,目标是创造一个利于社区并超越地方景区习惯性仿造过去的空间 ,我们决定开放式布局并用足足7.5米长的弧形月形台占据统一整个空间,强势的体量界定出公私两侧的区域,内部隐藏必要的设备与物料,向外鼓起的弧度呼应建筑沿街轮廓并平行间隔1.2米,为顾客预留活动空间,沿街的光线透过落地玻璃扫入室内和台面,让不锈钢体量轻盈暧昧又干净利索。
我们发现深入研究员工与顾客借助操作台交流这件事是重要且吸引人的,置于两者间的体块能直接影响空间以及空间中的人,既保持操作区域的开放性,同时借助弧度的距离控制来对应收银,制作,取餐等一系列功能性对尺度的不同需求。
▼操作台
▼员工与顾客借助操作台交流
它像是一种坚定的象征:我们认为不再互相交流,是比损失面积更可怕的结果,我们希望它帮助我们成为彼此拓展交流对话的现代装置,鼓励员工和顾客各自围绕自己的坚信去构建一个崭新饱满而有趣的世界。
▼吧台细部
在该项目中我们仍然延续0321为客户专属定制家具的习惯,避免互联网成品采购导致的性格缺失和撞衫尴尬,4块110mm见方的实木四方边角料支撑圆朵座面,简单的几何结构组合拼接出适合月形台尺度的休憩凳,软化附近的金属感,增添点状温暖的木质。
▼月形台休憩凳旋转
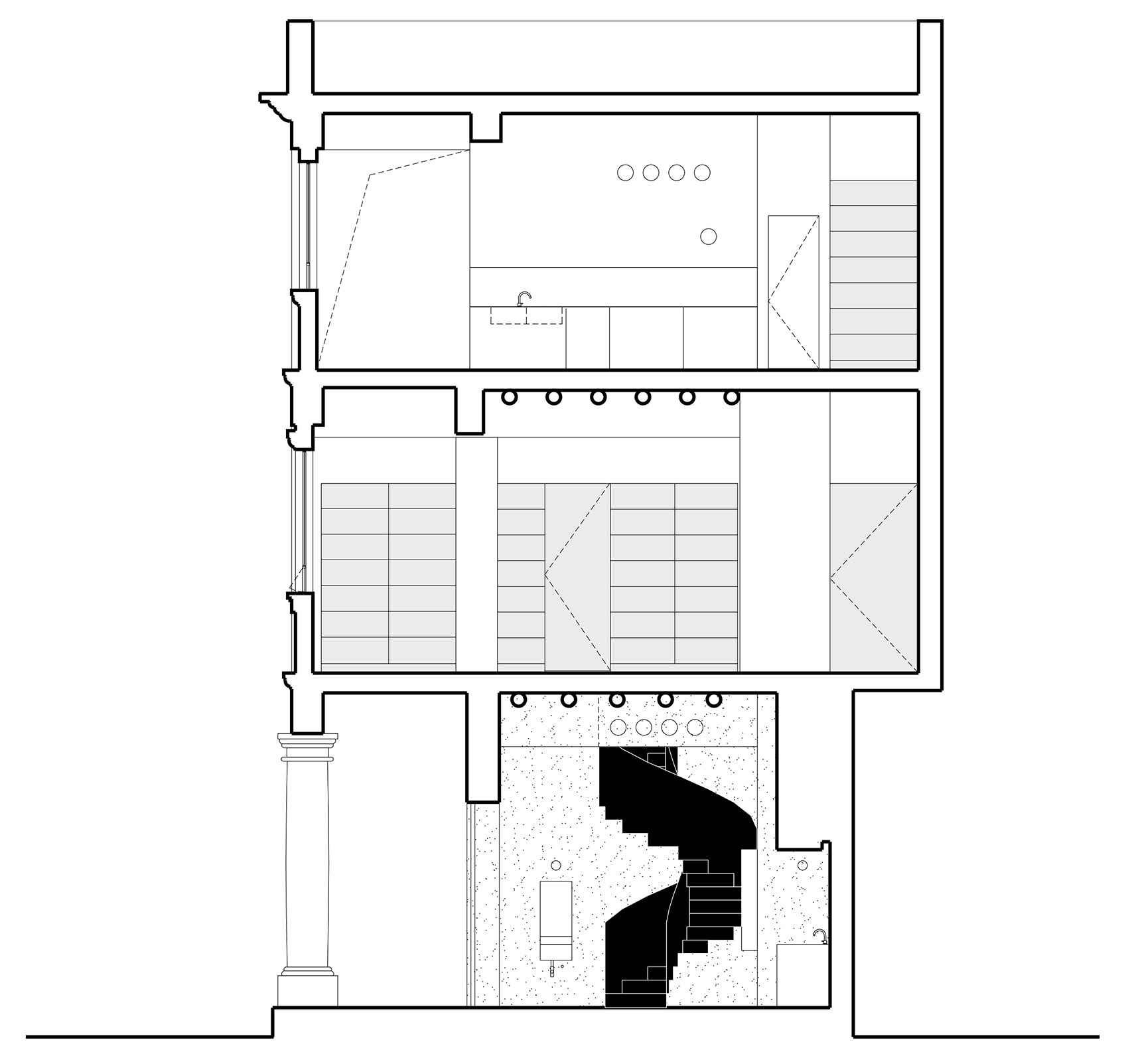
我们拆除原建筑既不美观也未符合人体工程的废旧楼梯,重新设计置入旋转钢制楼梯,成为串联起各层的垂直交通,以自己的螺旋形式柔化空间中的方正,楼梯由粉末涂层钢制成,雕塑般孤僻迷人。
▼旋转钢制楼梯
二楼休息区作为顾客休憩品尝冰淇凌的场所,设计以指接松木作为主材表达,与一楼的冷静形成反差,增添触觉和自然的肌理,将板材尺寸的2400制作柜子并作为仓储空间的分隔规划,确保空间视觉通透与空气流动,不再额外建造墙体有效的控制项目的工程造价。
▼二楼休息区
在有限的甲方资源预算里,我们选择大面积喷涂粗颗粒肌理涂层作为整个空间均质背景,中性而又强烈的触感与精密的定制形成张力,建筑拥有充足的光照能放大该材质的视觉触感,形成整洁又足够呼吸的界面,空间不是吵叫而是低声诉说材料质量和工艺。
▼轴测
项目名称:Ice Kirin Gelato
办公室名称:0321Studio Office
网站:
社交媒体帐户:INS_ZBY0321
联系电子邮件:
公司公司
公司地点:中国山图完成年份:20250115 GROSS
建造面积(M2/ FT2):M2/ FT2)中国广东的Shantou地区,
中国建筑师:Buyangzheng Lead Architects
电子邮件:
照片来源:Cling-clang
客服
消息
收藏
下载
最近






































