查看完整案例

收藏

下载
01 内向不“内向”
Introverted yet Open
▼厚苑
厚苑坐落于丽江玉湖村,这座拥有千年历史的村落,以石头外墙和木架屋顶的建筑传统承载着文化的沉淀。整个村庄自然生长,一侧是玉龙雪山,一侧是开阔的农田。
▼雪山脚下的厚苑
▼融入村落肌理
厚苑的场地深嵌于村落肌理之中,四周环绕着传统纳西民居,自然形成了一种“内向”的空间特质。原场地由业主的旧民宿、祖宅与沿街商业建筑构成,设计在保留沿街建筑的基础上,拆除部分旧建筑,并重新梳理空间,使其更符合村落的肌理和秩序。建筑以“见缝插针”的方式介入,在村庄肌理中生长,与周边环境建立对话,而非以孤立的姿态存在。
▼雪山、竹子、建筑的层次
厚苑既内向,又不内向,这种“内向”并非封闭,而是一种开放性的内敛。建筑摒弃了传统的外立面,使其在村落中几乎消隐。然而,步入其中,空间层层递进,视线与动线在围合的院落中不断展开,引导使用者进入一个层次丰富、充满变化的空间体验。
▼院落构成
设计延续了玉湖村院落的空间原型,整理L形场地近乎两个院落叠合一间房,并在交界处设立核心公共空间。北侧设水院,以水的流动性串联空间,南侧则以围合庭院强化院落秩序。新建建筑与老宅子之间的院子保留。最终,三大院落层层围合,使建筑在保持自身空间逻辑的同时,通过不同层次的对话,生成丰富的场所体验。
▼环境、露台、竹子的层次
厚苑的隐匿性使其在村落中几乎不可见。从村庄主街望去,仅能窥见建筑一角,完整的外立面仿佛消失于传统肌理之中。然而,进入内部后,空间关系随即展开。
02 以水为脉
Water as the Vein
▼中心水院
▼水院倒影
玉龙雪山不仅是纳西族文化的发源地,更是这一片土地上的生命之源。在纳西文化中,水具有重要的象征意义,它既是自然的一部分,也承载着人与环境的联系。
▼入口小径
入口水系循序渐进,引导访客穿行于石、水、竹交错的自然序列中。这一动线如同《桃花源记》中所述:“初极狭,才通人。复行数十步,豁然开朗。”水不仅是物理的存在,更是空间的线索,将纳西文化与建筑体验有机融合。
▼中心水院
在厚苑,水的引入不仅是景观的一部分,更是空间秩序的重要构成。
▼中心水院
▼水院细节
建筑的核心庭院——水院,成为视觉与感知的中心,水的流动与倒影赋予院落动态的秩序感。一侧是会客厅,另一侧是餐厅,两者围绕水庭展开,使用场景互相渗透,形成灵活而富有层次的空间体验。会客厅的木格栅可开可合,使空间的开放性与私密性可随情境调节。▼石墙洞口望向水院
▼庭院楼梯
在这一层层的空间对话中,水成为了连接内外的媒介,使建筑从封闭走向开放,从静态走向动态。这种水与空间的结合,使得厚苑在“内向”的同时,又展现出了丰富的层次与变化。
▼水院细节
03 层叠的对话
Layered Dialogues
▼层叠露台
▼露台层次
厚苑的设计不仅在平面上延续院落原型,在竖向空间亦构建了层次丰富的体验。核心水院作为轴心,通过层叠错落的露台将公共空间向垂直方向延展,模糊建筑的边界,使空间在多个维度上展开。
▼露台层次
▼露台层次
客房部分与原有纳西老院子相连,使新旧建筑产生连续的对话。建筑的界墙在转角处形成独特的角院,使每间客房都拥有一个独立的小庭院,且每个庭院都独一无二。这种空间组织方式,使厚苑虽然整体内向,却并不封闭。水院与客房、露台与庭院、新院与老院之间建立起多重对话,在层次的交错中消解传统建筑的边界感。▼客房直面玉龙雪山
▼浴室与玉龙雪山
▼客房内部
建筑的内向策略不仅是形式上的内向,更是一种与环境共生的方式。空间通过层次的递进、庭院的布局以及水系的引入,使整个场所既是自成一体的,又与周边村落形成对话的联系。在这一模式下,建筑超越了传统意义上的封闭与开放,构建了一种内外交融的空间关系。
▼庭院内装置
04 归属感的营造——真正的民宿
A Sense of Belonging — A True Guesthouse
▼客厅
民宿不同于酒店,其核心在于主人与客人共享空间,并且更加注重人与人之间的链接与交流。民宿最早起源于欧洲的B&B(Bed & Breakfast)模式,便是乡村家庭开放多余房间,邀请旅人共享居住空间。厚苑在这一理念之上,进一步深化了“共生”的概念。
▼客厅
这里的客厅不仅是接待访客的空间,更是主人的生活场域。夜幕降临,纳西族的奶奶穿着传统服饰,小朋友从学堂归来,火塘点燃,客人与主人围坐畅谈。建筑消隐于村落,生活则在此延续,真正实现了民宿的本质——在地文化的承载者,人与空间的联结者。
▼入户小景
厚苑不以独立的建筑个体存在,而是在村庄的肌理中找到自己的位置。它拒绝以孤立的形式彰显自身,而是以水为脉、以院为核,在多重层次的空间对话中,营造出一种隐匿而深厚的归属感。回到厚苑,是归来,是回家。
▼厚苑鸟瞰
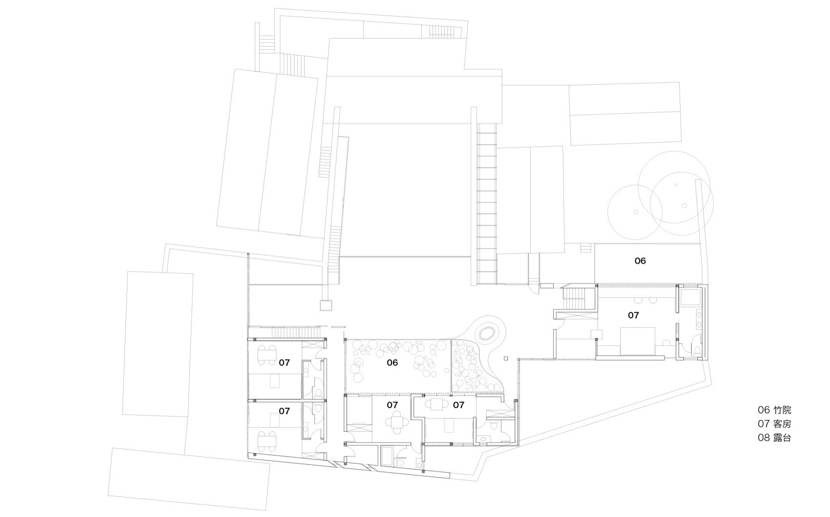
▼一层平面图
▼二层平面图
▼三层平面图
▼剖面图
▼剖面图与立面图
项目名称:厚苑
项目地点:云南丽江
设计公司:李晓东工作室
主创建筑师:李晓东
设计团队:李晓东,陈诚,许晓佳
项目业主:和继松
建筑面积:1200平米
设计时间:2018 - 2019
施工时间:2019 - 2025
施工:和继松
文字: 刘羽
摄影: UK Studio,李晓东
视频:UK Studio
很棒的设计,谢谢分享
设计美学与现代功能完美结合的典范。通过定制化设计、精挑细选的家具与软装陈设,打造成一处永恒的美学空间。66
厉害厉害
材料运用很不错,碰撞与冲突产生特殊的美感材料运用很不错,碰撞与冲突产生特殊的美感材料运用很不错,碰撞与冲突产生特殊的美感材料运用很不错,碰撞与冲突产生特殊的美感
设计美学与现代功能完美结合的典范。通过定制化设计、精挑细选的家具与软装陈设,打造成一处永恒的美学空间。设计美学与现代功能完美结合的典范。通过定制化设计、精挑细选的家具与软装陈设,打造成一处永恒的美学空间。
[color=#设计美学与现代功能完美结合的典范。通过定制化设计、精挑细选的家具与软装陈设,打造成一处永恒的美学空间。设计美学与现代功能完美结合的典范。通过定制化设计、精挑细选的家具与软装陈设,打造成一处永恒的美学空间。]
设计美学与现代功能完美结合的典范。通过定制化设计、精挑细选的家具与软装陈设,打造成一处永恒的美学空间。
客服
消息
收藏
下载
最近














































