查看完整案例

收藏

下载
这是一间位于光谷科技园区内的咖啡店,园区承载着大量高科技从业者。忙碌与高效是场地内日常状态,因此放松、休憩是这个项目首要考虑的因素。
This is a coffee shop located in the Optics Valley Science and Technology Park, which houses a large number of high-tech practitioners. Fast-paced efficiency defines the daily environment here, making relaxation and rejuvenation a core design priority for this project.
▼咖啡厅室外,cafe outside © 吴辉
在此咖啡厅项目设计中,现场地貌是设计场地的线索。呈现出西高东低,室内外最大高差达到1.8米。室外与室内空间之间的关系需要得到进一步梳理。
In the design of this coffee shop project, the terrain of the site is the clue for the design. The terrain of the site slopes from west to east, with the maximum height difference between indoors and outdoors reaching 1.8 meters. The relationship between the outdoor and indoor spaces needs to be further sorted out.
▼大厅入口,entrance to the lobby© 吴辉
▼入口区域,entrance area© 吴辉
在思索过程中,我们将西侧的地面进行两段式抬高并设置窗边高桌,靠服务台的一段形成用餐区,靠窗的一段形成阅读区。咖啡厅位于建筑群的西侧,更多的阳光会从午后西侧照进屋内,以人的尺度来消化内外高差,室内外得到新的空间感受。
▼吧台区域轴测,bar area axon © 李贤达
During the thinking process, we elevated the ground on the west side in two sections and placed high tables by the windows. The section near the service counter forms a dining area, while the section by the window creates a reading area. The café are is located on the west side of the building complex, where more sunlight can pour into the interior from the west in the afternoon. By digesting the height difference between inside and outside at a human scale, both the interior and exterior spaces are given a new spatial experience.
▼吧台,bar counter© 吴辉
▼吧台和阅读区,bar counter and reading are © 何开焰
▼西入口区,west entrance area© 何开焰
场地的中心我们放置了咖啡岛台,将咖啡店切割为不同的功能空间,以岛台为中心,用餐者四向而坐,入口、点餐区、用餐区、交流空间、阅读空间应运而生。▼空间分析,space analysis© 李贤达
In the center of the site, we placed a coffee island counter, dividing the coffee shop into different functional spaces. Centered around the island counter, diners are seated in all four directions, giving rise to the entrance, ordering area, dining area, communication space, and reading space.
▼用餐区,dining area© 吴辉
考虑与科技创新的日常产生连接,岛台形似一台巨型“散热装置”。光通过鳍片向四周发散,充满能量感。
▼咖啡岛演变分析,analysis of the evolution of coffee islands ©李贤达
Considering the connection with daily technological innovation, the island counter resembles a giant “heat dissipation device”. Light is scattered around through the fins, exuding a sense of energy.
▼咖啡岛,Coffee Island© 吴辉
▼咖啡岛节点,coffee island nod© 吴辉
▼节点,nodes© 何开焰
空间的北侧是一块独立的区域,我们为园区设置了一个休憩空间,不同时段提供交流、轻会议及午休功能。在中午的特定时间旋转隔门进行虚掩,灯光随之关闭,空间左右两侧的长条座椅可以便捷的躺卧,而休憩过后,光线随着门的打开,逐渐射入空间,对午后情绪进行有效调节。
On the north side of the space is an independent area where we have set up a resting space for the park, providing functions such as communication, light meetings, and lunch breaks at different times. At specific times during noon, the revolving partition door is half-closed, and the lights are turned off accordingly. The long benches on both sides of the space can be conveniently lain on for a rest. After the break, as the door opens, light gradually filters into the space, effectively adjusting the post-lunch mood.
▼多功能空间,multi-purpose space© 吴辉
▼多功能空间旋转门,multi-purpose space © 何开焰
▼多功能空间吊顶,multi-purpose space ceiling© 吴辉
▼室内景观,interior view© 吴辉
▼咖啡岛,coffee island© 吴辉
▼现场施工过程,on-site construction process © 何开焰
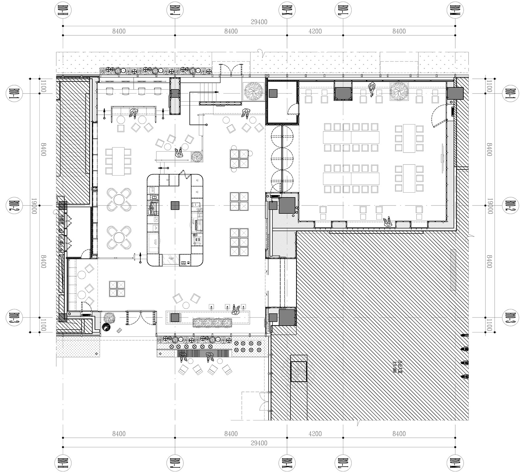
▼平面图,plan© 何开焰
项目名称:科技园区咖啡空间
项目类型:商业空间
设计方:边界探索设计事务所
完成年份:2025年1月
设计总监:何开焰,雷磊
设计团队:陈述,李贤达,申翊
项目地址:武汉,光谷
建筑面积:400㎡
摄影版权:吴辉,边界探索
材料:石材 岩板 金属 木板 不锈钢艺术漆 砖石 水泥 混凝土
Project name: Café space in the science and technology park
Project type: Commercial space
Design: Boundary Exploration Design Firm
Completion Year: January 2025
Leader designer: He Kaiyan, Lei Lei
Design team: Chen Shu, Li Xianda, Shen Yi
Project location: Optical Valley
Gross built area: 400㎡
Photo credit: Wu Hui, Boundary Exploration Design Firm
Materials: Stone, rock slab, metal, wood plank, stainless steel, art paint, masonry, cement, concrete
客服
消息
收藏
下载
最近





























