查看完整案例

收藏

下载
Schmitt + Sohn电梯公司是一家在国际上活跃的家族企业,其位于乌特施莱斯海姆(Unterschleißheim)的新分部坐落在一个城市型商业区内。该区域的发展呈现出极大的异质性:除了一系列不同用途的单层和多层建筑外,还分布着大型仓库和工厂建筑。在这样一个较为无特色、可互换的环境中,新建的这座位于醒目街角地块上的建筑脱颖而出,作为一座引人注目的、赋予身份感的地标建筑,以独立、自信的姿态回应了周边异质的环境,体现了公司的理念与专业精神,并作为一张具象化的“企业名片”存在。
The new branch of the internationally active family-run company Schmitt + Sohn Elevators in Unterschleißheim is located in an urban commercial area, the development of which is extremely heterogeneous: in addition to single and multi-storey buildings for a wide variety of uses, there are large warehouses and factory buildings. In this rather interchangeable environment, the new building constructed on a striking corner plot stands out as a striking, identity-creating building that responds to the heterogeneous context with an independent, self-confident attitude, reflects the company philosophy and expertise and acts as a built “business card”.
▼办公楼外观概览,Overall view © Brigida González
为了强调新建筑的独立性与特殊地位,设计有意避免了顺应现有空间边界。建筑在场地上的布局经过精心安排,通过前方宽阔的绿化区域与街道保持了大尺度的退距,这不仅满足了开发规划的要求,还在此基础上加以延伸。由此产生的远观效果进一步强化了品牌形象的展示意图。
▼项目模型,model © Wittfoht Architekten
In order to emphasize the independence and special position of the new building, existing spatial edges were deliberately avoided. The positioning on the site has been chosen in such a way that a generous distance to the streets is created by wide green areas in front, which not only implement but also extend the requirements of the development plan. The resulting long-distance effect supports the desire to stage the brand image.
▼建筑立面,Facade © Brigida González
▼立面近景,Close view © Brigida González
▼立面材质,Facade material © Brigida González
这座亭式的两层新建筑——一个仿佛悬浮在内收基座上的立方体——以简约和精准为特征。建筑形象以开放性与透明感为主调。造型与功能都被简化至最基本的要素,形式清晰,功能明确,精准体现了Schmitt + Sohn电梯公司的企业哲学。
The pavilion-like, two-storey new building – a cube that seems to float on a recessed plinth – is characterized by reduction and precision. Its appearance is marked by openness and transparency. Reduced to the essentials, clear in form and function, it embodies the corporate philosophy of Schmitt + Sohn Elevators.
▼内部空间概览,Interior overall view © Brigida González
建筑的空间核心是位于中央的两层高的论坛空间,可灵活用于多种用途。这里不仅承载演示和展览活动,也举办公司内部的各类活动。因此,论坛成为了一个促进交流、加强团队精神的中心场所。
The spatial center of the building is the centrally located two-storey forum, which can be used for multiple purposes. It is the heart of the new company headquarters. Not only presentations and exhibitions take place here, but also internal company events. The forum thus becomes a meeting place that promotes communication and, not least, team spirit.
▼通高的论坛空间,Two-storey forum © Brigida González
▼看向论坛空间,Looking at the forum © Brigida González
建筑内部结构由两个内部钢筋混凝土核心筒构成基础的结构与基础设施体系,并辅以位于立面层位的钢筋混凝土楼板和纤细的自由支撑钢柱。这一设计原则实现了高度的灵活性与透明性,使得可以根据用户需求轻松实施多种办公空间概念。所有工位和会议室均沿立面布置,得益于直接的自然光照和丰富的外部视野,工作环境极具吸引力。手动操作的开启窗扇以隔热的、落地式铝制面板设计,提供自然通风功能。位于两个核心筒长边的天窗为中央论坛空间引入高品质自然光,所创造出的侧向光效也巧妙地突出强调了核心筒的体量感。
Two internal reinforced concrete cores form the infrastructural and structural basis. They are supplemented by reinforced concrete slabs at façade level and slender, free-standing steel columns. This design principle enables a high degree of flexibility and transparency. A wide variety of office concepts can be easily implemented according to the needs of the users. All workstations and meeting rooms are located on the façade and are very attractive thanks to direct daylight and a variety of views. Manually operated opening sashes, which are designed as insulated room-high aluminum panels, provide natural ventilation. Skylights on the long sides of the reinforced concrete cores provide high-quality daylight in the centrally located forum. The grazing light this creates effectively sets the scene for the two cores.
▼办公室,Office space © Brigida González
▼通透的视野,Clear vision © Brigida González
建筑醒目的外观不仅源自空间布局,也归功于材料运用的极简手法。外立面由磨砂白色玻璃马赛克覆面的不透明墙面和通高窗扇共同构成,窗扇的微妙前后错动为建筑赋予了丰富的立体感。室内空间则由混凝土与木材的天然色调主导。
The building’s striking appearance results not only from its spatial concept, but also from the reduction of materials. The external appearance is determined by the opaque wall surfaces clad in matt white glass mosaics and the storey-high window elements, whose slightly protruding and recessed arrangement lends the building a plasticity. The interior is dominated by the material colors of concrete and wood.
▼项目区位,site plan © Wittfoht Architekten
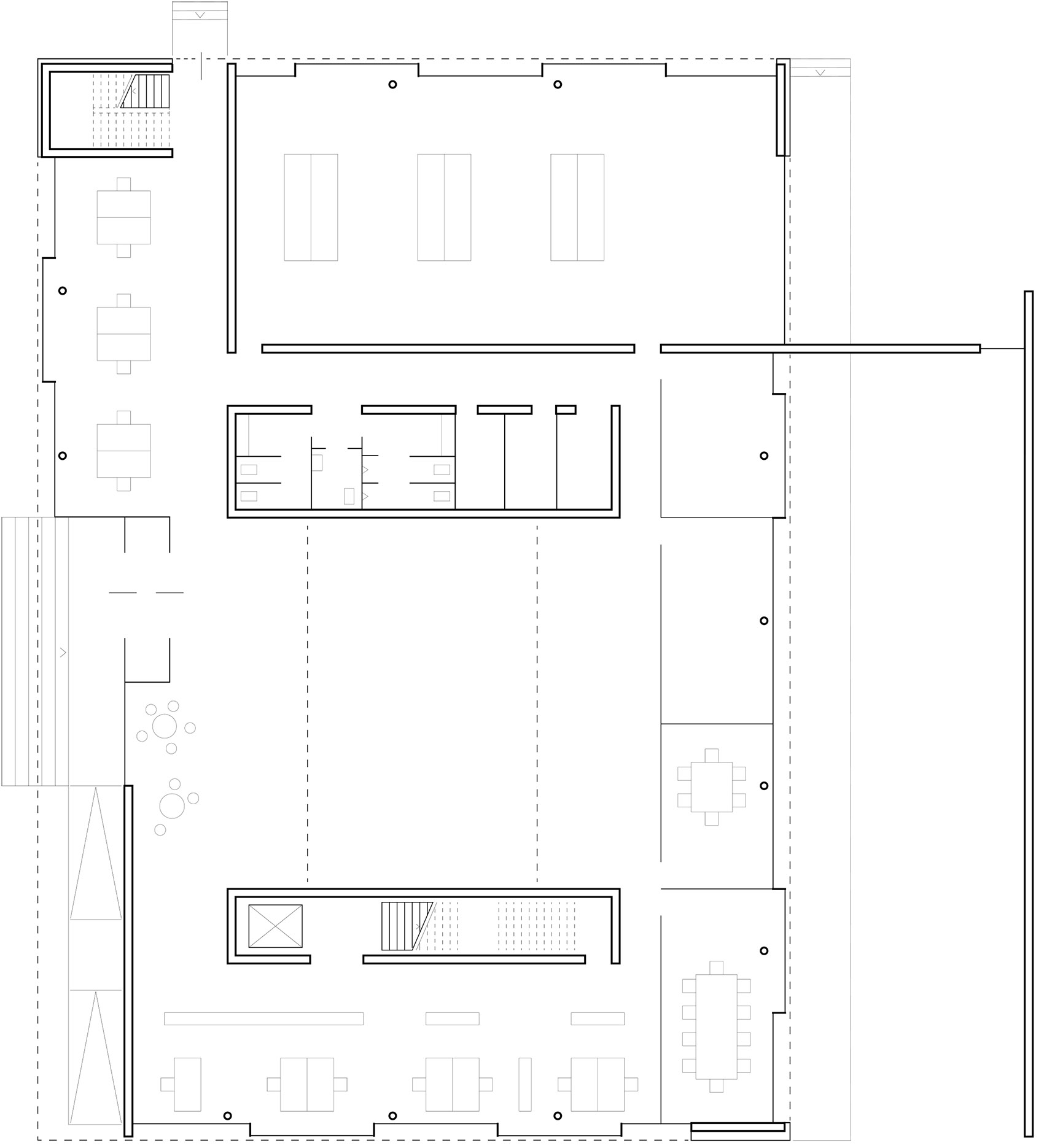
▼首层平面图,ground floor plan © Wittfoht Architekten
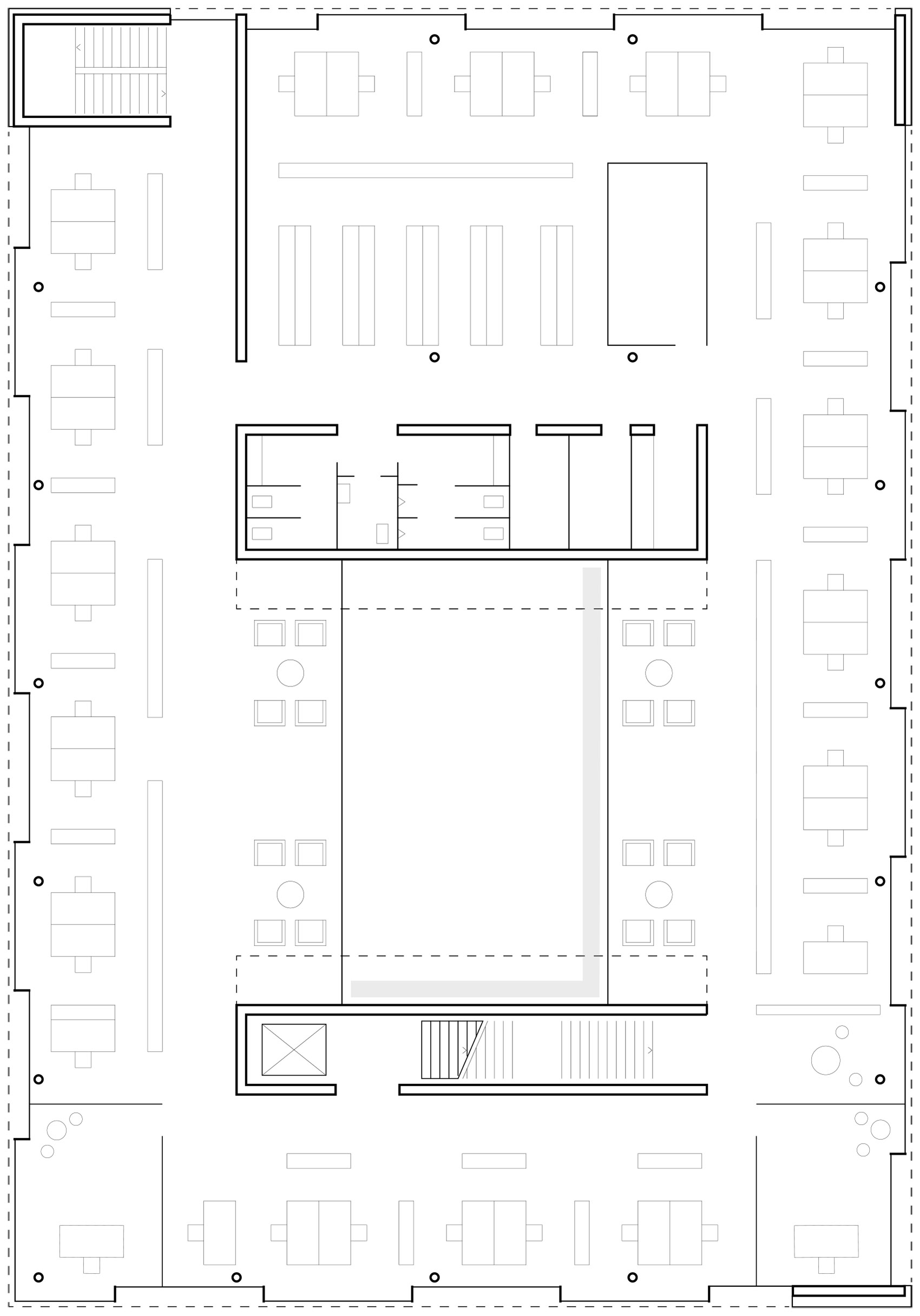
▼二层平面图,first floor plan © Wittfoht Architekten
▼剖面图,Overall view © Wittfoht Architekten
Copyright photos: Brigida González
E-Mail: mail@brigidagonzalez.de
客服
消息
收藏
下载
最近




















