查看完整案例

收藏

下载
青庐——古代婚房的现代诠释
“青庐”源自古代婚房之名,承载着传统婚俗的温情寓意。
窗外是城中村的烟火气,窗内是两人的诗意栖居。当95后新婚夫妻放弃千篇一律的“精装房”,设计师用135㎡的老自建房,以“青庐”为名,在传统婚房与现代美学间找到平衡。他们通过我们此前作品《融化的奶酪》找到团队,希望延续奶油风的治愈基调,为新婚生活打造一座兼具仪式感与功能性的理想居所。
老宅的挑战与新生契机成“三房”。
初次踏入这栋位于佛山城中村的自建房时,设计师笑言:“改造后定会成为村里最靓的仔!”
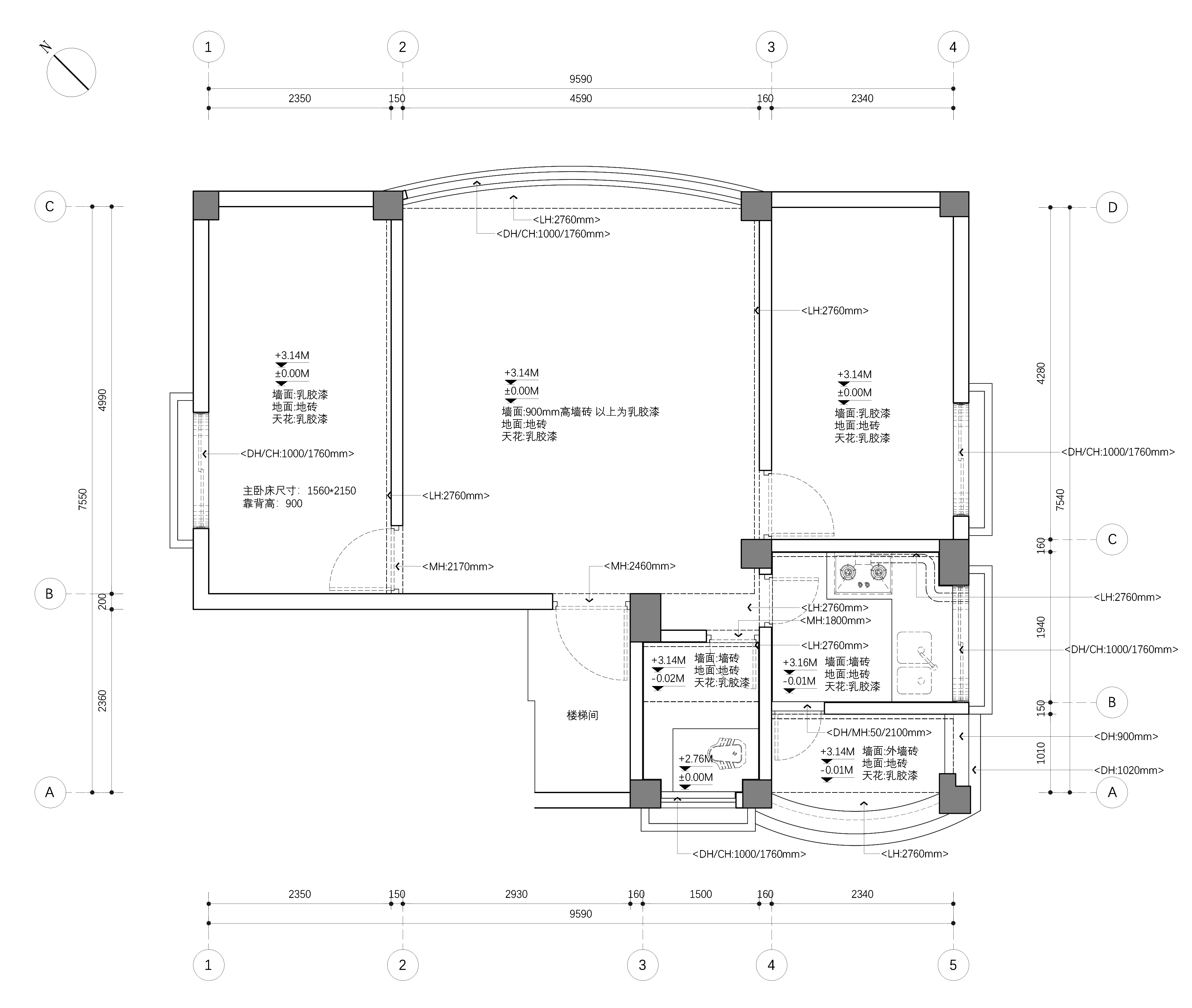
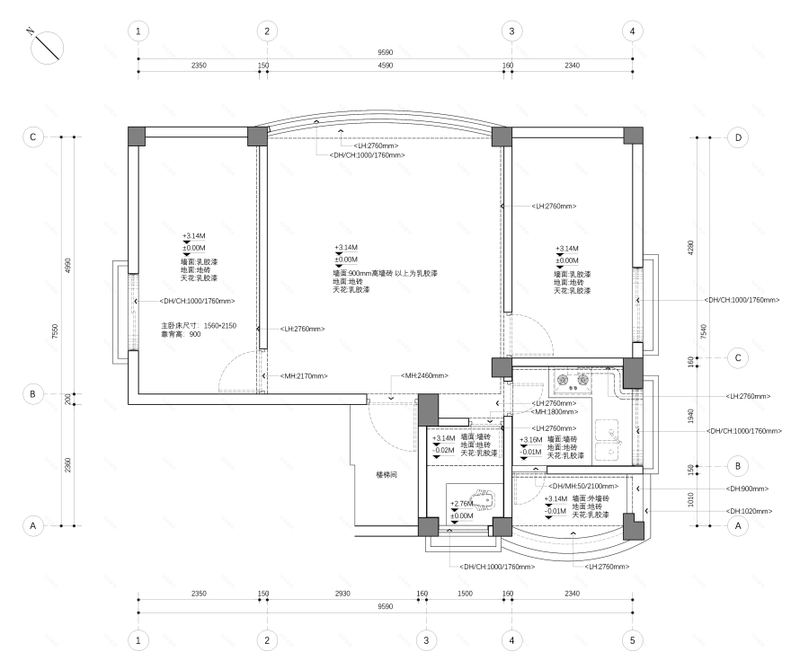
建筑共两层,总面积135㎡,原始格局却问题重重:
一楼痛点:进门即见客厅,毫无私密性;两间卧室占据最佳采光面,导致客厅白天也需开灯;厨房与阳台拥挤不堪,动线混乱,收纳几近于无;卫生间未做干湿分离,卧室尺寸失调,储物功能缺失。
垂直分区与光之魔法
功能布局:
动静垂直分区:一楼作为社交主场(会客、餐厨),二楼打造私密生活区(卧室、休闲)。
硬装重构:两层空间均进行大幅度格局调整,以“引光、纳景、塑形”为核心逻辑。
一楼改造重点:
1. 破除暗室:拆除客厅两侧墙体,将自然光引入户型中心,终结“白天开灯”的窘境;
2. 厨房重生:合并阳台扩充厨房面积,优化操作动线,收纳容量翻倍;
3. 空间转换:东侧卧室改为西厨餐厅,西侧卧室化身书房兼电竞房;
4. 弧形叙事:处理碍眼立柱为艺术圆柱,玄关至卫生间的弧形墙面柔化归家路径。
#效果图,往下看实景还原↓
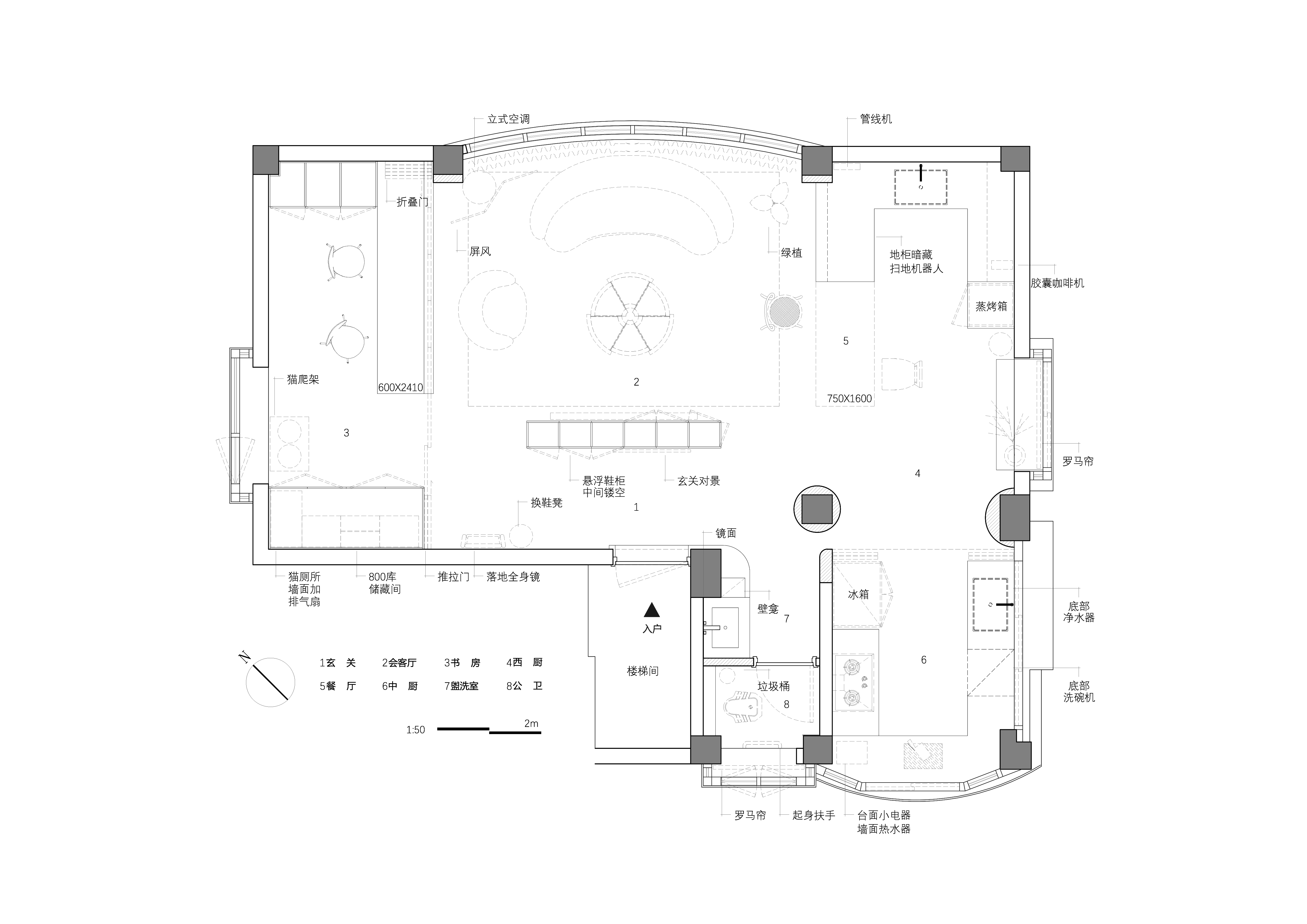
一楼 Ground floor
功能与美学的共生游戏
① 玄关:悬浮鞋柜的“两面人生”
改造前同角度对比
鞋柜内部以S型分隔:下层收纳鞋物,背面变身客厅电视墙,顶部背面暗藏Switch游戏设备柜,满足屋主娱乐需求
形窗帘+同款沙发,与圆柱、灯带构成柔软归家仪式
② 餐厨:梁位变身的“光影魔术”
房梁位暗藏阵列射灯,既弱化压迫感,又补充操作台照明
餐厅
吊灯可随节日长桌横移弯折,光源始终居中,聚会氛围拉满
深空灰冰箱、洗碗机隐于独立中厨,维持空间奶油基调的统一性
③ 客厅改造:光与弧的共生剧场
拆两侧隔墙,将自然光引入户型核心区,终结“暗室”时代
悬浮鞋柜背面延伸为电视背景墙,形成视觉中轴线,电视墙顶部暗藏Switch游戏设备柜,手柄、卡带收纳于无形
定制弧窗帘暗藏柔光灯带,沙发随曲线蜿蜒,与玄关圆柱、卫生间弧形墙面形成空间对话
④ 书房:半墙之隔的秩序美学
半高墙精准遮挡电脑设备,客厅视角零杂乱,手办展示柜与书桌一体设计,二次元爱好者的宝藏角落
收纳柜底部暗藏猫厕换气扇,可惜“波波”更爱沙发瘫——设计师调侃:“留个念想,等主子回心转意。”
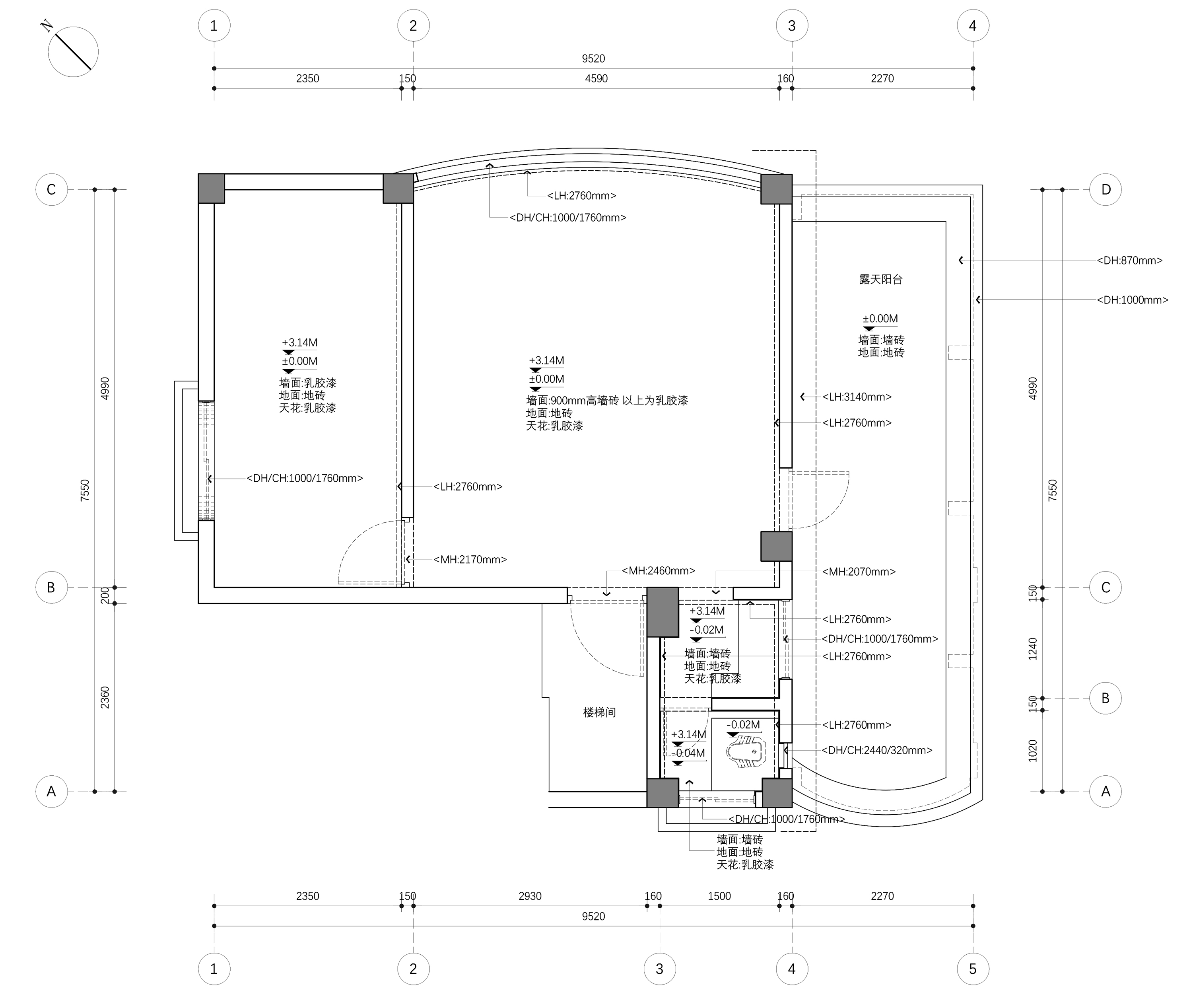
二楼痛点:入口区域沦为废弃晾晒区,阳台利用率极低;卫生间淋浴与蹲坑混用,存在安全隐患;卧室动线迂回,空间规划与生活需求严重脱节。
垂直分区与光之魔法
功能布局:动静垂直分区:一楼作为社交主场(会客、餐厨),二楼打造私密生活区(卧室、休闲)。
硬装重构:两层空间均进行大幅度格局调整,以“引光、纳景、塑形”为核心逻辑。
二楼改重点:
1. 光之容器:打通阳台外墙,将最佳采光面赋予主卧,并增设休闲露台;
2. 未来预埋:西侧卧室改造为上下错层空间,预留儿童游乐园可变性;
3. 干湿三分离:借用部分阳台重塑卫生间,实现洗漱、淋浴、如厕独立;
4. 小盒子建筑:采用非对称墙体与磨砂天窗,让光线从顶部漫入每个角落
效果图,往下看实景还原↓
二楼 Second floor
悬浮盒子与未来生长力
为了让空间采光延伸的更远,我们在楼上做了几个小建筑,让光从顶部延伸至空间尽头
⑤主卧:未完成的浪漫留白
墙面高度刻意低于梁位,黑色踢脚线勾勒悬浮盒子的建筑感;
拆除隔墙入露天阳台,形成主卧休闲阳台
阳台未完全封闭,未来可用龟背竹、琴叶榕打造一处会呼吸的生态隔断
剩余的阳台空间分隔成了两部分,一部分是户外洗衣房,主晾衣功能,另外一部分被我们纳入到了卫生间空间,卫生间空间独立突出户外阳台,行成了独立的方盒子。
⑥ 卫生间:雨天沐浴如置身森林
拆除隔墙引入露天阳台,磨砂玻璃天窗让雨天沐浴如置身森林
⑦未来彩蛋:十年成长计划
西侧卧室改造为上下错层“树屋”,预留推拉门轨道与互动窗口
秘密通道小门,树屋+洄游动线设计
楼上楼下互动窗口、秘密通道,让童年记忆在空间里自然生长
二胎时代分隔为独立房间,既保留亲密感又尊重隐私
基础信息
项目位置 / 广州
套内面积/135 ㎡
设计公司 /陈智超设计
主案设计师 / 陈智超
设计团队 / 吴小倩
项目摄影 / ALPDRI-业轩
房屋类型 /自建房改造
主要材质 / 莱姆石砖,木纹砖,石英石,乳胶漆
关于陈智超设计:
陈智超设计工作室:打造梦想之家,始于2025,深耕广州8年
陈智超设计工作室,2025年成立于广州,是一家专注于室内设计的全案设计工作室。我们深知,家不仅是栖身之所,更是心灵的港湾。因此,我们致力于根据每位屋主的独特需求和生活习惯,量身定制理想之家。
【获奖经历】
·2025
金堂奖「2025年卓越设计青年」
CIFF设交圈·「设计千人计划2025-2026」
·2024
设计星(2024-2025)全国36强候选人
2024-2025年度城市设计星区域50强
40 UNDER 40 (城市)当代设计杰出青年(2023-2024)城市榜
2024中国室内设计大奖赛“金十佳”(广州区)
原创力中国设计大赛(2024-2025年度入围奖)
新锐设计奖(2024-2025年度城际榜)
CIFF设交圈·「设计千人计划2024-2025」
《2024“豪斯奖”中国当代住宅设计大奖》• 全国TOP100
·2023年
“2023科勒精选·住宅设计风格榜”年度敢创设计人物提名奖
“让设计回归自然·2023年度高端私宅设计影响力榜单TOP50强”
“寻找心之所居2023中国室内设计年度评选”华南区年度绿色设计优秀奖
“寻找心之所居 - 2023中国室内设计年度评选”年度十佳私宅空间设计奖TOP10
2023中国室内设计大奖赛“金十佳”(广州区)
第十一届Hi-Design室内设计大赛-老房翻新奖
“老宅新生”设计奖广州城市十大改造设计师
40 UNDER 40(城市)当代设计杰出青年(2023-2024)城市榜
第十一届筑巢奖公众类“优秀奖”
年度先锋榜·DESIGNCHINA 2023年度(广州)十大先锋
2022-2023 TOP DESIGN 100设计头条年鉴榜-全国榜TOP100
2023玩色主义空间设计大赛-玩色主义创意奖
CIFF设交圈·「设计千人计划2023-2024」
第十五届“CBDA照明应用设计大赛”三等奖
CIID·第26届“中国室内设计大奖赛”优秀奖
·2022年
“一兜糖”最有温暖私宅设计TOP500
中国设计星(2022-2023)全国36强候选人
红棉设计奖·2022优秀艺术空间设计奖
2022年度唯美中国设计奖·优秀空间
华艺杯“空间造型组TOP140”
—END—
客服
消息
收藏
下载
最近










































