查看完整案例

收藏

下载
长洲花园改造项目开始于2022年夏天。花园位于一个小山坡的西北侧,由于疫情的关系,基地所在的花园已经长时间疏于打理,变得荒草横生,几乎无法使用。园内除了屋主自己的住所和两个工作室,顺着山坡方向,自西南向东北三个池塘一字排开,从空中看去像是草书的三个点。最北侧的池塘是用来养鸭子的。花园内除了入口水泥砖铺地的院子,其他地方树木茂密,到处是灌木。
The renovation project of Changzhou Garden began in the summer of 2022. The garden is located on the northwest side of a small hillside. Due to the pandemic, the garden had been neglected for a long time, becoming overgrown with weeds and nearly unusable. Within the garden, apart from the owner’s residence and two studios, three ponds stretch from southwest to northeast along the slope, resembling three dots in cursive script when viewed from above. The northernmost pond was used for raising ducks. Except for the entrance courtyard paved with cement bricks, the rest of the garden was densely wooded, with shrubs everywhere.
▼项目概览,Overall view© 林力勤
设计自2022年八月开始。通过场地踏勘,决定把客房放在园内靠近山坡的一块狭长平地上,西侧面对池塘。客房由带卫生间的套房和一个冥想室组成。从园子的出入口到场地的道路弯曲狭窄,一般的施工设备无法进入,因此采用了工厂预制+现场组装的钢结构和轻质墙板的建造方式。由于采用轻量化建造,与通常建筑“坐落”于场地之上的处理方式不同,长洲岛客房通过建筑体量与地面之间的动态形式,呈现出建筑与场地之间的张力和对抗。三个主要体块的形态关系与汉字草书的“山”相似。建筑室内较为封闭,营造类似洞穴的空间。封闭的室内环境有利于设备除湿,相对减少空调的使用。这也是岭南地区对抗湿热气候条件的一种技术策略。▼场地原状,Original site© 朱亦民
The design process started in August 2022. After site surveys, it was decided to place the guesthouse on a narrow, flat area near the hillside, facing a pond to the west. The guesthouse consists of a suite with a bathroom and a meditation room. The path from the garden entrance to the site was winding and narrow, making it impossible for standard construction equipment to access. Therefore, a prefabricated steel structure + on-site assembly approach was adopted, using lightweight wall panels. Due to the lightweight construction, instead of the conventional method of a building “resting” on the site, the Changzhou Island Guesthouse employs dynamic forms between the volumes and the ground, creating tension and opposition between the architecture and the site. The relationship between the three main volumes resembles the cursive Chinese character for “mountain” (山). The interior is relatively enclosed, evoking a cave-like space. This enclosed environment helps with dehumidification, reducing reliance on air conditioning—a technical strategy to combat the hot and humid climate of Lingnan (southern China).
▼鸟瞰,Bird’s eye view© 林力勤
▼隔池塘望向建筑,Distant view© 林力勤
▼建筑立面,Facade© 林力勤
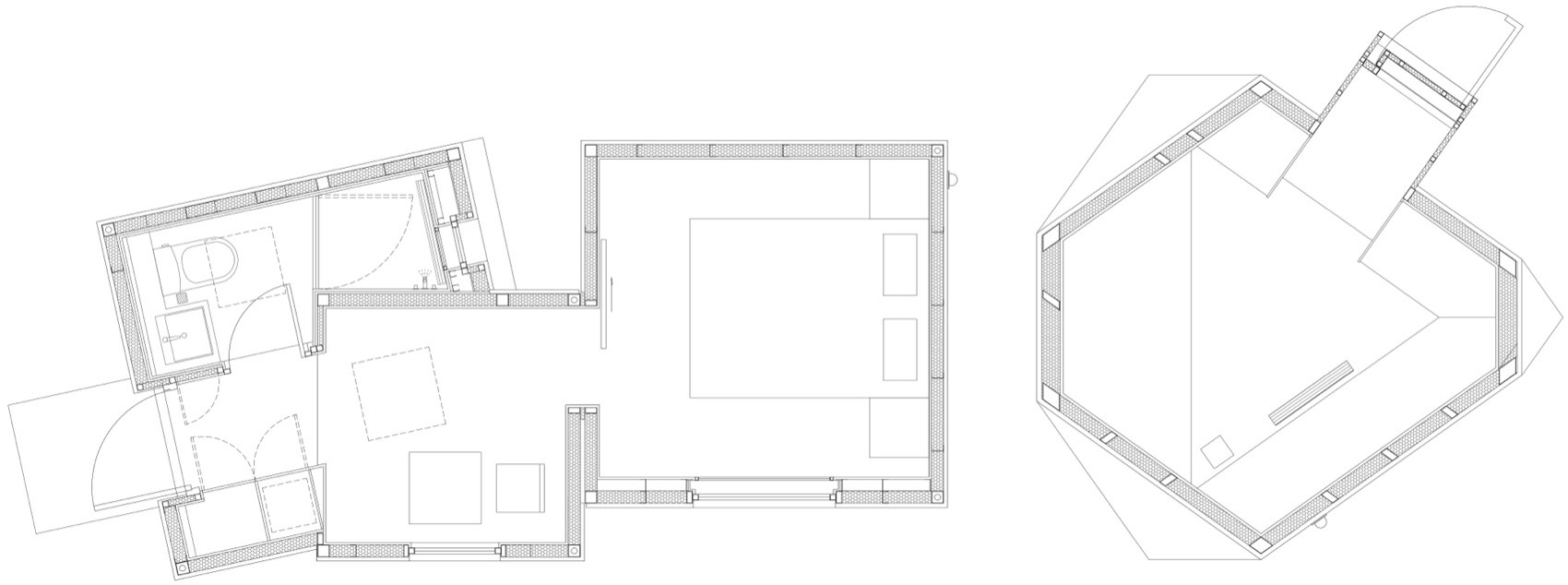
套房由两个大的立方体模块和一个连接的小立方体组成。两个大立方体内分别容纳了入口空间和卫生间以及卧室,小立方体是一个2X2米的小厅,也是卧室的前室。▼项目模型,model© 广州图岸建筑设计有限公司
The suite is composed of two large cubic modules and a smaller connecting cube. The two large cubes house the entrance space, bathroom, and bedroom, while the small cube is a 2×2-meter foyer, serving as an anteroom to the bedroom.
▼立方体组成的建筑,Building made of cubes © 林力勤
▼立面光影,Facade light and shadow © 朱亦民
卧室和前厅都向山坡一侧开窗。前厅可供一人独坐,透过一个倾斜的方窗可以看到眼前山坡的灌木和树丛,也可透过高侧窗看到头顶的树枝。卧室的墙面采用木板饰面,营造一种更自然亲切的氛围。
Both the bedroom and foyer have windows facing the hillside. The foyer is designed for solitary seating, with an inclined square window offering a view of the shrubs and trees on the slope, as well as a high side window framing the branches above. The bedroom walls are clad in wooden panels, creating a warm and natural atmosphere.
▼从建筑入口望向卧室,View from the building entrance to the bedroom © 林力勤
▼从建筑入口望向卧室,View from the building entrance to the bedroom © 朱亦民
我一直认为卫生间是非常重要的生活空间。在现代日常生活中,卫生间是不多的个体可以得到片刻独处的空间。卫生间不应该是设计的边角料,是其他主要功能的配角,仅仅用来消化“不利”的空间和位置。在这个设计中我想赋予卫生间一种仪式感。具体的方式是在坐便的上方加了一个可开启的天窗。当客人如厕时抬头可以看到天光树影,感受到周围花园的气息。
I have always believed that the bathroom is a crucial living space. In modern daily life, the bathroom is one of the few places where individuals can find solitude. It should not be treated as an afterthought—merely a secondary function relegated to leftover or “undesirable” spaces. In this design, I sought to imbue the bathroom with a sense of ritual. Specifically, a skylight was installed above the toilet, allowing guests to look up at the sky and tree shadows while sensing the surrounding garden.
▼卧室,Bedroom© 林力勤
▼卧室窗景,Bedroom window view © 朱亦民
▼卧室灯具,Bedroom lamps © 朱亦民
方案中的两个立方体采用了特殊的动态角度,分别是位于建筑两端的入口和冥想室。入口一侧的立方体向前倾斜,似乎正要向前方滚动。这种倾斜的状态在外墙与垂直地面的门之间产生一个夹角,形成一种视觉上的张力。这种不稳定还带来一种幽默,当人从室内打开门走出来的时候好像是被房子“吐”了出来。
Two of the cubic modules in the design adopt dynamic angles—the entrance and the meditation room at either end of the building. The entrance cube tilts forward, as if about to roll ahead. This inclination creates a visual tension between the sloped exterior wall and the vertically aligned door, introducing a playful instability. When someone steps out from inside, it almost feels as if the building is “spitting” them out.
▼冥想室入口,Meditation room entrance© 林力勤
▼冥想室入口近景,Close-up of the entrance to the meditation room © 林力勤
冥想室是一类特殊空间,这个立方体单元采取倾斜的角度布置,外立面呈现从地面旋转跃起的效果,室内所有的墙面都是倾斜的。这种形式造成一种紧张感,完全脱离了日常生活的经验视角。它也是对建筑与基地的传统关系的颠覆。延续洞穴的空间概念,冥想室的门采取了平面为L型的特殊形式。这种处理是为了增加门的视觉厚度,让它看上去像厚重的石头,或者船舱的密闭门,从而造成特殊的仪式感。突出主体的门斗延长了进入室内的距离,强化了这种从室外进入室内的仪式感。
The meditation room is a unique space. Its cubic module is set at an angle, with the façade appearing to rise dynamically from the ground. All interior walls are slanted, producing a sense of disorientation that breaks away from everyday spatial perception. This design also subverts the traditional relationship between architecture and its site. Extending the cave-like concept, the meditation room door features an L-shaped plan, enhancing its visual thickness to resemble a heavy stone slab or a ship’s airtight hatch, reinforcing the ritualistic experience. The protruding door frame elongates the entry sequence, intensifying the ceremonial transition from outside to inside.
▼冥想室室内,Meditation room© 林力勤
▼冥想室室内天窗,Meditation room interior skylight © 林力勤
本项目也是一次施工工艺及相关材料和产品的实验。方案考虑了封闭室内的自然通风问题,主要空间都安装通风器。冥想室门等特殊构件由工厂按照产品标准构造特制加工。为了减少窗框尺寸,项目采用了瑞士杨森(Jansen)的断桥钢窗。户门采用德国霍曼(Hormann)的产品,房间的通风器则采购自日本。
This project also serves as an experiment in construction techniques, materials, and product applications. Natural ventilation was considered for the enclosed interiors, with air vents installed in key spaces. Custom components, such as the meditation room door, were factory-produced to precise specifications. To minimize window frame dimensions, Jansen (Switzerland) thermally broken steel windows were used. The main doors were sourced from Hörmann (Germany), while room ventilation units were imported from Japan.
▼总图,site plan© 广州图岸建筑设计有限公司
▼首层平面图,ground floor plan© 广州图岸建筑设计有限公司
▼屋顶平面图,roof plan© 广州图岸建筑设计有限公司
▼立面图,elevation© 广州图岸建筑设计有限公司
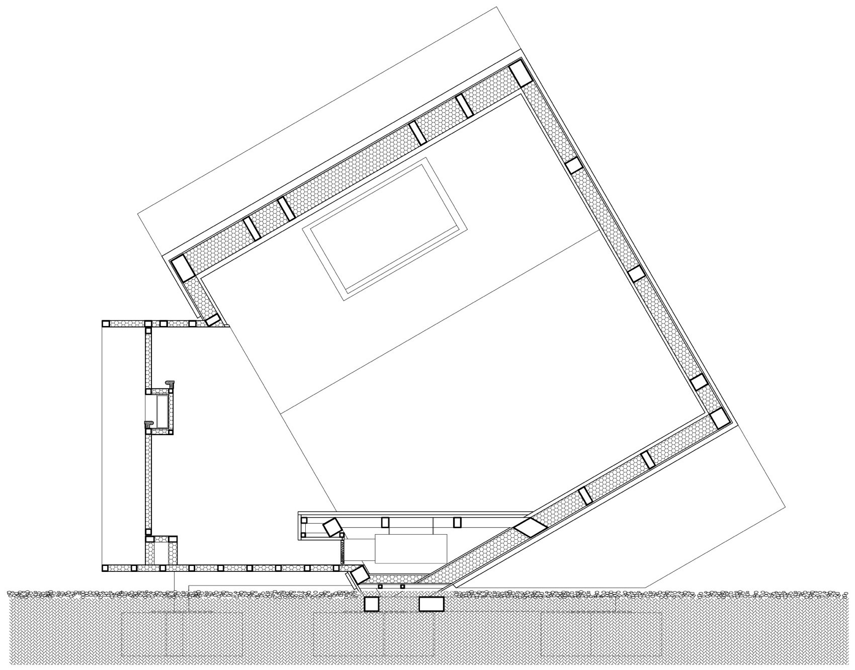
▼剖面图,section © 广州图岸建筑设计有限公司
▼剖面图,section© 广州图岸建筑设计有限公司
▼立孤室入口门节点图,entrance stucture© 广州图岸建筑设计有限公司
▼天窗节点图,skylight stucture© 广州图岸建筑设计有限公司
▼墙身节点图,wall stucture© 广州图岸建筑设计有限公司
项目地址:广州黄埔区长洲岛
建筑设计:广州图岸建筑设计有限公司
建筑师:朱亦民
设计团队:邱建海,戚发诚,李晓文,黄晓滢
施工:广东易成装配式建筑科技有限公司
监造:广州图岸建筑设计有限公司
品牌商:
外墙铝板:佛山市玛高金属制品有限公司
家具制作:东莞好长兴木材贸易有限公司
灯具制作:广州凯加未来科技有限公司
卫生间洁具:佛山市蒙克建材有限公司
卧室户门:霍曼(北京)贸易有限公司
冥想室门:广东鑫满溢金属材料制造有限公司
电动天窗:东莞德城门窗有限公司
Project Location: Changzhou Island, Huangpu District, Guangzhou
Architectural Design: Guangzhou Tu’an Architectural Design Co., Ltd.
Lead Architect: Zhu Yimin
Design Team: Qiu Jianhai, Qi Facheng, Li Xiaowen, Huang Xiaoying
Construction: Guangdong Yicheng Prefabricated Building Technology Co., Ltd.
Supervision: Guangzhou Tu’an Architectural Design Co., Ltd.
Brand Partners:
Exterior aluminum panels: Foshan Magao Metal Products Co., Ltd.
Custom furniture: Dongguan Haochangxing Timber Trading Co., Ltd.
Lighting: Guangzhou Kaijia Future Technology Co., Ltd.
Bathroom fixtures: Foshan Monk Building Materials Co., Ltd.
Bedroom doors: Hörmann (Beijing) Trading Co., Ltd.
Meditation room door: Guangdong Xinmanyi Metal Materials Manufacturing Co., Ltd.
Electric skylight: Dongguan Decheng Doors & Windows Co., Ltd.
客服
消息
收藏
下载
最近











































