查看完整案例

收藏

下载

翻译
Architects:SHROFFLEóN
Area:7000ft²
Year:2024
Country:India
Text description provided by the architects. Rarely does one get a chance to redesign a house that has a recent memory of its past owners. More reason for the son to keep the homage alive and for us to do justice to redesigning while keeping the essence alive. The conservationists within us felt a nudge. Adaptive reuse and conservation were the two keywords that came to us instinctively. The questions that arose and the ones we attempted to answer thereby: How do we familiarise new into the existing structure while keeping its character alive? How do we bring elements such as a greenhouse, a pool, an entrance porch, and a semi-open verandah to enhance the experience? How do we make it our own?
While our first instinct was to pull the structure down, we took a conscious call to keep the spatial setting as intact as possible while giving it a new character with contemporary materials. One with elements of surprise, richness of materials, and an ambience that annotates warmth and a homely environment.
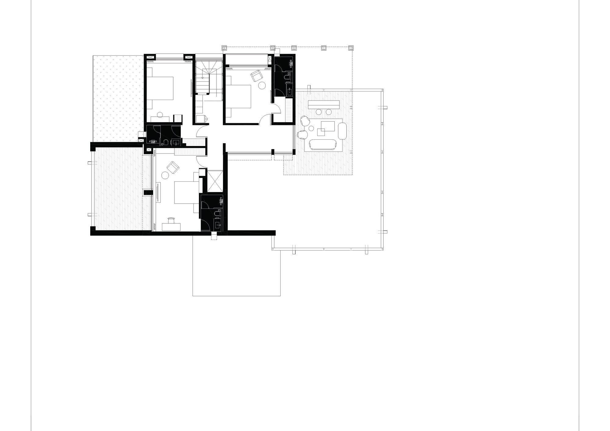
The functional spaces such as the living rooms, the bedrooms, the kitchen, and washrooms stayed where however they received a complete redesign, spatially and visually. The entire design, internal and external, has been thought through and designed on the lines of brutalist architecture combined with a modern aesthetic, one that is true to its materials and elements that create a sense of order and cohesion. The design of the building emphasizes the structural and engineering features rather than decorative design and poses a more functional and practical approach.
The façade is made of a visible steel structure and raw stone-clad walls, combined with glass and black aluminium frames to create full-height sliding windows and doors on the ground floor and balconies and terraces on the upper floors. The details with which we have designed the skeleton – the frame and the stone wall with the steel structure have been critical in how the exterior appears. It allows the materials to coexist with coherence while giving each other space. These were catalysts added to the solidness of the old structure to create a synergy and resonance – fragments to the whole.
The design of the porch and verandah with the glass partition and walls allow the living room to be a part of the outside – and vice versa. Through the architectural design of this Lonavala house, we tried to assign more meaning to each element in the building that was accredited with a different materiality. The windows jutting out is a classic language that expresses this feature. One can see that the walls, ceilings, floors, windows, and doors each have a unique character assigned with stone, wood, concrete, and steel. Through these characteristics, it was our attempt to create individualism while making it appear like they were a part of the whole.
The greenhouse was a refreshing addition to the rear end of the house that brought natural light into the home. The indirect light comes through the front of the house and makes it warm during the late evenings with cool breezes coming in from the southwest direction.
The dining area has achieved a character that we were only able to fully experience after the house was built. It came in as a surprising delight. With the pool on one side and the greenhouse on the other, the dining area has a tranquil character of charming connectedness and openness. One that every second home requires, aspires, and must be endowed. The House of Material and Character, for us, was one that allowed us to work within the framework provided but demonstrate our expertise in the details, material synergies, and designing for modern living.
Project gallery
客服
消息
收藏
下载
最近































