查看完整案例

收藏

下载
项目基地位于一座地方城市中心的商业区内,场地两侧均被紧贴用地边界的高层建筑所包围。业主提出了设置有顶车库和为孩子们提供独立房间的需求,这使得建筑体量不可避免地需要填满整个基地。
The site is located in a commercial district in the center of a regional city, with high-rise buildings on either side of the site just barely bordering the property line. The client’s request for a covered garage and private rooms for the children made it inevitable that the volume of the building would fill up the entire site.
▼建筑外观,Exterior view ©Toshiyuki YANO
▼住宅街景,street view of the house ©Toshiyuki YANO
因此,方案采矩形形态作为基础,同时通过在四个角落按需对角切角,创造出留白空间。通常而言,顶部切角是一种由地块形状自然衍生出的自动形态,但在这里,切角被作为一种主动策略使用,根据基地环境灵活创造外部余白,同时又保持了整体建筑面积所需的基本轮廓。
Therefore, a maximum rectangular shape was adopted as the basis of the plan, and corner cutting was adopted to create a blank space on the site by cutting diagonally at the four corners as necessary.
Generally, corner cutting is a kind of automatic shape derived from the shape of a corner lot, but here it is used as a proactive method to create external margins according to the location while maintaining the necessary overall outline of the building area.
▼二层居住空间,living space ©Toshiyuki YANO
通过这种方式,我们在一层基地的远端成功留出了设备和种植区的空间。二层的主要开口设置在切角后的墙面上,在尽量远离邻居窗户的同时,创造出小型的三角形种植露台,使窗前空间显得开阔而舒适。三层则在保持轮廓的基础上,嵌入了宽敞的露台甲板,使整个住宅成为一个融合了多样外部空间的建筑体。室内空间因放弃角落而形成了向心性,一方面给予了被墙体环绕的安全感,另一方面通过连续开口所带来的广角视野,又带来了开放感。
This allowed us to secure space for equipment and plantings on the far side of the site on the first floor. The main openings on the second floor are placed on the walls with the corners cut off, creating a small triangular planting terrace while maintaining as much distance as possible from the neighbor’s windows, making the space in front of the windows expansive and comfortable. The third floor also retains its outline while embracing a spacious deck terrace, making the building as a whole a home that encompasses a variety of exterior spaces. The interior space has a centripetal effect by giving up the corners, and while it provides a sense of security as if it is completely wrapped by the walls, it also provides a sense of openness through the wide-angle view from the continuous openings.
▼一层车库,garage on the ground floor ©Toshiyuki YANO
▼通往二层楼梯,staircase towards the upper level ©Toshiyuki YANO
▼客厅,living room ©Toshiyuki YANO
▼卧室,bedroom ©Toshiyuki YANO
▼卧室局部,bedroom ©Toshiyuki YANO
在与周边街道环境的关系上,设计将一层处理为独立的体量,呈现出类似基座的形式,而二、三层则通过一系列斜向、错动的外墙呈现,整体看似由多个小型建筑组合而成,而非一个庞然大物,从而减轻了对街对面住宅及行人的压迫感。
In consideration of the surrounding streetscape, the first floor is presented as a separate volume like a podium, and the second and third floors are made of a series of diagonal walls with uneven exterior walls, giving the impression of being composed of several small buildings rather than one large mass and reducing the sense of oppression to the houses and pedestrians across the street. The planar composition is composed of two deformed eight-story buildings.
▼阁楼空间,attic space ©Toshiyuki YANO
平面构成由两个变形的八边形稍微重叠组成。楼梯被设置在重叠区域的中心位置,通过开放式的布局与周边空间相连,使楼梯成为活跃的生活场所和交流的交汇点。
The plan configuration consists of two deformed octagons slightly overlapping each other. The staircase is placed in the center of the house, which is the overlapping part, and is connected to the surrounding space by an open mechanism, so that the staircase becomes an active place of residence and an intersection point for communication.
▼楼梯被设置在重叠区域的中心位置,the staircase is placed in the center of the house ©Toshiyuki YANO
▼楼梯细部,the staircase detail ©Toshiyuki YANO
地面和墙面的材质各异,屋顶则采用了陡峭的坡顶,覆盖在复杂的平面形态之上,旨在通过空间的形态与表达,激发孩子们的好奇心及五感体验。
The floor and wall finishes are varied, and a steeply pitched roof is placed on a complex planar form, with the intention of stimulating children’s curiosity and the five senses through the form and expression of the space.
▼夜景,night view ©Toshiyuki YANO
▼场地平面,site plan ©marutau arqui
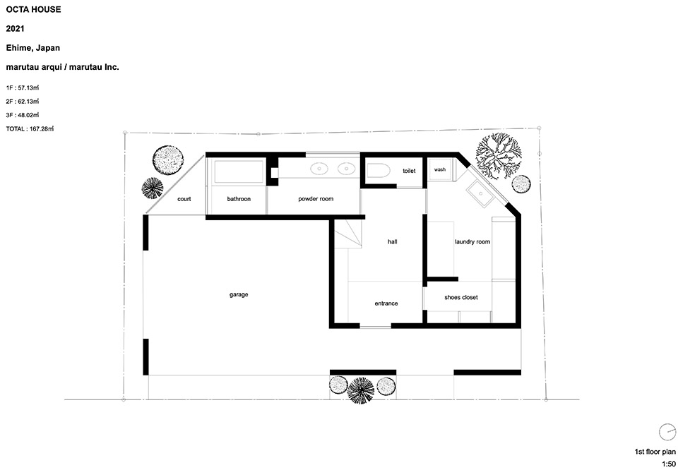
▼一层平面,ground floor plan ©marutau arqui
▼二层平面,ground floor plan ©marutau arqui
▼三层平面,third floor plan ©marutau arqui
▼立面,elevation ©marutau arqui
▼剖面,section ©marutau arqui
Name:OCTA HOUSE
Location:Ehime, Japan
Use:residence
Design:marutau arqui
Architect:Yoko OKEGAWA
Structure:wood
Stories:3floor
Site Area:96.68㎡
Building Area:62.13㎡
Total floor Area:167.28㎡
Completion:November 2021
Photographer:Toshiyuki YANO
客服
消息
收藏
下载
最近

































