查看完整案例

收藏

下载
©Ishita Sitwala 在这充满可能性的人生之路上,教育建筑有如一座心灵的灯塔,指引人们在迷雾中找到内心的信念和前行方向。教育的职责不仅在于知识和思维的传播,更在于营造一个开放、平等的求知环境,将理念通过有形的艺术加以诠释,于潜移默化中影响校园乃至城市环境的发展。
©Ishita Sitwala
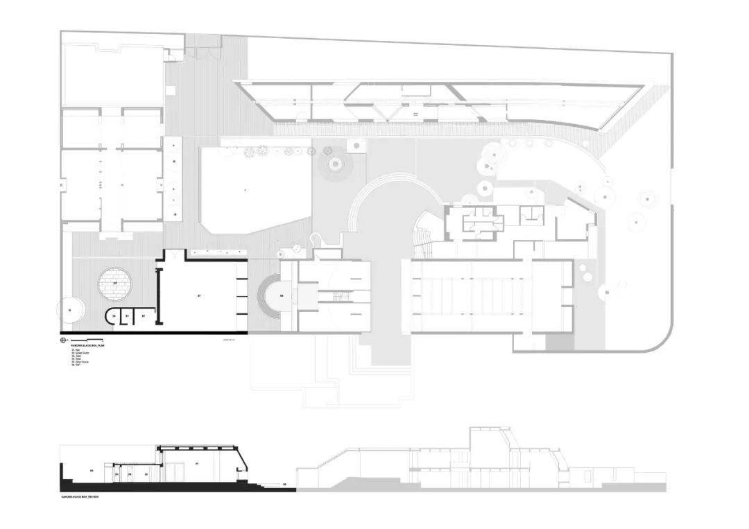
自1984年成立以来,位于印度阿穆达巴的卡诺里亚艺术中心就在形式和功能上不断发展,以适应艺术界不断变化的需求。艺术中心最初由著名印度建筑师巴克里希纳·多西(Balkrishna Doshi)负责设计,Studio Sangath在此次扩建中增加了一个被称为黑盒子的体块,为更多艺术实践提供相应的空间。
©Ishita Sitwala
新建建筑从现有的环境中汲取灵感,通过材料和形式结构上的呼应创造新旧之间的和谐联系。此外,露天舞台和景观的过渡作用模糊了二者之间的界线,使建筑群拥有充满凝聚力的统一氛围。
©Ishita Sitwala
△项目图纸
©Eugeni Pons
位于法国蒙蒂尼勒布勒托讷新城的音乐、戏剧与舞蹈学院坐落在一个三角形的地块上,可以远眺里卡多·波菲尔(Ricardo Bofill)于1985年设计的著名公寓大楼。由于人口稀少和生源匮乏的问题,这座新建建筑不仅以提供充满活力的教学空间为目标,同时旨在唤起周边社区的活力,打造一个可供居民聚集的空间。
©Eugeni Pons
紧凑的建筑空间面向街道所在的南侧,反射玻璃在立面中的使用倒映出周边的城市景观,进一步加强了与环境的联系。四层高的大楼内部包含大小不同的音乐室、戏剧室、舞蹈室以及一个礼堂,建筑师通过混凝土与彩色玻璃的组合利用打造如同万花筒一般梦幻的光影,为空间注入变换的色彩与活力。
©Eugeni Pons
左右滑动查看更多图片
©Thibaut Dini 建筑师 Amelia Tavella 在她的家乡科西嘉岛上创建了这座几乎与周边村庄景观融为一体的教育建筑,在尊重土地、顺应原有地形条件的基础上,学校的空间被分为三个相关联的层次,并同时承担教育和文化宣传的双重功能。
©Thibaut Dini 空间的三个层次分别象征着学习的不同阶段,俯瞰大海的开放露台将迷人的村庄景色融入学生的日常生活,使自然成为空间体验的重要组成部分。此外,宽阔的白色阶梯在形式上呼应了古老哲学院的设计,勾勒出平等、开放的学习环境。
©Thibaut Dini
左右滑动查看更多图片
©Shigeo Ogawa 日本湘南工科大学附中的新建图书馆是为了解决原有建筑的老化问题而规划的替代空间,建筑师将其与一些老旧的教学建筑合并,通过摆脱传统教室的统一布局来营造一个更加开放、流动的序列,改变校园的整体氛围。
©Shigeo Ogawa 呈五边形的三层空间并没有依照功能进行区分,而是在每个层次中都融入了教学空间和一间图书馆,通过整合不同功能的布局模式和不规则的倾斜墙体设计,建筑师希望学生能够在开放的学习环境中更积极的参与各种活动,挖掘深层次的潜力。
©Shigeo Ogawa
左右滑动查看更多图片
©Sebastian van Damme、Marcel Ijzerman
位于荷兰格罗宁根大学的教育中心是健康与老龄化校园计划中的一个建筑项目,场地所在的空间曾是一条通往市中心的道路,经过功能转变后,这座大楼旨在成为一个可识别的地标,加强校园与城市之间的联系。
©Sebastian van Damme、Marcel Ijzerman
健康与老龄化校园计划的核心在于创造一个有益健康的学习环境,因此建筑师通过增强不同楼层、不同功能区域之间的可达性和互动性来打造适于社交活动的良好氛围,同时重视自然光和植物景观的积极影响,建立一个充满活力的校园绿色中。
©Sebastian van Damme、Marcel Ijzerman
左右滑动查看更多图片
策划:NeiWai
编辑: YouChuan
校对:YueQiu
排版:NingBai
客服
消息
收藏
下载
最近






























































































