查看完整案例

收藏

下载
店铺采用两侧展墙+中岛柜台的环形动线布局,将“车库”外立面呈现于店铺内部空间,意图营造出游走在两个不同性格的车库之间的场景。
The store adopts a loop circulation layout featuring dual side display walls and a central island counter, reinterpreting the concept of a “garage” façade within the interior space. This design creates a spatial narrative that evokes movement between two contrasting garage identities.
▼项目概览,project overview © UK studio
废旧金属元素搭配粗糙质感的混凝土,玻璃展柜搭配经典的黑色皮革,彰显出饰品非凡的格调,工业风与精致感在此碰撞融合。
A juxtaposition of distressed metal elements with raw concrete surfaces, along with glass display cases paired with classic black leather, highlights the refined character of the accessories on display. The industrial aesthetic is balanced by a sense of precision and sophistication.
▼工业风与精致感, industrial aesthetic © UK studio
中岛地面采用花纹钢板,以绑带连接的木托盘作为展台,将三角桁架、起重吊钩、复古壁灯、喷绘标语等元素运用在空间中,细节的触点增添了工业氛围和粗犷质感。天花的平板灯仿佛若干窗口,为空间提供基础照明,通道上方设有展示区域的重点照明,打亮展柜的同时不会使玻璃反光。
The central island is set on patterned steel flooring, with display platforms made of wooden pallets bound by straps. Structural elements such as triangular trusses, hoist hooks, vintage wall lamps, and printed slogans are integrated into the space, enriching its industrial tone and rugged texture. Flat panel lights on the ceiling resemble a series of windows, providing ambient lighting, while focused lighting above the walkway illuminates the displays without causing glare on the glass.
▼地面采用花纹钢板,patterned steel flooring © UK studio
▼工业氛围和粗犷质感,
industrial tone and rugged texture © UK studio
▼废旧金属元素,distressed metal elements © UK studio
▼展架镶嵌在卷帘门内,
display racks are embedded within a rolling door © UK studio
一侧墙面的展架镶嵌在车库的卷帘门内,仿佛是神秘限定的收藏,增加空间的趣味性。另一侧是用绑带将展柜固定在墙上,与中岛柜细节元素相呼应。
On one side, display racks are embedded within a garage-style rolling door, resembling a hidden, curated collection and adding a layer of intrigue. On the opposite side, display cases are strapped directly to the wall, echoing the detailing of the central island and reinforcing the cohesive industrial narrative.
▼细节,details © UK studio
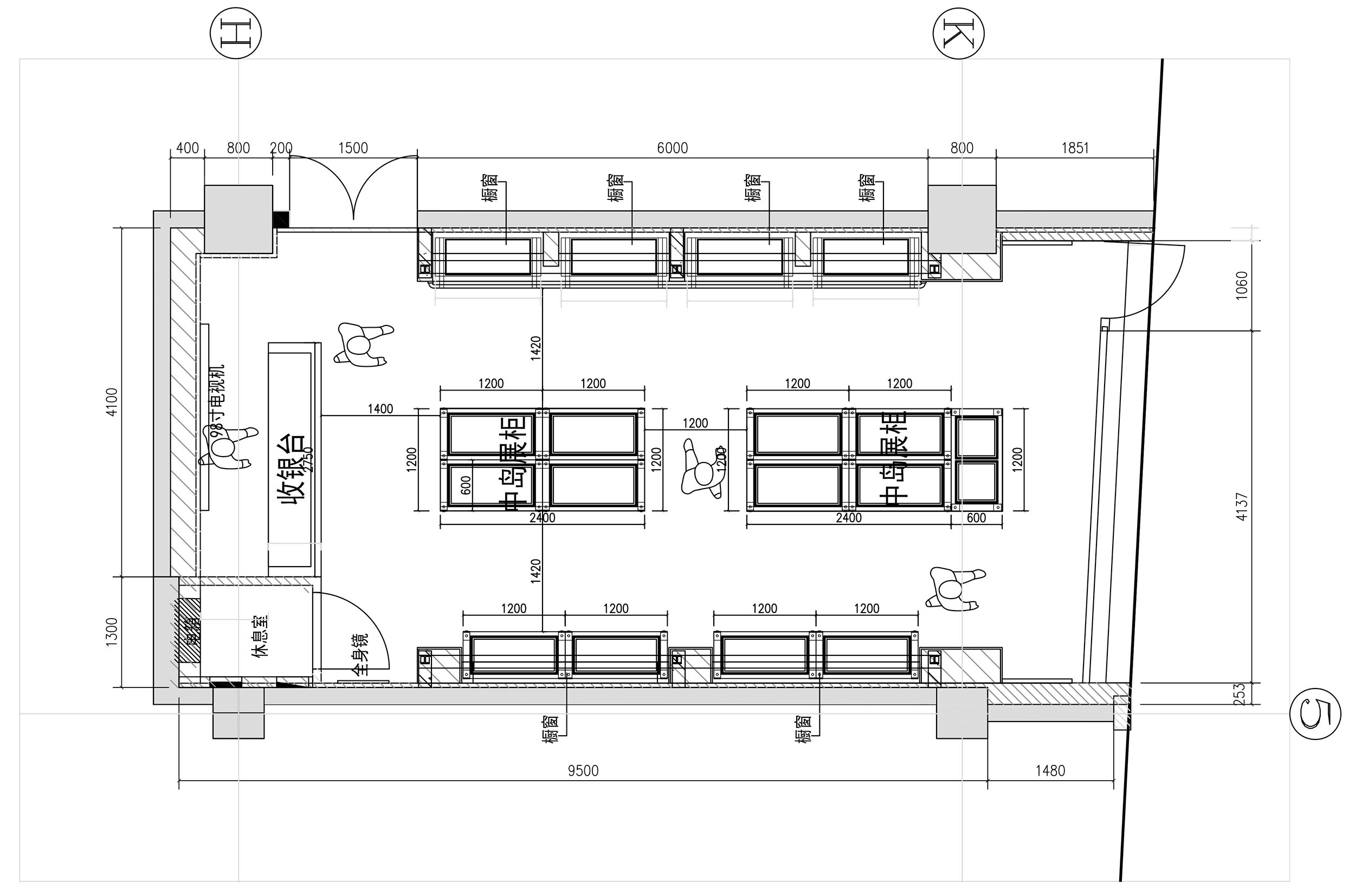
▼平面,plan © WBS里外工作室
▼立面,elevations © WBS里外工作室
▼立面细部,elevation details © WBS里外工作室
▼细部,detail © WBS里外工作室
项目名称:ROCK&RIDE 三里屯太古里店
项目类型:零售商业
设计方:WBS里外工作室
项目设计:2024.6
完成年份:2024.11
设计团队:张哲,王啸宇,张海莹,梁济蕾
项目地址:北京三里屯太古里南区SLG-13b
建筑面积:65㎡
摄影版权:UK studio
客户:ROCK&RIDE
材料:朗生板
品牌:朗生
Project name: ROCK&RIDE Beijing Sanlitun TaiKoo Li Store
Project type: Retail
Design: Within Beyond Studio
Design year: 2024.6
Completion Year: 2024.11
Leader designer & Team: Zhe ZHANG, Xiaoyu WANG, Haiying ZHANG, Jilei LIANG
Project location: Sanlitun Taikoo Li SLG-13b
Gross built area: 65㎡
Photo credit: UK Studio
Clients: ROCK&RIDE
Materials: LANSEN board
Brands: LANSEN
客服
消息
收藏
下载
最近


























