查看完整案例

收藏

下载
F L Y ¢ D E S I G N
⊙
# 画 境 #
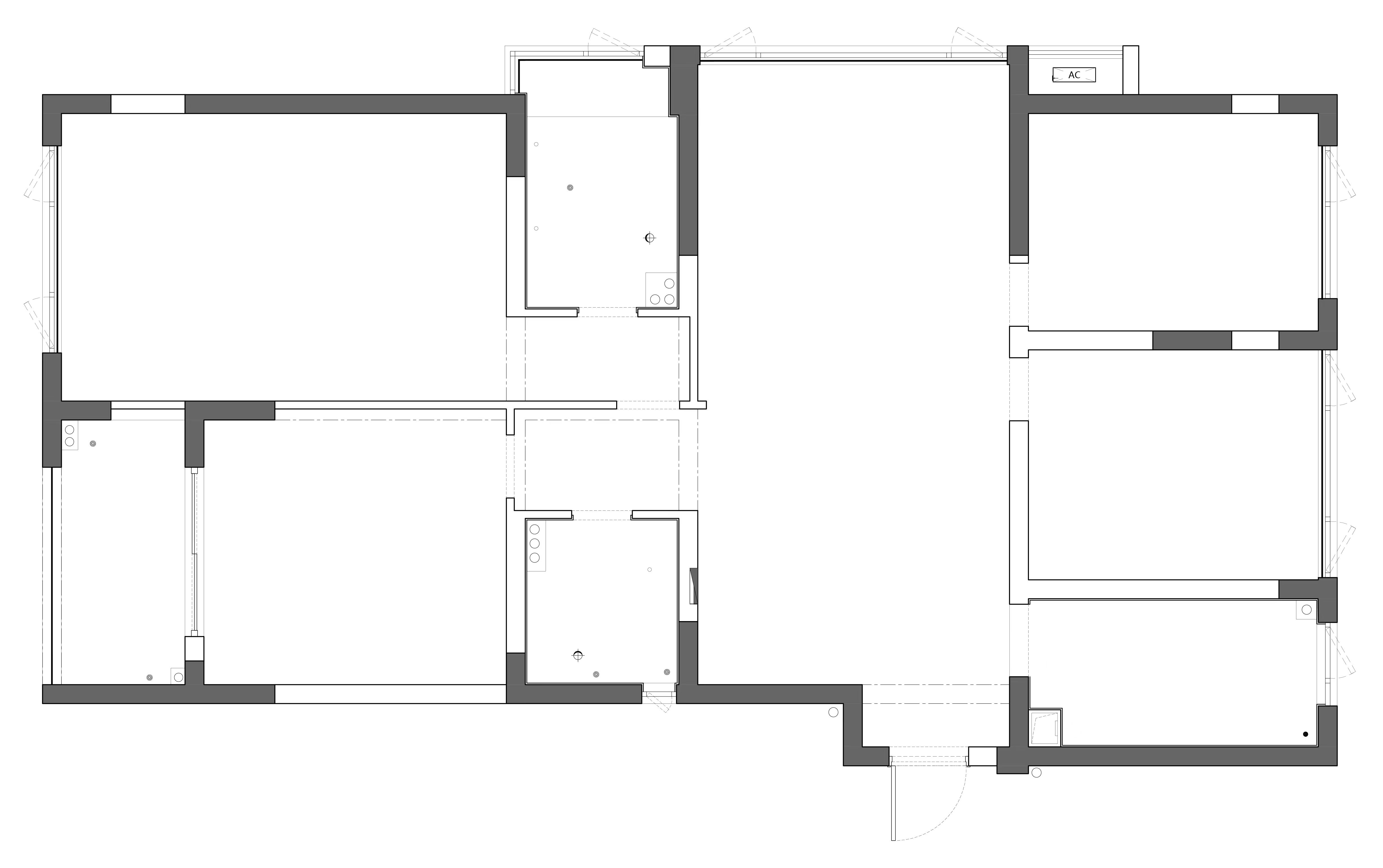
乏味可陈的框架下寻求空间新的立意,于内里处于周遭外,形态与外物之间的联系寻求可共享的讯息,连接后展现的生命力,是空间永久行进的诗笺。发掘建筑内外的可调动性,内外之间的延展交互望见生活的诗意,不破不立破而后立,空间重组四室变三室,开放性空间重塑家居点滴,框景入室四季流转,自然变迁与室内同歌,自由浪漫的家居进行时永不落幕。
客厅 / Living Room
客厅 / Living Room
客厅 / Living Room
客厅 / Living Room
客厅 / Living Room
一方天地内见生活的闲适与温润,数片花影下感自然的灵动与清幽,通体奶油与鱼骨地板作空间底色,米色系软装点缀些许亮色,纹理与材质的交织以光为曲,清雅松弛的居家感轻奏舒逸乐章。
客厅 / Living Room
客厅 / Living Room
客厅 / Living Room
客厅 / Living Room
限定空间下寻获轻巧的体感与灵动的布局,巧用结构与功能的转换架构,改善功能下的氛围呈现,壁炉式装饰柜替代电视柜功能装点生活的仪式感,山水画纹理书写的林泉诗境,自然与生活的交融之美,在此镌刻下宁静而浪漫的诗行。
客厅 / Living Room
客厅 / Living Room
客厅 / Living Room
客厅 / Living Room
不一味地开辟多功能空间而挤压生活的舒适性,以慵懒的步调游走于家居之间,狭小储藏间收入厨房一并处理做开放式,毫无保留地直面一整面窗景,框景为画着色于内,开放式厨房宛如生活舞台的中心,繁忙蓬勃的烟火气与自由烂漫的穹宇作伴,烹饪之间是一场与自然的对话,治愈身心。
厨房 / Kitchen
厨房 / Kitchen
厨房 / Kitchen
厨房 / Kitchen
厨房 / Kitchen
一杯清茶、一本书,一袭绿意,便是居者与世界对话的方式,阳光透过斑驳的树叶,随风撒入室内袅袅婷婷,一扇窗展开与外界的连接,姗姗迤逦于生活的山水之间,书写诗意画卷。
厨房 / Kitchen
餐厅 / Dining Room
餐厅 / Dining Room
过道 / Corridor
仪式感拱形门洞走入时光编织的温柔回廊,移门轻启,翻开藏满故事的诗集;半开放式衣帽间合可自成一室,开可与空间串联,作连接卧室与公区的通道;通铺衣柜之下的衣帽间内置梳妆台和洗衣房功能,为空间多元赋能演绎生活烟火与诗意的交织。
衣帽间 / Cloakroom
衣帽间 / Cloakroom
次卧 / Second Bedroom
直面公区的次卧门以拱形双开门置之,每一次开合进出皆是生活的仪式感,柔和的色调以自然纯粹之美展开对心灵最温柔的抚慰,淡去尘世的锐利与锋芒,灵魂在静谧中低语。
次卧 / Second Bedroom
主卧 / Master Bedroom
主卧 / Master Bedroom
主卫 / Master Toilet
原始图
平面图
地址/杭州市江干区高德置地中心2号楼2单元1101室
客服
消息
收藏
下载
最近


































