查看完整案例

收藏

下载

翻译
Architects:ROOVICE
Area:104m²
Year:2024
Photographs:Akira Nakamura
Manufacturers:Mino Tile,Osmo & Edel,Prime Paprika,Roovice,toolbox
Lead Architects:Sorai Takei, Aoi Higashi | Roovice
Site Manager:Aoi Higashi | ROOVICE
Program / Use / Building Function:Residential
Country:Japan
Nukui House: Transforming a 1976 Tokyo Home Through Practical Renovation – Located in the quiet residential streets of Nukui, Tokyo, Nukui House is a renovation of a 1976 wooden home through Roovice's Kariage initiative. The project demonstrates the potential of Tokyo's aging residential stock, showing how targeted interventions can extend the life of existing structures while addressing urban vacancy challenges.
Context and Initiative – The Kariage initiative revitalizes vacant properties at no cost to owners, offering a practical solution to Japan's growing akiya problem while preserving their history. Nukui House, located in Tokyo's Nerima Ward, is a 103.89 m² two-story home, originally with a 3DK layout on the first floor and a 2LDK on the second. After its previous owner moved to the countryside, the neighboring couple purchased the property to secure access to the main road for future redevelopment. With no immediate plans to build, they turned to Kariage to prevent deterioration and put the house to use.
Design Approach: Retaining the Old, Enhancing the New – The renovation aimed to maintain the integrity of the original house while introducing updates that improve spatial quality, functionality, and light. By selectively removing walls and reconfiguring spaces, the intervention supports modern living needs while keeping core structural elements intact.
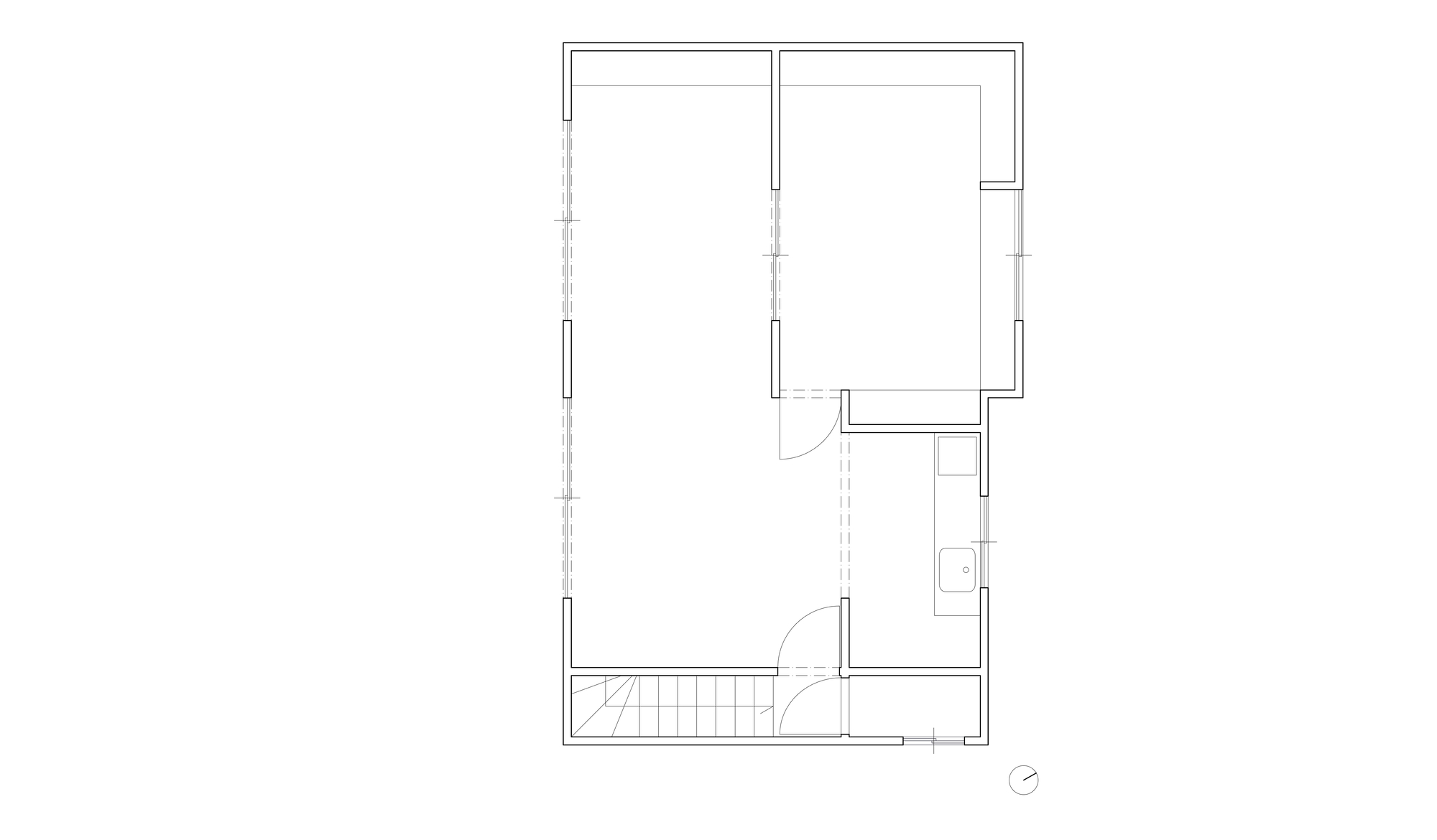
First Floor: Expanding Spatial Fluidity – Previously compartmentalized into a 3DK layout, the first floor underwent a significant transformation. The removal of corridor walls created a larger entrance area that connects directly to the living spaces. The original kitchen was removed, leaving only the distinctive tiled surface as a reference to its past. A new tiled bathroom and toilet were installed, while the flooring was updated and the walls painted white to create a neutral backdrop. Traditional shōji screens were refurbished, and tatami in the entrance room was replaced with flooring, balancing traditional and contemporary elements.
Second Floor: A Blend of Heritage and Modernity – The second-floor renovation preserved key elements while introducing practical updates. A defining feature of the home, the red kitchen tiles, were replaced with new red tiling, maintaining continuity while refreshing the aesthetic. A custom-built modern kitchen was installed for improved functionality. The wooden wall panels were preserved, and the ceiling boards were removed to reveal the underlying beams, adding a sense of openness and highlighting the structure's original craftsmanship. Insulation was added and concealed behind new boards, keeping the ceiling height unchanged. The old partition wall was removed to create a larger LDK space, improving light penetration and flow. Meanwhile, the traditional tatami room was refurbished, and the walls were repainted, maintaining a balance between old and new.
Outcome: A Contemporary 3LDK with a Spacious Entrance – The renovated Nukui House now functions as a spacious 3LDK, a significant shift from its previous fragmented layout. The removal of unnecessary partitions improves flexibility while material choices and finishes respect the home's original character. This approach not only extends the usability of the structure but also aligns with broader efforts to repurpose aging homes in Tokyo's evolving residential landscape.
Through targeted interventions, Nukui House demonstrates how renovation can preserve architectural heritage while adapting to contemporary living needs. As part of the Kariage initiative, it serves as a practical case for sustainable, community-driven urban regeneration in Japan.
Project gallery
客服
消息
收藏
下载
最近









































