查看完整案例

收藏

下载
息壤酒店选址于一处连排的鱼塘,东侧是烟波浩渺的太湖,北侧紧邻沙塘港河,南侧依傍竺山,西侧与社区市集相接。面对这个具体且多样的环境肌理,我们尝试寻求一种适宜的空间机制,向外回应四个方向,向内组织空间,以唤起蕴含当地风土精神的空间经验。
▼北立面,North elevation © Luo Canhui 罗灿辉 / Vector Architects 直向建筑
▼太湖与北立面,Taihu Lake and the north elevation © Luo Canhui 罗灿辉 / Vector Architects 直向建筑
▼鸟瞰,Aerial view © Luo Canhui 罗灿辉 / Vector Architects 直向建筑
我们选择“院子”作为空间组织的基本单元。每个院子对应一个功能,再通过平面与高度的设置,将多个院子聚合在一起,形成“并置的群院”——建筑体量也因此得以化整为零,避免单一体量的过大尺度对环境带来的压迫感。
▼从书院水塘看向香樟水院,View from the pond to the guestroom courtyard © Luo Canhui 罗灿辉 / Vector Architects 直向建筑
▼餐厅滨水就餐区,Waterfront dining area of the restaurant © Luo Canhui 罗灿辉 / Vector Architects 直向建筑
▼穿过灌木看向连桥,View from brushes to the bridge © Luo Canhui 罗灿辉 / Vector Architects 直向建筑
建筑底层的室外游廊系统一共串联着九个院子,由西向东延伸,根据氛围对应不同的自然主题,构成群院格局中多个带有鲜明特征的节点。地面标高顺应原始地形,由西向东下沉,最终嵌入山脚的水塘,形成半层高差的微地形。
▼北立面局部,Close-up of the north elevation © DONG建筑影像 / Vector Architects 直向建筑
▼西入口廊院,West entrance courtyard © Luo Canhui 罗灿辉 / Vector Architects 直向建筑
▼西入口廊院,West entrance courtyard © Luo Canhui 罗灿辉 / Vector Architects 直向建筑
▼西入口廊院,West entrance courtyard © Luo Canhui 罗灿辉 / Vector Architects 直向建筑
▼柱廊空间,Porticos © Luo Canhui 罗灿辉 / Vector Architects 直向建筑
砖墙体量上方的水平檐口从竺山向运河一侧逐级叠落,端头朝向河口处立有一座玻璃光塔。这些微妙的动作最终结合在垂直方向上的漫游步道和体量开合,呈现出一个空间的立体游走系统。
▼连桥和光塔,Sky bridge and the light tower © Luo Canhui 罗灿辉 / Vector Architects 直向建筑
▼光塔庭院,Light tower courtyard © Luo Canhui 罗灿辉 / Vector Architects 直向建筑
▼光塔内景,Interior of the light tower © Luo Canhui 罗灿辉 / Vector Architects 直向建筑
▼光塔内景,Interior of the light tower © Luo Canhui 罗灿辉 / Vector Architects 直向建筑
▼从全日餐厅看向竺山,View from the all-day dining restaurant to the Zhushan mountain © Luo Canhui 罗灿辉 / Vector Architects 直向建筑
在我们的构想中,每一个院子就是一个“小的世界”——各自拥有不同的光、风、尺度、景和氛围。空间界面和自然光的明暗组织调动身体的游走,视野角度随之变换,在若干个“小的世界”之间创造出了一种复杂的关系,像是蒙太奇般的空间切换。日常光线被引入西侧的廊院,在地面层营造出多个近人尺度的花园。
▼石庭,Stone courtyard © DONG建筑影像 / Vector Architects 直向建筑
▼花接铺地庭院,Floral-paved courtyard © DONG建筑影像 / Vector Architects 直向建筑
▼花接铺地庭院,Floral-paved courtyard © DONG建筑影像 / Vector Architects 直向建筑
雨露阁作为整个建筑群的空间枢纽与多个院子相接,圆形青铜雨斗被放置于高16米的空间顶部,作为屋檐汇集疏导雨水。樟树水院尺度最大,东侧朝太湖方向敞开,南北两侧由两层通高铜网包裹的客房走道环绕界定。河岸边高耸的光塔呼应太湖之水,塔顶高24米,通体采用玻璃砖砌筑而成,映射着天光的变化。
▼从雨露阁看向花接铺地庭院,View from the Raindrop courtyard to Floral-paved courtyard © DONG建筑影像 / Vector Architects 直向建筑
▼雨露阁,Raindrop courtyard © Luo Canhui 罗灿辉 / Vector Architects 直向建筑
▼从雨露阁首层仰望青铜雨斗,Looking up at the bronze raindrop funnel from Raindrop courtyard © DONG建筑影像 / Vector Architects 直向建筑
▼青铜雨斗局部,Detail of the bronze raindrop funnel © Luo Canhui 罗灿辉 / Vector Architects 直向建筑
▼青铜雨斗鸟瞰,Aerial view of the bronze raindrop funnel © Luo Canhui 罗灿辉 / Vector Architects 直向建筑
▼从雨露阁看向樟树水院,View from the Raindrop courtyard to Camphor courtyard © DONG建筑影像 / Vector Architects 直向建筑
▼樟树水院,Camphor courtyard © Luo Canhui 罗灿辉 / Vector Architects 直向建筑
▼从樟树水院廊下看向叠水景观,View from the Camphor courtyard to the cascade © Luo Canhui 罗灿辉 / Vector Architects 直向建筑
▼樟树水院雨景,Rain scene of the Camphor courtyard © Luo Canhui 罗灿辉 / Vector Architects 直向建筑
▼盐洞与天光,Himalayan salt cave with skylight © Luo Canhui 罗灿辉 / Vector Architects 直向建筑
▼通往盐洞的步道,Stairs to the Himalayan salt cave © Luo Canhui 罗灿辉 / Vector Architects 直向建筑
▼泡池与天光,Hot spring pool and the skylight © Luo Canhui 罗灿辉 / Vector Architects 直向建筑
湖、河、山、市远近各异,我们通过穿透的视线将其纳入群院,不同景别的自然要素与空间相互叠加。细柱、片墙、檐口化作剪裁的框架,水面的波光、摇曳的树影与河上缓行的船帆若现其中,人或探索或偶遇,步移景异,现实与想象不断转换。▼茶阁,Tea pavilion © Luo Canhui 罗灿辉 / Vector Architects 直向建筑
▼光塔夜景,Night view of the light tower © Luo Canhui 罗灿辉 / Vector Architects 直向建筑
▼模型照片, Model photo © 直向建筑
▼草图, Sketch © 董功
▼总平面图, Site plan © 直向建筑
▼首层平面图, First floor plan © 直向建筑
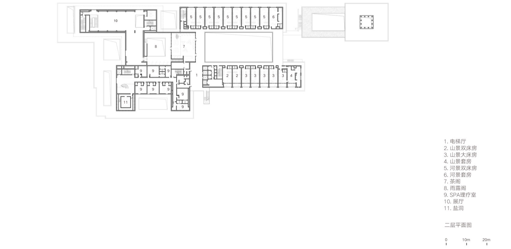
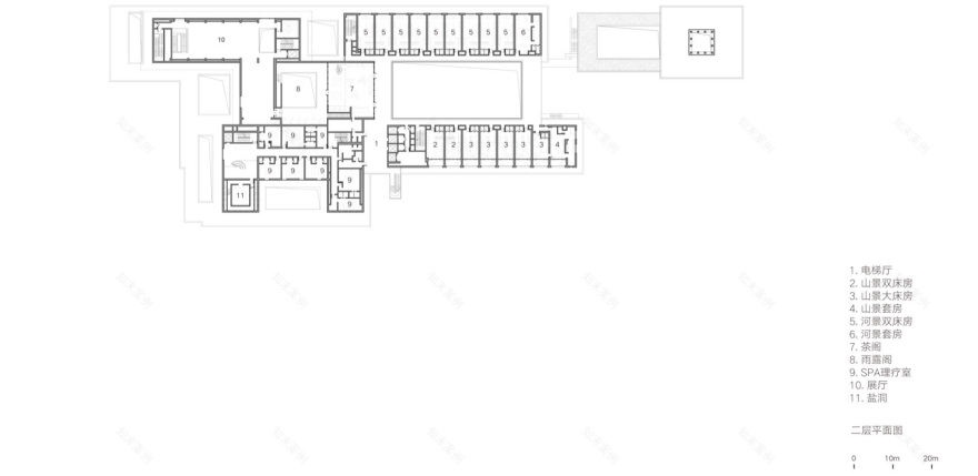
▼二层平面图,Second floor plan © 直向建筑
▼三层平面图, Third floor plan © 直向建筑
▼四层平面图, Fourth floor plan © 直向建筑
▼五层平面图, Fifth floor plan © 直向建筑
▼屋顶平面图,Roof plan © 直向建筑
▼剖面图, Section © 直向建筑
项目信息
地理位置:无锡市宜兴市周铁镇大有秋,江苏,中国
建筑/室内(公区)/景观设计:直向建筑
主持建筑师:董功
项目建筑师:管世鹏
驻场建筑师:姜鸣
设计管理:赵亮亮、冯超颖
施工管理: 赵亮亮、李锦腾
项目成员:李舒阳、闫旭、姜鸣、马小凯、黄天植、王颖、翁启程、毛博、李莫非、黄雄深
合作设计院:无锡拈花湾文化旅游发展有限公司
合作设计院项目建筑师:韦星
合作设计院建筑师:王伟
结构设计:骆正琦
机电设计:张琳、王慧想
室内设计:直向建筑、上海禾易室内设计有限公司
景观设计:浙江蓝颂园林景观设计集团有限公司
机电顾问:上海维致建筑工程咨询有限公司
幕墙顾问:北京标高时代工程咨询有限公司
灯光顾问:上海艾特照明设计有限公司
标识设计:上海壹恩空间设计有限公司
声学顾问:创艺建声咨询有限公司
绿建设计:江苏兆创建筑科技有限公司
业主:宜兴大拈花湾文化旅游投资发展有限公司
施工方:中国建筑第八工程局有限公司、上海市建筑装饰工程集团有限公司、上海清水砼科技发展有限公司、上海园林机施有限公司
结构类型:框架结构、钢结构
建筑材料:彩色清水混凝土、陶土砖、青铜、玻璃砖、不锈钢金属网、喜马拉雅盐砖、水磨石、石
建筑面积:16674.87平方米(地上11,881.94平方米、地下4792.93平方米)
占地面积:5027.00平方米
用地面积:9140.04平方米
设计周期:2021.09-2022.12
建设周期:2022.04 -2024.08
客服
消息
收藏
下载
最近












































