查看完整案例

收藏

下载
现代建筑设计大厦北楼整体修缮项目不仅作为上海市建筑师负责制的试点案例,还是新型智慧城市的创新尝试。
Arcplus’s overall renovation project of the North Building of Modern Architectural Design Building is an attempt to renew the existing building sustainably. The project is not only a pilot case of the second batch of Shanghai architect responsibility system, but also an innovative attempt of new smart city.
▼场地鸟瞰,Bird’s eye view of the site © 三千影像
▼顶视,Top view © 三千影像
设计从城市关系出发,结合全新的可持续城市更新设计理念,旨在深远影响区域及建筑内人的活动,通过此类变革重焕城市活力。
The design starts from urban relations and combines a new sustainable urban renewal design concept, aiming to profoundly influence the activities of people in the area and buildings, and revitalize the city through such changes.
▼恒丰路桥上人视,View of people on Hengfeng Road Bridge © 三千影像
城市空间重构
Reconstruction of urban space
针对原有日照条件形成的零碎形态,外立面运用了“积木”拼搭的设计理念,重新梳理建筑体块,延续立面色彩,塑造既统一又富有变化的整体,实现“新旧共生”的建筑表达。
▼“积木”拼搭的设计理念,Building blocks © 上海七视文化传媒有限公司
In response to the fragmented forms formed by the original sunlight conditions, the exterior facade adopted the design concept of “building blocks”, reorganized the building blocks, continued the facade colors, and created a unified yet varied whole, realizing the architectural expression of “symbiosis of the old and the new”.
▼改造后,After renovation © 三千影像
▼改造后,After renovation © 三千影像
通过开放建筑一、二层及沿街景观使城市空间与建筑空间相互渗透,借助共享的场所和多元的功能激发整个区域的活力;灵活的空间布局以及促进交流的多功能公共空间,构成了舒适、实用的办公环境。
▼流线分析,Streamline analysis © 华建集团上海建筑设计研究院有限公司
▼城市转角,City Corner © 华建集团上海建筑设计研究院有限公司
By opening up the first and second floors of the building and the street landscape, the urban space and the architectural space can penetrate each other, and the vitality of the entire area can be stimulated by shared places and diverse functions; the flexible spatial layout and multi-functional public space that promotes communication constitute a comfortable and practical office environment.
▼远观,Distantview © 三千影像
▼街角人视,Street corner view © 三千影像
可持续技术整合
Sustainable technology integration
设计融合了建造和运维的可持续指导思想,尝试探索一种具有推广价值的可持续城市更新模式。
The design integrates the sustainable guiding ideology of construction and operation and maintenance, and attempts to explore a sustainable urban renewal model with promotional value.
▼屋顶雨水回用,Roof rainwater recycling © 华建集团上海建筑设计研究院有限公司
▼石材利旧示意,Stone Reuse Tips© 华建集团上海建筑设计研究院有限公司
▼立面遮阳,Facade shading © 华建集团上海建筑设计研究院有限公司
可持续设计以全生命周期为导向,注重实用性与经济性平衡,并对施工进行全程指导和监管。结合被动式设计大幅提升围护结构的热工性能;创新应用光储直柔能源系统与雨水净化景观一体化技术;室内环境采用健康优化策略等。
Sustainable design is guided by the entire life cycle, focuses on the balance between practicality and economy, and provides full guidance and supervision for construction. Combined with passive design, the thermal performance of the enclosure structure is greatly improved; innovative application of photovoltaic storage direct flexible energy system and rainwater purification landscape integrated technology; indoor environment adopts health optimization strategy, etc.
▼建筑立面,Building facade © 三千影像
▼屋面露台,Roof terrace © 三千影像
智慧化升级
Smart upgrade
完善智能化系统的控制和应用,构造高效适用的建筑设备与服务管理,实现环境与服务的综合运营。
Improve the control and application of intelligent systems, construct efficient and applicable building equipment and service management, and realize the integrated operation of environment and services.
▼落客区,Drop-off area © 三千影像
建立基于BIM一模到底的智能运维平台,通过场景化模式整合办公、物管、访客等系统。特别设置用户交互界面引导节能行为,构建“人-建筑-城市”的可持续互动机制。
Establish an intelligent operation and maintenance platform based on BIM, and integrate office, property management, visitor and other systems through scenario-based models. Specially set up a user interaction interface to guide energy-saving behavior and build a sustainable interaction mechanism of “people-building-city”.
▼一层大堂,Lobby © 三千影像
▼报告厅,Lecture Hall © 三千影像
▼会议室,Meeting room© 三千影像
▼办公室,Office© 三千影像
作为上海市首个由建筑师全程主导的既有建筑改造项目,本项目不仅体现了对历史和文化的传承,还融合了现代建筑科技和绿色低碳的环保理念,其“可感知的可持续性”为高密度城市更新提供了从设计理念到实施路径的系统性参考。
The overall renovation project of the North Building of the Modern Architectural Design Building not only reflects the inheritance of history and culture, but also integrates modern architectural technology and green and low-carbon environmental protection concepts. We hope that the completed North Building can become a model for renovation and renewal, and convey the concept of sustainability to people with its unique practical results.
▼夜景鸟瞰,Night view © 三千影像
▼总平面图,masterplan © 华建集团上海建筑设计研究院有限公司
▼首层平面图,1F plan © 华建集团上海建筑设计研究院有限公司
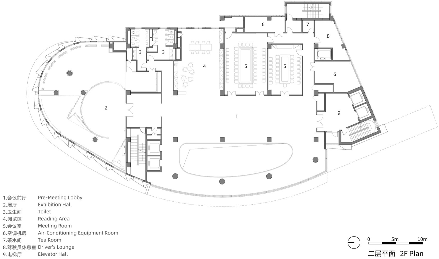
▼二层平面图,2F plan © 华建集团上海建筑设计研究院有限公司
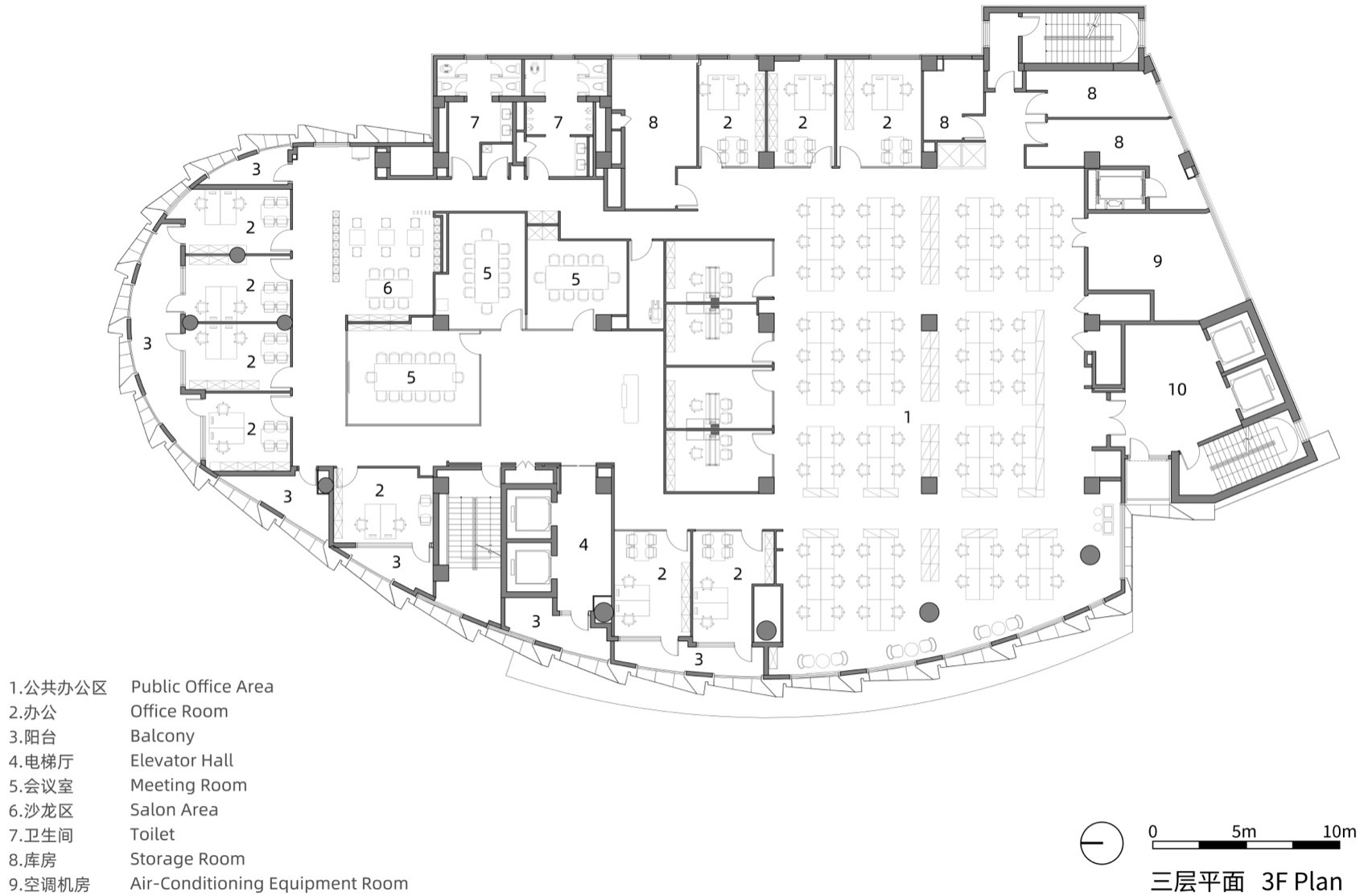
▼三层平面图,3F plan © 华建集团上海建筑设计研究院有限公司
▼五层平面图,5F plan © 华建集团上海建筑设计研究院有限公司
▼六层平面图,6F plan © 华建集团上海建筑设计研究院有限公司
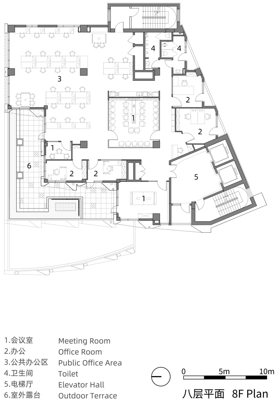
▼八层平面图,8F plan © 华建集团上海建筑设计研究院有限公司
▼北立面,north elevation© 华建集团上海建筑设计研究院有限公司
▼南立面,south elevaiton© 华建集团上海建筑设计研究院有限公司
▼东立面,east elevation© 华建集团上海建筑设计研究院有限公司
▼西立面,west elevation© 华建集团上海建筑设计研究院有限公司
▼北楼剖透视带功能,axon section© 华建集团上海建筑设计研究院有限公司
▼剖面,section© 华建集团上海建筑设计研究院有限公司
▼节点,node© 华建集团上海建筑设计研究院有限公司
项目名称:现代建筑设计大厦北楼整体修缮项目
项目类型:办公建筑
设计方:华建集团上海建筑设计研究院有限公司
项目设计:2023 - 2024
完成年份:2025
建筑面积:12710㎡
项目地址:上海市静安区石门二路268号
上海建筑设计研究院有限公司项目团队
责任建筑师:苏昶
设计总负责人:苏昶、谭春晖
项目经理:谭春晖
建筑设计:左雷、吴昌杰、钟浩诚、乔柯斐、龚振强、舒翼
结构设计:史炜洲,万瑜,周宇庆,李敏华
机电专业:机电经理:周海山、汪海良
电气:汪海良、杨麒、谢元俊、顾丹丹、俞梦悦
给排水:周海山、孙宇志、吴桐斌、赵俊、汤福南
暖通:贺江波、罗羽、朱学锦、朱喆、盛青青、吴美玲、马梦操
超低能耗/绿建专项:燕艳、孙斌、李婉、蓝健玮、李鹏飞、张雨舟、陈艳俊、杜奕成
幕墙专业:张海、李海明、汪银凤、钟健根、刘润霖
室内设计:李捍原、张逸雯、叶军、陈康、赵梦莹、刘蓓娜、施建华、张玉
景观设计:沈磊、欧彧、丘满圆、朱立成、张晓辉、李雨航、孟如意
智能化:陈杰甫、邓清、瞿迪、管华鑫、殷昊然、闻锋
灯光顾问:张屹、张振、宋赛春、施春燕、韦清勇
BIM专业:苏骏、于亮、刘雯、刘文鹏、吴反反、蔡晶晶、姚春喜、戴丽
项目合作设计团队
声学顾问:华东建筑设计研究院声学所,杨志刚、文立森、尤抗修、陈佳俊
1 - 2F室内设计:华建集团建筑装饰环境设计研究院,何澄峰,张颖,李浩,李致远,方希文
展陈设计:上海风语筑文化科技股份有限公司
项目参与者
建设单位:华建集团、上海建筑设计研究院有限公司(室内装饰)
设计单位:上海建筑设计研究院有限公司
项管单位:上海华建工程建设咨询有限公司、上海建筑设计研究院有限公司
财务监理:上海投资咨询集团有限公司、上海申元工程投资咨询有限公司
工程监理:上海现代申都建筑监理咨询有限公司
施工单位:上海机械施工集团有限公司、上海市一建东顺建筑工程有限公司、上海建筑设计研究院有限公司(室内装饰)、上海风语筑文化科技股份有限公司(企业展厅)
摄影版权
照片:三千影像
Project Name: Overall renovation project of the North Building of Modern Architectural Design Building
Project Type: Office Building
Architecture Firm: Arcplus Institute of Shanghai Architectural Design & Research(Co.,Ltd.)
Design Year:2023 - 2024
Completion Year:2025
Gross Built Area:12710㎡
Project location: No. 268, Shimen Second Road, Jing An district, Shanghai
Project Team of Shanghai Architectural Design and Research Institute Co., Ltd
Responsible Architect: Su Chang
General design manager: Su Chang, Tan Chunhui
Project manager: Tan Chunhui
Architectural design: Zuo Lei, Wu Changjie, Zhong Haocheng, Qiao Kefei, Gong Zhenqiang, Shu Yi
Structural design: Shi Weizhou, Wan Yu, Zhou Yuqing, Li Minhua
Mechatronics:机电经理:Zhou Haishan, Wang Hailiang
Electrical: Wang Hailiang, Yang Qi, Xie Yuanjun, Gu Dandan, Yu Mengyue
Water supply and drainage: Zhou Haishan, Sun Yuzhi, Wu Tongbin , Zhao Jun, Tang Funan
HVAC: He Jiangbo, Luo Yu, Zhu Xuejin, Zhu Zhe, Sheng Qingqing, Wu Meiling, Ma Mengcao
Ultra-low energy consumption/green building: Yan Yan, Sun Bin, Li Wan, Lan Jianwei, Li Pengfei, Zhang Yuzhou, Chen Yanjun, Du Yicheng
Curtain wall: Zhang Hai, Li Haiming, Wang Yinfeng, Zhong Jiangen, Liu Runlin
Interior design: Li Hanyuan, Zhang Yiwen, Ye Jun, Chen Kang, Zhao Mengying, Liu Beina, Shi Jianhua, Zhang Yu
Landscape design: Shen Lei, Ou Yu, Qiu Manyuan, Zhu Licheng, Zhang Xiaohui, Li Yuhang, Meng Ruyi
Intelligent design: Chen Jiefu, Deng Qing, Qu Di, Guan Huaxin, Yin Haoran, Wen Feng
Lighting consultant: Zhang Yi, Zhang Zhen, Song Saichun, Shi Chunyan, Wei Qingyong
BIM professional: Su Jun, Yu Liang, Liu Wen, Liu Wenpeng, Wu Fanfan, Cai Jingjing, Yao Chunxi, Dai Li
Project Collaborative Design Team
Acoustic Consultant: ECADI Acoustic Institute Yang zhigang, Wen lisen, You kangxiu, Chen jiajun
1-2F Interior Design: Arcplus Group PLCShanghai Xian Dai Architectural Decoration& Landscape Design Research Institute Co,Ltd. He chengfeng, Zhang ying, Li hao, Li zhiyuan, Fang xiwen
Exhibition Design: Shanghai Fengyuzhu Culture Technology Co., Ltd
Project Participants
Construction unit: Arcplus Institute of Shanghai Architectural Design & Research(Co.,Ltd.) (interior decoration)
Design unit: Arcplus Institute of Shanghai Architectural Design & Research(Co.,Ltd.)
Project management unit: Shanghai Huajian Engineering Construction Consulting Co., Ltd., Shanghai Architectural Design Institute Co., Ltd.
Financial supervision: Shanghai Investment Consulting Group Co., Ltd., Shanghai Shenyuan Engineering Investment Consulting Co., Ltd.
Engineering supervision: Shanghai Modern Shendu Construction Supervision Consulting Co., Ltd.
Construction unit: Shanghai Mechanical Construction Group Co., Ltd., Shanghai Yijian Dongshun Construction Engineering Co., Ltd., Shanghai Architectural Design Institute Co., Ltd. (interior decoration), Shanghai Fengyuzhu Culture Technology Co., Ltd. (corporate exhibition hall)
Photo copyright
Photo credits: 3000images
Video: Shanghai Qishi Culture Media Co., Ltd.
客服
消息
收藏
下载
最近















































