查看完整案例

收藏

下载
项目背景
Project Context
本案位于青岛海洋科技园内。项目所在的园区背山望海,建筑设计充分考虑到与自然的关系,沿山体等高线平行布局,力求符合山的脉络又不失秩序,是青岛西海岸的高新产业聚集地。
Located within the Qingdao Marine Tech Park, the site is nestled between mountains and facing the sea. The architectural design follows the natural contour lines of the mountain range, harmonizing with the landscape while maintaining structural order. This development stands as a high-tech industrial cluster in Qingdao’s West Coast.
▼项目入口,Main Entrance © 赵奕龙
润扬创新中心位于科技园区的核心位置,是一家全球化的科技产业投资和孵化平台,又是一家专注于中国当代艺术及中国古典艺术品的投资及策展机构。设计要求包括一个可以同时展示高科技产品和当代艺术品的展厅,一个50人左右的路演空间,一个小型企业孵化器,一个中国古典艺术品展厅以及集团总部办公室。
As the core institution of the tech park, Runyang Innovation Center serves both as a global platform for technology investment and startup incubation, and as a curator and investor in contemporary and classical Chinese art. The design requirements include: a hybrid exhibition space for cutting-edge technology and contemporary art, a 50-seat pitch space, a startup incubator, a classical art gallery, and corporate headquarters offices.
▼展台,Exhibition Platforms© 赵奕龙
设计概念
Design Concept
在《2001太空漫游》的结尾,库布里克设计了一个纯粹思想的场景,这是一个没有窗户的公寓,所有的光来自于地面,而四周的护墙板,板洞里的雕塑乃至室内家具都是巴洛克风格的。临终的飞行员大卫躺在同样是巴洛克风格的床上,注视着房间正中那个“黑方碑”。
In the finale of 2001: A Space Odyssey, Kubrick envisioned a realm of pure consciousness: a windowless chamber with floor-originating illumination, surrounded by Baroque-style paneling, sculptures, and furnishings. The aging astronaut David lies on a Baroque-style bed, gazing at the enigmatic “black monolith” at the room’s center.
▼《2001太空漫游》剧照,Film Still from 2001: A Space Odyssey图源网络
库布里克的“室内”显示了一种时间的粘贴术,通过古典的装饰,未来感的地面以及谜一般的黑方碑,与此对应的是三个不同年龄段的飞行员大卫同处一室。如果将宇宙看作一个没有窗户的房间,那么“室内”就是我们唯一能够认识的东西。我们并不知道“外面”是什么,一切都堆积在认知的内部。
Kubrick’s “interior” reveals a collage of time—classical decor, futuristic flooring, and the cryptic monolith coexist, mirroring the temporal coexistence of three versions of David in one space. If the universe is imagined as a windowless room, the “interior” becomes the sole vessel of human cognition, with all unknowns confined within the boundaries of perception.
▼地下车库入口,Underground Garage Entrance© 赵奕龙
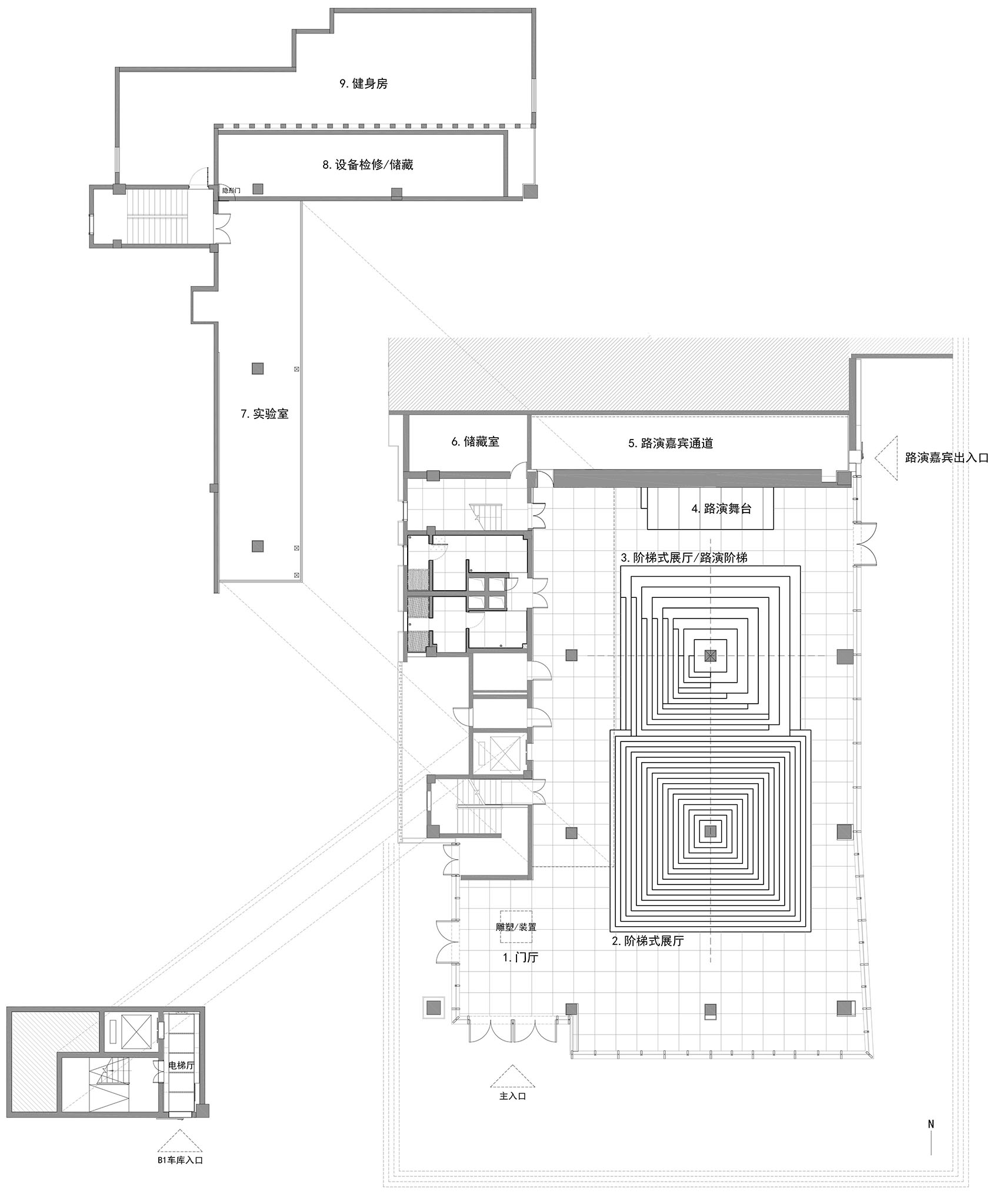
从这张图像开始,设计就预设了一种拼贴时间的可能性。它设计了一个垂直的维度,从地下车库的门厅开始,到一层展厅,二层的孵化办公区,三层的核心办公及古典艺术展厅,并通过一个复合的楼梯暗示了一条通向室外屋顶的道路。
Inspired by this imagery, the design experiments with temporal collage, constructing a vertical journey: starting from the underground garage lobby, ascending through the first-floor exhibition hall, second-floor incubator, third-floor headquarters and classical gallery, and culminating in a composite staircase that hints at a path to the rooftop.
▼“时间的复合物” ,Temporal Composite© 单数设计
金字塔|Pyramids
金字塔可能是人类已知最早的“黑方碑”。在这里,设计试图通过用“金字塔”这个形式来“回应”诸多功能:阶梯展台可以以不同高度展示不同体量的作品,无论是科技装置或是艺术品。除此之外,它本身就是一个能够进行身体互动的装置。人们可以翻越这两个金字塔,近距离地观看展品。局部的阶梯被设计成双倍高度,形成一个路演空间。
▼一层平面图与吊顶图,pyramid and ceiling plan© 单数设计
▼金字塔展台立面图,pyramid elevation© 单数设计
The pyramid, humanity’s earliest prototype of the “black monolith,” here serves multifunctional purposes. Adjustable-tiered platforms accommodate exhibits of varying scales—from tech installations to artworks—while doubling as interactive structures. Visitors can traverse the pyramid-formed “valley” for intimate viewing. A double-height stepped platform transforms into a pitch space.
▼一楼展厅入口,First-Floor Exhibition Hall Entrance© 赵奕龙
▼展厅内部,Exhibition Hall Interior© 赵奕龙
▼路演阶梯与演讲台,Presentation Stairs and Podium© 赵奕龙
除此之外,这两个“金字塔”包掉了空间正中的两根柱子,使空间看上去更为整体。
The pyramids ingeniously conceal structural columns, enhancing spatial integrity.
▼吊顶细部,Ceiling Detail© 赵奕龙
环绕在金子塔周围还有一明一暗两个条形空间:夹层的科学实验室和路演屏幕后的嘉宾安全通道。夹层的实验室提供了一个观看金字塔及路演的另一个视角,同时也是一个展示科研团队真实工作状态的窗口,本身就是一楼展厅不可或缺的“展品”。“密道”则是一个施工时被意外挖掘出来的空间,是一个连接外部出口的通道。它不仅可以被作为路演间隙的休息使用,同时也是一条完全独立的嘉宾安全通道。
Surrounding them are dual pathways: the mezzanine laboratory offers an elevated perspective, showcasing real-time R&D activities as “living exhibits,” while a serendipitously discovered “secret passage” functions as both a VIP route and an interstitial lounge.
▼夹层实验室,Mezzanine Laboratory View© 赵奕龙
▼从夹层实验室看金字塔,Mezzanine Laboratory View© 赵奕龙
▼路演嘉宾通道(“密道”),vip route© 赵奕龙
在后续一年多的使用中,金字塔展台及路演空间被证明可以适用于各种场景和语境。
Over a year of operation, the pyramid-based exhibition system has proven adaptable to diverse scenarios.
▼当代艺术展及路演现场,Contemporary Art Exhibition & Roadshow Venue © 禾怡美术馆
拱券|Arches
连续的拱券是古罗马的创造。这种结构可以增加室内的跨度,也可以作为一种连续的结构体。二层是高科技企业的孵化器,拱券部分承担了主要的公共服务功能:休息舱,会议室,洽谈室和前台都被整合进这个连续的拱券之中。与这10个拱券相对应的是网格化白光的普遍照射。无尽的模块化光体象征着人类理性无限自我复制的本能,作为一个孵化器,孵化之光是不分昼夜的。自然光已经完全被逐出空间之外。灯火通明的状态应该是这个空间的使用常态。
▼拱券平面图,arches plan© 单数设计
▼拱券体轴测图,arches axon© 单数设计
▼拱券体立面图,elevation© 单数设计
The ancient Roman arch system is reimagined in the second-floor incubator. Continuous arched structures integrate public service modules: lounge pods, meeting rooms, reception areas, and a front desk. Grid-patterned luminous modules symbolize humanity’s instinct for infinite replication of rationality. Artificial illumination completely replaces natural light, crafting a perpetual daylight environment for innovation.
▼集体办公区入口,Collaborative Workspace Entrance© 赵奕龙
▼拱券体的通道,Arched Passageway© 赵奕龙
▼集体办公区,Collaborative Workspace© 赵奕龙
十字|Cross
十字同样拥有两个维度,从空间上它是一个二维的划分,它首先定义了空间的中点,同时区分了四个向限,并在这四个向限上无穷延伸。三层是集团总部的所在地,在核心成员的办公室之外,它还要求提供一个陈列中国古典艺术品的展览室,总裁办公室,茶室和餐室,一个小型的会议室。在日常的办公需求之外,决策和接待是它的主要功能。
The cross operates in three dimensions: horizontally dividing quadrants to define core zones, and vertically connecting decision-making hubs. Beyond standard offices, the third-floor headquarters prioritizes a classical art gallery, president’s office, tea ceremony room, and banquet hall, forming a nexus for strategic decisions and high-level receptions.
▼展陈空间,Exhibition Hall© 赵奕龙
▼条形灯带与吊灯Linear Lighting & Pendant Detail© 赵奕龙
通向室外:螺旋体|Path to the Outdoors: The Helix
三楼到屋顶的楼梯为了规避破顶的风险因此利用了厕所上方的通风口。根据现场条件设计成两种不同形式的梯段:延续目前楼梯方位的直梯段和转移到通风口侧面的螺旋楼梯梯段。在这里,两个不同形式的梯段由包裹在其外部的竖向杆件与水平圆弧形杆件统一起来。梯段的变化提醒人们方向性的变化,同时与手握杆件的变化相呼应,从竖向握杆到横向握杆。这个动作的变化意味着竖向性向水平性的转换,同时也暗示了一条通往“室外”的道路。
▼楼梯轴侧图,Axonometric Diagram© 单数设计
The staircase from the third floor to the rooftop utilizes the ventilation shaft above the restroom to avoid compromising the roof structure. Straight-flight sections and helical stair segments are unified through a rod framework. The handrail transitions from vertical to horizontal, symbolizing the shift from interior confinement to open-air freedom, ultimately guiding users to the rooftop.
▼三楼走廊与螺旋体楼梯,Third-Floor Corridor and The Helix© 赵奕龙
▼楼梯局部,Spiral Staircase Detail © 单数设计
▼一层平面图,1F Plan© 单数设计
▼二层平面图,2F plan© 单数设计
▼三层平面图,3F plan© 单数设计
项目名称:金字塔、拱券、十字与库布里克 / 润扬创新中心设计
项目类型:室内设计
设计方:单数设计 DANSU DESIGN
完成年份:2023年11月
主创建筑师:陈安栋
施工图设计师:张盼利(室内),夏彬(结构)
驻场设计师:康健
项目地址:山东省青岛市黄岛区中电光谷海洋科技园12号楼
建筑面积:约3000㎡
摄影版权:赵奕龙,单数设计,禾怡美术馆
客户:润扬科技创业投资有限公司
施工:青岛一品观澜装饰有限公司
Project name: Pyramid, Arch, Cross & Kubrick / Runyang Innovation Center Design
Project type: Interior Design
Design: DANSU DESIGN
Completion Year: November 2023
Leader designer & Team: Chen Andong/Zhang Panli (Construction Drawing Designers), Xia Bin(structure),Kang Jian(on-site Designer)
Project location: Qingdao,China
Gross built area: 3000㎡
Photo credit: Zhao Yilong, DANSU DESIGN, Heyi Art Museum
Clients: Runyang Technology Venture Capital Co., Ltd.
Construction: Qingdao Yipin Guanlan Decoration Co., Ltd.
客服
消息
收藏
下载
最近












































