查看完整案例

收藏

下载

翻译
Architects:GLCRM Architects,Saucier + Perrotte architectes
Area:1565m²
Year:2025
Photographs:Olivier Blouin
Manufacturers:Alucoil,Alutech,Extanza,Kawneer,Prelco
Lead Architects:Gilles Saucier
Civil Consultants:CIMA+
Engineering & Consulting:WSP Norge, WSP
Design Team:Gilles Saucier, André Perrotte, Yutaro Minagawa, Félix Bergeron, David Moreaux, Rebecca Taylor
Structural And Mep Consultants:EXP
City:Sherbrooke
Country:Canada
Text description provided by the architects. The concept for the new ''Pavilion A5'' of the Faculty of Arts and Humanities at the Université de Sherbrooke was developed to foster the exchange of ideas between professors and students across all departments. The exchange of knowledge in all its forms is one of the central ideas behind the design of the new building and becomes the catalyst for its unique architectural form.
The new pavilion includes support functions for the Faculty of Arts and Humanities, such as professor/researcher offices, several meeting and conference rooms, and a large staff lounge. The offices of the professors and researchers are distributed along a regular grid, while the meeting rooms and staff lounges are distributed throughout the project following an upward movement towards the landscape. Through this ascension, the users are invited to contemplate the regional landscape from each floor and to interact and exchange ideas. These fully glazed public spaces make their presence known on the exterior as they subtly punctuate the facades.
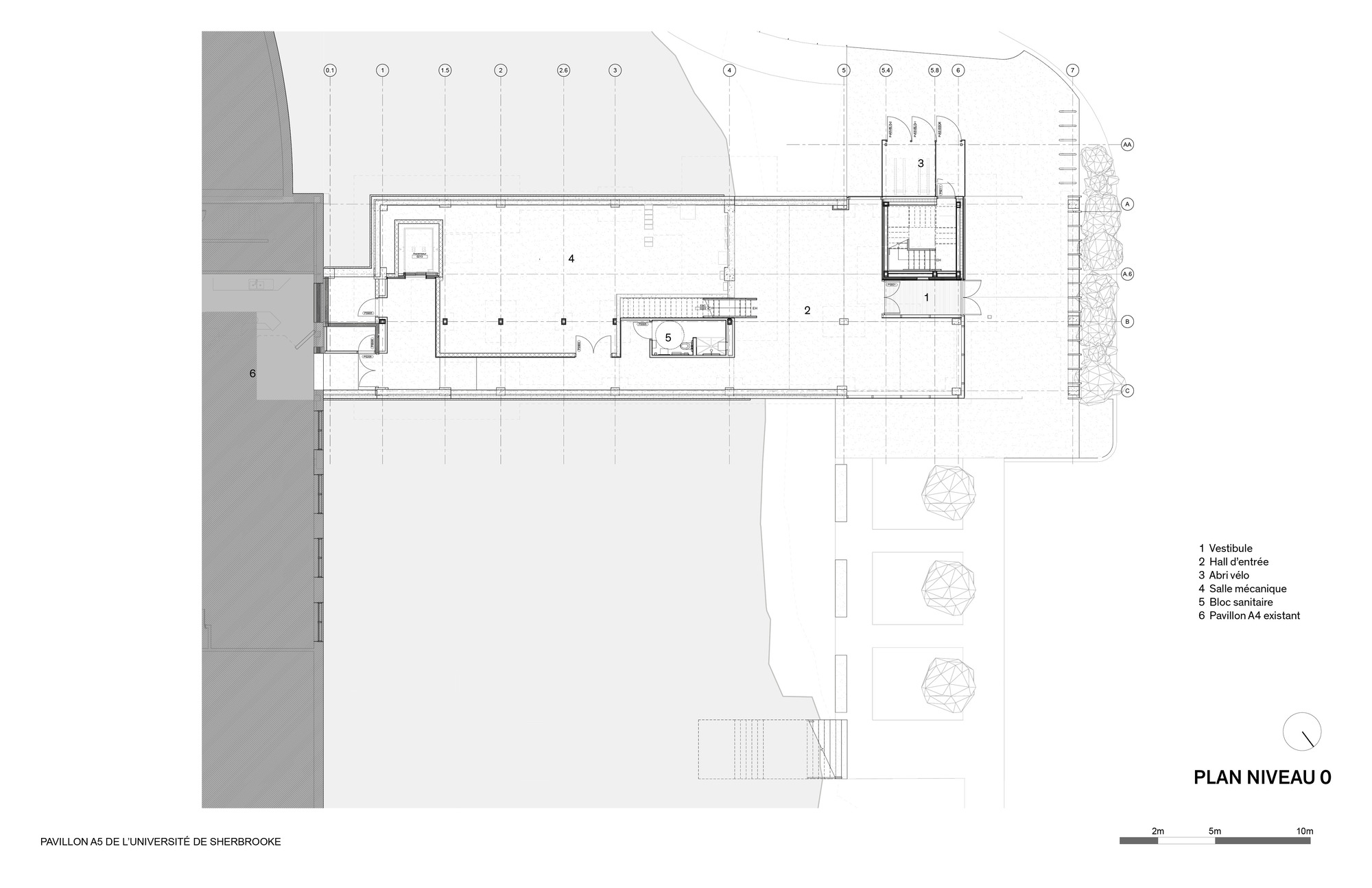
The main circulation areas of the pavilion incorporate connecting staircases between departments, which are located according to the meeting spaces on each floor. These spaces present striking views of the region's mountains and natural light is present everywhere. The staircases become opportunities for informal encounters while energizing the linear aspect of the building. The new staff lounge, located on the upper level of the building, quickly became a favorite gathering place for users, offering a breathtaking view of Mount Orford. A relaxation and workspace has been set up in the entrance hall on the ground floor, mainly used by the student community.
Special emphasis was placed on universal accessibility. The location of the main entrance takes advantage of the site's topography, ensuring that access to the pavilion is level with the existing campus footpaths. The entrance hall extends outside under a canopy creating a smooth connection between inside and outside. The adjacent courtyard features the work of artist Yann Pocreau inspired by the disciplines taught at the Faculty of Arts and Humanities.
Project gallery
客服
消息
收藏
下载
最近





































