查看完整案例

收藏

下载
环境决定论,表达人类文化与人类生态学之间的关系。办公空间已超越了传统意义上的物理界限,它成为了一种文化、一种哲学,乃至一种生活方式的体现。环境(建筑空间)影响人的行为,而人类在不断适应和改造环境的过程中,也形成了独特的办公文化。从功能到美学,未来办公生态的探讨一定是满足混合工作办公模式的,而最大的挑战在于如何促进协作、沟通和表达品牌内核。
Environmental determinism expresses the relationship between human culture and human ecology. Office space has transcended traditional physical boundaries and become a reflection of culture, philosophy, and even a way of life. The environment (architectural space) influences human behavior, and in the process of constantly adapting and transforming the environment, humans have also formed a unique office culture. From functionality to aesthetics, the exploration of the future office ecosystem must meet the requirements of the hybrid work office model, and the biggest challenge lies in how to promote collaboration, communication, and expression of brand core.
▼城市环境,city environment©网络
琶洲,是广州未来发展的重要引擎。DPD递加设计办公总部位于开元广场,属于琶洲西区的重要地标性建筑。琶洲西区作为广州CBD“黄金三角”的核心位置之一,与珠江新城、国际金融城共同构成了广州的核心商务区。未来,琶洲将成为广州乃至大湾区数字经济产业的重要引擎。
Pazhou is an important engine for the future development of Guangzhou. The Design Plus Design(DPD) office headquarters is located in Kaiyuan Square, which is an important landmark building in the western district of Pazhou. As one of the core locations of the “Golden Triangle” of Guangzhou CBD, Pazhou West District, together with the Pearl River New Town and the International Financial City, forms the core business district of Guangzhou. In the future, Pazhou will become an important engine for the digital economy industry in Guangzhou and even the Greater Bay Area.
▼城市环境,city environment©网络
透过莫迪里阿尼的画作我看到了热烈、挣扎、能量,以及有关生命的表达和自我的审视,我觉得这可能也是阶段性的我。——Michael Lam
Through Modigliani’s paintings, I see passion, struggle, energy, and a profound expression of life and self-reflection. Perhaps, in this moment, he mirrors a part of who I am.——Michael Lam
▼莫迪里阿尼的画作,Modigliani’s paintings©Modigliani
▼材料及细部,material and detail©DPD
“行为设想”是有关个人、情景、社会互动的有趣构思。DPD办公总部3.0的迭代升级,正是一系列想法的表达,它从封闭的独立空间,逐步过渡到开放的协作环境,再进化至如今的定制化多模式联合办公。这一过程中,传统工作模式正悄然退场,取而代之的是更加开放共享、包容循环、且自然可持续的工作场所。在这里,设计师不再完全沉浸于个人的工作世界,而是能够轻松地从高度专注的状态中抽身,与周围的同事及环境建立起更加有机的连接。
Behavioral imagination “is an interesting idea about personal, situational, and social interactions.The iterative upgrade of DPD Office Headquarters 3.0 is the expression of a series of ideas, gradually transitioning from a closed and independent space to an open collaborative environment, and evolving into today’s customized multi-mode co working.In this process, traditional work models are quietly fading away, replaced by more open, shared, inclusive, circular, and naturally sustainable workplaces. Here, designers are no longer completely immersed in their personal work world, but can easily detach from a highly focused state and establish more organic connections with colleagues and the environment around them.
▼入口,entrance©Boris Shiu
▼入口,entrance©Boris Shiu
▼模型区,model area ©Boris Shiu
在新的空间,我们建立统一的视觉联系构建可感知的品牌形象。设计师深度挖掘艺术感知和表达。空间的主视觉的表达是设计师对于艺术的意识溶解和转移。在这种状态下,艺术创作的意识不再局限于特定的思维框架或逻辑结构,而是能够自由地穿梭于现实与想象、理性与感性之间。
In the new space, we establish a unified visual connection to build a perceptible brand image. Designers delve deeply into artistic perception and expression. The main visual expression of space is the designer’s dissolution and transfer of artistic consciousness. In this state, the consciousness of artistic creation is no longer limited to specific thinking frameworks or logical structures, but can freely shuttle between reality and imagination, rationality and sensibility.
▼深度挖掘艺术感知和表达,delve deeply into artistic perception and expression©欧阳云
▼空间细部,space detail©DPD杨之毅
在创作过程中,将自身的意识、情感、想象与艺术品、空间环境等实体元素相融合,形成一种高度集中且难以言喻的状态。DPD办公总部将整个“L”型空间划分成四个主要功能区,完成“品牌认知”“创意思维”“社交枢纽”“实践场域”的全链路形象建设,每个空间做到不完全隔断相互连接,消除传统办公空间的“封闭感”,形成多人协同创作生态。
In the creative process, one integrates their own consciousness, emotions, imagination with physical elements such as artworks and spatial environments, forming a highly concentrated and indescribable state.The DPD office headquarters divides the entire “L” – shaped space into four main functional areas, completing the full chain image construction of “brand awareness”, “creative thinking”, “social hub”, and “practice field”. Each space is not completely separated and connected to eliminate the “closed feeling” of traditional office spaces, forming a collaborative creative ecosystem for multiple people.
▼创作环境,creating environment©DPD杨之毅
▼创作环境,creating environment©Boris Shiu
▼既专注充满活力的工作环境,creating a work environment that is both focused and dynamic©欧阳云
▼工作环境,working environment©欧阳云
▼既专注充满活力的工作环境,creating a work environment that is both focused and dynamic©DPD杨之毅
▼细部,detail©DPD杨之毅
设计师的灵感室通过动静分区实现空间资源的高效利用,兼顾不同状态下的需求,满足设计师休闲设计和创意思考的办公环境。开放协作的混合边界核心在于平衡“隔离”与“连接”,最终打造出既专注又充满活力的工作环境。▼空间轴测图,space axonometric©DPD
The designer’s inspiration room achieves efficient utilization of spatial resources through dynamic and static zoning, catering to the needs of different states and meeting the office environment for designers’ leisure design and creative thinking. The core of the hybrid boundary of open collaboration lies in balancing “isolation” and “connection”, ultimately creating a work environment that is both focused and dynamic.
▼动静分区的工作环境,working environmentthrough dynamic and static zoning©Boris Shiu
▼动静分区的工作环境,
working environment through dynamic and static zoning ©Boris Shiu
办公空间不仅是工作的场所,同样也成为社交与情感交流的舞台。设计师们通过独特的质感和空间感官逻辑,营造出开放、包容的社交氛围。在这里,设计师被鼓励进行深入的沟通与协作。
Office space is not only a workplace, but also a stage for social and emotional communication. Designers create an open and inclusive social atmosphere through unique textures and spatial sensory logic. Here, designers are encouraged to engage in in-depth communication and collaboration.
▼装饰细部,decoration detail©DPD杨之毅
采用艺术性隔断模糊公私领域,连接处设置共享工作岛台,将功能隐于形式。关闭时自动生成沉浸式办公体验,打开时快速切换对话模式,刺激非正式交流,激发人的体验动线本身成为一场有趣的“行为实验”。
Using artistic partitions to blur the public and private domains, a shared work island is set up at the connection to conceal functionality in form. Automatically generate immersive office experience when closed, quickly switch dialogue modes when opened, stimulate informal communication, and stimulate people’s experiential flow, making it an interesting “behavioral experiment”.
▼采用艺术性隔断模糊公私领域,
Using artistic partitions to blur the public and private domains©Boris Shiu
整个空间拥有完整独立的办公动线,供设计师直接的交流和思想碰撞。这种空间布局提供了更大的自由度,使他们能够根据自己的工作习惯、任务需求或个人喜好来安排工作空间。
The entire space has a complete and independent office flow, providing designers with direct communication and ideological collision. This spatial layout provides greater freedom, allowing them to arrange their workspace according to their work habits, task requirements, or personal preferences.
▼模型区域,model area©-DPD杨之毅
▼多功能办公桌:绿芯桦木海洋板,Multi functional office desk: green core birch wood ocean board©-DPD杨之毅
自然纹理的木材、富有艺术感的涂料、充满生机的绿色海洋板以及优雅的大理石,材料的不同性格展露出来与裸露的建筑工业结构,共同编织出品牌的独特风貌。
The natural texture of wood, artistic coatings, vibrant green ocean panels, and elegant marble, along with the exposed industrial structure of the building, weave together the unique style of the brand.
▼自然纹理的木材、富有艺术感的涂料,The natural texture of wood, artistic coatings©-DPD杨之毅
▼自然纹理的木材、富有艺术感的涂料,The natural texture of wood, artistic coatings©欧阳云
▼模型区,model area©DPD杨之毅
设计师通过多个空间的串联和转换,满足了新型办公模式对会议和团队协作的需求。无论是小组会议、大型会议还是团队协作,都能找到最适合的场所进行。这种空间布局不仅增强了互动性,还提升了会议的效率和效果。
▼空间轴测图,space axonometric©DPD
The designer meets the needs of the new office model for meetings and team collaboration by connecting and transforming multiple spaces. Whether it’s a group meeting, a large meeting, or a team collaboration, you can find the most suitable venue to hold it. This spatial layout not only enhances interactivity, but also improves the efficiency and effectiveness of meetings.
▼多个空间的串联和转换,connecting and transforming multiple spaces©Boris Shiu
▼满足会议等需求,satisfy the needs for meetings©DPD杨之毅
The glass curtain wall introduces a large area of outdoor light into the interior to ensure a transparent sensory experience during office work, while incorporating a people-oriented sustainable lighting concept. Implementing low-energy lighting based on daily usage habits and introducing systematic desktop lighting design, allowing the space to showcase infinite charm in the interplay of light and shadow. The conference call space, material cabinet, brand display wall and other multifunctional gathering meet the needs of multiple departments and positions in business, administration, branding, and design. This design makes the office space more flexible and versatile, able to adapt to the work characteristics of different departments and positions, and improves work efficiency and collaboration effectiveness.
▼玻璃幕墙将室外光线大面积引入室内,
the glass curtain wall introduces a large area of outdoor light into the interior©Boris Shiu
▼玻璃幕墙将室外光线大面积引入室内,the glass curtain wall introduces a large area of outdoor light into the interior©DPD杨之毅
艺术化的空间叙事让办公场域新增文化输出的窗口,成为品牌故事的讲述者。“艺术”是一个抽象但富有表现力的概念,它描述的是某个空间、环境或活动中所弥漫的、与艺术创作和欣赏相关的情感、气息和情调。这种氛围不仅仅由物理环境构成,还涉及到人的感知、情感反应以及文化背景等多方面因素。
The artistic spatial narrative adds a window for cultural output to the office space and becomes a storyteller of brand stories. Art “is an abstract but expressive concept that describes the emotions, atmosphere, and mood that pervade a space, environment, or activity and are related to artistic creation and appreciation. This atmosphere is not only composed of physical environment, but also involves various factors such as human perception, emotional reactions, and cultural background.
▼艺术化的空间叙事,the artistic spatial narrative ©Boris Shiu
▼艺术化的空间叙事,the artistic spatial narrative ©DPD杨之毅
▼艺术化的空间叙事,the artistic spatial narrative ©Boris Shiu
随着办公需求的变化,装配式办公场所应运而生。从“涂料”的上墙方式到材料区的展陈设计,再到灵活的艺术策展空间,每一处都彰显着品牌的创新与活力。这些灵活多变的空间,不仅成为了文化输出的重要窗口,也为品牌注入吸引力。不定时的艺术展览也在激发设计师的创造力和灵感,为创意工作注入新的活力。
With the changing demands of office work, prefabricated office spaces have emerged. From the wall mounted method of “coating” to the exhibition design in the material area, and then to the flexible art curation space, every aspect showcases the brand’s innovation and vitality. These flexible and versatile spaces have not only become important windows for cultural output, but also inject attraction into the brand. Occasional art exhibitions are also inspiring designers’ creativity and inspiration, injecting new vitality into creative work.
▼装配式办公场所,prefabricated office spaces©欧阳云
▼“涂料”的上墙方式,wall mounted method of “coating”©Boris Shiu
▼灵活的艺术策展空间,flexible art curation space©DPD杨之毅
▼灵活的艺术策展空间,flexible art curation space©DPD杨之毅
▼灵活的艺术策展空间,flexible art curation space©欧阳云
设计赋能空间,呈现不同状态的艺术家居画廊。作为连接体验场景与艺术生活的桥梁,将艺术家的独特风格融入家居设计之中。我们专业促成品牌与艺术家的创意合作,让艺术跨界融入日常生活,共同营造一个既具艺术氛围又贴近消费需求的家居场景。在艺术氛围中,人们往往能够感受到一种独特的、超越日常生活的情感体验。这种体验可能源于对美的追求、对创意的赞赏,或者是对某种文化传统的共鸣。艺术氛围能够激发人们的想象力和创造力,使他们在欣赏艺术作品的同时,也能够产生自己的思考和感悟。
▼空间轴测,space axonometric©DPD
Design empowering spaces to present art home galleries in different states. As a bridge connecting experiential scenes and artistic life, incorporating the artist’s unique style into home design. We specialize in facilitating creative collaborations between brands and artists, integrating art into daily life and creating a home scene that combines artistic atmosphere with consumer demand. In an artistic atmosphere, people often feel a unique emotional experience that transcends daily life. This experience may stem from the pursuit of beauty, appreciation of creativity, or resonance with a certain cultural tradition. The artistic atmosphere can stimulate people’s imagination and creativity, allowing them to appreciate artistic works while also generating their own thoughts and insights.
▼艺术家居画廊,art home galleries©DPD杨之毅
▼艺术家居画廊,art home galleries©欧阳云
▼艺术家居画廊,art home galleries©DPD杨之毅
▼COCOONx 陈英杰艺术家联名(特别限定款),COCOON x Chen Yingjie Artist Collaboration (Special Limited Edition)©DPD杨之毅
▼空间概览,overview of the space©DPD
1.0,作为艺术画廊+咖啡+办公结合的多业态场域,效率至上,缺乏开放性协作区域;2.0,从相对封闭的空间到流动性更强的场所,从工具化的空间过渡到相对开放的艺术化生态化体验;而3.0的琶洲新总部,我们平衡灵活性和品牌文化凝聚力,打造多功能混合空间,符合不同工作模式的变化。
1.0, as a multi format venue combining art gallery, coffee, and office, efficiency is paramount and lacks open collaboration areas; 2.0, transition from relatively enclosed spaces to more fluid places, from instrumental spaces to relatively open artistic and ecological experiences; In the new headquarters of Pazhou 3.0, we balance flexibility and brand culture cohesion, creating a multifunctional mixed space that meets the changes in different work modes.
▼1.0 ·广州·东山口,1.0 · Dongshankou, Guangzhou©DPD
▼2.0 ·广州·江1984,2.0 · Guangzhou · Jiang 1984©DPD
历经十三年,从100平封闭的独立空间逐步过渡到900平,我们发现未来创意工作者的办公环境不应是封闭的创作孤岛,需要演变为“创意生态细胞”的“培养皿”。通过艺术表达传递价值观,以可持续技术降低环境足迹,用开放架构连接社交网络,最终成为兼具生产力、传播力与社群影响力的综合平台。这种转变不仅重塑了空间形态,更重新定义了设计师在社会创新中的角色。
▼空间轴测,space axonometric©DPD
After thirteen years of transition from a 100 square meter enclosed independent space to a 900 square meter one, we have found that the future office environment for creative workers should not be a closed creative island, but rather a “petri dish” for “creative ecological cells”. By conveying values through artistic expression, reducing environmental footprint with sustainable technology, connecting social networks with open architecture, and ultimately becoming a comprehensive platform that combines productivity, dissemination, and community influence. This transformation not only reshapes the spatial form, but also redefines the role of designers in social innovation.
▼夜景,night view©Boris Shiu
▼露台概览,overview of the terrace©DPD
DPD新总部依旧贯彻五大领域的研究,洞察户外「轻生活方式」趋势,融合全新的城市体验:在当代都市化的办公环境和开放包容的空间外,融合轻量化生活化的户外设计,生成释放、寻找自我的放松方式,将办公过程本身转化为自然艺术的表达。自然光的充分利用、植物的点缀以及色彩心理学的应用,都在无形中滋养着人的心理状态。
DPD’s new headquarters continues to implement research in five major areas, insight into the trend of outdoor “light lifestyle”, and integrate new urban experiences: in addition to the contemporary urbanized office environment and open and inclusive space, integrating lightweight lifestyle outdoor design, generating ways to release and find self relaxation, and transforming the office process itself into the expression of natural art.The full utilization of natural light, the embellishment of plants, and the application of color psychology all invisibly nourish people’s psychological state.
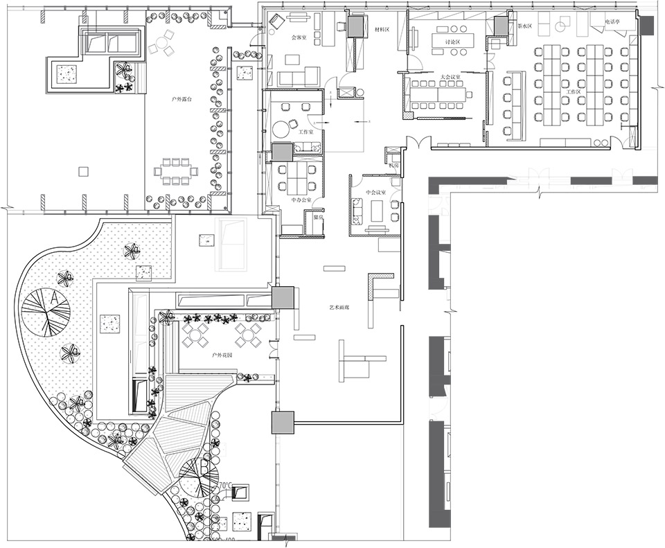
▼平面图,plan©DPD
项目名称|DPD递加设计办公总部
设计范围|空间设计、灯光设计、产品设计、装置陈列
项目地址|中国·广州·开元广场
项目面积|室内850㎡+户外600㎡
设计时间|2024年09月
完成时间|2024年11月
设计团队|林镇、Gaby.Teng、Kenny Cheng
艺术道具|梁蕴、刘永红、王悦、温馨
品牌视觉|杨龙、肖萌萌、龚妙君
项目管理|李尤佳梓
工程管理|莫自豪
工程团队|广州市艺景装饰设计工程有限公司
品牌合作|UMO有末、Hunter Douglas亨特窗饰、MisuHouse美墅馆、TONG CONCEPT砼馆、SLENDER诗连达岩板、novacolor诺瓦艺术涂料、壹品国际、Methink米斯穆勒、旭格门窗、DRECO哲高、Grado格度、RIV罗意威石材、ZENE者尼智能影音、奢曼装甲门、YARDCOM院半、颐和墙纸、CIYEA LIFE曦睿家居、OEZER欧哲
灯光照明|Ostuni、一盏盏EZZ LIGHTING
植物造景|东山植研所
项目拍摄|Boris Shiu、欧阳云、DPD杨之毅
特别鸣谢|知识城集团、侨鑫集团、戴德梁行
Project Name | Design Plus Design Office Headquarters
Design Scope | Space Design, Lighting Design, Product Design, Installation Display
Project Address | Kaiyuan Plaza, Guangzhou, China
Project Area | Indoor 850 ㎡+Outdoor 600 ㎡
Design Time | September 2024
Completion Time | November 2024
Design Team | Michael Lam, Gaby.Teng, Kenny Cheng
Art props | Yanyan Leung, Aimer Liu, Yueyue Wang, Winni Wen
Brand Vision | Yang Long, Mona Xiao, Miu Kung
Project Management | Nancy Li
Engineering Management | Seven Mok
Engineering Team | Guangzhou Yijing Decoration Design Engineering Co., Ltd
Project Shooting | Boris Shiu, Ouyan Yun, DPD·Tango Yang
客服
消息
收藏
下载
最近

























































































